- Расчет навеса из металла, цена — Prom.ua (ID#207622285)
- +380-93-929-11-77
- +380-50-299-29-40
- +380-97-072-87-86
- +380-48-700-36-44
-
- Более 5 лет на рынке
- 20% клиентов рекомендуют нас своим друзьям
- 33% позвонивших становятся нашими клиентами
- 100% открытая информация по затратам и доходам на объекте
- 2000 эскизов и фотографий в каталогах
- 50000 тонн металла за последний год выработано
- 12 металлообрабатывающих станка на территории производства
- 54 849 гривен средний чек компании
- Определение ветровых нагрузок на конструкции навесов по норме EN 1991-1-4
- Оценка плотности и высоты лесного полога — ArcMap
- 3
- Рассчитать навес рядом с вами
Расчет навеса из металла, цена — Prom.ua (ID#207622285)
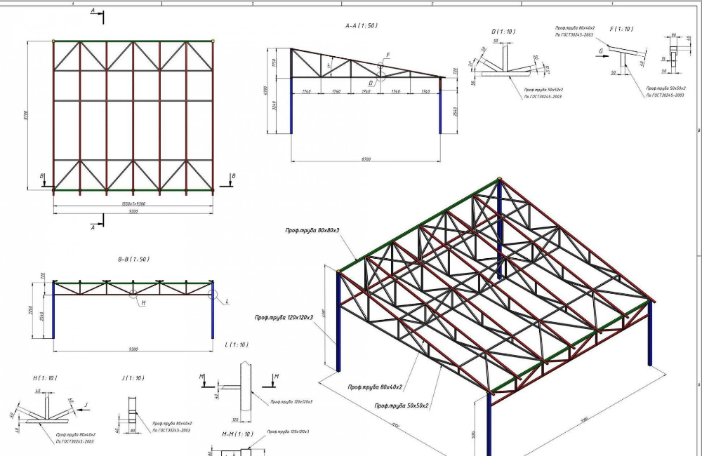
Изготовление козырьков и навесов любых размеров:048-700-36-44; +380-50-299-29-40; +380-93-929-11-77; +380-97-072-87-86Важнейший элемент декоративного оформления входа в здание,козырек,навес,над крыльцом,для защиты входа и людей от атмосферных осадков, падающего с крыши снега или сосулек, не имеет значение, из какого материала выполнены,козырьки или навесы. Однако, металл имеет особые преимущества. Изделия из него выдерживают самые серьезные снеговые и ветровые нагрузки, они надежны и долговечны. Но самое главное ― они придают входу в здание более солидный и элегантный вид.
В технике художественной ковки может быть оформлено и крыльцо частного жилого дома, загородного коттеджа или дачи, и вход в офис, магазин, ресторан или бар. Не только навесы и козырьки, но и перила и ограждения крыльца, обрамление дверей и фурнитура могут быть выполнены с использованием кованых элементов.
Кованые козырьки, навесы, перила и лестничные ограждения могут быть частью целого ансамбля, объединяющего также оконные решетки и ограждения балконов, кованые заборы и ворота, садовую мебель и декоративные изделия в интерьере. В технике художественной ковки может быть оформлен только вход ― и даже этого будет достаточно, чтобы подчеркнуть яркую индивидуальность всего фасада и здания в целом.
Ассортимент продукции постоянно расширяется, поэтому звоните или пишите нам и мы с удовольствием ответим на Ваши вопросы!НАЖМИТЕ НА КНОПКУ ЧТОБ ПОСМОТРЕТЬ ТРАНСЛЯЦИЮ С ПРОИЗВОДСТВА
Оформить заказ довольно просто, необходимо лишь позвонить нам:
+380-93-929-11-77
+380-50-299-29-40
+380-97-072-87-86
+380-48-700-36-44
Всегда рады помочь и ответить на все ваши вопросы.
ПОЧЕМУ НАС ВЫБИРАЮТ 30% КЛИЕНТОВ?
Более 5 лет на рынке
20% клиентов рекомендуют нас своим друзьям
33% позвонивших становятся нашими клиентами
100% открытая информация по затратам и доходам на объекте
2000 эскизов и фотографий в каталогах
50000 тонн металла за последний год выработано
12 металлообрабатывающих станка на территории производства
54 849 гривен средний чек компании
Как мы работаем
Вы звоните нам Вас консультирует обученный менеджер
Вы выбираете из каталога или после визуализации нашего дизайнера
Вы заключаете официальный договор с печатью и юридическими гарантиями
Мы приступаем к работе в тот же день
И вы довольный клиент
Определение ветровых нагрузок на конструкции навесов по норме EN 1991-1-4
При расчете навесов, например, кровли топливозаправочной станции, необходимо определить также нагрузки, соответствующие требованиям раздела 7.
3 нормы EN 1991-1-4. В следующей статье так будет показан пример расчета V-образной кровли с небольшим наклоном.
Определение коэффициентов
При определении нагрузки всегда необходимо применить коэффициент силы c f и общий коэффициент давления cp,net согласно таблицам 7.6 и 7.8. В случае заполнения конструкции, например складскими материалами, находящимися под или непосредственно рядом с навесом, необходимо определить с помощью интерполяции в таблицах также степень заполнения и ее значение в интервале от ϕ = 0 (открытый навес) до ϕ = 1 (заполненный навес).
Для определения результирующего общего коэффициента давления выполняется также, как и у закрытых зданий, классификация поверхностей. Однако это применимо только для расчета покрытия кровли и его крепежных элементов.
Классификация поверхностей для определения общего коэффициента давления
-
Положение нагрузки от результирующей силы ветра
-
Пример
-
Ветровая нагрузка, давление ветра
-
Ветровая нагрузка, подсос ветра
-
Конструкция навеса желоба
Положение и форма результирующей силы ветра
Для расчета несущей конструкции необходимо на расстоянии d/4 от наветренного края приложить результирующую силу ветра.
d — размер поверхности кровли в направлении ветра На рисунке 7.17 затем показано шесть возможных положений нагрузки в зависимости от знака коэффициента силы.
Положение нагрузки от результирующей силы ветра
-
Классификация поверхностей для определения общего коэффициента давления
-
Пример
-
Ветровая нагрузка, давление ветра
-
Ветровая нагрузка, подсос ветра
-
Конструкция навеса желоба
Поскольку ветровая нагрузка является поверхностной, а не узловой, и действует на покрытие кровли, а ее центр тяжести располагается в 1/4 длины кровли, требуется подобрать такой случай нагружения, который будет все это учитывать. Однако это внецентренное расположение нагрузки обусловливает более сложный расчет устойчивости у возможных центральных опор. Потому, одним из возможных решений является расположение поверхностной нагрузки в форме квадратичной параболы, так как ее центр тяжести будет находиться в 1/4 длины кровли.
Пример V-образной кровли
Длина = 15 м
Ширина = 12 м
Высота разжелобка = 6 м
Наклон кровли = -5 °
Ветровая нагрузка = 0,5 кН/м²
Открытый навес → ϕ = 0
cf = +0,3 максимум всех ϕ
cf = -0,5 минимум, ϕ = 0
Пример
-
Классификация поверхностей для определения общего коэффициента давления
Положение нагрузки от результирующей силы ветра
-
Ветровая нагрузка, давление ветра
-
Ветровая нагрузка, подсос ветра
-
Конструкция навеса желоба
Результирующая сила ветра
Программы RFEM и RSTAB содержат в себе генераторы нагрузок для закрытых зданий, прямоугольных в плане. К тому же, в них можно задать нагружение, которое действуюет, только на стены или на кровлю, а также на все здание.
Однако с помощью генераторов нельзя автоматически рассчитать несущие конструкции навесов.
Тем не менее, после расчета коэффициентов можно генератор нагрузки применить к отдельным уровням навеса.
Давление ветра
Fw,max = cf · qp(ze) · Aref = 0,3 · 0,5 · 15 · 12cos 5° = 27,10 kN
Подсос ветра
Fw,min = cf · qp(ze) · Aref = -0,5 · 0,5 · 15 · 12cos 5° = -45,17 kN
Согласно пункту 7.5., силы трения в нашем примере не учитываются.
Наибольшие ординаты параболической нагрузки
Во внимание принимается только положение нагрузок 2 и 5, так как благодаря симметрии нет необходимости учитывать положение нагрузок 3 и 6.
Ординаты нагрузки
q(Pressure) = 27,1123 = 6,775 кН/м = 0.45 кН/м²q(Suction) = -45.17123 = -11,293 кН/м = -0,75 кН/м²
На основе данных ординат нагрузок потом можно с помощью квадратичного уравнения вычислить, например в программе Excel, переменные значения нагрузки в положении x, а затем экспортировать их в программу RFEM или RSTAB.
Ветровая нагрузка, давление ветра
-
Классификация поверхностей для определения общего коэффициента давления
-
Положение нагрузки от результирующей силы ветра
-
Пример
-
Ветровая нагрузка, подсос ветра
-
Конструкция навеса желоба
Ветровая нагрузка, подсос ветра
-
Классификация поверхностей для определения общего коэффициента давления
-
Положение нагрузки от результирующей силы ветра
-
Пример
-
Ветровая нагрузка, давление ветра
-
Конструкция навеса желоба
| [1] | EN 1991-1-4: Eurocode 1: Actions on structures — Part 1-4: General actions — Wind actions |
Оценка плотности и высоты лесного полога — ArcMap
Доступно с лицензией 3D Analyst.
- Создание набора данных и слоя LAS
- Альтернативный рабочий процесс
Ниже приведены шаги для расчета плотности и высоты навеса.
с лидарных точек. Во-первых, вам нужен лидар, который был засекречен
в наземные возвраты (голая земля) по сравнению с неназемными возвратами. Этот
тип классификации точек обычно выполняется по вашим данным
провайдер. Во-вторых, нужно учитывать, когда лидар был
собранных и тип растительности в районе исследования. Если здесь
много лиственных деревьев и проведен сбор
осенью (без листьев) расчет плотности не выполняется
работай.
Создайте набор данных LAS и слой
Набор данных LAS можно использовать для расчета плотности и высоты растительного покрова. Используйте инструмент геообработки Создать набор данных LAS, чтобы сослаться на лидарные данные формата LAS. См. раздел «Альтернативный рабочий процесс» в конце этой темы, если вы работаете с данными ASCII или хотите работать с точками на основе LAS в базе геоданных. После создания набора данных LAS используйте слой для определения свойств фильтра, которые будут контролировать, какие точки в файлах LAS будут использоваться. Чтобы создать слой, добавьте набор данных на карту или запустите инструмент геообработки Создать слой набора данных LAS. При определении слоя выберите все возвраты, затем сосредоточьтесь на кодах классов. По сути, мы будем работать с двумя наборами точек: на земле и над землей. Точки LAS обычно классифицируются по схеме, определенной в стандарте LAS 1.1, изложенном Американским обществом фотограмметрии и дистанционного зондирования (ASPRS):
ASPRS Standard Lidar Point Classes
| Classification Code | Classification type | |||||||
|---|---|---|---|---|---|---|---|---|
0 | Never classified | |||||||
1 | Unassigned | |||||||
2 | Грунт | |||||||
3 | Низкая растительность | |||||||
4 | Medium Vegetation | |||||||
5 | High Vegetation | |||||||
6 | Building | |||||||
7 | Noise | |||||||
8 | Код модели | |||||||
9 | Вода 330002 10Reserved for ASPRS Definition 11 Reserved for ASPRS Definition 12 Overlap 13–31 Зарезервировано для определения ASPRS |
Примечание:
используйте эти коды.
К сожалению,
есть еще некоторая неясность. Например, класс 2 является заземлением, но
ключевые точки модели, определенные классом 8, могут также представлять наземные измерения. Ключевыми моментами модели являются
специальный набор измерений, которые фиксируют некоторые желаемые детали, которые никогда не следует прореживать. Ли ты
их наличие зависит от того, как обрабатывались данные. Если вы не знаете,
укажите оба класса. Если окажется, что нет ключа модели
точки, это не повредит. У растительности похожая проблема. Иногда,
продавцы помещают все, что находится над землей, в класс 1, потому что
они не проводили более детальную классификацию по ним. Так
если вы не уверены в особенностях классификации ваших данных,
выберите неземные точки, используя классы 1, 3, 4 и 5. Это
разумная уловка, чтобы получить очки растительности. Обратите внимание, если
здания или другие искусственные неземные объекты относятся к классу 1,
вы их тоже получите, и они исказят результаты
в некотором роде.
Расчет плотности
Наиболее эффективным способом определения плотности растительного покрова является разделить изучаемую территорию на множество небольших одинаковых по размеру единиц посредством растеризация. В каждой растровой ячейке вы сравниваете количество надземных точек с общим количеством точек.
Здесь важно помнить, что определить подходящий размер ячейки для этого анализа. Это должен быть как минимум в четыре раза больше среднего расстояния между точками. Вы можете идти больше, но не меньше с размером ячейки.
- Используйте инструмент геообработки LAS Point Statistics As Raster для надземных точек с опцией POINT_COUNT.
- Преобразуйте все результирующие ячейки NoData в 0, чтобы последующие операции рассматривали ячейку без точек как 0. Это достигается с помощью инструмента геообработки IsNull, за которым следует инструмент геообработки Con.
- Повторите шаги 1 и 2 с наземными многоточечными лидарами.
- Сложите растры надземной поверхности и растры обнаженной земли вместе, чтобы получить общее количество на ячейку с помощью инструмента геообработки Plus.

- Все растры, которые вы создали до сих пор, являются длинными типами данных. Вам нужен один растр с плавающей запятой, чтобы получить выходные данные с плавающей запятой от инструмента геообработки Разделить, который вы будете использовать на шаге 6. Чтобы создать растр с плавающей запятой, используйте выходной растр из инструмента геообработки Плюс в качестве входных данных для инструмента геообработки Плавающий.
- Теперь используйте инструмент геообработки Разделить, чтобы сравнить растр надземного подсчета и растр общего подсчета с плавающей запятой. Это дает вам соотношение от 0,0 до 1,0, где 0,0 означает отсутствие кроны, а 1,0 очень плотную крону.
На следующем изображении представлена плотность растительного покрова. На самых светлых участках почти нет растительности. Это области, где большой процент лидарных снимков мог видеть землю. Темно-зеленые области, где лидар также не смог проникнуть на землю, указывают на более густой растительный покров.
Расчет высоты
Чтобы определить высоту навеса, вам нужно будет вычесть поверхность голой земли (DEM) из первой возвращаемой поверхности (DSM). Выполните действия, описанные в разделе Создание растровых ЦМР и ЦМР из больших коллекций точек лидара, чтобы сгенерировать эти две поверхности.
- После того, как вы сгенерировали первые растры возврата и обнаженной земли, используйте инструмент геообработки Минус, чтобы определить разницу между этими двумя наборами растровых данных. Результаты разности представляют собой над лесом высоту полога.
На изображении ниже показана высота над землей. Он варьируется от синего (от небольшого до нулевого) до оранжевого, который является самым высоким.
Лидар можно использовать для расчета плотности и высоты растительности. Это полезно для различных целей, включая оценку биомассы и углерода, а также управление лесным хозяйством.
Альтернативный рабочий процесс
Если ваши лидарные точки имеют формат ASCII, вам необходимо иметь два
наборы файлов: содержащие только наземные точки и
содержащие только неосновные точки.
Если ваши файлы организованы
таким образом, вы должны загрузить точки в многоточечную функцию
классы в базе геоданных с помощью ASCII 3D To
Инструмент геообработки классов пространственных объектов. Запустите его дважды, один раз для
каждый набор файлов. Затем запустите Point To
Инструмент геообработки растров как замена LAS
Инструмент статистики точек, используемый в рабочем процессе на основе набора данных LAS.
изложено выше.
Если у вас есть данные в формате LAS, но вы предпочитаете загружать только точки интересующие вас объекты в базу геоданных и работайте с ними, используйте LAS. Инструмент многоточечной геообработки дважды. Сделайте это один раз, чтобы загрузить наземные точки, а затем еще раз, чтобы загрузить не наземные точки. Затем запустите точка на Растровая геообработка инструмент в качестве замены инструмента статистики точек LAS, используемого в Рабочий процесс на основе набора данных LAS, описанный выше.
Рассчитать навес рядом с вами
Что такое фонарь?
Если смотреть сверху, крон деревьев представляет собой «слой листьев, ветвей и стволов деревьев, покрывающий землю» (Treeconomics, 2017).
Это полезная мера, поскольку площадь древесного покрова может быть связана с преимуществами, предоставляемыми деревьями, такими как тень или фильтрация загрязнения воздуха.
Городские деревья приносят много пользы нашим городам, например улучшают качество воздуха, охлаждают наши улицы и улучшают наше самочувствие. Но не у всех нас на пороге столько деревьев, сколько у других, и некоторые из деревьев, которые у нас есть, не зарегистрированы должным образом.
Доступ к городским деревьям на наших улицах, в парках и зеленых насаждениях значительно различается в зависимости от того, где вы живете: уровень покрытия кронами деревьев колеблется от 3% до 45% в разных городах.
Чтобы помочь понять текущий уровень древесного покрова, Forest Research в партнерстве с Trees for Cities, Brillianto и Woodland Trust призывает добровольцев составить карту древесного покрова на уровне округов по всей Великобритании. На карте используется инструмент, разработанный Treeeconomics в сотрудничестве с американской командой i-Tree, которая адаптировала i-Tree Canopy для использования в Великобритании.
Проект особенно заинтересован в записи городского навеса, но он охватывает все части Великобритании.
Как вы можете помочь
Мы призываем наших сторонников помочь завершить карту, которая в настоящее время завершена примерно на 65%. Если мы сможем завершить его вместе, это предоставит первые полные общебританские данные о покрытии купола на уровне прихода местного совета. Эта информация будет иметь неоценимое значение для руководства усилиями по посадке и защите деревьев.
Принять участие и записать навес там, где вы живете, очень просто. В проекте используется бесплатный онлайн-инструмент под названием i-Tree Canopy, который обеспечивает научно обоснованный и последовательный подход к оценке растительного покрова. Это быстрое и простое в использовании устройство, позволяющее выполнить оценку покрытия навеса муниципального отделения примерно за 45 минут.
Принять участие
Для получения дополнительной информации смотрите наш вебинар.
Что мы можем сделать с этой информацией?
Информация о кроне деревьев может использоваться советами для целенаправленной посадки и защиты деревьев. Местные сообщества также могут использовать эту информацию, чтобы потребовать больше деревьев и лучшую защиту. Когда национальная карта будет завершена, данные помогут нам лучше понять распределение растительного покрова и поддержать управление городскими деревьями.
Данные будут полностью доступны для общественности и позволят сообществам понять, как обстоят дела в их районе по сравнению с другими округами по всей Великобритании. Это снабдит наших сторонников информацией, необходимой для обсуждения целей купола с местными советниками или офицерами деревьев.
Защита деревьев и леса
Что делают для нас городские деревья
Они озеленяют наши города. Они очищают наш воздух. Они борются с влиянием климата.

