- Раковины над стиральной машиной. Хиты и классика
- Какие бывают раковины-кувшинки для стиральных машин
- с встраиваемой раковиной: идеальные размеры и преимущества
- Раковина плоская над стиральной машиной с боковым сливом
Раковины над стиральной машиной. Хиты и классика
04/02/20
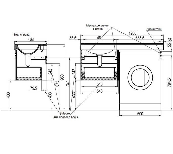
В современном мире без стиральной машины не обойтись. И желательно, чтобы установлена она была в ванной комнате. Вот только как это сделать в условиях ограниченного пространства? Можно выбрать раковину для установки над стиральной машиной. Метод конструктора и монтаж одного предмета над другим позволяет рачительно расходовать каждый сантиметр. Но главное – без ущерба для функционала дает возможность разместить оба изделия там, где это сложно. Однако стоит понимать, что раковины, расположенные непосредственно над стиральной машиной, мельче обычных, а значит смеситель придется выбирать пристрастнее, чтобы избежать разбрызгивания воды. И если обычно установочная высота раковины 85см, то раковина над стиральной машиной монтируется на 10-20 сантиметров выше, что может быть преимуществом для высоких людей и неудобством для детей и членов семьи невысокого роста.
Самый простой вариант – раковина-кувшинка.
Правда, современные кувшинки удивляют не только элегантным внешним видом, но и функционалом. Слив может быть спрятан под декоративной накладкой или съемной мыльницей, а сифон расположен сзади. В таком случае стиральную машину выбирают максимально узкую, а раковина устанавливается непосредственно над ней. Интересно, что раковины такого класса часто делают из искусственного камня, а иногда еще и с возможностью исполнения в цвете.
Любая комната мечтает быть красивой. И ванная – не исключение. А достаточное количество поверхностей для размещения необходимых предметов – львиная доля успеха в деле порядка и чистоты. Раковина со столешницей требует больших габаритов, чем одиночная раковина над стиральной машиной, но и обеспечивает большим функционалом.
Самый практичный и объемный вариант – интеграция стиральной машины с мебелью, когда раковина «берет под крыло» и стиральную машину, и тумбу. Позволяет скрыть технологичные подробности. На удлиненной столешнице можно расставить косметические средства. А тумба будет работать системой хранения предметов. Например, косметику, фен, бритву, маникюрный набор можно убрать в один ящик или на полку. Банные полотенца – в другой. Это готовое решение, позволяющее минимизировать беспорядок в ванной комнате.
Раковина Эстет Lea 60х54,5 с мыльницей для установки над стиральной.
..
страница товара
Раковина Andrea Corolina 60*60 для установки над стиральной машиной…
страница товара
Полувстраиваемая раковина Эстет Даллас 115,2*48,2 R для установки н…
страница товара
Раковина Эстет Lea 60*60 с мыльницей для установки над стиральной м.
..
страница товара
Полувстраиваемая раковина Эстет Даллас 120,2*48,2 R для установки н…
страница товара
14/04/2023
Фронтальная панель-купе Onika Одио Нова 150
Верный способ декорирования
пространства под ванной.
Конструкция устойчивая,
прочная, износостойкая
Читать дальше >
12/04/2023
Перегородка ABBER Immer Offen AG64100B Walk-in 100*200
Выполнена в виде арки для
максимума пространства и
света, позволяет воздуху
свободно циркулировать
Читать дальше >
Какие бывают раковины-кувшинки для стиральных машин
На современном рынке можно встретить огромное количество моделей раковин, разобраться в которых не так уж просто.
Большой популярностью пользуется раковина для стиральной машины. Для чего она разработана и какой бывает – рассмотрим подробнее.
Назначение
Ванные комнаты в квартирах не отличаются большим метражом. Они, как правило, маленькие и тесные. Иногда, даже сложно разместить в них необходимые удобства и бытовую технику. Но не стирать же из-за этого вещи вручную?! Если ванная комната слишком маленькая, решением может стать установка раковины для стиральной машинки – раковины-кувшинки. Этот предмет необходим в любом санузле, а благодаря особенностям своей конструкции, удастся сэкономить важные сантиметры площади. Она разработана таким образом, чтобы можно было с легкостью и саму раковину установить, и стиральную машину под ней разместить.
Цвет и форма
Форма раковин-кувшинок может быть самой разнообразной: квадратной, круглой, прямоугольной, с закругленными краями. Цвет этих моделей стандартно белый, так как большинство стиральных машин также выпускается в белом цвете.
Теоритически, место под стиральную машинку может быть заполнено чем-то другим. Например, можно установить корзину для грязного белья, небольшой шкафчик для банных мелочей или полочку. Но в таком случае лучше остановить свой выбор на врезных моделях, которые будут смотреться боле органично.
Но, для установки раковины над стиральной машиной лучше рассмотреть вариант подвесной раковины. Дизайн такого комплекта будет выглядеть очень стильно.
Размеры раковин
При выборе раковины нужно учитывать важную особенность: ее размеры должны полностью соответствовать имеющейся или приобретаемой стиральной машинке. Исходя из этого, стандартным размером раковин-кувшинок считается квадратная форма 60х60 см или 64х60см, которая отвечает стандартному размеру стиральной машинки.
Если размеры последней отличаются от стандарта, компания «Гонец» разработала несколько дополнительных моделей раковин. Важно помнить, что размеры специальной сантехники должны полностью покрывать машинку и иметь небольшие выступы в 2-5 см.
Это нужно для того, чтобы вода не попадала на технику, и не привела к замыканиям или поломкам.
Глубина
Учитывайте и глубину раковины. Чем она больше, тем удобнее пользоваться раковиной-кувшинкой и тем проще избежать брызг. Однако не все модели имеют достаточную глубину. Почему? Потому что учитывается еще и высота техники, привязанная к стандартам. Обычно высота умывальника составляет 80см, а высота раковины-кувшинки на стиральной машине может достигать более 1м, так как только высота стиральной машинки составляет 85см, а раковины – 16см. Поэтому если подобрать несоответствующие модели, раковина может быть установлена слишком высоко, и ею будет неудобно пользоваться.
Материалы для раковины-кувшинки
Раковины для стиральной машинки производятся из керамики, винила и даже литьевого мрамора. Наибольшей прочностью обладает мрамор, поэтому такие раковины отличаются долгим сроком эксплуатации. Винил относится к пластику, поэтому раковины, изготовленные из этого материала, являются легкими.
Санфаянс же считается распространенным и качественным материалом для производства сантехники. Раковины, выполненные из фаянса, служат долго, обладают достаточной прочностью, хорошо чистятся и не впитывают грязь.
Что касается слива, то он может быть как горизонтальный, так и вертикальный. В первом случае сифон размещается вдоль стены в горизонтальном положении на некотором расстоянии от стиральной машинки. Во втором случае сифон устанавливается сразу под сливом и над стиральной машинкой, поэтому в случае протечек есть риск замыкания.
Раковина-кувшинка от компании «Гонец»
Наша компания вот уже 20 лет занимается выпуском раковин-кувшинок на отечественный рынок. Это модель единственной прошла соответствующие испытания и награждена сертификатом качества. Все модели имеют несколько преимуществ:
1. Надежность. При профессиональной установке раковина имеет долгий срок службы и защитит технику от попадания воды.
2. Универсальность. Разные габариты сантехники позволяют подобрать раковину для стиральной машинки любого размера.
3. Дизайн. Разнообразие форм позволит подобрать раковину для любого интерьера.
4. Эргономичность. Грамотное сочетание техники и сантехники будет органично смотреться в любом интерьере.
Чтобы сделать заказ, свяжитесь с нами по указанным на сайте телефонам.
Каталог наших раковин
Просмотров: 5590
Столешница для прачечнойс встраиваемой раковиной: идеальные размеры и преимущества
Столешница для прачечной с встраиваемой раковиной: идеальные размеры и преимущества
Планируете ли вы установить столешницу с встраиваемой раковиной в прачечной ? В этой статье вы узнаете о преимуществах его наличия и идеальных размерах, чтобы спроектировать свой собственный.
Что касается материала столешницы , фартука и краевого профиля , выбор будет зависеть от вашей кухонной столешницы.
Если ваша прачечная находится рядом с кухней и вы можете позволить себе использовать те же настройки для столешницы для прачечной, вам следует это сделать.
Если вы предпочитаете что-то подешевле, не проблема. Вы можете обратиться к статьям о кухне по ссылкам выше, чтобы найти лучший выбор для прачечной.
Page Contents:
Преимущества столешниц с встраиваемыми или встраиваемыми раковинами в прачечных
В качестве альтернативы отдельностоящим или настенным раковинам , столешницы с вставными или встраиваемыми раковинами из нержавеющей стали становятся все более популярными в прачечных.
Это более дорогой вариант, но он интересен дополнительным рабочим пространством и встроенными шкафами, которые вы получаете .
Столешницы для прачечной также делают прачечную более красивой и организованной .
Какой ширины должна быть столешница для прачечной?
Как можно больше, учитывая достаточно места для шкафов и бытовой техники.
В большинстве прачечных раковина находится рядом со стиральной и сушильной машиной .
Установите необходимую ширину станка (станков), проверив в руководствах по продукту его ширину и требуемые смещения по бокам. Прочтите о стиральных и сушильных машинах, если вы еще не выбрали свою.
Затем решите , будет ли столешница работать над станком(ами) . Если это так, вы получите еще больше рабочего пространства.
Просто убедитесь, что ваши приборы имеют фронтальную загрузку 9Тип 0008. Сушильные машины и комбинированные устройства всегда с фронтальной загрузкой, но есть два типа стиральных машин. Подробнее о стиральных машинах с фронтальной и вертикальной загрузкой читайте здесь.
Затем проверьте ширину стенки и удалите ширину, необходимую для машины (машин). Оставшийся размер будет равен размеру столешницы, если она не проходит над машиной (машинами), или той части, где будет встроена раковина, если это произойдет.
Идеальная высота и глубина столешницы для белья
Сплошная стойка над стиральной и сушильной машинами
Если столешница для белья выходит за пределы машины (машин), ее высота и глубина зависят от их размеров.
Проверьте высоту приборов , глубину и необходимые смещения и сделайте над ними столешницу.
Если вы хотите продолжение столешницы с одинаковой высотой и глубиной на всем протяжении, она будет становиться выше и глубже, чем рекомендуется для раковины.
В этом случае обратите внимание на расположение крана . С такой глубокой стойкой настенный смеситель будет слишком далеко от передней части стойки и, следовательно, неудобен в использовании.
Таким образом, для продолжения столешницы над прибором(ами) выберите смеситель для монтажа на столешницу , поместите раковину ближе к передней части стойки и оставьте пустое пространство позади смесителя.
В идеале сопло смесителя должно располагаться на расстоянии около 35 см / 14 дюймов от передней части стойки.
Так что большая глубина больше не проблема. А вот высота все же может быть, если вам или тому, кто будет часто пользоваться этой мойкой, мало.
Не волнуйтесь, если все там высокие, так как разница невелика.
Чтобы избежать этого и получить идеальные размеры для мойки, вы можете иметь две отдельные части , одну над машинами и другую со встроенной мойкой.
Столешница со стиральной и сушильной машинами или разделенная на две части
Если столешница не выходит за пределы машин или у вас есть две разные части, вы можете следовать стандартной высоте для отдельностоящих раковин: 90 см / 3 фута и сделать глубину от 65 см / 2 фута.
Также проверьте глубину мойки и оставьте не менее 7 см / 3 дюймов спереди и сзади, если ваш смеситель крепится к стене. Если вы предпочитаете смеситель на столешнице, оставьте за раковиной не менее 14 см / 6 дюймов.
Я надеюсь, что это руководство помогло вам спроектировать столешницу с идеальными размерами для вашей прачечной! Это не так просто сделать, поэтому, пожалуйста, оставляйте комментарии с любыми вопросами.
Чтобы завершить проект столешницы для прачечной, ознакомьтесь со статьей о вставных и встраиваемых раковинах для стирки .
Раковина плоская над стиральной машиной с боковым сливом
Раковина над стиральной машиной в ванной – это удобно и модно. Уже многие хозяева решили совместить, таким образом, эти два предмета мебели, но как это сделать правильно.
По-хорошему сразу возникает три вопроса: как установить раковину со стиральной машиной, какую стиральную машину выбрать и любая ли раковина подходит для такой установки? На последний вопрос ответить проще – вам потребуются специальные плоские раковины с боковым сливом, чтобы к нему можно было подключить специальный сифон. Начнем рассказ с них.
Исходя из названия, мойка с боковым сливом называется так из-за особого расположения сливного отверстия. В обычной мойке отверстие располагается по центру или ближе к центру; в раковине с боковым сливом отверстие расположено сбоку. Почему это делается? А для того, чтобы можно было прикрутить специальный сифон, чтобы он не мешал установке стиральной машины.
Какие модели снарядов мы имеем в виду?
- Кувшинка Quatro с плоским дном. Это современная прямоугольная раковина из фаянса. Сливное отверстие смещено в правый угол. Отверстие для смесителя расположено от центра. Высота раковины 14 см, а ширина с глубиной 60 см. Приобретая мойку, вы получаете в комплекте специальные крепления для нее. Цена $177.
- Компактная раковина с водяной лилией. Эта раковина тоже смещена, есть отверстие для смесителя и отверстие для перелива. Раковина имеет нестандартную форму. Изделие изготовлено из фаянса. Размеры Ш х Г х В — 53,50 х 56 х 14 см. Средняя цена — 124 доллара.
- Раковина Uni 50 Water Lily. Этот продукт имеет более привычную обтекаемую форму, хотя сливное отверстие у него тоже смещено в сторону. Отверстие для смесителя находится в центре. Размеры Ш х Г х В — 60 х 50 х 15 см. Купить раковину можно за 111 долларов.
- Раковина типа Mini Water Lily. Не миниатюрный представитель этой серии моек. Его размеры Ш х Г х В — 64 х 50 х 13 см.
Кто догадался дать ей такое имя, не ясно. Раковина изготовлена из фаянса, имеет отверстия для смесителя, имеет перелив. Стоит около 47 долларов.
Внешне Раковина Мини действительно выглядит маленькой, но ее реальные размеры соответствуют размерам стандартных кувшинок для стиральных машин.
Мойку вы, скорее всего, выберете не по цене, а по размеру и внешнему виду. В маленьких санузлах хрущевских квартир довольно сложно развернуться. Вы вспоминаете это высказывание, когда пытаетесь как можно удачнее втиснуть раковину со стиральной машиной между стеной и ванной. Мы сделаем это сейчас.
Как они устанавливаются?
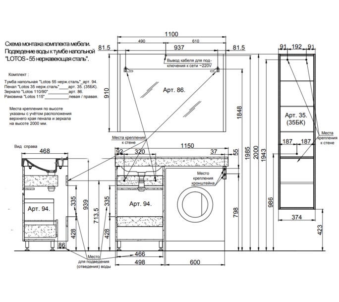
Процесс установки раковины над стиральной машиной практически не заметен. Главное, заранее все рассчитать и измерить. Очень важно выверить высоту раковины, рассчитать глубину, чтобы трубы не мешали стиральной машине. Также важно оставить зазор между раковиной и крышкой стиральной машины, достаточный для размещения специального сифона.
Важно, чтобы корпус сифона не касался крышки стиральной машины.
Учитывая эти нюансы, можно приступать к установке. Сначала сверлим отверстия в стене и устанавливаем крепления. Далее организуем вкладыш для коммуникаций стиральной машины. Не забудьте про влагостойкую розетку для стиральной машины в ванной, ей нужно уделить особое внимание. Далее монтируем раковину, сифон и смеситель. В последнюю очередь ставим и подключаем стиральную машину.
Мойка для раковины
Как вы уже догадались, обычная стиральная машина с фронтальной загрузкой не подходит для установки под мойку. Проблема в том, что обычная машина слишком высокая и широкая. Его высота может достигать 90 см, а представьте, что сверху еще будет раковина, да еще и с зазором. На такой высоте можно повесить раковину, но как тогда к ней домочадцы будут прыгать?
Приобретается специальная стиральная машина меньшей высоты под мойку. В нашей недавней публикации стиральная машина Candy под раковину мы как раз делали обзор этой техники, повторяться не будем.

Кто догадался дать ей такое имя, не ясно. Раковина изготовлена из фаянса, имеет отверстия для смесителя, имеет перелив. Стоит около 47 долларов.