- как включить, подключение комнатного термостата, а также видео о проблемах и неисправностях
- Котел лемакс тухнет вместе с запальником
- Как и почему тухнет газовый котел Лемакс: как его включить и произвести регулировку, а также подключение комнатного термостата
- Советы по устранению неисправностей в котлах Лемакс Премиум
- Почему тухнет газовый котел: причины и что делать, если гаснет запальник после включения у Лемакс, АОГВ, Данко, Атон +видео
- Запальник газового котла — решаем проблему с розжигом
- Возможные неисправности котлов Лемакс серии Премиум и способы их устранения
- Основные неисправности газовых котлов Лемакс
- Почему тухнет прибор
- Как включить (зажечь)
- Не запускается (зажигается)
- Почему растет давление
- Из-за чего падает давление
- Подключение комнатного термостата
- Полезное видео
- Заключение
- Не разжигается энергонезависимый котел
- Возможные поломки и их ремонт
- Котел с электронным управлением
- Выводы и полезное видео по теме
- 1. Слабо горит фитиль
- Почему горелка вообще может затухнуть?
- Основные причины затухания
- 4. Одноэтажное здание или верхний этаж
- 8. Неправильное расположение газового котла в помещении
- Почему тухнет газовый котел
- Что делать при затухании пламени
- Вопросы пользователей по ремонту котлов Лемакс
- Неисправности котлов Лемакс Премиум
- Эксплуатация, вероятные поломки и техническое обслуживание котла Лемакс Лидер
- Котел Лемакс тухнет и тухнет. Что за устройство у него, что там не работает? Системы отопления дачных и загородных домов
- котлов Lemax премиум серии. Напольные газовые котлы Что нужно знать перед покупкой котла Лемакс Премиум
- причин, по которым контрольная лампа котла не горит
- 8 причин, по которым ваш котел может выйти из строя
- Газовые котлы «Лемакс»: отзывы и рекомендации
- Котел Lemax premium 30 кВт. Котлы Lemax премиум-серии. Прием заказа в вашем городе
- Отопительный котел lemax. Газовый котел Lemax Premium. Обзор. Инструкция.Технические характеристики
- Котел Lemax Premium
- Котел Lemax Premium Device
- Характеристики котла Lemax Premium
- Котлы газовые стальные Lemax Premium Series 7.5 — 60
- Котел Lemax Premium Преимущества до 60 кВт
- Котлы газовые стальные Lemax Premium Series 70-100
- Преимущества котлов Лемакс Премиум до 100 кВт
- Котлы газовые стальные Lemax Premium Series N
- Комнатный термостат lemax
- Сопло турбины Lemax
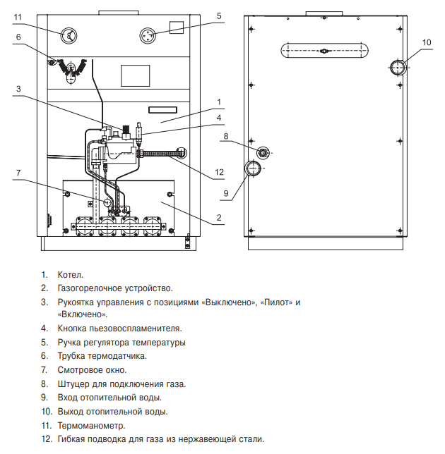
- Устройство котла с газовым горелочным устройством УГ
- Устройство котла с газогорелочным аппаратом ГГУ «Лемакс» на базе «710 Mini Sit» и инжекторной горелкой
- Устройство котла с газовым котлом ГГУ «Лемакс» на базе «630 евросит» и инжекторной горелкой
- ЦЕПЬ УСТАНОВКИ СИСТЕМЫ ОТОПЛЕНИЯ
- МОНТАЖНАЯ СХЕМА ДЫМОХОДА КОТЛА
- Устройство газового котла Lemax Premium
- Котел Lemax Premium
- Газовый котел Lemax premium 7.5. Напольные газовые котлы. Памятка. Что нужно знать перед покупкой газового котла
как включить, подключение комнатного термостата, а также видео о проблемах и неисправностях
Газовые котлы Лемакс составляют серьезную конкуренцию европейским аналогам.
Они собраны из запчастей, изготовленных признанными лидерами в производстве теплотехники — фирмами Vaillant, Sit и прочими известными производителями.
При отличном качестве, стоимость котлов Лемакс в два и более раз ниже, чем у «европейцев».
В основном, это достигается путем исключения из конструкции всех дополнительных устройств и узлов, оставлены только самые необходимые элементы.
Это положительно сказывается на работоспособности агрегатов, снижает частоту поломок или отказов, но некоторые неисправности все же случаются.
Содержание статьи
Основные неисправности газовых котлов Лемакс
К наиболее часто встречающимся неисправностям можно отнести:
- Утечка газа. Немедленно открыть окна, перекрыть подачу газа, отключить котел и вызвать работников газовой службы.

- Цвет пламени красноватый, языки удлиненные и коптят. Слабая тяга или засорение горелки. Прочистить дымоход и горелку, исправить положение трубы.
- Самопроизвольное отключение основной горелки. Проблемы с дымоходом или терморегулятором.
- Отсутствует циркуляция воды. Если имеется насос, причина кроется в нем. Если использована естественная циркуляция, надо исправить конфигурацию трубопроводов, придав им правильный уклон.
- Отключение котла. Обычно происходит из-за прекращения подачи газа.
Список возможных неисправностей можно продолжать долго, но смысла в этом нет, поскольку каждая ситуация требует отдельного рассмотрения.
Почему тухнет прибор
Причин затухания горелки может быть несколько:
- Прекращение подачи газа. Отключить котел, дождаться возобновления подачи.
- Нестабильное или отсутствующее напряжение в сети электропитания (для энергозависимых котлов Лемакс).
- Отказ или срабатывание датчика тяги.
Надо проверить, есть ли она, не забился ли дымоход. Иногда помогает зачистка контактов датчика. - Контакты термопары окислились и не замыкаются. Следует почистить из мелкозернистой наждачной бумагой.
- Обратная, недостаточная или избыточная тяга. На все ситуации датчик тяги реагирует отключением горелки.
Проблемы с тягой наиболее свойственны энергонезависимым установкам, где от нее зависит стабильность работы агрегата.
Если тяга слишком слабая, датчик отключает горелку из-за возможности задымления помещения.
Избыточная тяга опасна возможностью срыва пламени на горелке, что спровоцирует подачу газа в помещение с непредсказуемыми последствиями. Поэтому увеличение тяги против заданного значения также является аварийным случаем, приводящим к остановке котла.
Как включить (зажечь)

Порядок действий:
- Открыть крышку, обеспечив себе доступ к регулятору и кнопке пьезорозжига.
- Повернуть регулятор против часовой стрелки, что переведет котел в положение «включено».
- Утопить регулятор до упора и удерживать его в таком положении, одновременно нажимая кнопку пьезорозжига.
- После того, как появится пламя на запальной горелке, кнопку можно отпустить, но регулятор необходимо удерживать еще около минуты.
ВАЖНО!
Если попытка разжечь котел была неудачной, повторить ее можно только через 1 минуту, не ранее.
Не запускается (зажигается)
Розжиг агрегата производится по определенной схеме. С первого раза он запускается далеко не всегда, и это вполне нормально. Но, если после многократных попыток котел не разжигается, необходимо проверить состояние узлов, ответственных за розжиг.
Возможными причинами могут быть:
- Выход из строя электронной или механической системы розжига.
Надо заменить систему, или прочистить контакты термопары. - Пропало напряжение в сети электропитания (для энергозависимых агрегатов).
- Закрыт вентиль на трубе подачи газа.
- Давление газа в системе не соответствует номинальным показателям.
- Засорились форсунки главной горелки. Необходимо прочистить их и запустить котел.
Все эти причины являются наиболее распространенными, но далеко не единственно возможными. Любая неисправность в системе может отрицательно повлиять на розжиг котла.
ОБРАТИТЕ ВНИМАНИЕ!
Если перепробованы все варианты, но проблема не решена, надо вызывать мастера из сервисной организации.
Почему растет давление
Возрастание давления — серьезная и опасная ситуация. Рост давления в системе может означать только увеличение количества воды.
Это происходит из-за расширения теплоносителя при нагреве. Любая жидкость несжимаема, поэтому увеличение ее объема может привести к разрыву теплообменника, либо, в самом серьезном случае, спровоцировать взрыв.
Для исключения подобной возможности в конструкции котлов применяют расширительный бак. Он принимает в себя лишний объем воды, компенсируя его увеличение при нагреве.
Возрастание давления чаще всего свидетельствует о неполадках в состоянии расширительного бака. Его конструкция состоит из емкости и эластичной мембраны, установленной примерно посередине.
Когда жидкость начинает прибывать, мембрана прогибается и дает место для лишнего количества воды
.При уменьшении объема она возвращается в прежнее положение. Если мембрана порвана или недостаточно прочно закреплена на стеках расширительного бака, теплоноситель заполнит весь объем емкости.
При расширении воде некуда будет уходить, что спровоцирует постоянное возрастание давления. Решение проблемы заключается в восстановлении состояния мембраны или замене расширительного бака на другой, исправный экземпляр.
Из-за чего падает давление
Падение давления (котел гаснет) свидетельствует о появлении утечек.
Необходимо проверить состояние трубопроводов, резьбовые соединения, прокладки и прочие внешние элементы системы отопления. Если никаких видимых повреждений не имеется, следует искать неполадки в котле.
Основным проблемным элементом может быть теплообменник. Сварные соединения иногда дают трещины или разрываются из-за частых перепадов температуры. Секционные чугунные теплообменники, используемые на мощных напольных моделях, являются факторами риска на соединениях секций.
Кроме того, возможно срабатывание клапана сброса давления или заклинивание его в открытом состоянии.
Резьбовые соединения патрубков также могут потерять герметичность из-за пересыхания или разрушения прокладок, присоединения не по резьбе и т.п. Все обнаруженные неполадки устраняются в соответствии с их спецификой.
Подключение комнатного термостата
Комнатный термостат — удобное и полезное устройство, позволяющее регулировать температуру воздуха, а не теплоносителя в отопительной системе.
Датчик, установленный по умолчанию, следит за температурой ОВ на выходе.
Это не дает корректной картины состояния микроклимата в помещении. Например, при повышении внешней температуры в комнате становится жарко.
Но датчик не может этого отследить, а температура ОВ находится в заданных режимом рамках, поэтому с точки зрения системы все идет нормально, в соответствии с настройками котла.
Если используется комнатный термостат, горелка будет отключаться гораздо раньше, что улучшит микроклимат в комнате и значительно сократит расход газа.
Для подключения комнатного термостата надо установить собственный элемент котла на максимальную температуру.
Он будет работать только в качестве ограничителя при перегреве. Внешний узел подключается одним концом к блоку автоматики, а другим — к термостату котла. По умолчанию между контактами установлена перемычка, которую надо снять и присоединить термостат.
ВАЖНО!
Необходимо использовать соответствующие марки, например — CEWAL RQ10.
Полезное видео
В данном разделе вы сможете более подробно ознакомиться с тем, как включить котел и почему тухнет фитиль:
Заключение
Газовые котлы Лемакс в большинстве представляют устройства исключительно механического действия, что существенно сокращает список возможных неисправностей.
Большинство проблем возникает из-за засорения жиклеров горелки сажей, образования наслоений в дымоходе и прочих подобных ситуаций.
Энергозависимые установки нередко страдают из-за перепадов напряжения, что резко отрицательно отражается на работоспособности платы управления.
В целом, если для котла созданы нормальные условия, своевременно производится чистка и техосмотр, то никаких неполадок не будет.
Конструкция агрегатов Лемакс надежная, сборка производится под многоступенчатым контролем из импортных комплектующих, поэтому подавляющая часть всех отказов связана с неправильной настройкой или монтажом.
Вконтакте
Google+
Одноклассники
Котел лемакс тухнет вместе с запальником
Как и почему тухнет газовый котел Лемакс: как его включить и произвести регулировку, а также подключение комнатного термостата
Газовые котлы Лемакс составляют серьезную конкуренцию европейским аналогам.
Они собраны из запчастей, изготовленных признанными лидерами в производстве теплотехники — фирмами Vaillant, Sit и прочими известными производителями.
При отличном качестве, стоимость котлов Лемакс в два и более раз ниже, чем у «европейцев».
В основном, это достигается путем исключения из конструкции всех дополнительных устройств и узлов, оставлены только самые необходимые элементы.
Это положительно сказывается на работоспособности агрегатов, снижает частоту поломок или отказов, но некоторые неисправности все же случаются.
Основные неисправности газовых котлов Лемакс
К наиболее часто встречающимся неисправностям можно отнести:
- Утечка газа. Немедленно открыть окна, перекрыть подачу газа, отключить котел и вызвать работников газовой службы.
- Цвет пламени красноватый, языки удлиненные и коптят. Слабая тяга или засорение горелки. Прочистить дымоход и горелку, исправить положение трубы.
- Самопроизвольное отключение основной горелки. Проблемы с дымоходом или терморегулятором.
- Отсутствует циркуляция воды. Если имеется насос, причина кроется в нем. Если использована естественная циркуляция, надо исправить конфигурацию трубопроводов, придав им правильный уклон.
- Отключение котла. Обычно происходит из-за прекращения подачи газа.
Список возможных неисправностей можно продолжать долго, но смысла в этом нет, поскольку каждая ситуация требует отдельного рассмотрения.
Почему тухнет прибор
Причин затухания горелки может быть несколько:
- Прекращение подачи газа.
Отключить котел, дождаться возобновления подачи. - Нестабильное или отсутствующее напряжение в сети электропитания (для энергозависимых котлов Лемакс).
- Отказ или срабатывание датчика тяги. Надо проверить, есть ли она, не забился ли дымоход. Иногда помогает зачистка контактов датчика.
- Контакты термопары окислились и не замыкаются. Следует почистить из мелкозернистой наждачной бумагой.
- Обратная, недостаточная или избыточная тяга. На все ситуации датчик тяги реагирует отключением горелки.
Проблемы с тягой наиболее свойственны энергонезависимым установкам, где от нее зависит стабильность работы агрегата.
Если тяга слишком слабая, датчик отключает горелку из-за возможности задымления помещения.
Избыточная тяга опасна возможностью срыва пламени на горелке, что спровоцирует подачу газа в помещение с непредсказуемыми последствиями. Поэтому увеличение тяги против заданного значения также является аварийным случаем, приводящим к остановке котла.
Как включить (зажечь)
Запуск котла Лемакс производится после заполнения системы положенным объемом воды (12-14 литров на каждый кВт мощности) и присоединения газового трубопровода.
Порядок действий:
- Открыть крышку, обеспечив себе доступ к регулятору и кнопке пьезорозжига.
- Повернуть регулятор против часовой стрелки, что переведет котел в положение «включено».
- Утопить регулятор до упора и удерживать его в таком положении, одновременно нажимая кнопку пьезорозжига.
- После того, как появится пламя на запальной горелке, кнопку можно отпустить, но регулятор необходимо удерживать еще около минуты.
Не запускается (зажигается)
Розжиг агрегата производится по определенной схеме. С первого раза он запускается далеко не всегда, и это вполне нормально. Но, если после многократных попыток котел не разжигается, необходимо проверить состояние узлов, ответственных за розжиг.
Возможными причинами могут быть:
- Выход из строя электронной или механической системы розжига.
Надо заменить систему, или прочистить контакты термопары. - Пропало напряжение в сети электропитания (для энергозависимых агрегатов).
- Закрыт вентиль на трубе подачи газа.
- Давление газа в системе не соответствует номинальным показателям.
- Засорились форсунки главной горелки. Необходимо прочистить их и запустить котел.
Все эти причины являются наиболее распространенными, но далеко не единственно возможными. Любая неисправность в системе может отрицательно повлиять на розжиг котла.
Почему растет давление
Возрастание давления — серьезная и опасная ситуация. Рост давления в системе может означать только увеличение количества воды.
Это происходит из-за расширения теплоносителя при нагреве. Любая жидкость несжимаема, поэтому увеличение ее объема может привести к разрыву теплообменника, либо, в самом серьезном случае, спровоцировать взрыв.
Для исключения подобной возможности в конструкции котлов применяют расширительный бак.
Он принимает в себя лишний объем воды, компенсируя его увеличение при нагреве.
Возрастание давления чаще всего свидетельствует о неполадках в состоянии расширительного бака. Его конструкция состоит из емкости и эластичной мембраны, установленной примерно посередине.
Когда жидкость начинает прибывать, мембрана прогибается и дает место для лишнего количества воды.
При уменьшении объема она возвращается в прежнее положение. Если мембрана порвана или недостаточно прочно закреплена на стеках расширительного бака, теплоноситель заполнит весь объем емкости.
При расширении воде некуда будет уходить, что спровоцирует постоянное возрастание давления. Решение проблемы заключается в восстановлении состояния мембраны или замене расширительного бака на другой, исправный экземпляр.
Из-за чего падает давление
Падение давления (котел гаснет) свидетельствует о появлении утечек. Необходимо проверить состояние трубопроводов, резьбовые соединения, прокладки и прочие внешние элементы системы отопления.
Если никаких видимых повреждений не имеется, следует искать неполадки в котле.
Основным проблемным элементом может быть теплообменник. Сварные соединения иногда дают трещины или разрываются из-за частых перепадов температуры. Секционные чугунные теплообменники, используемые на мощных напольных моделях, являются факторами риска на соединениях секций.
Кроме того, возможно срабатывание клапана сброса давления или заклинивание его в открытом состоянии.
Резьбовые соединения патрубков также могут потерять герметичность из-за пересыхания или разрушения прокладок, присоединения не по резьбе и т.п. Все обнаруженные неполадки устраняются в соответствии с их спецификой.
Подключение комнатного термостата
Комнатный термостат — удобное и полезное устройство, позволяющее регулировать температуру воздуха, а не теплоносителя в отопительной системе. Датчик, установленный по умолчанию, следит за температурой ОВ на выходе.
Это не дает корректной картины состояния микроклимата в помещении.
Например, при повышении внешней температуры в комнате становится жарко.
Но датчик не может этого отследить, а температура ОВ находится в заданных режимом рамках, поэтому с точки зрения системы все идет нормально, в соответствии с настройками котла.
Если используется комнатный термостат, горелка будет отключаться гораздо раньше, что улучшит микроклимат в комнате и значительно сократит расход газа.
Для подключения комнатного термостата надо установить собственный элемент котла на максимальную температуру.
Он будет работать только в качестве ограничителя при перегреве. Внешний узел подключается одним концом к блоку автоматики, а другим — к термостату котла. По умолчанию между контактами установлена перемычка, которую надо снять и присоединить термостат.
Полезное видео
В данном разделе вы сможете более подробно ознакомиться с тем, как включить котел и почему тухнет фитиль:
Заключение
Газовые котлы Лемакс в большинстве представляют устройства исключительно механического действия, что существенно сокращает список возможных неисправностей.
Большинство проблем возникает из-за засорения жиклеров горелки сажей, образования наслоений в дымоходе и прочих подобных ситуаций.
Энергозависимые установки нередко страдают из-за перепадов напряжения, что резко отрицательно отражается на работоспособности платы управления.
В целом, если для котла созданы нормальные условия, своевременно производится чистка и техосмотр, то никаких неполадок не будет.
Конструкция агрегатов Лемакс надежная, сборка производится под многоступенчатым контролем из импортных комплектующих, поэтому подавляющая часть всех отказов связана с неправильной настройкой или монтажом.
Вконтакте
Google+
Одноклассники
2019-02-28Юрий
Оцените статью автора:
2 оценок, среднее: 5,00 из 5
Загрузка…Советы по устранению неисправностей в котлах Лемакс Премиум
_______________________________________________________________________________
_______________________________________________________________________________
Прошу помощи, чтобы устранить такую неисправность.
В работе напольный газовый котел Лемакс Премиум 10 оснащенный автоматикой Eurosit 630. Когда его разжигаешь, основная горелка загорается хорошо, но минуя 10-12 секунд выключается. Повторная процедура изменений не приносит. Что произошло? В первую очередь проверяйте рабочие функции термопары и датчика тяги. Провести диагностику контактов цепи. Аккуратно разукомплектовать запальную горелку и очистить. Сделайте регулировку запальной горелки посредством снижения давления газа. Скорей всего, уменьшилась тяга, в следствие этого пилотная горелка не имеет достаточно воздуха при розжиге главного горелочного устройства. Основательно дымит факел и газогорелочное устройство ГГУ-15 горит беспрерывно, не угасая. Температура сверх определенной подняться не может, и в то же время факел стабильно горит. В приборе много копоти. Местные газовщики сказали, что это недостаток тяги. Как устранить проблему? Похоже, приток воздуха уменьшился. Необходимо сделать полноценную профилактику. Демонтировать горелочное устройство, очистить и вымыть горелку и жиклеры.
Теплообменник нужно почистить с внешней стороны. Скажите нам, пожалуйста, что за проблема, если агрегат коптит? Как следует поступить для решения этого вопроса? Вероятно, ослабла тяга в топочной камере. Можем посоветовать почистить дымоходный канал. Каким образом действовать, расскажите, если стальной котел Премиум 10 Nova не разжигается? Держу рукоятку управления, надавливаю на кнопку запальника, потом удерживаю ее около несколько минут, отпускаю, и агрегат тухнет. Похоже, трубка запальной горелки ГГУ-20 загрязнилась. В данной ситуации требуется выполнить техобслуживание. Также является окисление зажимов на датчике тяги. Нужно разъединить клеммы и зачистить их от окислов. Неисправность котла Лемакс Премиум 30 с газовым клапаном 710 Minisit. В момент нажатия на кнопку розжига, отсутствует подача газа на горелку. В чем причина? В случае, когда нажимается данная клавиша, газовое топливо подается только в запальник, на основное газогорелочное устройство его поступление не осуществляется. Провели монтаж данного прибора.
Мне не нравится переход с фитиля на основную горелку. Все время слышно два хлопка. Так должно быть? Предполагаем, что рекомендуем Вам настроить газовый клапан. У нас работает такой же аппарат оснащенный автоматикой Сит 820 Нова, который выключается при нагреве примерно 60 градусов. Объясните мне, как исправить поломку? Возможно, включается датчик по тяге. Есть необходимость сделать проверку дымохода. На даче установили данный агрегат. На днях он выдал сбой по нагреву на пятидесяти градусах, при этом факел усиленно продолжает гореть. Что случилось? Предполагаем, что произошло засорение трубки подачи газа от узла автоматики на горелке, а также горелочный жиклер. Имеется двухконтурный котел Премиум 40 с газовым клапаном Sit 820 Nova MV. Дня три назад произошла у него поломка. Агрегат гаснет, когда на запальное устройство попадает поток ветра. Месяц назад термопару менял, но результат нулевой. Какая причина? В случае запуска основного горелочного устройства, это приводит к уменьшению поступления газа на запальное устройство, а значит должна сработать автоматика.
рекомендуем Вам повысить подачу газа на запальное устройство. Подобное может случиться в основном в следствие спада давления в отопительной системе. Другим фактором может являться отсутствие тяги дымохода, если он смонтирован неверно. Можете рассказать, что за проблема, если в нашем доме не хочет функционировать этот прибор, главным образом, если на улице ветер и дождливая погода. Каким образом следует решить вопрос? В случае запуска запальной горелки, ЭМК клапан обязан сработать в течении двадцати секунд. Когда запальная горелка затухает, остановка в работе ЭМК возникнет в цикле 10-ти секунд, при этом будет слышно щелканье. Около 5 лет назад был установлен в доме газовый котел Лемакс Премиум 16. Домик небольшой, площадь не больше 35 метров. Как будто бы объем маленький, хотя теплоноситель не может нагреться больше пятидесяти градусов. В комнате находятся 2 радиатора на 12 секций. Никак не разберусь, как поднять температуру теплоносителя? Для исправления ситуации требуется установка циркуляционного насоса.
Иногда может снижаться давление в газопроводе. По какой причине при работе часто происходит перегревание котла? Существенный фактор — пропала циркуляция в отопительном контуре. Также возможно загрязнение фильтров либо большое скопление воздуха в системе отопления. Недавно возникла неполадка. Когда закрыть кран на холодную воду и начать открывать ГВС, то выходит вода из системы отопления. Что происходит? Видимо, неправильно функционирует подпиточный клапан системы отопления. Он дает двигаться воде по обеим линиям. Если присутствует давление жидкости в системе, то протекания в другую сторону возникнуть не должно. По какой причине агрегат шумит, булькает, а временами долго воет и сильно хлопает? Вода в системе весьма обогащена кислородом. В процессе нагревания происходит испарение воздуха, поэтому можно слышать шум. Если прибор отрегулирован некорректно, может выть клапан газа либо байпас. Сильные хлопки во время запуска указывают на неисправность запального механизма. Произвели в начале августа подключение напольного котла Лемакс 25.
Предположительно через 4 месяца возник сбой. Пытаюсь установить температурный режим, но он не удерживает его. Подскажите, в чем причина? Скорей всего, произошел сбой автоматики, и если температура повышается на 60 градусов, форсунки отключаются. Необходимо провести регулировку автоматики для корректной работы. Еще одной причиной может оказаться то, что Вы выбрали несогласованную мощность агрегата относительно площади отопления. Провел в середине этого года пуск этого агрегата. Сделали переналадку на сжиженный газ. За 3 месяца ушло практически девять кубов. В данный момент внутри аппарата чрезмерно много нагара, а также стала коптить главная горелка. От чего так происходит? Слишком много нагара в топке говорит о том, что плохо настроена горелка, и от этого газ сгорает не полностью. Также может быть некачественный состав смеси газа. Чтобы горелочное устройство не коптило, рекомендовано регулярно делать влажную чистку. Запустил в эксплуатацию данный прибор. При запуске газовая горелка ГГУ-15 зажигается и неожиданно погасает.
Я думаю, что отсутствует запальная искра. Как устранить эту поломку? Проверьте, слышится ли звук возникновения искры запальника, когда вынут кабель розжига. Если звука нет, рекомендуется сменить трансформатор розжига. Если звук есть, проведите замену электрода запальника либо газогорелочного устройства. Недавно выявилась неприятность с котлом Лемакс Премиум 20. Из него капает вода. Он исправно действовал в общей сложности 2 недели. Может, кто подскажет, по какой причине капает вода? Капанье может происходить вследствие высокого давления в системе. Может быть разрушение стенок теплообменника. Гидроудары точно так же могут оказаться фактором протекания в котле. На даче мы намерены произвести подключение данного аппарата. Объясните, какое заявленное давление на подачу газа (метан/пропан) данных аппаратов? В этом виде аппаратов показатель стандартного давления поступления газа для метана/пропана равняется 150.0/300.0 Паскаль. Мне установили этот агрегат. Вчера случилась с ним неполадка. Он включается, а дом не нагревает.
Что может случиться? Скорей всего, скопился воздух внутри радиаторов или присутствует накипь в теплообменнике. Его следует промыть. Эксплуатируем дома котел Лемакс Премиум 12.5. До этого утра работал исправно. Теперь в нем произошла неисправность. Аппарат усиленно перегревается. Как можно отремонтировать эту аварию? Предположительно, произошло засорение накипью, вследствие чего возникла закупорка протока. Просто необходимо очистить аппарат. Совсем недавно обнаружилась неисправность с отопительным котлом. В работе был в общей сложности 2 месяца. Затем он резко закончил набор установленной температуры. Может быть, кто объяснит, что происходит? У вас в системе давление газа меньше требуемого. Следует проверить газовый кран. Возможно, внутри избыток смазки. Просто уберите лишнее. Не могли бы Вы подсказать, как накачать расширительный бак? Расширительный бак подкачивается простым автомобильным насосом до нужного по инструкции давления. В основном средний объем 1-1,5 бар. До того, как накачать бачок, по регламенту нужно слить теплоноситель из котельного прибора.
Сливать можно через штуцер слива или при помощи водоразборного крана, закрыв подачу горячего водоснабжения. Напольный газовый котел Лемакс Nova Премиум 25 не хочет запускаться. Если держишь кнопку вкл/выкл, горелка нормально работает. Если отпустить кнопку, аппарат затухает. Какая причина неисправности? Похоже, неисправен термоэлектрический преобразователь либо проблемы с газовым клапаном. Также бывает уменьшение давления газа на входном трубопроводе. Иногда возникает недостаток напряжения платы управления. Напомните нам, какие сервисные работы нужно выполнять в случае переоснащения метана на пропан? Вначале требуется поменять форсунки основной горелки ГГУ-20. Затем поменять напряжение питания модулятора. И в конце провести настройку параметра наибольшего и наименьшего давления. Какой принцип действия имеет клапан защиты в отопительной системе? Данный компонент, который отрегулирован на требуемое давление, защищает отопительную систему. Запрещено применять клапан защиты для слива отопительной воды.
Часто поднимается давление системы отопления. В расширительном бачке давление понижаем до 2.1-2.3 атм. Может ли вода контура отопления проникает из системы ГВС? Увеличение давления в отопительной системе формируется следующими основными факторами. Неотрегулировано давление для расширительного бачка. Подпиточный кран протекает. Недавно возникла неполадка. Запуск производится тяжело. Запальник зажигается, а главной горелке огня нет. Скажите, пожалуйста, в чем причина? Судя по всему, неисправность узла розжига. Вам понадобится сделать технический осмотр агрегата и прочистить механизм поджига. Кто-нибудь может помочь прояснить ситуацию с дымоходной трубой? Скоро трое суток, как возникает возвратная тяга, из-за которой дым проходит прямо в комнату. Дымоход я изготовил сам. Он представляет собой трубу из стали. Возможно в расчетах допущено несоответствие.
Главной причиной является не верно изготовленная конструкция дымоходной трубы. Часто случается загрязнение сажей, которое ощутимо уменьшает его коэффициент полезного действия.
Кроме того, необходимо проверять вытяжные отверстия в жилых помещениях.
_______________________________________________________________________________
_______________________________________________________________________________
_______________________________________________________________________________
Управление системой отопления. Монтаж. Подключение. Перевод на другой тип газа. Устройства регулировки и приборы защиты.
Особенности. Установка и монтаж. Компоненты автоматики.
Технические параметры. Монтаж. Регулировка и проверка. Техническое обслуживание.
Регулировка и защита. Установка и монтаж. Настройка давления. Техобслуживание.
_______________________________________________________________________________
_______________________________________________________________________________
После запуска появилась неисправность. Не хочет включаться, работал два года, теперь загорелось все табло как при включение котла, когда идет режим самодиагностики потом щелкает, отключается на мили сек и опять включает всё табло.
Один раз включился, но выдает ошибку Е10 давление воды, хотя давление в системе 1.5 атм. Подскажите, что может быть?
В эксплуатации котел Baxi main four 240, отключается с ошибкой E35 (паразитное пламя). Подскажите что делать? Эксплуатируется первый сезон.
Установили и подключили котёл Baxi Fourtech 24 F. Какое давление холодной воды допускается на входе в аппарат для ГВС?
Котёл бош 6000 24 квт, одноконтурный со встроенным трехходовым клапаном. Не видит датчик бойлера, выдает ошибку. Подскажите, как сделать, чтобы ошибку не выдавал и работал нормально как на отопление, так и на бойлер?
Если отключить датчик протока ГВС, то может быть получится через меню L3 перепрограммировать в одноконтурный аппарат?
Установили котёл Arderia esr 2.13 ffcd. Если у меня немного падает давление теплоносителя за 2-3 дня на пару делений, может ли быть причина в неисправности трехходового клапана (утечек с радиаторов нет)?
В эксплуатации газовый котел Ардерия 2.35. Подскажите про уменьшение мощности.
Слышал что-то про модуляцию, скорость вращения вентилятора и прочее. Возможно ли реально уменьшить мощность?
_______________________________________________________________________________
Произвели монтаж и подсоединения котла Buderus Logano G234-WS-44 квт, автоматика Логоматик 4211. Отопление на баллонах без ГВС, также заменены жиклеры для сниженного газа. Зиму пережили, баллоны заменялись, все без проблем. Потом весной, когда температура на улице +16+18, котел стал отключаться на продолжительное время и при включении стал выдавать ошибку горелки на экране и загоралась красная лампочка-кнопка на передней стенке. Нажимали кнопку, повторно включали питание и все работало. Несколько раз это было, потом на лето отключили котел совсем, в чем может быть неисправность?
В одноконтурном Будерус 072, контур змеевика БКН нагревается тем же теплообменником что на отопление или таким же, как на 2х контурном который стоит на ГВС?
Подскажите, для настенных газовых котлов Vaillant, имеются ли реальные/фактические отличия в лучшую сторону в новом поколении turboTEC plus VU/5-5 по сравнению с /3-5?
Неисправность в работе котла, мигает зеленый сид (питание), в инструкции сказано, что сработала тепловая защита, зеленый индикатор мигает, даже если к плате ничего не подключено.
Как исправить? Проверил все SMD резисторы и транзисторы, все в порядке.
В эксплуатации газовый котел двухконтурный Daewoo Gasboiler с электронной панелью. При включении ГВС греется отопление, режим работы — летний. Снимал трехходовой клапан, грязи и выработки нет. Такое ощущение, что плата трехходовым клапаном не управляет. Как проверить?
Установлен и подключен настенный котел Электролюкс Basic Xi. Началась неполадка, что котел перестал видеть пламя и выключал подачу газа через 7-8 секунд. И после 3х попыток выдавал ошибку E1. Как можно исправить?
Неисправность котла Koreastar. Отопление работает отлично, горячая вода идет с перебоями, при включении крана горячей воды сначала идет холодная вода, потом кипяток. Через несколько секунд прохладная, потом опять кипяток. В чем может быть проблема?
Неисправность котла ферроли домипроджект 24 — настраиваю 60-70 градусов, он переходит на минимальное горение, не включается, не отключается. Повторный запуск нестабилен.
Никакой закономерности не выявляется. Что делать?
В эксплуатации газовый котел Junkers euroline, при включении горячей воды поджигает газ, затем тухнет и так несколько раз. Если включить при работающем отоплении, то нагрев воды включается сразу. Подскажите, пожалуйста, в чем может быть проблема?
Подскажите по регулировкам газового котла Навьен Асе 16 turbo пульт v1.3. Не получается настроить выбег вентилятора. Ставлю 30 сек., а все равно 2 мин. крутит.
Неисправность котла Оазис ZRT18. Агрегат запускается, зажигается газ, потом тухнет. Опять зажигается-тухнет (раза три так бывает). Потом разгорается и работает нормально. Никакой ошибки не выдаёт. В чём причина?
Неисправность газового котла Сеньор Дюваль — датчик давления воды показывает 0.0, индикатор мигает красным цветом, не греется горячая вода, но при этом давление воды в квартире хорошее. Как устранить неполадку?
В каком месте коаксиального дымохода должен быть установлен конденсатоотводчик? Котел wh3d c закрытой камерой сгорания, расположен на расстоянии 1м от стены.
Проблема запуска котла Westen Pulsar D. Пьезо розжиг срабатывает, но пламени нет, после треска ошибка E01. Вилку местами переставлял.
Напольный газовый котел Новелла заблокировался – зеленые лампочки на панели горят, и больше ничего не происходит. Как исправить?
Установлен и подключен газовый настенный котел Ariston, который совсем не держит давление: во время охлаждения нагретой воды давление падает до нуля, хотя вода регулярно набирается. Что с давлением?
Неисправность котла metropolis dgt 25 bf. Перестало работать ГВС, отопление работает, ошибку не выдаёт. Что посоветуете?
Подскажите, пожалуйста, как решить проблему. Котёл Солли Стандарт, при любой попытке включить его или горячую воду, выдает ошибку GS.
В эксплуатации котел Вольф. В последнее время он стал странно себя вести: в паузе между запусками раз пять включает горелку на одну секунду, а на дисплее выскакивает 70 градусов. Где искать неисправность?
ACV Wester Line работает очень нестабильно: часто уходит в аварию, при запуске издает характерный стук и глохнет, а временами все нормально.
Агрегат почти новый, что с ним не так?
В газовом котле Демрад перестал подаваться газ на горелку. Пьезо-элемент щелкает, но розжига нет. С газовой плитой все в порядке, газ есть. В чем причина?
Неисправность котла Kiturami world, периодически останавливается. Я протираю датчик пламени, и аппарат какое-то время хорошо работает, но вскоре все повторяется. Также он стал сильно коптить. Может, дело в коротком дымоходе, и надо его удлинить?
_____________________________________________________________
Ошибки котлов Nike Star, Eolo Star/Mini, Mythos. Неисправности котлов с возможностью автоматической разблокировки.
У меня котел в зимнем режиме систематически поднимает температуру до 80 градусов. Три раза вызывал мастера. Он сказал, что это у многих моделей имергаз, и предложил поставить программатора, но не факт, что поможет. Подскажите, как решить эту проблему и поможет ли этот программатора?
Модели 11.6; 17,4; 23.2; 29,3 кВт. Технические характеристики.
Элементы управления блока автоматики. Монтаж и техобслуживание. Неисправности и их устранения.
Установлен и запущен в эксплуатацию газовый котел АОГВ. Проблема с подачей горячей воды. Теплообменник промыли. Прошло меньше месяца, и вода опять не идет. Поставили фильтр на воду, но прошло время, и опять не идет горячая вода. Что может быть за поломка?
Монтаж и установка. Запуск и регулировка. Неисправности и способы их устранения.
Технические параметры. Монтаж и подключения. Запуск и порядок работы. Регулировки автоматики.
Неисправность котла Нева люкс 7023. С периодичностью 2 раза в месяц выдает ошибку Е7. Но после перезагрузки все-таки работает. Сейчас выдает ошибку Е6. Поработает 15 мин, и отключается. Что это может быть?
Конструкция и блок автоматики. Порядок розжига. Неисправности и ремонт.
Скажите возможно ли из-за слабого давления газа котел Атем житомир тухнет, происходит щелчок и тухнет. В чем проблема? Можно ли на время отключить автоматику и как?
Смонтировали газовый котел Лемакс КСГ-12,5 Премиум.
После отключения основной горелки через пару минут происходит щелчок, в чем причина подскажите?
Установлен и подключен газовый котел КС-Г, на 250 кв. м. При разжигании он не выключается, температура поднимается, если не ошибаюсь, автоматика Арбат 1. Не регулируется пламя — слишком большое. Что делать?
Установил газовый котел Маяк и подключил его. Работает он нормально. Но причина вот в чем. Когда он работает на единице он сильно пищит, если регулятор повернуть 2-7 писк пропадает. Подскажите, что может быть?
Установили и подключили газовый котел Данко с автоматикой Каре, на запальнике работает отлично, но стоит добавить мощность на горелке, он полностью затухает, вчера затухал в течение 5 минут, сегодня работает минут 20 и полностью тухнет. Кто сталкивался с такой проблемой?
В эксплуатации котёл газэко 18. При включении горячей воды падает давление в системе после подпитки давление доходит до 3 бар. Приходиться сбрасывать. В чём дело, как исправить?
В котле часто закипает вода, при этом он уходит в аварию по перегреву.
Теплообменник недавно мыли, система не забита. В чем дело?
Неисправность котла Rinnai 167 RMF. Недавно стал показывать ошибку 14. Как можно устранить поломку?
Котел Селтик дс нагревается до 45 градусов и стоит весь день не отключается и не нагревает батареи, иногда показывает ошибку а3. Как можно устранить данную проблему?
Упало давление горячей воды в котле Mora Top. В чем причина?
Газовый настенный котел Сеул перестал включаться из-за ошибки отсутствия розжига. Каким образом ее можно устранить? Что именно вышло из строя?
Почему тухнет газовый котел: причины и что делать, если гаснет запальник после включения у Лемакс, АОГВ, Данко, Атон +видео
В частных домах живёт значительная часть населения Российской Федерации. Согласно статистике, на индивидуальное домостроение приходится до половины всего возводимого жилья на территории страны. Прирост жилищного фонда за счёт многоквартирных домов, наоборот, сокращается. А одной из главных проблем, с которой приходится сталкиваться хозяевам частных домов, является отопление.
Самым дешёвым и эффективным способом обогреть помещение продолжает оставаться котёл на газу. И хотя его эксплуатация сегодня в значительной степени автоматизирована, иногда могут возникнуть проблемы. При внезапном отключении газовой горелки возникает вопрос, почему тухнет газовый котёл. Причины этого могут быть различными.
Причины
Существуют факторы, препятствующие нормальной работе отопительной системы на сжиженном газе. Ниже перечислены самые известные и ожидаемые причины затухания. Многие из них можно исправить самостоятельно, для устранения других придётся обращаться за помощью к специалистам. Однако осуществлять первичную диагностику причин в любом случае приходится хозяину.
Прежде чем устранять неисправности в работе, нужно определить причину её возникновения
Человек, имеющий представление о работе газового котла, при неисправности сам может произвести осмотр на предмет выявления неисправностей отопителя. К его большому удивлению, он может не найти никаких видимых поломок.
Газовая магистраль в норме, ветра нет, автоматика работает безотказно, но котёл не включается.
Обычно такое происходит при первом пуске после долгого перерыва. Весенний, летний и часть осеннего сезона котёл находится в режиме простоя. Ситуация усугубляется тогда, когда котёл расположен на даче, которая используется редко. Распространена ситуация, когда зимой на дачу приезжают 1 или 2 раза за зиму.
Попытка в сильный мороз запустить котёл, который стоит уже несколько дней, может закончиться неудачей
Причина – отсутствие тяги. А тяга пропадает потому, что сильно охлаждённые каналы дымохода не согреваются выхлопными газами котла. В результате отсутствует движение воздуха снизу вверх, которое обычно вытягивает продукты горения в трубу, а потом и наружу.
Проблемы с тягой
Проверить наличие тяги можно очень просто. Для этого возьмите обычную спичку, зажгите и поднесите к отверстию для наблюдения за пламенем горелки. Огонёк должен отклоняться вовнутрь, как будто его затягивает в котёл.
Если этого не происходит, тяга отсутствует.
Вообще отсутствие тяги – одна из самых распространённых причин, когда котёл не срабатывает. Виной тому может быть не только охлаждение вытяжных каналов, а ещё и засорение внешней трубы дымохода посторонними предметами:
- В отверстии трубы могут свить гнездо птицы. Период гнездования у большинства пернатых приходится на июнь месяц, когда котёл благополучно отдыхает. Особенно это характерно для труб с боковым расположением выходного отверстия.
- Если дымоходный канал сложен из кирпича, то ему грозит потенциальная опасность обрушения. Особенно актуально это для старых дымоходов либо некачественно сложенных.
- Копоть и сажа – очень распространённый вариант продуктов, засоряющих трубу. Они образуются естественным образом во время сгорания топлива. Газовый котёл продуцирует их намного меньше, чем твёрдотопливный, но они есть, и их нужно вовремя удалять. Для этого в конструкции дымохода предусмотрены лючки для прочистки. Обычно их располагают на внешней стене вентиляционного канала.
Это удобно, потому что при очистке сажа и копоть могут сильно загрязнить помещение. На улице же прочистить дымоход не проблема.
Копоть и сажа со временем засоряют трубу дымохода
Учтите, что нагаром копотью может быть засорён и сам котёл, тогда его нужно будет прочистить.
Снижение давления
Природный газ подаётся в жилые дома по магистралям. Главные направления в городе или сельской местности представлены трубами большого диаметра, от них идут трубопроводы поменьше, подводящие метан к жилым домам. Непосредственно в квартиру газ подаётся по трубе диаметром 3/4 дюйма. На каждом участке перехода давление газа снижается: у потребителя оно самое низкое и составляет всего лишь 0,05 кгс/см³. Но и этого давления вполне достаточно для работы котла, газовой печи, колонки и других приборов. Если бы оно было большим, существенно бы повысилась вероятность утечки, а это уже аварийная ситуация.
При низком давлении газа включить котёл оказывается невозможным
Но иногда давление в газовой магистрали падает ещё ниже отмеченных параметров.
Тогда механизм котла просто не сможет включить горелку. При этом фитиль по-прежнему будет гореть без проблем, ведь для его работы достаточно даже слабой газовой струйки.
Это важно! Что же касается современных газовых котлов с электронной начинкой (обычно они двухконтурные), то там стоят специальные датчики давления газа. Если плата управления не может считать требуемые показания датчика, она выдаёт запрет на включение горелки.
Блок управления газового котла
Блок управления достаточно чувствителен к давлению. С одной стороны, это обеспечивает безопасность, с другой стороны, в населённых пунктах с общей проблемой низкого давления агрегат может отказаться работать вообще. В этом случае возможна замена датчика на менее чувствительный. Но операцию это можно доверить только специалисту.
Замерзание оголовка
В холодные зимы, которые не редкость для Урала и Сибири, створ дымохода может быть перекрыт льдом. Ледяная масса намерзает на оголовке выводящей дым трубы из-за конденсации водяных паров.
Во время работы котла тёплый выхлоп разогревает воздушные массы вокруг оголовка, на нём формируется конденсат. После того как термостат выключает котёл по достижении заданной температуры, эта влага замерзает. Многократное повторение цикла включения-выключения котла приводит к образованию ледяных шапок.
Козырёк на трубе отопления повышает вероятность образования ледяной шапки
Также в группе риска те домовладельцы, трубы отопления которых прикрыты козырьками. Желание защитить трубу от осадков понятно, но использование козырька нежелательно и даже не регламентировано СНИПами. Дело в том, что снег задерживается на козырьке, слегка подтаивает и также создаёт ледяную массу, препятствующую прохождению отработанных газов.
Неисправности дымохода
Отчасти неисправности дымохода были рассмотрены выше. Чаще всего неисправности – это различного рода повреждения канала, по которому проходит дым, и трубы, которой он заканчивается.
Это важно! Помните, что старые дымоходные трубы нужно регулярно осматривать на наличие трещин.
Появление трещин – верный признак того, что трубе необходимо дать ремонт.
В противном случае куски строительных материалов, постепенно падая вниз, могут забить канал настолько, что тяга упадёт, и котёл не включится. Кирпич в трубе под воздействием переменного нагрева и охлаждения склонен к растрескиванию.
В последнее время стали популярны тонкостенные металлические дымоходы с сэндвич-прослойкой из утеплителя. Они значительно легче и по массе, и при монтаже. Однако металл подвержен коррозии.
Некачественные сэндвич-трубы быстро выходят из строя
Покрытие на поверхности металла может пострадать, и труба начнёт ржаветь. При разрушении внутреннего слоя утеплитель может хлопьями выпадать в канал дымохода и также засорять его. Опасно и отслаивание цинковой плёнки, покрывающей стальную трубу. Хотя плёнка очень тонкая, она может помешать прохождению дыма. Правда, встречается такое довольно редко и лишь на некачественных изделиях, где был нарушен процесс оцинковки.
Перебои в электроснабжении
Прежде всего, скачки напряжения и неполадки в электросети опасны для энергозависимых настенных и напольных котлов с электронным управлением.
Конструктивно они устроены так, что не могут работать без электричества, а его скачок может вызвать выход из строя электронного «мозга», который в некоторых котлах очень сложный и дорогостоящий в ремонте. Иногда не помогают даже встроенные предохранители.
Это важно! Поэтому владельцам таких котлов стоит в обязательном порядке обзавестись стабилизаторами напряжения вне зависимости от того, насколько стабильными являются электроцепи.
Если же электричество просто отключили, то без его подачи котёл бесполезен. Днём, когда не горит свет, его затухание иногда обнаруживается через несколько часов после отключения тока.
Напольный энергонезависимый котёл — лучшее решение для дома
Напольные энергонезависимые котлы практически лишены такого недостатка. В вашем доме может быть темно при отключении электроэнергии, но тепло там всё равно будет. Такие газовые агрегаты устроены значительно проще и меньше повержены внутренним поломкам.
Однако есть случаи, когда отсутствие света отзывается и на их работе.
Если самотёчной циркуляции не хватает, в систему обычно врезают циркуляционный насос. Он принудительно прокачивает теплоноситель по системе, повышая КПД котла. Но все такие насосы включены в электросеть. В отсутствие тока котёл будет сильно нагревать воду рядом с собой, пока термостат не выключит горелку. Без постоянного обновления теплоносителя полноценная работа котла невозможна.
Порывы ветра
При сильных порывах ветра может возникнуть такое опасное явление, как обратная тяга. Вместо того чтобы выходить наружу, продукты горения под давлением внешнего воздуха, принесённого ветром, возвращаются в котёл и даже идут в комнату или котельную из отверстий на корпусе.
Схема обратной тяги
Если порыв сильный, он может просто задуть пламя горелки. К счастью, во все сегодняшние устройства встроена защита: при исчезновении пламени подача голубого топлива прекращается, что исключает взрыв бытового газа. Повторным включением котла механизм снова запускается – до следующего сильного порыва ветра.
Решение проблем с затуханием котла
Если отключение пламени вызвано не неисправностями самого котла, а другими внешними причинами, можно попробовать самостоятельно устранить возникшие проблемы. Некоторые модели простых котлов можно даже чистить самостоятельно от копоти и сажи, но это уже тема отдельной статьи.
Восстановление тяги
Разобраться с тем, что забито – котёл или дымоход – можно, отсоединив гофротрубу выхлопной системы от самого котла. Если в трубе тяга есть, тогда решаем проблему с котлом вызовом мастера. В ином случае придётся залезть на крышу и заглянуть в трубу. При обнаружении засора нужно удалить те посторонние фрагменты, которые мешают прохождению дыма.
Чистка дымохода — обязательная процедура для профилактики его загрязнения
Если на оголовке обнаружен лёд, его нужно аккуратно сколоть, чтобы не повредить сам дымоход. Обязательно проверьте очистные лючки. Признаком того, что нужно произвести чистку, является большое количество копоти и сажи, извлекаемое из внутренности канала.
С задуванием канала по причине сильного ветра ещё можно примириться, если это происходит один или два раза за весь отопительный сезон. Но если в вашей местности ветры – это частое явление, следует принять меры:
- Во-первых, можно попробовать нарастить трубу. Большая высота помешает ветру с силой проталкивать воздух обратно.
- Во-вторых, может выручить грамотная конфигурация оголовка, который будет закрывать отверстие с той стороны, откуда преимущественно дуют ветры.
Если пропало электричество
Энергонезависимый котёл в связке с циркуляционным насосом потребляет не так уж много. Его можно приспособить под питание от постоянного тока и переключать на работу от аккумулятора. Но для мощных котлов это не подходит. Единственным выходом станет подключение котла к альтернативному источнику электроэнергии, например, бензиновому или дизельному генератору.
Если снизилось давление газа
Первым делом нужно проверить газопровод в том месте, где он отходит от общей магистрали.
Тщательно проверяются места стыков, где есть следы сварки, а также вентили и краны. Обнаружить утечку поможет специфический запах, который придаётся природному газу на распределительных станциях.
Это важно! Если же давления газа нет в самой магистрали, у вас технически не будет возможности повлиять на ситуацию. Насосы газовой среды в продажу не поступают.
Единственный вариант – писать обращение в соответствующие инстанции. Обратитесь к соседям – у них, скорее всего, та же проблема. Составление коллективной петиции поможет ускорить процесс принятия решений в организации поставщика природного газа в вашем регионе.
Неисправности котлов различных марок
Поскольку настенные энергозависимые котлы более автоматизированы, но и более сложны в ремонте, рассмотрим здесь наиболее типичные неисправности газовых котлов наиболее популярных марок. Многие подобные агрегаты выпускаются в России, они дёшевы и практичны, хотя иногда в их работе случаются перебои.
Котлы АОГВ, производимые Жуковским заводом, имеют огромный козырь – низкую цену при высокой мощности.
Правда, через несколько лет работы котёл может отказаться включаться после долгого перерыва. Причина – отказ термопары, устройства, отвечающего за пуск горелки.
Котлы «Лемакс», также российского производства, собираются в Таганроге. Они оснащены дополнительными приятными опциями, вроде системы, замедляющей образование нагара. Правда, иногда датчик воздушной тяги бывает таким чувствительным, что срабатывает даже при её наличии. Если котёл гаснет внезапно, а дымоход и приточная вентиляция в порядке, стоит заменить датчик.
Среди огромного ассортимента газовых котлов важно выбрать подходящую и надёжную модель
Газовые отопители «Данко» производства предприятия «Агроресурс», что в городе Ровно на Украине. Производитель предлагает как одно-, так и двухконтурные котлы. Из возможных минусов – слабое пламя запальника, который не успевает прогреть термопару и может быть задут порывом ветра до того, как запустит горелку.
Ещё один украинский бренд – котлы под маркой «Атон». Если при затухании котла вы исключили падение тяги, давление и ветер, то грешить следует на жиклёр и термопару – их замена или прочистка поможет решить проблему.
Харьковские газовые котлы «Маяк» и «Росс» в целом отличаются надёжностью и демократичной ценой. Причиной отключения у них может быть засорение форсунки фитиля. Проверка термопары также может устранить причину, по которой котёл самопроизвольно выключается или вообще не поджигается.
Видео: причины, по которым тухнет котёл
Газовый котёл – надёжный и экономичный отопитель, но требует знания нюансов эксплуатации. Если пламя горелки внезапно выключается, либо розжига вообще не происходит, стоит обратить внимание на состояние дымохода, каналов прохождения отработанных газов, сам котёл, а также магистраль, по которой голубое топливо подаётся в жилище.
Запальник газового котла — решаем проблему с розжигом
Из данной статьи вы узнаете, какие проблемы могут возникать в автоматике газовых котлов, почему не получается разжечь запальник, из-за чего котёл может без причины отключаться, а главное, разберёмся, какие действия необходимо предпринять для диагностики и устранения данной неисправности.
- Подготовка к работе
- Приступаем к работе
Владельцам энергонезависимых газовых котлов наверняка знакома ситуация, когда по какой-то причине не удаётся разжечь котёл, или же на розжиг тратится много времени. В данном случае проблема кроется в автоматике котла.
На сегодняшний день в отечественном и импортном газовом оборудовании наиболее часто применяется газовый клапан EUROSIT 630. Именно он выполняет функции поддержания заданной температуры теплоносителя и в случае аварийной ситуации осуществляет полное перекрытие подачи газа к горелкам. Дальнейший запуск котлов с такой автоматикой возможен только вручную. Однако не всегда причиной аварийного отключения котла является реальная авария.
Попробуем разобраться в этом на примере котла «Житомир-3». Из автоматики в нём предусмотрена защита от пропадания пламени на запальнике и нарушения тяги.
Примечание: Все газоопасные работы должны выполняться исключительно представителями специализированных организаций, имеющих соответствующие разрешения.
Поэтому данная статья предоставляется исключительно в ознакомительных целях. Также данная статья поможет проконтролировать работу мастера и, возможно, избавит вас от необходимости приобретения ненужных запчастей.
Определимся, что мы будем называть розжигом запальника. Ручка управления клапана EUROSIT 630 позволяет переводить котел в три основных режима:
- отключён;
- зажигание;
- регулировка температуры (1–7).
Для розжига пилотной горелки (запальника) необходимо перевести ручку управления в положение «зажигание» (искра), нажать на неё и при помощи кнопки пьезорозжига разжечь пилотную горелку. Далее ручка удерживается в течение нескольких секунд (не более 30) и отпускается. Запальник должен продолжать гореть. Это мы и будем называть розжигом запальника. Если запальник погас — необходимо повторить процедуру ещё несколько раз. Если это не помогло — необходимо искать неисправность.
В момент розжига запальника пламя нагревает термопару, которая в свою очередь вырабатывает ЭДС (примерно 25 мВ для исправных термопар SIT), которая поступает через цепь датчика (датчиков) автоматики к электромагнитному клапану.
Нажимая на ручку газового клапана, мы вручную открываем электромагнитный клапан, подавая газ на запальник, который, в случае правильной работы оборудования, удерживается вырабатываемой термопарой ЭДС и остаётся в открытом положении после отпускания ручки. Сама термопара выполняет функцию защиты от пропадания пламени на запальнике. Датчики, находящиеся в цепи, являются нормально-замкнутыми и при срабатывании размыкают свои контакты, обеспечивая полное отключение котла.
Подготовка к работе
Для проведения работ по определению и устранению проблем с розжигом запальника нам понадобится следующий инструмент:
- рожковые ключи № 9, 10, 12;
- плоскогубцы;
- мультиметр;
- отвёртка с плоским шлицем;
- спирт.
Приступаем к работе
Для определения причины возникновения неисправности проверим цепь термопары — электромагнитный клапан. Для начала проверяем датчик тяги. В данном котле он расположен на газоходе. Для этого снимаем две клеммы с датчика.
Замыкаем две клеммы между собой, они должны соединиться плотно (для этого можно их немного поджать плоскогубцами).
Пробуем произвести розжиг запальника. В случае если это удалось сделать, причина неисправности в датчике тяги. Однако не спешите его менять. Для начала проверим его.
Примечание: в данной работы мы демонтируем датчик для того, чтобы показать особенности его установки на котле и маркировку. Для проверки это делать не обязательно.
Откручиваем два винта крепления датчика тяги к газоходу котла.
Обратите внимание, что датчик не крепится вплотную к корпусу газохода, а установлен на паронитовых прокладках. Это необходимо для того, чтобы уменьшить нагрев датчика через его контакт с корпусом, а также чтобы обеспечить зазор между отверстием в газоходе и плоскостью датчика.
Осматриваем датчик. Его контакты должны крепко держаться на корпусе. На них не должно быть окисления. Номинал датчика (температура, при котором контакт датчика разомкнется) в данном случае 75 °С (обозначение на корпусе L75C).
Проверяем датчик тяги тестером, измеряя его сопротивление. Оно должно быть минимальным (равным сопротивлению щупов) — 1–2 Ом. В случае если датчик не прозванивается, однозначно необходима замена на аналогичный (с соответствующей температурой срабатывания).
Если датчик удалось прозвонить, протираем спиртом контакты датчика и клеммы цепи, поджимаем их плоскогубцами и просушиваем. Монтируем датчик на место и подключаем его. Пробуем произвести розжиг.
Если розжиг удалось произвести, причина неисправности найдена и устранена.
Обязательно после розжига основной горелки нужно проверить тягу. Для этого можно поднести руку к месту, где установлен датчик тяги. Из этого отверстия не должно идти тепло. Если это происходит — необходимо устранять причину, вызывающую недостаточную тягу. Датчик в таком случае срабатывает правильно.
Внимание! Эксплуатировать котел с неисправным дымоходом категорически запрещено!
Если розжиг произвести не удалось, идём дальше по цепи.
Контакты от датчика тяги идут к тягопрерывателю (прерывателю термопары).
Снимаем клеммы с контактов тягопрерывателя и измеряем сопротивление цепи. Оно должно быть не более 3 Ом.
Если это условие соблюдается, производим следующие действия. Ключом № 9 откручиваем гайку крепления термопары к тягопрерывателю. Ключом № 12 откручиваем на пол оборота тягопрерыватель, который состоит из двух деталей: латунной гильзы и пластиковой вставки.
Вынимаем пластиковую вставку с контактами и откручиваем деталь полностью.
Проверяем термопару. Присоединяем её напрямую к электромагнитному клапану (место, где был установлен тягопрерыватель). Фиксируем её ключом № 9.
Производим розжиг запальника. Если его не удалось произвести — причина неисправности, скорее всего, в термопаре. Электромагнитный клапан выходит из строя крайне редко.
Осмотрим термопару. В некоторых случаях термопара поддаётся ремонту. Случается, что контакт термопары отпадает. Это не повод для замены, достаточно пропаять его.
Важно, чтобы диэлектрическая прокладка была цела.
Проследите, чтобы термопара правильно была установлена в пламени запальника. В пламя должен быть погружен кончик термопары.
Для настройки положения термопары относительно пламени запальника необходимо отпустить ключом № 10 гайку крепления термопары к пилотной горелке. Передвигая термопару, необходимо установить её в правильное положение и зафиксировать ключом № 10.
Для вынесения окончательного вердикта о замене, можно измерить ЭДС, вырабатываемую термопарой. Для этого необходимо произвести розжиг запальника, и, удерживая ручку клапана нажатой, замерить ЭДС между контактом термопары и её корпусом. Оптимальная величина должна быть не менее 18 мВ. Если термопара исправна — очистим спиртом детали тягопрерывателя, а также протрём контакт термопары. Особенно если её пришлось пропаять.
Собираем тягопрерыватель в обратной последовательности, подключаем к нему термопару. Сильно обжимать детали не следует.
Усилия должно хватить для обеспечения надёжного контакта. Обжимаем клеммы плоскогубцами и, протерев их спиртом, пробуем произвести розжиг.
Выполнение всех вышеперечисленных операций наверняка поможет вам устранить неисправности с вашим котлом.
Ещё одной причиной проблем с розжигом может быть недостаточное давление газа на запальнике. Это происходит из-за засорения форсунки. Для её прочистки необходимо ключом № 10 отпустить гайку крепления медной трубки запальника и извлечь жиклёр.
Совет: можно легонько обстучать запальник, чтобы было легче извлечь жиклёр.
Прочищаем отверстие жиклёра жилой медного провода. Нарушение размера отверстия не допускается!
В моменты наиболее интенсивного потребления газа давление в центральной магистральной трубе может падать. Соответственно, давление газа на запальнике тоже может снизиться. Для этого может понадобиться подстройка давления газа на запальнике. Откручиваем винт крепления декоративной накладки и снимаем её.
Настройка осуществляется вращением винта на клапане. При повороте его против часовой стрелки давление газа на запальнике увеличивается.
Данные советы помогут вам разобраться с проблемами розжига вашего котла. На практике наиболее распространёнными являются именно проблемы с контактами, а не с датчиками. Потому, если с каждым разом при розжиге запальника приходится держать ручку клапана все дольше и дольше, советуем просто почистить контакты и поджать клеммы автоматики. Для того чтобы избежать действительных проблем со срабатыванием автоматики, рекомендуем вовремя проводить чистку котла.
рмнт.ру
15.03.17
Возможные неисправности котлов Лемакс серии Премиум и способы их устранения
Газовые котлы Лемакс составляют серьезную конкуренцию европейским аналогам.Они собраны из запчастей, изготовленных признанными лидерами в производстве теплотехники — фирмами Vaillant, Sit и прочими известными производителями.
При отличном качестве, стоимость котлов Лемакс в два и более раз ниже, чем у «европейцев».
В основном, это достигается путем исключения из конструкции всех дополнительных устройств и узлов, оставлены только самые необходимые элементы.
Это положительно сказывается на работоспособности агрегатов, снижает частоту поломок или отказов, но некоторые неисправности все же случаются.
Основные неисправности газовых котлов Лемакс
К наиболее часто встречающимся неисправностям можно отнести:
- Утечка газа. Немедленно открыть окна, перекрыть подачу газа, отключить котел и вызвать работников газовой службы.
- Цвет пламени красноватый, языки удлиненные и коптят. Слабая тяга или засорение горелки. Прочистить дымоход и горелку, исправить положение трубы.
- Самопроизвольное отключение основной горелки. Проблемы с дымоходом или терморегулятором.
- Отсутствует циркуляция воды. Если имеется насос, причина кроется в нем. Если использована естественная циркуляция, надо исправить конфигурацию трубопроводов, придав им правильный уклон.

- Отключение котла. Обычно происходит из-за прекращения подачи газа.
Список возможных неисправностей можно продолжать долго, но смысла в этом нет, поскольку каждая ситуация требует отдельного рассмотрения.
Почему тухнет прибор
Причин затухания горелки может быть несколько:
- Прекращение подачи газа. Отключить котел, дождаться возобновления подачи.
- Нестабильное или отсутствующее напряжение в сети электропитания (для энергозависимых котлов Лемакс).
- Отказ или срабатывание датчика тяги. Надо проверить, есть ли она, не забился ли дымоход. Иногда помогает зачистка контактов датчика.
- Контакты термопары окислились и не замыкаются. Следует почистить из мелкозернистой наждачной бумагой.
- Обратная, недостаточная или избыточная тяга. На все ситуации датчик тяги реагирует отключением горелки.
Проблемы с тягой наиболее свойственны энергонезависимым установкам, где от нее зависит стабильность работы агрегата.
Если тяга слишком слабая, датчик отключает горелку из-за возможности задымления помещения.
Избыточная тяга опасна возможностью срыва пламени на горелке, что спровоцирует подачу газа в помещение с непредсказуемыми последствиями. Поэтому увеличение тяги против заданного значения также является аварийным случаем, приводящим к остановке котла.
Как включить (зажечь)
Запуск котла Лемакс производится после заполнения системы положенным объемом воды (12-14 литров на каждый кВт мощности) и присоединения газового трубопровода.
Порядок действий:
- Открыть крышку, обеспечив себе доступ к регулятору и кнопке пьезорозжига.
- Повернуть регулятор против часовой стрелки, что переведет котел в положение «включено».
- Утопить регулятор до упора и удерживать его в таком положении, одновременно нажимая кнопку пьезорозжига.
- После того, как появится пламя на запальной горелке, кнопку можно отпустить, но регулятор необходимо удерживать еще около минуты.

ВАЖНО!Если попытка разжечь котел была неудачной, повторить ее можно только через 1 минуту, не ранее.
Не запускается (зажигается)
Розжиг агрегата производится по определенной схеме. С первого раза он запускается далеко не всегда, и это вполне нормально. Но, если после многократных попыток котел не разжигается, необходимо проверить состояние узлов, ответственных за розжиг.
Возможными причинами могут быть:
- Выход из строя электронной или механической системы розжига. Надо заменить систему, или прочистить контакты термопары.
- Пропало напряжение в сети электропитания (для энергозависимых агрегатов).
- Закрыт вентиль на трубе подачи газа.
- Давление газа в системе не соответствует номинальным показателям.
- Засорились форсунки главной горелки. Необходимо прочистить их и запустить котел.
Все эти причины являются наиболее распространенными, но далеко не единственно возможными. Любая неисправность в системе может отрицательно повлиять на розжиг котла.
ОБРАТИТЕ ВНИМАНИЕ!Если перепробованы все варианты, но проблема не решена, надо вызывать мастера из сервисной организации.
Почему растет давление
Возрастание давления — серьезная и опасная ситуация. Рост давления в системе может означать только увеличение количества воды.
Это происходит из-за расширения теплоносителя при нагреве. Любая жидкость несжимаема, поэтому увеличение ее объема может привести к разрыву теплообменника, либо, в самом серьезном случае, спровоцировать взрыв.
Для исключения подобной возможности в конструкции котлов применяют расширительный бак. Он принимает в себя лишний объем воды, компенсируя его увеличение при нагреве.
Возрастание давления чаще всего свидетельствует о неполадках в состоянии расширительного бака. Его конструкция состоит из емкости и эластичной мембраны, установленной примерно посередине.
Когда жидкость начинает прибывать, мембрана прогибается и дает место для лишнего количества воды.
При уменьшении объема она возвращается в прежнее положение. Если мембрана порвана или недостаточно прочно закреплена на стеках расширительного бака, теплоноситель заполнит весь объем емкости.
При расширении воде некуда будет уходить, что спровоцирует постоянное возрастание давления. Решение проблемы заключается в восстановлении состояния мембраны или замене расширительного бака на другой, исправный экземпляр.
Из-за чего падает давление
Падение давления (котел гаснет) свидетельствует о появлении утечек. Необходимо проверить состояние трубопроводов, резьбовые соединения, прокладки и прочие внешние элементы системы отопления. Если никаких видимых повреждений не имеется, следует искать неполадки в котле.
Основным проблемным элементом может быть теплообменник. Сварные соединения иногда дают трещины или разрываются из-за частых перепадов температуры. Секционные чугунные теплообменники, используемые на мощных напольных моделях, являются факторами риска на соединениях секций.
Кроме того, возможно срабатывание клапана сброса давления или заклинивание его в открытом состоянии.
Резьбовые соединения патрубков также могут потерять герметичность из-за пересыхания или разрушения прокладок, присоединения не по резьбе и т.п. Все обнаруженные неполадки устраняются в соответствии с их спецификой.
Подключение комнатного термостата
Комнатный термостат — удобное и полезное устройство, позволяющее регулировать температуру воздуха, а не теплоносителя в отопительной системе. Датчик, установленный по умолчанию, следит за температурой ОВ на выходе.
Это не дает корректной картины состояния микроклимата в помещении. Например, при повышении внешней температуры в комнате становится жарко.
Но датчик не может этого отследить, а температура ОВ находится в заданных режимом рамках, поэтому с точки зрения системы все идет нормально, в соответствии с настройками котла.
Если используется комнатный термостат, горелка будет отключаться гораздо раньше, что улучшит микроклимат в комнате и значительно сократит расход газа.
Для подключения комнатного термостата надо установить собственный элемент котла на максимальную температуру.
Он будет работать только в качестве ограничителя при перегреве. Внешний узел подключается одним концом к блоку автоматики, а другим — к термостату котла. По умолчанию между контактами установлена перемычка, которую надо снять и присоединить термостат.
ВАЖНО!Необходимо использовать соответствующие марки, например — CEWAL RQ10. Установка термостата возможна только на котлах с маркировкой N (с блоком автоматики SIT 820 NOVA).
Полезное видео
В данном разделе вы сможете более подробно ознакомиться с тем, как включить котел и почему тухнет фитиль:
Заключение
Газовые котлы Лемакс в большинстве представляют устройства исключительно механического действия, что существенно сокращает список возможных неисправностей.
Большинство проблем возникает из-за засорения жиклеров горелки сажей, образования наслоений в дымоходе и прочих подобных ситуаций.
Энергозависимые установки нередко страдают из-за перепадов напряжения, что резко отрицательно отражается на работоспособности платы управления.
В целом, если для котла созданы нормальные условия, своевременно производится чистка и техосмотр, то никаких неполадок не будет.
Конструкция агрегатов Лемакс надежная, сборка производится под многоступенчатым контролем из импортных комплектующих, поэтому подавляющая часть всех отказов связана с неправильной настройкой или монтажом.
/—> 2019-02-28
У вас не включается газовый котёл Лемакс, исправно работавший в прошлом сезоне или даже ещё вчера? Возможно, некоторые неполадки возникали и раньше, а теперь он совсем отказывается работать? Согласитесь, остаться в мороз без отопления в доме – не радужная перспектива.
Большинство газовых отопительных котлов Лемакс имеют довольно простую, полностью механическую автоматику. А это значит, что вы сами сможете устранить большинство неисправностей. Эта статья поможет найти и устранить причину, по которой котёл не разгорается.
Рассмотрим как внешние факторы, мешающие работе агрегата, так и его внутренние поломки. Приведём инструкцию действий в разных ситуациях, а также опишем особенности котлов с электронным управлением.
Не разжигается энергонезависимый котел
Большинство владельцев газового котла Лемакс выбирают устройство с механическим управлением, не зависящее от электроэнергии. Такой выбор оправдан, поскольку не только позволяет сохранить отопление при отключении света, но и значительно уменьшает количество потенциальных поломок и стоимость комплектующих.
Пожалуй, единственное слабое место таких котлов – система розжига, отвечающая за корректный и безопасный пуск аппарата.
Энергонезависимые котлы не выдают код ошибки, указывающий на причину отключения или невозможности запуска – неполадку придется искать самостоятельно
Среди причин отказа в старте котла есть как внешние – отсутствие тяги в дымоходе, недостаточная приточная вентиляция, неполадки газоснабжения, так и внутренние поломки котла.
Подробнее каждый вариант разберём далее.
Причина #1 – слабая тяга
В энергонезависимых котлах продукты горения поднимаются по дымоходу естественным путем, за счет разности температуры и давления. Эти аппараты требовательны к качеству, чистоте и правильной конструкции дымохода.
Существует несколько способов проверки наличия тяги:
- если забор воздуха идет из помещения, поместите под котел лист бумаги. Если он прижался к днищу топочной камеры – всё нормально, тяга есть;
- если перед горелкой есть сквозное окошко, поднесите в него зажженную спичку при выключенном котле. Пламя должно вытянуться и отклониться вперёд, вглубь топочной;
- котлы с коаксильным дымоходом или двумя отдельными трубами набирают воздух с улицы – проведите тест с бумагой или спичкой там.
Если тяга нормальная, следует искать причину неполадок дальше, например, в подключении датчика тяги.
Отсутствие тяги может быть вызвано разными причинами, от которых зависят способы решения данной проблемы.
Скопление сажи в дымоходе может достигать поразительных масштабов, в зависимости от качества газа и правильности настройки котла
Во-первых, дымоход со временем засоряется – копотью, мусором и т.д. Его нужно регулярно чистить, лучше всего – осенью, перед тем как включить после простоя газовый котёл Лемакс, не забывайте, что в очистке нуждается не только вертикальная часть трубы, но и её колено, выходящее из котла.
Во-вторых, труба для отвода газов должна соответствовать требованиям котла по диаметру и высоте. Кроме того, на верхушке должен быть дефлектор, защищающий от задувания, а частично, и от засоров.
В-третьих, если часть дымохода вне отапливаемого помещения недостаточно утеплена, в ней формируется холодная воздушная пробка, препятствующая отводу продуктов горения.
И наконец, тяге может препятствовать засорение копотью горелки и теплообменника внутри котла. Однако, их чистку самостоятельно можно провести только поверхностно, щеткой. Для полноценной очистки, с отключением и промывкой этих узлов мыльным раствором советуем воспользоваться нашей инструкцией.
Причина #2 – не отрегулирована подача газа
Довольно часто владельцы жалуются, что при попытке запуска котел Лемакс разгорается, но тут же полностью выключается. Чаще всего проблема именно в настройке подачи газа на запальник.
Если она минимальна, то при включении пилотная горелка сначала разгорается, а затем её пламя сбивается, задувается включившейся основной горелкой. Срабатывает защита, и котел полностью перекрывает подачу газа.
Если запал горит хорошо, пламя накрывает и свечу пьезорозжига, и датчик термопары, но не отрывается от горелки и не образует алых языков, только синие
Другой вариант возможен, когда пламя и на пилотной, и на основной горелке выставлено на минимум. В таком случае фитиль загорается, но не достаёт до потока газа от основной горелки, не может её разжечь. Если рискнуть и подождать, котёл может разгореться с задержкой и хлопком, когда газ немного накопится в топочной, либо автоматика всё отключит раньше, во избежание взрыва.
При слишком активном горении запальника или чрезмерной тяге пламя от него может отрываться, не попадать на датчик термопары и основную горелку, что также делает запуск котла невозможным.
Котлы Лемакс комплектуются преимущественно итальянской автоматикой 630 Euro SIT или 710 MiniSIT, реже – 820 NOVA SIT. На всех этих агрегатах подача газа на горелки регулируется одинаково. Не спешите крутить винты на левой грани автомата, которые не прикрыты крышкой. Несмотря на доступность, они предназначены только для профессионалов – это штуцеры измерения давления газа.
Для начала снимите крышку блока, открутив один винт на его верхней грани. Под ней вы увидите всего 2 винта, которые можно крутить обычной плоской отверткой, побольше и поменьше – именно они и отвечают за регулировку пламени горелок.
Черные винты нужны для разборки корпуса автоматики и имеют резьбу TORX, в форме звездочки. Это своеобразная защита от непрофессионального вмешательства, которое может быть опасно
Меньший винт расположен в дальнем левом углу верхней панели, он регулирует подачу газа на запальник. Закручивая его, вы уменьшаете пламя, вплоть до перекрывания газа.
Чтобы пилотная горелка работала активнее, плавно поворачивайте этот винт против часовой стрелки до желаемого результата, но не больше 2 оборотов от полностью затянутого положения.
Больший винт отвечает за регулировку минимального пламени основной горелки, его уменьшение поможет повысить экономичность котла. Однако, не перестарайтесь: при розжиге горелка должна включаться сразу вся, а не постепенно, и без хлопка – иначе это небезопасно.
На боковой панели, возле подключения газового шланга, есть винт регулировки максимального расхода газа, но его самому лучше не трогать, при необходимости попросите настроить специалиста на ближайшем техобслуживании.
Возможные поломки и их ремонт
Не всегда отказ котла запускаться связан с неточными настройками или внешними причинами, но практически всегда неисправность можно устранить самостоятельно.
Все котлы с автоматикой SIT имеют схожее строение, она надёжна и удобна в настройке, практически все агрегаты доступны простому пользователю
Перед любым ремонтом отключите котел, дайте ему полностью остыть и перекройте подачу газа на стояке.
Даже если у вас горел только запальник, риск обжечься очень высок.
Поломка #1 – вышла из строя термопара
Согласно инструкции, если котел с автоматикой SIT не включается, проблему следует искать именно в термопаре и только в ней. Термопара – это датчик контроля наличия пламени, который обеспечивает перекрытие газа при затухании горелки.
При розжиге нужно 10 – 60 секунд держать нажатой ручку или специальную кнопку именно для того, чтобы термопара успела прогреться от пламени и зафиксировала электромагнитный клапан в открытом положении.
Однако, есть ряд ситуаций, когда эта система защиты срабатывает ошибочно:
- огонь не попадает на датчик термопары;
- датчик закоптился, окислился, загрязнен;
- медная трубка термопары прогорела или больше не проводит электрические импульсы;
- недостаточно хорошо закручена термопара в переходник к газовому клапану.
В котле эту деталь найти не сложно: это красная, медная трубка, один конец которой вкручен в блок управления, снизу, а другой – в панельку возле запальника и пьезорозжига.
Первым делом попробуйте слегка подтянуть гайку крепления к автоматике. Плохой контакт может быть причиной отказа в работе. Аккуратно выкрутите нижний конец термопары, который нагревается пламенем.
Как правило, все гайки на панели с пилотной горелкой откручиваются ключом на 10, а сама панель – крестовой отверткой
Осмотрите датчик и очистите его плотной тканью или самой тонкой наждачной бумагой. Закрутите на место и попробуйте запустить котёл.
Не помогло? Посмотрите через окошко, попадает ли пламя от запальника на кончик термопары. Если нет – подогните его, открутив панельку на 2 болтах, либо отрегулируйте пламя пилотной горелки, как мы описывали выше.
При наличии мультиметра можно самостоятельно проверить работоспособность термопары. Для этого нужно открутить оба её конца и вытащить деталь из котла. На том конце, который вкручивается в блок автоматики, вы увидите свинцовый наконечник, передающий заряд на газовый клапан. Очистите его до блеска.
Расположите датчик термопары так, чтобы на него попадал огонь от конфорки газовой плиты или таблетки сухого спирта.
Замкните датчики мультиметра на свинцовый наконечник и на медную трубку термопары и измерьте напряжение. Если все в порядке – ищите неисправность дальше, а если проблема в термопаре – придется приобрести новую деталь.
Поломка #2 – датчик тяги работает некорректно
Датчик тяги устанавливается у основания дымохода и призван перекрыть подачу газа, отключив котёл, если продукты горения перестанут выводиться.
Датчик тяги располагается под верхней крышкой котла – в той части, где продукты горения наиболее сконцентрированы перед удалением в дымоход
В противном случае возможно отравление жильцов дома угарным газом, поэтому эта система защиты в обязательном порядке присутствует во всех газовых котлах.
В энергонезависимых котлах марки Лемакс датчик подключается к переходнику, которым крепится термопара к газовому клапану. Если его цепь размыкается, электромагнитный клапан перекрывает подачу топлива, и котёл отключается.
Если конструкцией предусмотрен датчик перегрева, он также включен в эту цепь.
Соответственно, с нерабочим датчиком запуск котла невозможен: подача газа будет осуществляться только при нажатой ручке или специальной кнопке.
Сам датчик выходит из строя редко, обычно проблемы вызваны плохими контактами и проводами. Первым делом отключите контакты и почистите их плотной тканью, растворителем или спиртом. Осмотрите на целостность провода и их изоляцию, при возможности – прозвоните мультиметром, если проводимость нарушена – замените.
Просушите очищенные контакты, вставьте их на место максимально плотно, провода к самому датчику можно припаять. Попробуйте запустить котёл.
Если ситуация не изменилась, попробуйте замкнуть контакты на переходнике к газовому клапану, обмотав их проволокой.
Датчик тяги в котлах Лемакс подключается к переходнику между термопарой и газовым клапаном, в нижней части автоматики
Если это помогло, и котёл заработал – значит, проблема всё-таки в датчике тяги. Не оставляйте контакт замкнутым надолго – это угрожает вашей безопасности! Замените датчик или вызовите специалиста.
Поломка #3 – засорение форсунки
Бывает, что при попытке включения не загорается даже фитиль и не слышно шипения газа, то есть не происходит ничего. Такое поведение котла наверняка указывает на то, что засорился жиклер или инжектор запальной горелки.
Чтобы разобраться, как зажечь пилотную горелку газового котла Лемакс, отсоедините трубку, идущую к нему от блока автоматики. На панели у горелки трубка подачи газа – средняя из 3 подключений, для удобства можно предварительно открутить термопару.
Форсунка, подающая газ тонкой струйкой, может быть окончанием этой трубки или отдельной деталью. Прочистите зубочисткой отверстие жиклера и продуйте трубку, убедившись, что воздух проходит.
Снимите панель, на которой была закреплена трубка, открутив 2 винта по бокам. Вы увидите сеточку на трубке подачи газа – через неё забирается воздух для смешивания с газом.
Учитывая, что подача воздуха идёт снизу, вдоль пола, а возле котла любят греться домашние питомцы, эта сеточка может забиваться пылью и шерстью, которая не всегда выгорает.
Продуйте эту сеточку – только без фанатизма.
При необходимости пилотную горелку можно заменить вместе с панелью – но лучше поручить это специалисту, который правильно выставит и настроит оборудование
Соберите всё в обратном порядке и попробуйте запустить котёл. Позитивный результат должен быть слышен сразу – это шипение газа, подающегося на запальник.
Поломка #4 – неполадки с пьезорозжигом
Пьезорозжиг позволяет зажечь котел без спичек, нажатием кнопки. Блок под кнопкой генерирует электрический импульс, который передаётся по проводу к свече и формирует искру на её конце.
Ломается автоматический розжиг котлов Лемакс довольно редко, но, если это случилось, нужно точно определить место поломки. Для этого отключите провода от свечи, расположенной возле запальника, и попробуйте нажать кнопку. Если слышен характерный щелчок, значит неисправен электрод, если же щелчков нет – блок под кнопкой.
Свечу можно попробовать зачистить от нагара, открутив панель с горелкой и термопарой.
В случае необходимости, купите новую деталь и замените. Чтобы снять и заменить блок с кнопкой, достаточно снять крышку блока автоматики.
Поломка #5 – неисправен газовый клапан
Газовый клапан отвечает за подачу топлива к обеим горелкам, а также перекрывает газ в аварийных ситуациях. Снизу электромагнитный клапан управляется термопарой и датчиком тяги, а сверху напор регулируется термостатом типа баллон – сильфон.
Система многокомпонентная, а деталь, пожалуй, самая важная в котле, поэтому самостоятельно вмешиваться в его работу не рекомендуется.
Электромагнитный газовый клапан открывается либо при нагреве термопары, либо механически – нажатием ручки или кнопки, в зависимости от модели автоматики котла
Услышав от специалиста о возможных проблемах с газовым клапаном, не спешите огорчаться: возможно, замена не потребуется. При длительной эксплуатации котла может выработаться смазка, а также потребоваться регулировка.
Самому можно добраться до клапана, открутив переходник, в который крепится термопара, и вывернув сам клапан.
Сделать это непросто – затягивается клапан очень туго, во избежание утечек.
Сверху разобрать блок управления SIT можно только с помощью специальной отвертки или ключа с головкой TORX Т-20. Прежде чем разбирать блок управления, обязательно отметьте положение всех ручек и регулировочных винтов.
Котел с электронным управлением
Линейка котлов Лемакс, которые подключаются к сети 220В, активно расширяется и сейчас включает настенные двухконтурные моделиPrime, а также напольные Clever и Wise.
В отличие от импортных конкурентов, платы управления которых часто перегорают из-за перепадов в электросети, эти аппараты рассчитаны на работу в условиях российских сетей.
Настенные котлы, как правило, имеют встроенный циркуляционный насос, расширительный бак и значительно больше систем контроля и защиты
Однако, и такие модели иногда могут выйти из строя.
Для обеспечения безопасности, основные системы защиты по-прежнему механические:
- термопара контролирует горение и перекрывает газ, если горелка потухла – ошибка Е1;
- датчик тяги даёт сигнал на отключение, если продукты горения не отводятся – ошибка Е3;
- мембранный газовый клапан перекроет подачу топлива, если его давление упадёт ниже критического, либо газ отключат в сети – ошибка Е1;
- термостат перегрева контролирует температуру контура отопления, при перегреве отключает котел с ошибкой Е2.

Все эти системы устроены так же, как в котлах с механическим управлением, а их расположение зависит от модели. Поэтому повторно описывать проверку и ремонт каждого узла не будем, а найти их в своём котле вам поможет инструкция к нему.
Кроме того, котел с электронным управлением не запускается, если обнаружит неисправность любой своей платы или датчика, либо их неудовлетворительные показания – например, низкое давление воды или напряжение питания менее 170В.
Чтобы не пришлось перебирать весь котел, на расположение неисправности укажет код ошибки и его расшифровка в инструкции.
Для настройки и ремонта электронных элементов управления лучше обратитесь к специалисту, он может перепаять, перепрошить или заменить плату
Если котел вообще никак не реагирует на попытку включения, даже экран не загорается, вероятнее всего – проблема с электроснабжением. Как ни банально, проверьте, включена ли вилка в розетку, поднят ли автомат, есть ли вообще свет в доме.
Штекер из розетки мог выдернуть ребенок, а автомат мог отключиться от перепада напряжения, так что не пренебрегайте этим советом.
Если с электропитанием всё в норме, а дисплей котла не загорается, вызывайте сервисную службу для диагностики и ремонта или замены элементов электронного управления.
Выводы и полезное видео по теме
Подробно и наглядно рассказано, почему не загорается фитиль на котле с автоматикой EuroSIT 630, которой оборудованы многие модели Лемакс, описано в этом видео:
С котлом Лемакс, работающим под электронным управлением, можно познакомиться в следующем обзоре:
Теперь вы знаете, что делать, если однажды ваш газовый котел не запустится. Сохраняйте спокойствие и проверяйте всё шаг за шагом – и вам наверняка удастся восстановить отопление в доме.
А какая модель газового котла Лемакс установлена у вас? Случались ли проблемы с его запуском и как удалось решить проблему? Расскажите об этом другим посетителям нашего сайта – присоединяйтесь к обсуждению в комментариях.
Оглавление
1. Слабо горит фитиль
Фитиль газового котла
Фитиль горит слабо по двум причинам: либо забит и его нужно прочистить, либо у Вас слабое давление на входе. При наличии надомного регулятора, обязательно проверьте его настройки. Возможно, Вам нужно повысить давление на входе, так как оно постоянно колеблется из-за того, что потребление газа разное в разные периоды.
Соответственно, в отопительный сезон, когда газовые котлы работают, потребление газа больше и давление на входе также падает. А регулятор, насколько вы знаете, держит определенный дифференциал между давлением на входе и давлением на выходе. Соответственно, этот дифференциал тоже падает, из-за этого может слабее гореть ваш фитиль. Проверьте настройку регулятора, а также прочистите фитиль.
Почему горелка вообще может затухнуть?
Затухание котла происходит в результате срабатывания автоматики устройства, которая реагирует на следующие нарушения в работе системы:
- снизилась или исчезла тяга в дымоходе;
- упало давление газа в подающей магистрали;
- затухло пламя в горелке.

Причем эти процессы могут происходить как вследствие внутренней поломки, так и из-за воздействия внешних факторов.
Если рассматривать напольные модели (производители: Данко, Атон, РОСС, Житомир), то они имеют примитивную внутреннюю конструкцию. Потому ломаться в них, если разобраться, особо и нечему. Затухание в этом случае происходит чаще всего из-за сильного ветра на улице или других внешних факторов.
Термопара
Это следующая причина почему может тухнуть газовый котел. В разных котлах датчик контроля разны. В большинстве домашних котлов это термопара. Термопара должна постоянно находиться в огне, так же, как и электрод ионизации и фотодатчик всегда должен обнаруживать пламя на вашей горелке. Если термопара находится в изношенном состоянии, то она при любом слабом дуновении ветра, когда ваш фитиль совсем немного отклонится от этой термопары, тут же выбивает автоматику и у вас происходи затухание газового котла.
Если у вас это электрод ионизации, происходит аналогичная ситуация.
Электроды ионизации обычно устанавливаются в энергозависимых двухконтурных котлах, которые вешают на стенку. Фотодатчики же стоят в котлах большей мощности. Но это уже, в принципе, промышленный тип котлов, который в обычных домах встречается довольно редко.
Основные причины затухания
По умолчанию мы рассматриваем ситуацию, когда отопительный агрегат отработал несколько сезонов без нареканий, а теперь почему-то начал гаснуть. Расширенный список причин, заставляющих автоматический клапан прекратить подачу газа, выглядит так:
- исчезла тяга в дымоходе;
- появились проблемы с подачей природного газа, отчего его давление в трубе опустилось ниже нормы;
- котлу не хватает воздуха для горения, отчего пламя гаснет;
- горелку задувает сильный ветер на улице либо происходит отрыв пламени при сильном сквозняке внутри дома;
- аппаратные неисправности газового котла – выход из строя датчика тяги либо термопары.
Итак, если у вас гаснет главная горелка котла, то ищите причину в указанной последовательности, начиная с проверки тяги в дымоходе.
Давайте подробно рассмотрим каждый шаг.
Проблемы с тягой
Первое, что должны делать хозяева атмосферных газовых котлов при затухании горелки – проверять тягу. Возьмите спички либо свечу, зажгите ее и поднесите к смотровому окошку и наблюдайте за поведением пламени. Если оно отклонилось в сторону проема, то с тягой все в порядке и можно переходить к следующему шагу.
Скопление конденсата и обледенение – также распространенная причина затухания котла. Случается это, если при монтаже не соблюдался нормативный уклон, обеспечивающий сток конденсационной влаги
Но остановимся подробнее на поломках, характерных именно для данного типа оборудования.
Если вы наблюдаете, что котел гаснет чаще всего в морозы, то скорее всего створ дымохода перекрывается ледяной массой.
Это может происходить из-за:
- образование и скопления конденсата;
- налипания снега.

Как видим, причина заключается в плохих погодных условиях. Поэтому решением проблему служит защита дымохода от воздействия внешних факторов.
В этом случае опять-таки стоит рассмотреть вариант установки «грибка», т.е. дефлектора. Но это мера профилактическая. А что же делать, если проблема уже «назрела», а погодные условия еще более усугубляют ситуацию? Выход есть и в этой ситуации.
“Растопить” дымоход, то есть избавить его от ледяных пробок, можно самостоятельно при помощи строительного фена или газовой горелки на баллончик
Оседание конденсата в трубах характерно для конвекционных котлов с коаксиальным дымоходом. В них формируются пробки из-за разницы температуры потоков воздуха, затягиваемых в горелку с улицы и выходящих наружу. Эти ледяные заторы и перекрывают путь как в камеру сгорания, та и из нее.
Чтобы убрать ледяную корку из коаксиального дымохода, может понадобиться даже демонтировать внешнюю ее часть.
Демонтаж на повлияет на повседневную работу системы, но все же лучше до этого не доводить. Иногда с целью предотвращения накопления конденсата в зазоре между трубами, во внешнем контуре высверливают пару отверстий.
Просто сбить лед – не выход. Тем более может повредиться дымоход. Лучше купить портативную газовую горелку с баллончиком и «растопить» ею дымоход. После того как пробка растает, котел вновь заработает. Но чтобы таких казусов не возникало впредь, трубы стоит утеплить.
Предлагаем ознакомиться Лампочка для холодильника характеристики виды правила выбора как заменить самому
Турбонадув, применяемый к конструкции котлов с закрытой камерой сгорания, в большинстве случаев не подлежит ремонту – его легче сразу заменить
Если при работе нет никаких, поломка очевидна: то есть автоматика не позволяет открыть защитный клапан, поэтому фитиль не загорается.
Вот в этом случае настоятельно рекомендуем не заниматься самодеятельностью, а сразу звонить газовщикам.
Турбонадув ремонту в большинстве случаев не поддается – скорее всего его придется менять, а такая работа сопряжена с риском распространения угарного газа по помещению.
Поэтому лучше если контроль за этим процессом будет производить газовщик из компании, с которой заключен договор на обслуживание оборудования и поставку газа.
Двухконтурные модификации газовых котлов, предназначенные для подготовки теплоносителя и горячей воды, могут затухать также по всем тем причинам, которые описаны выше. Но если признаков вышеперечисленных поломок нет, возможно, проблема вызвана специфическими особенностями агрегата.
К ним относятся те, которые возникают из-за срабатывания системы защиты от перегрева воды, а именно:
- смешение горячей и холодной проточной воды;
- истончение стенок мембраны редуктора.
В инструкциях к котлам с дополнительным теплообменником для ГВС обычно предупреждают, что одновременно открывать два крана нельзя.
Лучше изначально в настройках выбрать наиболее подходящую температуру для нагрева горячей санитарной воды.
Дело в том, что когда включается холодная вода, уменьшается расход горячей, а тепло вырабатывается все в том же режиме, перегревая теплообменник. Из-за перегрева срабатывает автоматика, которая перекрывает подачу газа и блокирует работу котла.
Причин, почему тухнет котел ГВС, гораздо больше из-за особенностей ее конструкции. Проблема решается довольно просто: чтобы не было перегрева, выбирайте комфортную температуру воды, меняя регулятор на панели управления
Если эксплуатация происходит согласно инструкции, а двухконтурный агрегат все равно отключается – нужно менять прокладку водяного узла. Скорее всего она износилась.
4. Одноэтажное здание или верхний этаж
В таком случае ветру проще всего попасть в ваш котёл. Для того, чтобы избежать затухания фитиля в газовом котле при таком устройстве дымохода, необходимо сделать защиту оголовка дымохода, то есть поставить специальные защитные устройства — шайбы.
Обратите внимание на то, что козырьки в виде зонтиков, которые могут встречаться на тех или иных домах, по правилам безопасности газоснабжения строго запрещены. Это связано с тем, что в процессе таяния снега, образующаяся вода тут же начинает постепенно стекать и образовывать сосульки на горящем дымоходе.
Ещё один из способов защититься от затухания и задувания газового котла при такой проблеме — это увеличить количество поворотов дымохода. Если у вас дымоход выходит из котла и сразу в стенку, соответственно чтобы попасть туда ветру, достаточно преодолеть лишь один поворот. То есть место стыковки вашего дымохода и котла.
Если же вы увеличите количество поворотов в вашем котле, то ветру будет намного сложнее добраться до вашего газового котла и вероятность задувания будет меньше.
При сжигании одного куба газа сжигается десять кубов воздуха. Соответственно, в большинстве случаев в домашних бытовых котлах, если это не турбинированный тип котлов с коксиальной трубой, используется воздух из помещения.
И, соответственно, если у вас недостаточная приточная вентиляция: не подрезана дверь, либо не сделаны отверстия, и помещение у вас находится постоянно закрытым, топритока воздуха не хватает для того, чтобы котёл горел.
Либо вентиляционного канала у вас может не быть, либо он просто может быть у вас забит. Опять же, надо либо прочистить вентканал, либо обеспечить приток воздуха снизу. Это нужно для того, чтобы сжигать необходимое количество воздуха в помещении и газовый котел у Вас не тухнул. Если же у вас не будет приточной вентиляции, либо не будет тяги в вентканале, то котёл начнёт сжигать воздух из помещения.
8. Неправильное расположение газового котла в помещении
Местонахождение газового котла в помещении также играет важную роль. В отдельных случаях наблюдались такие ситуации, когда, к примеру, котёл находится на кухне, та в свою очередь находится где-нибудь на втором или третьем этаже здания и в этой кухне имеется балкон.
Итак, что происходит? Люди открывают дверь балкона, тяга в дымоходе у них великолепная и… Что получается? У нас сначала был, какой-нибудь приток воздуха из коридора или из соседних комнат при открытии двери на кухне и тяга была более-менее стабильна.
И тут при резком открытии балкона что происходит?
Количество воздуха увеличивается и горячий воздух начинает уходить в дымоход с ещё большей скоростью. Таким образом, фитиль начинает буквально вот аж колебаться, гулять. То есть его может просто либо сдуть, либо, если там плохие контакты цепи безопасности, либо изношенные датчики. Это тоже может повлечь за собой то, что ваш котёл потухнет.
Стоит отметить, что вышеназванные причины — это наиболее распространённые проблемы. Возможны особые случаи, когда причину затухания и задувания газового котла может определить только специалист в результате тщательного осмотра.
Важно лишь одно — соблюдайте правила безопасности газоснабжения и выполняйте прописанные там нормативы.
При автономном отоплении любого дома, газовый котел выступает главным элементом системы. Если в холодную погоду тухнет котел, то это доставляет жильцам массу неудобств.
Почему тухнет газовый котел
Отключение подачи газа происходит как под воздействием внешних факторов, так и при выходе из строя определенных узлов или деталей отопительного агрегата.
Проблемы, вызванные неполадками тяги, чаще возникают, когда устройства обогрева имеют открытые камеры сгорания газа и естественную систему удаления гари, вместо принудительной.
Важно! В современном оборудовании стоят датчики тяги, автоматически отключающие газ при неполадках. Это самая распространенная причина, но, есть и другие, так как многие агрегаты различаются по типу конструкции.
Причины
Агрегат имеет множество технологических отверстий, компенсирующих недостающий поток воздуха, из-за этого происходит смещение пламени, недостаточный нагрев термопары и, как следствие – отключение подачи газа автоматикой. Такие неисправности встречаются в котлах эконом-класса. В результате недостатка кислорода, в котле образуется копоть, которая и приводит к прекращению работы горелки.
Важно! Модели премиум класса, имеют принудительную вытяжку, увеличивающую поток в дымоходе и поддерживающую горение в любую погоду. То есть, при неисправностях принудительного привода в более современных котлах, также могут возникать проблемы.
Нагар способен серьезно забивать отверстия, в таком случае потребуется чистка при помощи щетки по металлу. Затухание отопительного агрегата происходит из-за выхода из строя датчика тяги или засорения форсунок.
Все зависит от моделей и типа оборудования.
- Есть прогоревшая труба.
- Нарушена герметизация сгонок или других креплений.
- Недостаточная высота отводной трубы.
- Неисправен счетчик.
- Есть сильная тяга в противоположном направлении.
- Некачественный дымоход.
- Неправильный подъем дымохода.
- Частые скачки напряжения.
- Плохое давление газа в центральной системе.
- Котел долго стоял без действия.
Важно! Существуют и другие нюансы, которые вызывают проблемы с запуском оборудования и стабильностью его работы.
Основные причины затухания фитиля
Если отопление дома функционировало исправно, а потом, выяснилось, тухнет газовый котел – что делать в такой ситуации? Горелка начала гаснуть или загорается, а потом тухнет — проблема кроется среди указанных ниже причин. Все зависит от типа оборудования.
Оборудование открытого типа
Факторы, влияющие на стабильность работы оборудования. Котлы с открытыми горелками проще в ремонте, но они более подвержены внешним факторам.
- Прогорание трубы.
- Влияние погоды на вывод отработанных газов.
- Отсутствие эффективной вентиляции.
- Нет давления в системе.
- Скопилась сажа и гарь. Это может случиться при спаренном режиме работы твердотопливного и газового котлов.
- Возникновение наледи. Конденсат скапливается на стенках шахты, которая постепенно замерзает.
Важно! Если в дымоход попали посторонние предметы, то это приведет к появлению обратной тяги. Важно вовремя обнаружить проблему, так как появляется риск отравления угарным газом.
Котел с закрытой камерой
Если установлен прибор с закрытой камерой, но в нем периодически тухнет огонь — требуется тщательная проверка узлов и деталей. Неполадка определяется следующими признаками:
- Периодическое затухание запальника.
Неисправность кроется в термопаре, которая оказывает влияние на работу клапана подачи газа. Термопара представляет собой медную трубку, в ее конце находится биметаллическая деталь. При соприкосновении разных металлов появляется напряжение 20-50 мВ. Это способствует удержанию клапана. При поломке, требуется устранить данную часть, так как она не подлежит ремонту.
- Отопительный агрегат невозможно зажечь.
Данная проблема указывает на поломку автоматики. Нужно проверить провода от датчика тяги к автоматическому блоку управления.
- Возникает сильный хлопок во время розжига.
В такой ситуации проблема кроется в засоренных жиклерах. Об этом свидетельствует появление желтого пламени.
Забиваются они от попадания пыли, грязи и сажи. Поможет чистка.
- Поломка циркуляционного насоса.
Очаг тухнет или вовсе не поджигается (выключает автоматика). Проверяется и заменяется насос.
- Поломка датчика тяги или его засор.
Необходимо сомкнуть контакты датчика и попробовать зажечь горелку. Если возгорание произошло, то датчик подлежит замене.
Важно! Существуют и другие поломки их нужно вовремя определять и устранять.
Электрогазовый котел
При поломке электрогазовых нагревательных агрегатов, для устранения проблем, требуются определенные навыки и знания. Иногда при нестабильной работе помогает прием замены фазы. Для этого понадобится просто перевернуть вилку в розетке и заново включить. Но, в другой ситуации, особенно когда владение не частное, решением вопросов должны заниматься специалисты.
Основные признаки поломки:
- Горелка тухнет после зажигания. Проверить блок предохранителей и осуществить их замену.

- Наличие воздушной пробки в турбине циркуляционного насоса (возникает частое включение котла). Открутить главный винт по центру и спустить лишний воздух с насоса.
- Загрязнен фильтр отопительной системы. Для очистки нужно перекрыть вентили, отключить изделие, промыть фильтр проточной водой.
Важно! Проблемы с низким давлением в закрытой системе можно исправить, для этого в расширительный бак нужно добавить воздух (0,2 – 0,5 атм.).
Особенности затухания пальника в котлах Лемакс, Конкорд и Теплотехник
Если бытовой аппарат работал 1–2 года без сбоев, а через некоторое время начал выключаться, проблема может крыться в одном из следующих пунктов:
- Не работает тяговый датчик;
- Возникает отрыв пламени при сквозняке и сильном ветре;
- Не тянет дымоход;
- Термопара не выдает нужного напряжения;
- Снижение давления газа;
- Нехватка кислорода.
В большинстве случаев прекращение функционирования котла обнаруживается не сразу, а после значительного падения температуры.
Рекомендуется заниматься поисками неисправности в установленной последовательности. Одной из частых причин отказа является некачественная тяга.
Причины отказов в работе котлов фирмы Лемакс, Конкорд и Теплотехник:
- Ложные срабатывания датчика тяги. Проверяются каналы дымохода или чистятся контакты.
- Электричество подается нестабильно в сеть питания. Для решения вопроса устанавливается блок стабилизации или бесперебойного питания.
- Окисление контактов термопары. Они зачищаются мелкой наждачной бумагой.
- Присутствует обратная тяга. Нужно проверить все помещение на герметичность окон дверей и других элементов.
Важно! Чаще всего, ситуации с проблемой тяги возникают в энергонезависимых установках, так как там используется естественный процесс.
Что делать при затухании пламени
Чтобы напольный котел работал продуктивно, за ним требуется качественный уход. Многие мастера советуют утеплять выводную трубу при монтаже.
Это делается на 1 м выше конька крыши здания.
Второе условие — это выбор правильного диаметра трубы. При расчетах учитывается мощность оборудования. Если котел перестал работать от загрязнения фильтров, то их нужно прочистить или заменить новыми.
Способы устранения проблем
Существуют разные способы решения проблем с затуханием котла. Если есть определенные навыки, то это делается при помощи собственных сил. В иных ситуациях стоит вызвать соответствующую службу.
- Не поджигается фитиль (пламя сразу гаснет). Загрязнились форсунки сажей и копотью. Нужно проверить место расположения электрода розжига. После этого требуется осуществить устранение нагара или окиси.
- Пламя гаснет после определенного времени работы (если котел одноконтурный). Требуется выполнить диагностику ионизирующего электрода.
- Шум форсунки, а пламени нет. Не отрегулирована подача газа. Может быть так, что тяга со стороны принудительной вытяжки очень сильная. То же можно сказать о притоке воздуха.

Советы и рекомендации по восстановлению работы котла
Не рекомендуется осуществлять демонтаж газогорелочного узла самостоятельно. Так как данная работа требует знаний, умений и навыков. Этим должен заниматься обученный человек. Если выбора нет, то первое, что нужно сделать — это перекрыть газ.
Котел может давать сбои не только по вине производителей, но и при неправильном уходе, монтаже или эксплуатации. Рекомендовано раз в сезон осматривать оборудование и его узлы.
Горелка напольного отопительного агрегата может не включаться из-за вышедшего из строя насоса для циркуляции воды. Нагрев происходит того объема, который находится в баке котла (повышение температуры происходит быстро, соответственно и отключение тоже).
При правильном монтаже, эксплуатации и периодическом обслуживании котла с заменой всех расходных элементов, оборудование прослужит без сбоев долгие годы.
Используемые источники:
- https://expert-dacha.pro/otoplenie/kotly-ot/gazovye-k/proizvoditeli-gaz-k/g-k-lemaks/pochemu-tuhnet.
html - https://sovet-ingenera.com/otoplenie/kotly/ne-vklyuchaetsya-gazovyy-kotel-lemaks.html
- https://ventcondition.ru/kotel-lemaks-tukhnet-vmeste-zapalnikom/
- https://www.tproekt.com/pochemu-tukhnet-gazoviy-kotel/
Вопросы пользователей по ремонту котлов Лемакс
__________________________________________________________________________
Вопросы пользователей по ремонту котлов Лемакс
Вопрос:
котел Лемакс напольный, с двумя кнопками красная и белая. Перестал автоматически запускаться, фитиль горит, а запускается он когда регулятор газа делаешь на нуль, а затем подымаешь температуру и котел загорается, подскажите пожалуйста люди добрые в чем может быть проблема, а то замерзаем по ночам.
Ответ:
клинит шток в средней части автоматики.
Вопрос:
у меня тухнет котёл Lemax ксг-20д с горелкой гту 24д при ветре на
запальнике. приходили с газовой службы и всё время меняли термопару и
так 3 раза.
подскажите, как исправить эту неисправность?
Ответ:
надо увеличить подачу газа на запальную горелку, скорей всего при включении основной горелки происходит уменьшение пламени на запальной, что приводит к срабатыванию автоматики защиты. Но одной из основных причин этого явления является понижение давления газа в газораспределительной системе или как говорилось выше опрокидывание тяги в дымоходе за счёт неправильной его установки.
Вопрос:
Скажите пожалуйста, сколько литров воды должно быть в системе отопления для лемакс ксг 20 мн , у меня около 180м2 в доме и воды в системе около 300литров. нормально ли это?
Ответ:
На 1квт — 12-14 литров воды.
Вопрос:
Приобрел газовый котел Лемакс рассчитанный на 300 кв.м., установил и постоянно горит, при достижении до набранной температуры не отключается т.е. все время жрет газ. Подскажите, пожалуйста, чем может быть вызвана такая причина.
Ответ:
Такое явление наблюдается, если:
— Квадратура отапливаемой площади (300 м/кв) равна мощности котла (30
кВт).
Обычно котел подбирают процентов на 20 по мощности больше, чем
пл.отопления.
— Если при вышеупомянутых равностях площадь-мощность, теплоноситель (вода) перегоняется насосом, а не самотеком. Котел просто не успевает прогреть эту разницу в 1-2 градуса (в самом котле, а не в системе, где между подачей и обраткой разница может достигать до 10 грд.) для нужного срабатывания автоматики тот объем воды, который гонит насос.
В таком случае насос стоит использовать только на короткое время (3-5 мин.) для уравнивания температуры во всех точках обогрева, а на остальное время выключать. Есть еще нюансы, но это уже более серьезный подход к данной теме, где важны и имеют значения многие факторы и детали.
Вопрос:
котлу 2 года на 350 кв.м. в собственном двухэтажном доме. специально
купили чугунный не энергозависимый, надеялись наслаждаться зимой и
сейчас в межсезонье жарой в доме. Как наступает весна или осень, то
тухнет по 20 раз в сутки, то вот сейчас просидела возле него 2 часа
зажечь не
могу, надоело держать кнопку запальника, там газ вообще в конфорки не
поступает.
Купили на свою голову, надо было сначала действительно отзывы
почитать.
Ответ:
Вся проблема в датчике тяги, вернее в разъёмах, снимешь или пошевелишь и котёл заработал.
Вопрос:
8 лет назад поставил себе котел лемакс ксг-7,5. Первые 3 года отработал без нареканий дальше начались проблемы с розжигом , т.к. котел гаснет постоянно. Был отключен датчик тяги, перегрева. Теперь еще и эл. магнитный клапан сломался. И в обще не понимаю, неужели нельзя было кнопку розжига удобнее сделать, когда по 2 часа его разжигаешь — пальцев не чувствуешь.
Ответ:
просто так котёл не отключается нужно искать причину, если уверены что магнитный клапан сломан то замените его, а датчик тяги зря отключили.
Вопрос:
Котел Лемакс КСГ-12,5Д (горелка ГГУ-15Д). резко потух, разжечь заново не получилось. Что делать, в чем причина?
Ответ:
Скорей всего, забился жиклёр пилотной (запальник) горелки. Нужно
открутить гайку термопары (находится справа от запальника), отвести в
сторону,
открутить гайку трубки запальника, отвести в сторону трубку достать
жиклёр, продуть.
Вопрос:
Лемакс КГС-16Д, количество теплоносителя до 240литров, я когда покупал его думал, будет нормально работать. Знал бы, что так будет, КЧМ бы не трогал. Почему тогда, если Лемаксу трудно продавить СО, он не выбрасывает воду через воздушную трубку в расширительный бачок, работает без всяких шумов и стуков, нагревает себя до 90гр и вырубается, чуть остывает и опять работает. А на выходе 60гр.
Ответ:
Отключите терморегулятор, тогда вода фонтаном. По поводу 240 л. Будет нормально работать. но с насосом и будет заметно экономичнее, чем КЧМ.
Вопрос:
Газовый котел Lemax, система розжига Sit 710, в момент отпускания кнопки розжига фитиль гаснет, Что делать? Закоротил датчик с двумя проводами снаружи. Заработало. Можно ли так оставить?
Ответ:
девять котлов из десяти работают с закороченными термопарами.
Теоретически да, этого делать не следует, опасно. Потому что в случае
прекращения подачи газа термопара должна разъединиться и перекрыть
подачу газа, предупредив тем самым утечку.
На практике: термопара
перегорает на фитиле очень быстро (потому что очень некачественная
спайка у них), даже на сезон не хватает, купить новую подчас довольно
сложно,
да и стоит она дорого.
Вопрос:
Подскажите от чего может отключаться котел сам по себе. Особенно часто это происходит в плохую и ветреную погоду. Как это можно исправить?
Ответ:
После зажигания запальника эмк должен сработать за 15-20сек. После потухания запальника отключение эмк (слышен щелчок) — не менее 10-12 сек.
Вопрос:
Подскажите, почему, когда отключается горелка и горит только запальник, огонь выбивается наружу вперёд — так, что возникает опасность для газогорелочного устройства, потому что огонь горит прямо под ним?
Ответ:
Потому, что нет тяги. Возможно, забиты сажей каналы в теплообменнике.
Вопрос:
Подскажите, пожалуйста, вот у нас стоит котел Лемакс, с 2009го года,
покупали новый. Всё это время огромная проблема его зажечь.
При
разжигании,
когда отпускаешь кнопку фитиль сразу гаснет. Пробовали долго кнопку
держать. Ничего не помогает. Иногда по нескольку часов приходится
разжигать, чтобы фитиль зажегся. мастера из газовой службы сказали что
это какие-то контакты. ничего толком не объяснили и не починили. Что
делать?
Ответ:
Нужно отключить датчик тяги, который находится сзади котла и проблем не должно возникать. Проверить, работает ли защита в случае отключения газа, защита должна сработать и котел отключится. Датчик находится ли вверху ссзади или на самом газогорелочном устройстве.
Вопрос:
Котел Лемакс не включается, что делать?
Ответ:
Возможно произошло закисание контактов термопары или термопара прогорела. Нужно зачистить контакты или замените термопару.
Вопрос:
Имеется газовый котел Лемакс КСГ-10 автоматика МиниСит. Всегда была
проблема с розжигом, там нужно нажать большую кнопку, зажечь фитиль и
медленно отпускать кнопку, а в это время запальник тухнет, требуются
очень крепкие нервы, чтобы эту кнопку отпускать медленно, чуть дернулся
и
клапан отсекает газ, запальник тухнет.
Во время розжига замыкаю контакты прямо на автоматике, эти контакты идут на датчик тяги, когда котел разгорался и набирал температуру минут через 20, я убирал перемычку и автоматика работала в штатном режиме, но что-то сломалось и сейчас котел тухнет когда я убираю перемычку, пробовал заменить этот датчик тяги, это оказался обычный термостат, у меня стоял на 110 градусов, такой не нашел, нашел на 120, а потом на 95, эффекта от замены никакого.
С замкнутой перемычкой эксплуатировать страшно, потому, как если он затухнет от ветра или еще от чего клапан не срабатывает, проверял. Что-то мне подсказывает, что навернулась автоматика, а не этот датчик. Что скажете?
Ответ:
Чтобы определить неисправность, нужно сделать несколько проверок:
— Проверьте, как запальник обогревает термопару. Пламя должно хорошо омывать рабочий конец.
— Чистые ли отверстия для инжекции воздуха в запальной горелке?
— Надежен ли контакт клемм с проводами? Самое лучшее — это пайка.
— Проверьте, хорошо подтянуты возле газового клапана переходник, откуда идут провода и термопара.
Клапан 710 минисит, как правило, работает без поломок. Также в процессе эксплуатации, возможно засорение отверстий, которые необходимо чистить.
Вопрос:
Котел Лемакс К-Плюс, при пуске котла периодически выходит авария Е5, но котел не уходит в аварию, а продолжает работать но после нескольких перезапусков выходит ошибка Е9, постоянно повторяющиеся Е5. Плату поменяли, пневмореле тоже. Что может быть? В стабилизаторе фаза проходная, стабилизатор автотрансформаторный.
Ответ:
Меряйте напряжение на самих контактах прессостата и на плате, возможно проблема в плохих контактах. А должен быть ноль проходной, а по фазе — регулирование.
Вопрос:
У меня стоит новый котел Лемакс-10. Проблема одна — периодически тухнет
и тухнет. Приходили из газовой службы — напели что-то про плохой
дымоход, типа надо сначала там проблему решать, и ушли.
Может конечно и
в дымоходе проблема, но старый котел АОГВ отработал 23 года с этим
дымоходом. Друзья, в чем причина такого поведения котла, что делать?
Ответ:
Для начала — проверьте тягу. Возможна, что при горении пламя просто не попадает на термореле, автоматика думает, что пламя потухло и отключает газ. Такая ошибка часто возникает из-за механических повреждений или засорения форсунки.
Вопрос:
Котел «Lemax» Таганрог. Автоматика «Данко». Не могу разжечь котел. Фитиль тухнет после отпускания кнопки, сколько бы долго не держал ее нажатой. Термопара омывается пламенем, тяга есть, давление газа достаточное. Контакты, как рекомендуют, чистил. Помогите советом, пожалуйста. Когда отпускаю кнопку запуска то слышен слабый металлический щелчок при затухании пламени.
Вопрос к спецам по Евросит630 — автоматика при
нормальной настройке должна повышать мощность при повороте на большие
деления линейно или нет? у меня — почти с 3 и выше деления идет на
максимуме.
никаких линейных повышений мощности, да еще и самой
автоматикой не наблюдается.
Ответ:
Возможно причина в датчике тяги — плохо закреплен. Можно припаять провода к датчику вместо съемных контактов и зафиксировать их.
Вопрос:
Котёл отопительный водогрейный ЛЕМАКС КСГ-7,5 с автоматикой «Комфорт». Указатель температуры воды работает, ручка терморегулятора работает, батареи равномерно нагреваются. Но не стала работать АВТОМАТИКА на терморегуляторе, перестала периодически отключаться. Не могу понять причину.
Ответ:
Можно предположить, что при работе котла, при достижении температуры воды установленного значения основная горелка не переходит на режим работы «малый газ». Решение проблемы — замена термосистемы «сильфон-термобаллон».
Вопрос:
пять лет стоял котел лемакс ксг12, площадь 30 кв м, расход небольшой, но температура воды не больше 60 горит не переставая две батареи средних по 14 секций, как сделать теплее, как поднять температуру в котле?
Ответ:
в сильные морозы падает давление в газовой магистрали, соответственно к
котлу поступает меньше газа чем требуется, от этого и температура
теплоносителя, меньше заданной.
Может помочь также установка
циркуляционного насоса.
__________________________________________________________________________
__________________________________________________________________________
__________________________________________________________________________ _________________________________________________________________________________________________________________________________________________________
_______________________________________________________________________________
__________________________________________________________________________
ЭКСПЛУАТАЦИЯ И РЕМОНТ КОТЛОВПротерм Пантера
Протерм Скат
Протерм Медведь
Протерм Гепард
Эван
Аристон Эгис
Теплодар Купер
Атем Житомир
Нева Люкс
Ардерия
Нова
Термона
Иммергаз
Электролюкс
Конорд
Лемакс
Галан
Мора
Атон
_______________________________________________________________________________
Модели котлов Советы по ремонту котлов Коды ошибок Сервисные инструкции_______________________________________________________________________________
Монтаж и эксплуатация газовых котлов Бош 6000
Управление и обслуживание котлами Vaillant Turbotec / Atmotec
Обзор газовых котлов Житомир-3 Атем
Монтаж системы отопления частного дома
Котлы Данко, Росс и Dani — Ответы специалистов на вопросы пользователей
Рекомендации по монтажу настенных газовых котлов Навьен
Обзор твердотопливного котла Купер ОК-15 Теплодар
Неисправности и ошибки котлов Ферроли
Сборочные элементы, монтаж и подключение электрокотла Скат Protherm
Обзор отопительных котлов Дон КСТ-16
Ремонт и сервис котлов Вайлант — ответы экспертов
Обзор газового котла КСГ Очаг
Обзор отопительного котла Купер ОК-20 Теплодар
Комплектация и компоненты электрического котла Протерм Скат
Подключение и ввод в работу котла Будерус Логомакс U072
Ответы специалистов по неисправностям котлов Китурами
Советы мастеров по обслуживанию котлов Навьен
Обслуживание компонентов газового котла Navien Deluxe
Подключение котла Аристон Egis Plus 24 ff к рабочим системам
Неисправности котлов Лемакс Премиум
________________________________________________________________________
Прошу помощи, чтобы избавиться от небольшой проблемы.
Ввели в
эксплуатацию газовый котел Лемакс Премиум. Если выполнить розжиг, то
главная горелка загорается интенсивно, но по прошествии 10-20 секунд
затухает. Новый запуск не дает изменений. Кто сталкивался с таким?
В первую очередь проверить датчик тяги и термопару. Провести проверку контактов цепи. Осмотрительно разобрать пилотную горелку и продуть. Проведите настройку запальной горелки в сторону уменьшения давления газа. Судя по всему, тяга стала плохой, поэтому запальной горелке не хватает воздуха для розжига главной горелки.
Изрядно дымит факел и горелка имеет непрерывное горение, не тухнет. Температура свыше заданной подняться не может, тогда как пламя будет гореть. На деталях агрегата большой налет копоти. Газовая организация объяснила, что недостаточная тяга. Что можно сделать?
Вероятней всего, приток воздуха уменьшился. Обязательно нужно выполнить
техобслуживание. Снять горелочный узел, продуть и почистить жиклеры и
горелку. Теплообменник необходимо почистить снаружи.
Скажите из-за чего агрегат начинает коптить? Что необходимо сделать для того, чтоб устранить данную проблему?
Скорей всего, уменьшилась в камере сгорания. Рекомендуем очистить дымоход.
Что можно сделать, скажите, когда напольный котел Лемакс Премиум не хочет разжигаться? Держу рукоятку управления, нажимаю клавишу включения розжига, далее удерживаю ее где-то минут восемь, отпускаю, и он угасает.
Видимо, трубка запальной горелки засорилась. При данной проблеме вы должны провести сервисное обслуживание. Еще может быть окисление клемм на датчике тяги. Разъедините зажимы и удалить с них налет.
Неполадка напольного газового котла Лемакс Премиум. При нажимании на кнопку зажигания, отсутствует подача газа на механизм горелки. Какая может быть причина?
Когда Вы нажимаете кнопку, топливо проходит исключительно в запальное устройство, на главную горелку его подача не производится.
Подключили в систему такой же агрегат. Меня не радует переход с фитиля на главное горелочное устройство. Слышится три хлопка. В чем проблема?
Видимо, требуется отрегулировать газовый клапан.
В систему подсоединили прибор такой же модели с узлом автоматики, который перестает работать при нагревании примерно 65 градусов. Прошу помощи, чтобы устранить такую поломку?
Похоже, начинает действовать датчик тяги. Требуется произвести проверку дымоотводного канала.
В доме установлен данный агрегат. В начале недели нагрев остановился на 40 градусах, при этом факел непрерывно горит. Что случилось?
Не исключено, что засорилась трубка подачи газа от узла автоматики на газогорелочном устройстве, а кроме этого горелочный жиклер.
В нашем доме есть газовый двухконтурный котел Лемакс Премиум. Неделю назад вылезла у него неисправность. Аппарат гаснет, когда на запальное устройство дует ветер. Не так давно проводил замену термопары, но результата нет. В чем вопрос?
Когда запускается основная горелка, это создает снижение подачи топлива на запальное устройство, поэтому должна включиться защитная автоматика. рекомендуем Вам прибавить подачу топлива на запальное устройство. Подобное может возникать периодически по причине спада давления в системе. Другой причиной является уменьшение тяги в дымоходе, если он смонтирован неверно.
Можете мне подсказать, из-за чего иногда выключается эта модель, главным образом, когда снаружи ветер и дождливая погода. Каким образом следует решить проблему?
В момент пуска запального устройства, ЭМК срабатывает в течении двадцати секунд. Когда запальник затухает, прекращение работы электро-магнитного клапана произойдет на отрезке в десять секунд, будет слышен щелчок.
Несколько лет назад смонтировал на даче стальной газовый котел Лемакс Премиум. Строение невеликое, по метражу около 35 метров. Кажется, что потребность мала, хотя нагревание воды не бывает выше шестидесяти пяти градусов. В доме стоят 2 радиатора по 12 секций. Не понимаю, как же повысить температуру нагревания?
Вам может помочь установка циркуляционного насоса. Иногда может падать давление в магистрали газа.
По какой причине во время эксплуатации часто возникает перегрев котла?
Главный фактор — исчезла циркуляция в контуре отопления. Также вероятен засор фильтров или переизбыток воздуха в отопительной системе.
У меня возникла неполадка. Если мы закрываем холодный кран и начать открывать горячее водоснабжение, вся вода исчезает из контура отопления. Подскажите причины?
Похоже, неправильно работает подпиточный кран системы отопления. Он дает воде проходить по обеим линиям. Если присутствует давление жидкости в системе, то пропускания в обратном направлении не может случиться.
По какой причине аппарат шумит, булькает, а временами долго воет и сильно хлопает?
Вода в системе значительно обогащена кислородом. В процессе нагрева выделяются пузыри воздуха, поэтому слышится шум. Если агрегат настроен неправильно, то может выть байпас или газовый клапан. Громкие хлопки при запуске свидетельствуют о неисправности с розжигом.
Произвели в конце 2017 года установку отопительного котла Лемакс Премиум. Приблизительно спустя несколько месяцев произошла неполадка. Пытаюсь настроить температурный цикл, а он его не держит. Подскажите, почему не держится температура?
По-видимому, возникла неисправность с автоматикой, и если температура повышается на 70 градусов, форсунки отключаются. Нужно настроить автоматику для корректной работы. Еще одним фактором может быть то, что Вы выбрали неверную мощность прибора пропорционально площади отопления.
Произвели в середине этого года запуск такого же прибора. Сделали переналадку на сжиженный газ. За полгода истрачено приблизительно восемь кубометров. В настоящее время внутри прибора большое количество нагара, а также начала коптить основная горелка. В чем причина этого явления?
Большое количество отложений сажи в топочной камере означает, что газогорелочное устройство не отрегулировано, поэтому газ может сгорать не в полной мере. Также возможен низкокачественный сорт газовой смеси. Для того, чтобы не было копоти от горелки, требуется своевременно делать чистку с использованием воды.
Подключен в систему данный аппарат. При пуске газовая горелка зажигается и неожиданно тухнет. Я полагаю, что отсутствует запальная искра. Помогите отремонтировать такую неполадку?
Вам нужно проверить, слышится ли звук при возникновении искры запального механизма, в случае извлечения кабеля на розжиг. Если нет, надлежит сменить запальный трансформатор. Если есть, выполните замену электрода розжига либо горелки.
Буквально вчера у нас появилась проблема с газовым котлом Лемакс Премиум двухконтурный. Стала течь вода. Он исправно действовал только 2 недели. Подскажите мне, почему капает вода?
Капать может по причине большого давления в системе. Еще, вероятно, разрушение стенок теплообменника. Гидравлические удары в равной степени могут стать причиной течи в котле.
Мне установили такой же прибор. Не так давно случилась с ним неполадка. Он включается, но дом не нагревает. Что могло произойти?
Возможно, скопился воздух внутри батарей или имеется накипь в теплообменнике. Его требуется отмыть.
Мы используем в квартире данный прибор. До сегодняшнего вечера работал хорошо. Теперь в нем возникла неисправность. Он постоянно перегревается. Каким образом отремонтировать такую неполадку?
Предположительно, случился засор от накипи, вследствие чего закупорился проток. Вам нужно очистить аппарат.
Недавно выявилась проблема с котлом. Был в эксплуатации в общей сложности 3 недели. После этого неожиданно он закончил подъем настроенной температуры. Может быть, кто объяснит, в чем причины?
Возможно, система имеет газовое давление меньше, чем рекомендовано. Следует проверить газовый кран. Скорей всего, внутри много смазки. Просто уберите лишнее.
Хотелось бы узнать, как накачать бак расширителя?
Расширительный бачок подкачивается простым подручным насосом до требуемого по инструкции давления. Обычно примерный диапазон 1-1.5бар. Чтобы подкачать бачок, обязательно нужно удалить жидкость из котельного прибора. Сливать можно через сливной штуцер или через кран разбора воды, заглушив приток ГВС.
Котел Лемакс серии Премиум не выполняет запуск. Если удерживать клавишу старта, горелочное устройство работает. Но стоит не фиксировать клавишу, аппарат затухает. Объясните причину неполадки?
Скорей всего, неисправен термоэлектрический преобразователь либо поломка газового клапана. Еще может быть пониженное давление газа на входной магистали. Иногда присутствует недостаточное напряжение платы управления.
Расскажите, пожалуйста, какие действия регламентируется выполнять с целью переналадки сжиженного газа на природный?
Вначале требуется поменять форсунки основной горелки. Далее изменить напряжение питания модулятора. По окончании отрегулировать параметры минимального и максимального давления.
Как работает клапан защиты отопительной системы?
Такой клапан, который отрегулирован на требуемое давление, обслуживает отопительную систему. Не разрешается применять предохранительный клапан в целях опорожнения системы.
Время от времени увеличивается давление системы отопления. Давление расширительного бачка уменьшаю. Может такое быть, что вода контура отопления проникает из труб ГВС?
Увеличение давления отопительной системы охарактеризовать следующими основными факторами. Плохо отрегулировано давление для бака-расширителя. Вентиль подпитки протекает.
Возникла неисправность. Розжиг выполняется очень тяжело. Запальное устройство горит, но главной горелке пламя отсутствует. Кто-нибудь может объяснить, какая это причина?
Похоже, функциональный сбой работы устройства розжига. Вам понадобится провести проверку аппарата и чистку узла зажигания.
Кто-нибудь может помочь прояснить ситуацию с дымоходным каналом? Скоро вторые сутки, как присутствует возвратная тяга, при этом дым попадает непосредственно в комнату. Дымоходом занимались самостоятельно. Он выполнен из стальной трубы. Может быть в расчетах допущена ошибка.
Главным фактором выступает не правильно сделанная структура дымоходной трубы. Возможно отложение сажи на стенках трубы, которое заметно сокращает его коэффициент полезного действия. Кроме того, требуется проверять вытяжку в доме.
________________________________________________________________________
________________________________________________________________________
________________________________________________________________________
________________________________________________________________________
________________________________________________________________________
Эксплуатация, вероятные поломки и техническое обслуживание котла Лемакс Лидер
______________________________________________________________________________
Скажите, как можно исправить неполадку. В доме установлен чугунный газовый котел Лемакс Лидер 25 имеющий автоматику Минисит 710. Когда запускаешь розжиг, основная горелка загорается ярко, но спустя 15-25 секунд тухнет. Повторная процедура ничего не меняет. Кто сталкивался с таким?
Сперва смотрите термопару и датчик тяги. Провести проверку контактов цепи. Осмотрительно разукомплектовать запальник и продуть. Настройте пилотную горелку на меньшее давление газа. Похоже, тяга стала плохой, а значит запальной горелке не хватает воздуха при розжиге главного горелочного устройства.
Основательно начал коптить факел и газогорелочное устройство горит безостановочно, не затухая. Температура сверх установленной не поднимается, тогда как огонь продолжает гореть. В приборе много копоти. В газовой службе говорят, что это недостаток тяги. Как это исправить?
Возможно, имеет место нехватка воздуха. Необходимо провести техобслуживание. Снять горелочный узел, прочистить и промыть горелку и жиклеры. Теплообменник следует почистить с наружней стороны.
Подскажите, пожалуйста, из-за чего агрегат начинает коптить? Что нужно сделать для того, чтоб решить этот вопрос?
Вероятно, уменьшилась в топочной камере. Можем посоветовать прочистить канал вывода дыма.
Каким образом действовать, расскажите, когда отопительный котел Лемакс Лидер 40 не идет на розжиг? Держу ручку управления, щелкаю клавишу поджига, далее держу в таком положении приблизительно минут пять, когда отпускаю, и агрегат угасает.
Вероятно, трубка запального устройства имеет загрязнение. При такой неисправности обязательно нужно провести сервисное обслуживание. Еще одной неполадкой может являться окисел на клеммах датчика тяги. Нужно разъединить клеммы и удалить с них налет.
Проблемы у напольного газового котла Лемакс Лидер 16 с узлом автоматики Eurosit 630. При нажатии на клавишу включения розжига, не подается газ на механизм горелки. Что случилось?
Когда Вы нажимаете эту клавишу газ входит исключительно в запальное устройство, на основное газогорелочное устройство его вход не осуществляется.
Установили данный агрегат. Меня не радует переключение с запальной горелки на главную горелку. Все время слышно несколько хлопков. Так должно быть?
Вероятно, следует выполнить регулировку автоматики по давлению газа.
В систему подсоединили аппарат данной марки с блоком автоматики Минисит 710, который самостоятельно отключается при нагревании ориентировочно шестьдесят градусов. Скажите, как можно избавиться от этой проблемы?
Предполагаем, что срабатывает датчик по тяге. Необходимо сделать проверку дымохода.
В работе аппарат данной марки. Сегодня нагрев встал на 40 градусах, но факел беспрерывно горит. Что случилось?
Наверное, засорилась трубка на подачу газа от узла автоматики на горелке, а кроме этого горелочная форсунка.
Имеется напольный котел Лемакс Лидер 16 с узлом автоматики Eurosit 630. Накануне обнаружилась с ним поломка. Прибор погасает, как только на запальник попадает поток ветра. Два раза заменял термопару, но ничего не помогло. Что нужно сделать?
Когда включается главная горелка, это приводит к снижению поступления топлива на запальное устройство, а значит включается блок автоматики. Вы должны добавить поступление газа на запальник. Подобное происходит нередко в следствие падения давления в отопительной системе. В некоторых случаях может быть отсутствие тяги в дымоходе, если он установлен с ошибками.
Скажите нам, пожалуйста, по каким причинам в доме самопроизвольно отключается эта модель, преимущественно, когда на улице сильный ветер и плохая погода. Как следует отремонтировать?
В случае включения запальной горелки, ЭМК обязан сработать за 15 секунд. Когда запальник тухнет, выключение ЭМК клапана возникает через 10 секунд, в это время послышится щелчок.
Четыре года назад поставил на даче чугунный газовый котел Лемакс Лидер 35. Дом небольшой, площадь не более тридцати метров квадратных. Как видно, расход малый, хотя нагрев теплоносителя не бывает выше пятидесяти градусов. В комнате находятся две батареи по двенадцать секций. Не могу понять, каким образом повысить температуру нагревания?
Для устранения проблемы нужна установка насоса циркуляции. Часто возникает снижение давления в газопроводе.
По каким причинам во время эксплуатации часто бывает перегрев котла?
Основной фактор — пропала циркуляция в контуре отопления. Также возможно загрязнение фильтра или завоздушивание в отопительной системе.
У нас случилась неполадка. Когда закрыть вентиль холодной воды и открыть кран на горячую воду, вся вода исчезает из отопительной системы. Что происходит?
Похоже, неправильно работает подпиточный кран системы отопления. Он дает двигаться воде в обоих направлениях. Когда есть давление жидкости в системе, то пропускания в другую сторону возникать не может.
Почему аппарат шумит, булькает, а временами сильно воет и громко хлопает?
Жидкость в системе весьма наполнена кислородом. Во время нагрева выделяются пузыри воздуха, из-за чего можно слышать шум. При неправильной регулировке аппарата воет клапан газа или байпасный клапан. Хлопки на этапе старта указывают на неполадку запального механизма.
Выполнил в октябре того года ввод в эксплуатацию котла Лидер 50. Предположительно через полгода возник сбой. Пытаюсь установить температурный режим, но он не удерживает его. Объясните, в чем причина?
Очевидно происходит сбой автоматики, и когда поднимается температура на 65 градусов, форсунки перестают работать. Необходимо отрегулировать автоматику для правильной работы. Также причиной может быть то, что Вы выбрали неверную мощность аппарата пропорционально площадям, которые надо обогревать.
Провел в начале августа установку данного прибора. Он функционирует на сжиженном газе. За 3 месяца истратилось почти девять кубов. В данный момент внутри агрегата переизбыток нагара, и еще коптит горелка. В чем причина этого явления?
Слишком много нагара в топке указывает на то, что плохо настроена горелка, и газ сжигается не в полном объеме. Также возможен неудовлетворительный состав смеси газа. Чтобы не коптила горелка, нужно своевременно выполнять влажную очистку.
Ввел в эксплуатацию данный прибор. Во время запуска газовая горелка зажигается тотчас же тухнет. Мне кажется, что запальник не в порядке. Каким образом отремонтировать такую аварию?
Проверьте, слышится ли звук при возникновении запальной искры, в случае отсоединения кабеля розжига. Если нет, вы должны заменить запальный трансформатор. Если есть, проведите замену электрода розжига либо самой горелки.
Несколько дней тому назад выявилась неприятность с газовым котлом Лемакс Лидер 25. Из него капает вода. Работал он только 3 недели. Возможно, кто-то скажет, почему происходит течь?
Капанье может происходить из-за чрезмерного давления в системе отопления. Может быть разрушились стенки теплообменника. Гидравлические удары точно так же становятся источником течи в котле.
В систему отопления хочется произвести подключение этого агрегата. Объясните, сколько должно быть стандартное давление на подачу газа (метан/пропан) для данных устройств?
В таком типе аппаратов величина стандартного давления подачи газа (природного/сжиженного) составляет 150.0/300.0 Паскаль.
В работе данный аппарат. Не так давно случилась с ним неполадка. Он включается, но дом не нагревает. Чем это объяснить?
Возможно, скопился воздух в батареях или много накипи в теплообменнике. Его следует отмыть.
Используем в доме такой же прибор. До вчерашнего времени работал бесперебойно. Теперь в нем случилась проблема. Он усиленно уходит в перегрев. Как исправить эту неполадку?
Скорей всего, наросла накипь, поэтому закупорился проток. Вам нужно очистить аппарат.
Недавно у нас появилась неисправность с котлом. Агрегат функционировал не более, чем 2 недели. После этого неожиданно он прекратил набор установленной температуры. Подскажите мне, что происходит?
В вашей системе давление газа меньше требуемого. Вам необходимо проверить газовый кран. Скорей всего, смазки внутри в избытке. Требуется удалить лишнюю.
Не могли бы Вы подсказать, как подкачивать расширительный бачок?
Расширительный бачок подкачивается любым подручным насосом до рекомендуемого по инструкции давления. Обычно диапазон равен от 0.8 до 1.5 бар. Перед тем, как подкачивать бак, необходимо удалить воду из котельного прибора. Это выполняется через сливной штуцер либо через кран водоразбора, перекрыв подачу горячего водоснабжения.
Котел Лидер 35 не может запуститься. Когда держишь кнопку пуска, горелка функционирует. Если отпустить клавишу, прибор отключается. Какая причина неполадки?
Похоже, повреждение термоэлектрического преобразователя или газовый клапан. Еще может быть снижение давления газа на подводящем трубопроводе. В некоторых случаях возникает недостаток напряжения платы управления.
Скажите мне, какого рода операции требуется проводить с целью переоснащения вида газа?
Для этого нужно заменить форсунки основного горелочного устройства. Далее изменить напряжение модуляторного питания. И в завершении настроить диапазон давления на максимуме и минимуме.
Как работает предохранительный клапан в отопительной системе?
Этот компонент, который отрегулирован на требуемое давление, защищает отопительную систему. Запрещается применять защитный клапан для слива отопительной воды.
Постоянно увеличивается давление в системе отопления. Давление бака-расширителя понижаем до предела 2.2-2.4 атмосферы. Возможно ли, что вода контура отопления попадает из системы ГВС?
Подъем давления в отопительной системе можно объяснить следующими основными факторами. Плохо отрегулировано давление для расширительного бака. Подпиточный кран подтекает.
У нас появилась неполадка. Старт выполняется очень трудно. Запальная горелка зажигается, но основной горелке огня нет. Никак не могу понять, какая это причина?
Вероятней всего, поломка компонентов механизма розжига. Вам требуется провести техническое обслуживание агрегата и очистку разжигающего устройства.
Кто-то может сказать, как разобраться с дымоходным каналом? Скоро второй день, как возникает обратная тяга, при которой дым проникает прямо в помещение. Дымоходом я занимался сам. Он выглядит как труба из металла. Может быть в чем-то есть недоработка.
Важной причиной является не правильно выполненная конструкция дымохода. Возможно отложение сажи на стенках трубы, которое заметно сокращает его возможности. К тому же рекомендовано проверять вентиляцию в жилых помещениях.
______________________________________________________________________________
______________________________________________________________________________
______________________________________________________________________________
______________________________________________________________________________
______________________________________________________________________________
Котел Лемакс тухнет и тухнет. Что за устройство у него, что там не работает? Системы отопления дачных и загородных домов
Газовый котел является важной составляющей автономного режима отопления. Исправная работа в холодную пору радует каждого владельца и не требует дополнительного вмешательства в процесс работы.
Однако бывают случаи, когда котел внезапно тухнет или отключается сам по себе через некоторое время после включения. Что делать и как избавиться от представленной проблемы, расскажет данная статья.
Причины прекращения работыПричин может быть несколько, рассмотрим каждую в отдельности:
1. Длительное время простоя котла.
В результате может произойти разморозка котла и он придет в негодность. Как следствие — резкое затухание, из камеры сгорания доносятся звуки ветра, задувающего пламя.
По причине указанных факторов на приборной панели возникает аварийный сигнал, говорящий о потребности в проведении срочной диагностики аппарата. Современные котлы представляют собой довольно сложную и полностью автоматизированную систему. Поэтому, если один из датчиков подает сигнал о неполадке, агрегат прекращает работу. Не нужно сразу менять котел или устанавливать новый дымоход, очень важно разобраться в проблеме и найти способ ее решения.
2. Неисправность дымохода.
При наличии проблем в виде затухания котла важно также проверить исправность и функционирование дымохода. Первой причиной может быть образование на стенках дымохода наледи, которая возникает через оседание горячего пара с последующим образованием конденсата. По прошествии определенного промежутка времени конденсат замерзает и становится толстым слоем льда. После этого уменьшается тяга и котел затухает.
Выходом в данной проблеме станет и его утепления, чтобы минимизировать замерзание конденсата.
3. Обратная тяга.
Как правило, такой род проблемы наблюдается при сильных порывах ветра. Ветер поступает в дымоход и соответственно задувает пламя котла. Обратная тяга является самой распространенной причиной задувания и выключения котла.
Обратите внимание: обратная тяга довольно опасна, так как некоторые котлы старого типа имеют устаревшую автоматику, которая не выключает котел, и он продолжает накапливать продукты сгорания внутри помещения.
4. Недостаточный подъем дымохода.
Если высоты дымохода не хватает для предотвращения попадания в котел воздуха с последующим затуханием, хорошим решением для быстрого разжигания станет увеличение его длины, при которой верх дымохода должен выходить за конек крыши приблизительно на 50-60 см.
5. Прогорание трубы.
Недостаточная тяга бывает результатом наличия отверстия в трубе, в которое идет ветер, в связи с этим дымоход начинает плохо функционировать. В этом случае требуется полная замена дымохода.
6. Скачки напряжения.
Данная причина никак не зависит от внешних факторов и возникает в результате падения уровня напряжения. При восстановлении должного уровня напряжения во многих котлах пламя снова загорается, в связи с этим многие владельцы даже не замечают данной проблемы.
7. Недостающее давление газа.
Очень часто проблема угасания котла кроется в отсутствии достаточного давления газа на входе в котел, при котором агрегат бухает и затухает. Основанием могут служить неисправности самой сети или же внутренние причины, а именно:
7.1 Неисправность газового счетчика. Бывают случаи, когда механизм котла заедает, и он перекрывает допуск газа. Для выявления очага поломки необходима проверка работы механизма счетчика, показания которого должны меняться.
7.2 Нарушена герметизация креплений. Утечка газа провоцирует спад давления, при котором происходит автоматическое срабатывание системы и газовый аппарат тухнет. Выявить данную проблему можно по наличию специфического запаха в помещении.
Примите к сведению: провести самостоятельную диагностику и выявить проблему можно с помощью обычной губки с мыльной пеной — на местах утечки возникнут пузыри.
Манипуляции, применяемые для решения проблемыХорошим решением для предотвращения задувания ветра и выключения котла станет или дефлекторов.
Причиной угасания пламени также может послужить приточная вентиляция.
В этом случае поможет открывание входной двери, после чего газ снова загорится.
Повышение воздухообмена в отдельных котельных можно сделать путем оборудования вентиляционного окна внизу двери, которое закрывается мелкой сеткой.
Проблемы затухания, связанные с самим котломНеисправности разного рода могут также возникать в самом котле и служить причиной выключения или затухания аппарата.
Проблемы могут выражаться следующими признаками:
1. Газовая горелка не запускается или горит очень слабо. Происхождение проблемы может крыться в засоре форсунок. При неудовлетворительной работе форсунок горелка может начать коптить. можно самостоятельно, используя тонкую проволоку или мягкую щетку.
2. Горелка гаснет после непродолжительной работы. Источником может послужить загрязнение ионизационного электрода, нарушения зазора или отрыв соединительного провода, при котором агрегат воет и издает гул. Такого типа поломки вполне устранимы.
3. Отрыв пламени. При данной неисправности необходима регулировка давления газа в запальнике. Причиной также может быть чрезмерная вентиляция.
4. Посторонние шумы в аппарате и беспричинное выключение. Это может говорить о поломке внутреннего вентилятора или насоса, а также выхода из строя терморегулятора.
Обзор производителейГазовые службы, а также специалисты в данной области рекомендуют использовать котлы фирмы-производителя «Конорд». Агрегаты представлены в нескольких вариантах и отличаются по функциональным особенностям. Котлы выпускаются только напольного типа.
Главным отличием от других аналогов является доступная цена и отсутствие в необходимости электричества для работы.
Популярностью также пользуются котлы «Кебер», оборудованы автоматической системой безопасности и регулирования, при которых выполняется точная подача газа и стабилизация температуры.
Газовые котлы серии АОГВ довольно востребованы и используются для обогрева помещений, имеющих систему водного отопления с природной или искусственной циркуляцией.
Компания «Термотехник» (Termotechnik) представляет большой выбор котлов и предлагает агрегаты напольного, парапетного типов, газовые и твердотопливные. Многолетний опыт работы обеспечивает отменное качество и гарантирует надежность продукции и долгий срок эксплуатации.
Устранение проблем, связанных с задуванием котла, требует особой внимательности и ответственности. Необходимо проверить все составляющие котла, для определения и ликвидации причины неисправности. В случае, если представленные рекомендации не принесли результата, стоит вызвать мастеров газовой службы. Помните, что быстрое избавление от проблем предотвратит дополнительные поломки и обезопасит не только всю систему, но и жильцов дома.
Смотрите видео, в котором специалист рассматривает одну из самых распространенных причин: почему тухнет газовый котел при ветре, что необходимо предпринять, какие провести работы по улучшению тяги в котле:
Из данной статьи вы узнаете, какие проблемы могут возникать в автоматике газовых котлов, почему не получается разжечь запальник, из-за чего котёл может без причины отключаться, а главное, разберёмся, какие действия необходимо предпринять для диагностики и устранения данной неисправности.
Владельцам энергонезависимых газовых котлов наверняка знакома ситуация, когда по какой-то причине не удаётся разжечь котёл, или же на розжиг тратится много времени. В данном случае проблема кроется в автоматике котла.
На сегодняшний день в отечественном и импортном газовом оборудовании наиболее часто применяется газовый клапан EUROSIT 630. Именно он выполняет функции поддержания заданной температуры теплоносителя и в случае аварийной ситуации осуществляет полное перекрытие подачи газа к горелкам. Дальнейший запуск котлов с такой автоматикой возможен только вручную. Однако не всегда причиной аварийного отключения котла является реальная авария.
Попробуем разобраться в этом на примере котла «Житомир-3». Из автоматики в нём предусмотрена защита от пропадания пламени на запальнике и нарушения тяги.
Примечание: Все газоопасные работы должны выполняться исключительно представителями специализированных организаций, имеющих соответствующие разрешения. Поэтому данная статья предоставляется исключительно в ознакомительных целях. Также данная статья поможет проконтролировать работу мастера и, возможно, избавит вас от необходимости приобретения ненужных запчастей.
Определимся, что мы будем называть розжигом запальника. Ручка управления клапана EUROSIT 630 позволяет переводить котел в три основных режима:
- отключён;
- зажигание;
- регулировка температуры (1-7).
Для розжига пилотной горелки (запальника) необходимо перевести ручку управления в положение «зажигание» (искра), нажать на неё и при помощи кнопки пьезорозжига разжечь пилотную горелку. Далее ручка удерживается в течение нескольких секунд (не более 30) и отпускается. Запальник должен продолжать гореть. Это мы и будем называть розжигом запальника. Если запальник погас — необходимо повторить процедуру ещё несколько раз. Если это не помогло — необходимо искать неисправность.
В момент розжига запальника пламя нагревает термопару, которая в свою очередь вырабатывает ЭДС (примерно 25 мВ для исправных термопар SIT), которая поступает через цепь датчика (датчиков) автоматики к электромагнитному клапану.
Нажимая на ручку газового клапана, мы вручную открываем электромагнитный клапан, подавая газ на запальник, который, в случае правильной работы оборудования, удерживается вырабатываемой термопарой ЭДС и остаётся в открытом положении после отпускания ручки. Сама термопара выполняет функцию защиты от пропадания пламени на запальнике. Датчики, находящиеся в цепи, являются нормально-замкнутыми и при срабатывании размыкают свои контакты, обеспечивая полное отключение котла.
Подготовка к работе
Для проведения работ по определению и устранению проблем с розжигом запальника нам понадобится следующий инструмент:
- рожковые ключи № 9, 10, 12;
- плоскогубцы;
- мультиметр;
- отвёртка с плоским шлицем;
- спирт.
Приступаем к работе
Для определения причины возникновения неисправности проверим цепь термопары — электромагнитный клапан. Для начала проверяем датчик тяги. В данном котле он расположен на газоходе. Для этого снимаем две клеммы с датчика.
Замыкаем две клеммы между собой, они должны соединиться плотно (для этого можно их немного поджать плоскогубцами).
Пробуем произвести розжиг запальника. В случае если это удалось сделать, причина неисправности в датчике тяги. Однако не спешите его менять. Для начала проверим его.
Примечание: в данной работы мы демонтируем датчик для того, чтобы показать особенности его установки на котле и маркировку. Для проверки это делать не обязательно.
Откручиваем два винта крепления датчика тяги к газоходу котла.
Обратите внимание, что датчик не крепится вплотную к корпусу газохода, а установлен на паронитовых прокладках. Это необходимо для того, чтобы уменьшить нагрев датчика через его контакт с корпусом, а также чтобы обеспечить зазор между отверстием в газоходе и плоскостью датчика.
Осматриваем датчик. Его контакты должны крепко держаться на корпусе. На них не должно быть окисления. Номинал датчика (температура, при котором контакт датчика разомкнется) в данном случае 75 °С (обозначение на корпусе L75C).
Проверяем датчик тяги тестером, измеряя его сопротивление. Оно должно быть минимальным (равным сопротивлению щупов) — 1-2 Ом. В случае если датчик не прозванивается, однозначно необходима замена на аналогичный (с соответствующей температурой срабатывания).
Если датчик удалось прозвонить, протираем спиртом контакты датчика и клеммы цепи, поджимаем их плоскогубцами и просушиваем. Монтируем датчик на место и подключаем его. Пробуем произвести розжиг.
Если розжиг удалось произвести, причина неисправности найдена и устранена.
Обязательно после розжига основной горелки нужно проверить тягу. Для этого можно поднести руку к месту, где установлен датчик тяги. Из этого отверстия не должно идти тепло. Если это происходит — необходимо устранять причину, вызывающую недостаточную тягу. Датчик в таком случае срабатывает правильно.
Внимание! Эксплуатировать котел с неисправным дымоходом категорически запрещено!
Снимаем клеммы с контактов тягопрерывателя и измеряем сопротивление цепи. Оно должно быть не более 3 Ом.
Если это условие соблюдается, производим следующие действия. Ключом № 9 откручиваем гайку крепления термопары к тягопрерывателю. Ключом № 12 откручиваем на пол оборота тягопрерыватель, который состоит из двух деталей: латунной гильзы и пластиковой вставки.
Вынимаем пластиковую вставку с контактами и откручиваем деталь полностью.
Проверяем термопару. Присоединяем её напрямую к электромагнитному клапану (место, где был установлен тягопрерыватель). Фиксируем её ключом № 9.
Производим розжиг запальника. Если его не удалось произвести — причина неисправности, скорее всего, в термопаре. Электромагнитный клапан выходит из строя крайне редко.
Осмотрим термопару. В некоторых случаях термопара поддаётся ремонту. Случается, что контакт термопары отпадает. Это не повод для замены, достаточно пропаять его.
Важно, чтобы диэлектрическая прокладка была цела.
Проследите, чтобы термопара правильно была установлена в пламени запальника. В пламя должен быть погружен кончик термопары.
Для настройки положения термопары относительно пламени запальника необходимо отпустить ключом № 10 гайку крепления термопары к пилотной горелке. Передвигая термопару, необходимо установить её в правильное положение и зафиксировать ключом № 10.
Для вынесения окончательного вердикта о замене, можно измерить ЭДС, вырабатываемую термопарой. Для этого необходимо произвести розжиг запальника, и, удерживая ручку клапана нажатой, замерить ЭДС между контактом термопары и её корпусом. Оптимальная величина должна быть не менее 18 мВ. Если термопара исправна — очистим спиртом детали тягопрерывателя, а также протрём контакт термопары. Особенно если её пришлось пропаять.
Собираем тягопрерыватель в обратной последовательности, подключаем к нему термопару. Сильно обжимать детали не следует. Усилия должно хватить для обеспечения надёжного контакта. Обжимаем клеммы плоскогубцами и, протерев их спиртом, пробуем произвести розжиг.
Выполнение всех вышеперечисленных операций наверняка поможет вам устранить неисправности с вашим котлом.
Ещё одной причиной проблем с розжигом может быть недостаточное давление газа на запальнике. Это происходит из-за засорения форсунки. Для её прочистки необходимо ключом № 10 отпустить гайку крепления медной трубки запальника и извлечь жиклёр.
Совет: можно легонько обстучать запальник, чтобы было легче извлечь жиклёр.
Прочищаем отверстие жиклёра жилой медного провода. Нарушение размера отверстия не допускается!
В моменты наиболее интенсивного потребления газа давление в центральной магистральной трубе может падать. Соответственно, давление газа на запальнике тоже может снизиться. Для этого может понадобиться подстройка давления газа на запальнике. Откручиваем винт крепления декоративной накладки и снимаем её.
Настройка осуществляется вращением винта на клапане. При повороте его против часовой стрелки давление газа на запальнике увеличивается.
Данные советы помогут вам разобраться с проблемами розжига вашего котла. На практике наиболее распространёнными являются именно проблемы с контактами, а не с датчиками. Потому, если с каждым разом при розжиге запальника приходится держать ручку клапана все дольше и дольше, советуем просто почистить контакты и поджать клеммы автоматики. Для того чтобы избежать действительных проблем со срабатыванием автоматики, рекомендуем вовремя проводить чистку котла .
2017-02-24 Евгений Фоменко
Существует множество причин этой проблемы. Наиболее распространенные из них рассмотрим в этой статье.
В первую очередь следует проверить, открыт ли полностью газовый вентиль и есть ли холодная вода в водопроводной магистрали. Газовая колонка ЛЕМАКС может не зажигаться из-за того, что нет искры для розжига из-за того, что сели батарейки, если вы их используете, либо плохого контакта на блоке питания в случае, если вы подключили питание от электросети.
Колонки Лемакс имеют комбинированный источник питания, работают они и от сети, и от батареек. Замените батарейки, проверьте не окислились ли контакты в батареечном отсеке, и исправен ли контакт на блоке питания.
Низкий напор воды также является причиной неработоспособности ГВН. Если в магистрали постоянно низкое давление, спасет установка насоса. Может засориться накипью фильтр на входной водопроводной трубе, либо смеситель на кране.
Для устранения промойте фильтры щеткой с грубой щетиной под сильной струей воды. Если не удается это сделать из-за закипания накипи, следует поместить их в раствор лимонной кислоты, он готовится из расчета 100 грамм на литр воды, либо поменяйте на новые.
Отсутствие тяги также может стать объяснением, почему не зажигается газовая колонка Лемакс. Вы включаете колонку, но она тут же затухает, по причине того, что срабатывает датчик тяги. Это случается, если воздуховод забит сажей, либо туда попал посторонний предмет.
Проверьте тягу, поднеся к дымоходу зажженую спичку, свечку, если огонь не отклоняется в сторону дымохода, значит он забит. Прочистка канала поможет избавиться от проблемы. Кроме того, датчик тяги может сработать и отключить ваш агрегат и в случае отсутствия естественной тяги, если плотно закрыты окна и двери, открыв их, вы устраните проблему.
Появление зазоров между трубой воздуховода и патрубком, между коленами трубы. Загерметизируйте появившиеся зазоры. Засорился газовый узел — если это случилось, лучше пригласить специалиста газовой службы. Самостоятельно вы можете прочистить только жиклеры горелки, удалить пыль из смесительной камеры в Лемаксе проблематично, так как тяжело проникнуть внутрь ее по причине не очень удачной конструкции.
Пыль удаляется мягкой щеткой либо тряпкой, нагар с жиклеров — при помощи щетки с металлической щетиной. После прочистки следует проверить все стыки на герметичность при помощи мыльной пены, намылив их. Если она пузырится, значит, нарушилось соединение. Для прочистки сопел и воздушного канала запальной горелки вызовите службу Горгаза.
Низкое давление газа также становится причиной, почему ГВН не включается с первого раза. Возможно, где-то произошла авария, но чаще всего, в таком случае виновны трубы маленького диаметра, которыми подключается газовая магистраль к ГВН. Следует вызвать специалистов газового хозяйства для монтажа труб соответствующего диаметра.
Высокое давление также является причиной, почему не зажигается колонка. Установка понижающего редуктора решит эту проблему. Кроме того, если у вас при недостаточно высоком давлении воды или газа ГВН отрегулирован на максимальные значения, также произойдет затухание. Исправить это возможно регулировкой ручками управления.
Износ резиновой мембраны в водяном блоке, она может порваться, растянуться. Снимите корпус прибора, открутив два винта внизу агрегата, затем снимите дисплей и датчик температуры. Потяните на себя и вверх. В водяном блоке осмотрите мембрану, если она повредилась, необходимо ее заменить, лучше купить силиконовую, она прослужит дольше.
Мембрана газовой колонкиНарушилось соединение в месте подключения электронного узла с ионным датчиком пламени, электромагнитным клапаном запальной горелки. Проверьте места монтажа, прочистите контакты, если они закисли. Если же из строя вышел электромагнитный клапан или электронный узел, их придется заменить, так как ремонту они не подлежат.
Если ГВН запускается впервые или после длительного перерыва в работе, в трубках может скопиться воздух. Для устранения проблемы следует открыть кран с горячей водой на минуту, закрыть, снова открыть и так до момента, пока трубы не освободятся от воздуха, и не загорится запальная горелка.
Часто причиной становится и окисление штока. Для устранения окисления следует отсоединить микровыключатель снять, очистить и смазать шток.
Неправильная регулировка запальника под давление газа в газопроводе. Электрод в приборе установлен таким образом, что искра попадает на гребенку, она крепится на край газовой горелки на расстоянии около 11 мм от ее ребра.
Запальной электрод газовой колонки
В случае, когда подача настроена на пониженное давление, газ поступает в малом количестве и с небольшой скоростью. Из-за наличия обратной тяги газ уходит вниз, не доходя до искры. Устраняется проблема путем отгибания электрода на уровень, чтобы искра попадала не на гребенку, а точно в середину горелки.
На быстрорастущем рынке отопительного оборудования, практически каждый год появляются все новые и новые марки и модели отопительных газовых напольных котлов. Часто это касается импортного оборудования, хотя и российские производители стараются не отставать и соответствовать европейским стандартам качества и современных технологий.
На напольные газовые котлы Лемакс таганрогского производства отзывы все чаще можно увидеть на просторах глобальной сети в различных обзорах по тематике отопления.
Предлагаю и нам рассмотреть по-подробнее котлы российской марки «Лемакс». Разберем модельный ряд, технические характеристики, чем отличаются разные модели, рассмотрим типы автоматики, установленной на них, и принцип работы, согласно инструкции по эксплуатации.
Модельный ряд и технические характеристики
Газовые напольные котлы Лемакс серии «Премиум» выпускаются из высокопрочной стали толщиной 2 мм. Имеют модельный ряд: от бытовых — мощностью от 7,5 кВт и до больших промышленных, мощностью до 100 кВт.
Наиболее популярные модели среди населения — это КСГ Премиум-7,5, -10, -12,5, -16, -20. Даже самый маломощный котел 7,5 кВт способен отопить небольшой частный дом площадью до 70 квадратных метров, 10 кВт до 100 м2 и т.д.
Напольные газовые котлы Лемакс
Газовый котел Лемакс является полностью энергонезависимым. Запуск осуществляется при помощью кпопки пьезорозжига. В отличие от , данные модели снабжены датчиком тяги для безопасной работы котла, срабатывающем в случае проблемы с тягой в дымоходе.
Также, как и , они могут использоваться на природном газе с естественной или принудительной циркуляцией теплоносителя в системе отопления. Данные модели не снабжены циркуляционным насосом, но его всегда можно установить в систему отдельно. При замене жиклеров (сопел) возможна работа котла и на сжиженном (баллонном) газе.
Кроме того, на рынке можно встретить напольные газовые котлы Лемакс серии «Лидер». Отличительной особенностью этой модели является то, что они изготовлены из чугуна с толщиной стенок 4 мм, снабжены импортной автоматикой SIT, датчиком тяги, защитой от перегрева и сажеобразования. Но о них мы поговорим более подробно в следующий раз.
Стальные отопительные газовые котлы Лемакс производятся, как одноконтурные, рассчитанные только на отопление, так и двухконтурные — отопление и горячая хозяйственная вода. В двухконтурных котлах встроен медный теплообменник для горячего водоснабжения.
Двухконтурные котлы Лемакс Премиум имеют обозначение КСГВ — котел стальной газовый водогрейный. Они выпускаются мощностью от 12,5 до 40 кВт. Но, как показывает практика и отзывы, для того, чтобы производительность второго контура была нормальной, надо приобретать котел мощностью не менее 20 кВт, а лучше — больше.
Диаметр штуцеров для подключения к отопительной системы составляет:
— 40 мм (1 1/2′) для моделей КСГ-7,5 и КСГ-10
— 50 мм (2′) для моделей большей мощности
Диаметр патрубка для установки дымохода составляет:
— 100 мм для моделей КСГ-7,5 и КСГ-10
— 130 мм для моделей КСГ-12,5, КСГ-16, КСГ-20, КСГ-25 и КСГ-30
Диаметр штуцера для подсоединения газа у моделей с номинальной тепловой мощностью до 30 м2 составляет 15 мм или 1/2 дюйма.
Автоматика для газовых котлов Лемакс
Характерной отличительной чертой данных отопительных котлов является присутствие на них разного рода автоматических устройств. Они снабжены импортной итальянской типа «NOVA SIT». Давайте детально разберем газогорелочное устройство по схемам ниже.
Устройство котла Лемакс с автоматикой ГГУ (устройство газогорелочное)
Автоматика ГГУ
1 — газовый котел
3,4 — кнопки выключения и запуска, соответственно
5 — терморегулятор
6 — штуцер для подсоединения газа
7,8 — прямая и обратная линия отопительного контура
9 — термометр
10,11 — выход и вход ГВС (у двухконтурных моделей)
12 — трубка термодатчика
— откройте газовый кран, затем поверните ручку терморегулятора в положение «0»
— поднесите горящую спичку через смотровой окошко к запальнику, нажмите кнопку включения магнитного клапана (розжиг запальной горелки)
— удерживайте кнопку в течение 1 минуты до того момента, когда начнет гореть запальник
— для розжига основной горелки необходимо ручку терморегулятора переместить в положение «4»
— для отключения нажмите на кнопку «выкл»
Устройство котла Лемакс с импортной автоматикой NOVA SIT
Автоматика EuroSIT котла Лемакс
1 — газовый котел
2 — газогорелочное устройство
3 — ручка регулировки температуры и розжига горелки
4 — кнопка пьезорозжига
5 — трубка термодатчика
6 — смотровое окошко
7 — подсоединение газа
8,9 — прямая и обратка для подключения теплоносителя
10 — термометр
11,12 — вход и выход контура ГВС (для двухконтурных моделей)
13 — газовый шланг из нержавейки
— откройте газовый кран
— установить ручку терморегулятора в положение розжига
— нажать на нее до упора, и удерживать в течение 1 минуты, одновременно нажимая на кнопку «пьезо», до появления пламени
— основная горелка включается путем выставления ручки терморегулятора в положение от 1 до 7
— для выключения горелки поверните ручку в положение «выкл»
Технические характеристики
Технические характеристики котлов «Лемакс»
Возможные неисправности в работе напольного газового котла Лемакс
1. Самопроизвольное отключение основной горелки.
Причина: плохая тяга в дымоходе или неисправность терморегулятора.
2. Запах газа, утечка.
Потребуется проверка резьбовых соединений и замена прокладок.
3. Пламя удлиненное, горит красно-оранжевым цветом.
Плохая тяга в дымоходе, забитые горелки.
4. Холодные в системе, а сам котел горячий.
Нехватка объема теплоносителя в системе или ошибки при монтаже системы.
Смотрим видео
Итак, мы с Вами разобрали газовые котлы Лемакс , рассмотрели основные модели этой марки, их особенности и внутреннее устройство, принцип работы и технические характеристики. Наглядно научились пользоваться автоматикой, а также своевременно выявлять возможные неполадки в работе отопительного котла.
Прошу помощи, чтобы устранить такую неисправность. В работе напольный газовый котел Лемакс Премиум 10 оснащенный автоматикой Eurosit 630. Когда его разжигаешь, основная горелка загорается хорошо, но минуя 10-12 секунд выключается. Повторная процедура изменений не приносит. Что произошло?
В первую очередь проверяйте рабочие функции термопары и датчика тяги. Провести диагностику контактов цепи. Аккуратно разукомплектовать запальную горелку и очистить. Сделайте регулировку запальной горелки посредством снижения давления газа. Скорей всего, уменьшилась тяга, в следствие этого пилотная горелка не имеет достаточно воздуха при розжиге главного горелочного устройства.
Основательно дымит факел и газогорелочное устройство ГГУ-15 горит беспрерывно, не угасая. Температура сверх определенной подняться не может, и в то же время факел стабильно горит. В приборе много копоти. Местные газовщики сказали, что это недостаток тяги. Как устранить проблему?
Похоже, приток воздуха уменьшился. Необходимо сделать полноценную профилактику. Демонтировать горелочное устройство, очистить и вымыть горелку и жиклеры. Теплообменник нужно почистить с внешней стороны.
Скажите нам, пожалуйста, что за проблема, если агрегат коптит? Как следует поступить для решения этого вопроса?
Вероятно, ослабла тяга в топочной камере. Можем посоветовать почистить дымоходный канал.
Каким образом действовать, расскажите, если стальной котел Премиум 10 Nova не разжигается? Держу рукоятку управления, надавливаю на кнопку запальника, потом удерживаю ее около несколько минут, отпускаю, и агрегат тухнет.
Похоже, трубка запальной горелки ГГУ-20 загрязнилась. В данной ситуации требуется выполнить техобслуживание. Также является окисление зажимов на датчике тяги. Нужно разъединить клеммы и зачистить их от окислов.
Неисправность котла Лемакс Премиум 30 с газовым клапаном 710 Minisit. В момент нажатия на кнопку розжига, отсутствует подача газа на горелку. В чем причина?
В случае, когда нажимается данная клавиша, газовое топливо подается только в запальник, на основное газогорелочное устройство его поступление не осуществляется.
Провели монтаж данного прибора. Мне не нравится переход с фитиля на основную горелку. Все время слышно два хлопка. Так должно быть?
У нас работает такой же аппарат оснащенный автоматикой Сит 820 Нова, который выключается при нагреве примерно 60 градусов. Объясните мне, как исправить поломку?
Возможно, включается датчик по тяге. Есть необходимость сделать проверку дымохода.
На даче установили данный агрегат. На днях он выдал сбой по нагреву на пятидесяти градусах, при этом факел усиленно продолжает гореть. Что случилось?
Предполагаем, что произошло засорение трубки подачи газа от узла автоматики на горелке, а также горелочный жиклер.
Имеется двухконтурный котел Премиум 40 с газовым клапаном Sit 820 Nova MV. Дня три назад произошла у него поломка. Агрегат гаснет, когда на запальное устройство попадает поток ветра. Месяц назад термопару менял, но результат нулевой. Какая причина?
В случае запуска основного горелочного устройства, это приводит к уменьшению поступления газа на запальное устройство, а значит должна сработать автоматика. рекомендуем Вам повысить подачу газа на запальное устройство. Подобное может случиться в основном в следствие спада давления в отопительной системе. Другим фактором может являться отсутствие тяги дымохода, если он смонтирован неверно.
Можете рассказать, что за проблема, если в нашем доме не хочет функционировать этот прибор, главным образом, если на улице ветер и дождливая погода. Каким образом следует решить вопрос?
В случае запуска запальной горелки, ЭМК клапан обязан сработать в течении двадцати секунд. Когда запальная горелка затухает, остановка в работе ЭМК возникнет в цикле 10-ти секунд, при этом будет слышно щелканье.
Около 5 лет назад был установлен в доме газовый котел Лемакс Премиум 16. Домик небольшой, площадь не больше 35 метров. Как будто бы объем маленький, хотя теплоноситель не может нагреться больше пятидесяти градусов. В комнате находятся 2 радиатора на 12 секций. Никак не разберусь, как поднять температуру теплоносителя?
Для исправления ситуации требуется установка циркуляционного насоса. Иногда может снижаться давление в газопроводе.
По какой причине при работе часто происходит перегревание котла?
Существенный фактор — пропала циркуляция в отопительном контуре. Также возможно загрязнение фильтров либо большое скопление воздуха в системе отопления.
Недавно возникла неполадка. Когда закрыть кран на холодную воду и начать открывать ГВС, то выходит вода из системы отопления. Что происходит?
Видимо, неправильно функционирует подпиточный клапан системы отопления. Он дает двигаться воде по обеим линиям. Если присутствует давление жидкости в системе, то протекания в другую сторону возникнуть не должно.
По какой причине агрегат шумит, булькает, а временами долго воет и сильно хлопает?
Вода в системе весьма обогащена кислородом. В процессе нагревания происходит испарение воздуха, поэтому можно слышать шум. Если прибор отрегулирован некорректно, может выть клапан газа либо байпас. Сильные хлопки во время запуска указывают на неисправность запального механизма.
Произвели в начале августа подключение напольного котла Лемакс 25. Предположительно через 4 месяца возник сбой. Пытаюсь установить температурный режим, но он не удерживает его. Подскажите, в чем причина?
Скорей всего, произошел сбой автоматики, и если температура повышается на 60 градусов, форсунки отключаются. Необходимо провести регулировку автоматики для корректной работы. Еще одной причиной может оказаться то, что Вы выбрали несогласованную мощность агрегата относительно площади отопления.
Провел в середине этого года пуск этого агрегата. Сделали переналадку на сжиженный газ. За 3 месяца ушло практически девять кубов. В данный момент внутри аппарата чрезмерно много нагара, а также стала коптить главная горелка. От чего так происходит?
Слишком много нагара в топке говорит о том, что плохо настроена горелка, и от этого газ сгорает не полностью. Также может быть некачественный состав смеси газа. Чтобы горелочное устройство не коптило, рекомендовано регулярно делать влажную чистку.
Запустил в эксплуатацию данный прибор. При запуске газовая горелка ГГУ-15 зажигается и неожиданно погасает. Я думаю, что отсутствует запальная искра. Как устранить эту поломку?
Проверьте, слышится ли звук возникновения искры запальника, когда вынут кабель розжига. Если звука нет, рекомендуется сменить трансформатор розжига. Если звук есть, проведите замену электрода запальника либо газогорелочного устройства.
Недавно выявилась неприятность с котлом Лемакс Премиум 20. Из него капает вода. Он исправно действовал в общей сложности 2 недели. Может, кто подскажет, по какой причине капает вода?
Капанье может происходить вследствие высокого давления в системе. Может быть разрушение стенок теплообменника. Гидроудары точно так же могут оказаться фактором протекания в котле.
На даче мы намерены произвести подключение данного аппарата. Объясните, какое заявленное давление на подачу газа (метан/пропан) данных аппаратов?
В этом виде аппаратов показатель стандартного давления поступления газа для метана/пропана равняется 150.0/300.0 Паскаль.
Мне установили этот агрегат. Вчера случилась с ним неполадка. Он включается, а дом не нагревает. Что может случиться?
Скорей всего, скопился воздух внутри радиаторов или присутствует накипь в теплообменнике. Его следует промыть.
Эксплуатируем дома котел Лемакс Премиум 12.5. До этого утра работал исправно. Теперь в нем произошла неисправность. Аппарат усиленно перегревается. Как можно отремонтировать эту аварию?
Предположительно, произошло засорение накипью, вследствие чего возникла закупорка протока. Просто необходимо очистить аппарат.
Совсем недавно обнаружилась неисправность с отопительным котлом. В работе был в общей сложности 2 месяца. Затем он резко закончил набор установленной температуры. Может быть, кто объяснит, что происходит?
У вас в системе давление газа меньше требуемого. Следует проверить газовый кран. Возможно, внутри избыток смазки. Просто уберите лишнее.
Не могли бы Вы подсказать, как накачать расширительный бак?
Расширительный бак подкачивается простым автомобильным насосом до нужного по инструкции давления. В основном средний объем 1-1,5 бар. До того, как накачать бачок, по регламенту нужно слить теплоноситель из котельного прибора. Сливать можно через штуцер слива или при помощи водоразборного крана, закрыв подачу горячего водоснабжения.
Напольный газовый котел Лемакс Nova Премиум 25 не хочет запускаться. Если держишь кнопку вкл/выкл, горелка нормально работает. Если отпустить кнопку, аппарат затухает. Какая причина неисправности?
Похоже, неисправен термоэлектрический преобразователь либо проблемы с газовым клапаном. Также бывает уменьшение давления газа на входном трубопроводе. Иногда возникает недостаток напряжения платы управления.
Напомните нам, какие сервисные работы нужно выполнять в случае переоснащения метана на пропан?
Вначале требуется поменять форсунки основной горелки ГГУ-20. Затем поменять напряжение питания модулятора. И в конце провести настройку параметра наибольшего и наименьшего давления.
Какой принцип действия имеет клапан защиты в отопительной системе?
Данный компонент, который отрегулирован на требуемое давление, защищает отопительную систему. Запрещено применять клапан защиты для слива отопительной воды.
Часто поднимается давление системы отопления. В расширительном бачке давление понижаем до 2.1-2.3 атм. Может ли вода контура отопления проникает из системы ГВС?
Увеличение давления в отопительной системе формируется следующими основными факторами. Неотрегулировано давление для расширительного бачка. Подпиточный кран протекает.
Недавно возникла неполадка. Запуск производится тяжело. Запальник зажигается, а главной горелке огня нет. Скажите, пожалуйста, в чем причина?
Судя по всему, неисправность узла розжига. Вам понадобится сделать технический осмотр агрегата и прочистить механизм поджига.
Кто-нибудь может помочь прояснить ситуацию с дымоходной трубой? Скоро трое суток, как возникает возвратная тяга, из-за которой дым проходит прямо в комнату. Дымоход я изготовил сам. Он представляет собой трубу из стали. Возможно в расчетах допущено несоответствие.
Главной причиной является не верно изготовленная конструкция дымоходной
трубы. Часто случается загрязнение сажей, которое ощутимо уменьшает его
коэффициент полезного действия. Кроме того, необходимо проверять
вытяжные отверстия в жилых помещениях.
_______________________________________________________________________________
_______________________________________________________________________________
_______________________________________________________________________________
Управление системой отопления. Монтаж. Подключение. Перевод на другой тип газа. Устройства регулировки и приборы защиты.
Особенности. Установка и монтаж. Компоненты автоматики.
Технические параметры. Монтаж. Регулировка и проверка. Техническое обслуживание.
Регулировка и защита. Установка и монтаж. Настройка давления. Техобслуживание.
_______________________________________________________________________________
_______________________________________________________________________________
После запуска появилась неисправность. Не хочет включаться, работал два года, теперь загорелось все табло как при включение котла, когда идет режим самодиагностики потом щелкает, отключается на мили сек и опять включает всё табло. Один раз включился, но выдает ошибку Е10 давление воды, хотя давление в системе 1.5 атм. Подскажите, что может быть?
Установили и подключили котёл Baxi Fourtech 24 F. Какое давление холодной воды допускается на входе в аппарат для ГВС?
Котёл бош 6000 24 квт, одноконтурный со встроенным трехходовым клапаном. Не видит датчик бойлера, выдает ошибку. Подскажите, как сделать, чтобы ошибку не выдавал и работал нормально как на отопление, так и на бойлер?
Если отключить датчик протока ГВС, то может быть получится через меню L3 перепрограммировать в одноконтурный аппарат?
Установили котёл Arderia esr 2.13 ffcd. Если у меня немного падает давление теплоносителя за 2-3 дня на пару делений, может ли быть причина в неисправности трехходового клапана (утечек с радиаторов нет)?
В эксплуатации газовый котел Ардерия 2.35. Подскажите про уменьшение мощности. Слышал что-то про модуляцию, скорость вращения вентилятора и прочее. Возможно ли реально уменьшить мощность?
_______________________________________________________________________________
_______________________________________________________________________________
Произвели монтаж и подсоединения котла Buderus Logano G234-WS-44 квт, автоматика Логоматик 4211. Отопление на баллонах без ГВС, также заменены жиклеры для сниженного газа. Зиму пережили, баллоны заменялись, все без проблем. Потом весной, когда температура на улице +16+18, котел стал отключаться на продолжительное время и при включении стал выдавать ошибку горелки на экране и загоралась красная лампочка-кнопка на передней стенке. Нажимали кнопку, повторно включали питание и все работало. Несколько раз это было, потом на лето отключили котел совсем, в чем может быть неисправность?
В одноконтурном Будерус 072, контур змеевика БКН нагревается тем же теплообменником что на отопление или таким же, как на 2х контурном который стоит на ГВС?
Подскажите, для настенных газовых котлов Vaillant, имеются ли реальные/фактические отличия в лучшую сторону в новом поколении turboTEC plus VU/5-5 по сравнению с /3-5?
Неисправность в работе котла, мигает зеленый сид (питание), в инструкции сказано, что сработала тепловая защита, зеленый индикатор мигает, даже если к плате ничего не подключено. Как исправить? Проверил все SMD резисторы и транзисторы, все в порядке.
В эксплуатации газовый котел двухконтурный Daewoo Gasboiler с электронной панелью. При включении ГВС греется отопление, режим работы — летний. Снимал трехходовой клапан, грязи и выработки нет. Такое ощущение, что плата трехходовым клапаном не управляет. Как проверить?
Установлен и подключен настенный котел Электролюкс Basic Xi. Началась неполадка, что котел перестал видеть пламя и выключал подачу газа через 7-8 секунд. И после 3х попыток выдавал ошибку E1. Как можно исправить?
Неисправность котла Koreastar. Отопление работает отлично, горячая вода идет с перебоями, при включении крана горячей воды сначала идет холодная вода, потом кипяток. Через несколько секунд прохладная, потом опять кипяток. В чем может быть проблема?
Неисправность котла ферроли домипроджект 24 — настраиваю 60-70 градусов, он переходит на минимальное горение, не включается, не отключается. Повторный запуск нестабилен. Никакой закономерности не выявляется. Что делать?
В эксплуатации газовый котел Junkers euroline, при включении горячей воды поджигает газ, затем тухнет и так несколько раз. Если включить при работающем отоплении, то нагрев воды включается сразу. Подскажите, пожалуйста, в чем может быть проблема?
Подскажите по регулировкам газового котла Навьен Асе 16 turbo пульт v1.3. Не получается настроить выбег вентилятора. Ставлю 30 сек., а все равно 2 мин. крутит.
Неисправность котла Оазис ZRT18. Агрегат запускается, зажигается газ, потом тухнет. Опять зажигается-тухнет (раза три так бывает). Потом разгорается и работает нормально. Никакой ошибки не выдаёт. В чём причина?
Неисправность газового котла Сеньор Дюваль — датчик давления воды показывает 0.0, индикатор мигает красным цветом, не греется горячая вода, но при этом давление воды в квартире хорошее. Как устранить неполадку?
В каком месте коаксиального дымохода должен быть установлен конденсатоотводчик? Котел wh2d c закрытой камерой сгорания, расположен на расстоянии 1м от стены.
Проблема запуска котла Westen Pulsar D. Пьезо розжиг срабатывает, но пламени нет, после треска ошибка E01. Вилку местами переставлял.
Напольный газовый котел Новелла заблокировался – зеленые лампочки на панели горят, и больше ничего не происходит. Как исправить?
Установлен и подключен газовый настенный котел Ariston, который совсем не держит давление: во время охлаждения нагретой воды давление падает до нуля, хотя вода регулярно набирается. Что с давлением?
Заказать монтаж сэндвич дымохода в бане.котлов Lemax премиум серии. Напольные газовые котлы Что нужно знать перед покупкой котла Лемакс Премиум
Один нагревательный контур, встроенное автономное пьезоэлектрическое зажигание SIT 820 NOVA. Котел не требует подключения к электричеству, полностью автономен, возможность работы в закрытой, открытой системе отопления здания. Не прихотливая к теплоносителю, допускается использование незамерзающей жидкости при монтаже замкнутой системы, под давлением до полутора бар.
Характеристики наружного блока Lemax Premium 40
Отапливаемая площадь дома, дома, коттеджа 400 метров при стандартной высоте потолков, трех мер.
Котел Premium 40 представляет собой сварную стальную конструкцию, образующую водяную рубашку по всему периметру. В нижней части котла, в проеме камеры сгорания, устанавливается газогорелочное устройство с органами управления. В верхней части котла расположен газоотводящий патрубок для отвода продуктов сгорания из топки.
На задней поверхности котла расположены патрубки с резьбой, предназначенные для подключения котла к системе отопления. Регулирование и поддержание заданной температуры обеспечивает терморегулятор, модулирующий пламя основной горелки, снабженный рукояткой с делениями, которая установлена на передней панели горелки.
Благодаря покрытию антикоррозийной эмалью «CERTA» (температура воздействия 750 ° C) и обработке ингибирующим составом теплообменник защищен от агрессивных факторов: солевых растворов, минеральных масел.
Котел Premium не требует подключения к электросети.
Оснащение оригинальными комплектующими газовой горелки и газового клапана итальянского концерна «SIT», а также инжекторной микропламенной горелкой «POLIDORO».
- Наличие системы защиты от перегрева, обрыва тяги, сажеобразования, а также от продувки котла.
- Котел Premium 40 удобно обслуживать за счет использования съемных элементов облицовки и профильного оборудования.
- Легкость очистки котла благодаря съемной верхней панели.
- Расширенная система защиты (установлен датчик перегрева теплообменника).
- Максимальная эффективность со стальным теплообменником.
- Самый экономичный режим при установке комнатного термостата.
- Увеличенная площадь теплообмена.
- Конструкция турбулятора изменена для максимального удержания дымовых газов.
- Увеличенный расход первичного и вторичного воздуха. Котел
- Premium имеет возможность перехода на сжиженный газ.
- Большой диаметр отводящих трубок отопления, диаметр 50 мм.
- Котел работает в системах с естественной циркуляцией.
- Допускается установка циркуляционного насоса.
- Гарантия на котел от производителя 3 года.
Характеристики котла стального пола Lemax Premium 40 серии
Максимальный расход газа для котла LEMAKS PREMIUM 40 с устройством газовой горелки ГГУ 45 = 4.5 м³ / ч.
ПОРЯДОК РАБОТЫ
Помещение, в котором установлен котел Premium 40, должно иметь естественную вентиляцию. Не закрывайте решетки вентиляционных каналов.
Для включения котла необходимо проверить наполнение системы отопления водой, проверить тягу и выбрать желаемый порядок действий, определяемый мощностью котла и применяемой автоматикой безопасности.
Для котлов мощностью 40 кВт и выше, с газовой горелкой на базе итальянской автоматики SIT 820 NOVA и инжекторной горелкой Polidoro.
ВНИМАНИЕ!
Убедитесь, что ручка управления находится в выключенном положении.
Порядок розжига ГГУ 45 с автоматом SIT 820 NOVA.
Ручка управления устанавливается в нужное положение легким нажатием и поворотом в нужное положение.
В исходном (выключенном) положении ручка управления находится в положении «точка». Пилотная и основная горелки выключены (подача газа к ним перекрыта).
Для розжига пилотной горелки ручка управления устанавливается в положение искры.
В этом положении ручка управления удерживается полностью нажатой, одновременно (при необходимости несколько раз) нажимается кнопка пьезо-воспламенителя до тех пор, пока не загорится пилотная горелка (смотреть в смотровое окошко). После зажигания пилотной горелки рукоятку удерживают нажатой не менее 30 секунд, после чего рукоятку отпускают и переводят в положение «горелка». При первом запуске котла необходимо выдержать котел на пилотной горелке не менее 3 минут, после чего перевести его в положение «факел».Когда ручка управления находится в положении «горелка», подача газа к основной горелке блокируется один раз.
Устройство выключается поворотом ручки в положение «точка». В этом случае пилотная и основная горелки (если они горят) гаснут.
Если ручка управления сразу после переключения в положение «точка» устанавливается в положение «искра», горелка не загорится, пока так называемая внутренняя блокировка автоматики не будет заблокирована более одного раза. Блокировка автоматически снимается после того, как термопара остынет (примерно через 60 секунд) после перемещения ручки в «точечное» положение.
Температура теплоносителя регулируется ручкой регулятора температуры на корпусе котла.
Автоматика котла Lemax Premium 40
Конструкция стального напольного котла LEMAKS PREMIUM 40
УСТАНОВКА, ПОДГОТОВКА К РАБОТЕ
Объем помещения, в котором установлен котел, должен быть не менее 8 м3. Расстояние между футеровкой котла и стенами должно быть не менее:
- — сзади 150 мм;
- — 100 мм вправо и влево;
- — 1000 мм спереди.
В помещении, в котором установлен котел, необходимо предусмотреть естественную вентиляцию.
При установке котла в тепловую сеть необходимо уложить на пол лист негорючего теплоизоляционного материала, сверху железный лист, и установить на него котел. Подключение котла Премиум к газопроводу должно осуществляться через диэлектрическую изоляцию.
Соединения котла с отопительной системой и газовой магистралью должны быть резьбовыми, что позволяет отключать котел в случае необходимости.Если вместо старого котла устанавливается котел Премиум, необходимо промыть трубы и радиаторы системы отопления от отложений ржавчины, накипи и отложений. При несоблюдении этих требований в котел переходят продукты отложения (ржавчина, осадок), что сильно затрудняет циркуляцию теплоносителя и снижает теплоотдачу котла Premium 40. В этом случае претензии производителя к температурным параметрам теплоносителя при работе котла не принимаются.
При повышенных тепловых затратах помещения (толщина наружных стен дома, целостность окон и дверей, разводка труб системы отопления на чердаках, чердаках, которые не утеплены, превышают свою площадь или значительно превышают тепловую несущая способность — количество радиаторов, труб) от установленных норм температура теплоносителя может не достигать 80 ° С, что не означает брак котла.
Расчетное количество теплоносителя в системе отопления для напольного котла Lemax:
- Котел Premium 35 — 500 литров;
- Котел Премиум 40 — 600 л.
Точное количество теплоносителя определяется в конструкции системы отопления.
Для правильного наполнения и подпитки системы, а также для закрытой системы отопления обязательно установите предохранительный клапан на 1,5 кгс / см2 (бар) на расстоянии не более 150 мм от штуцера клапана для заполнения система обогрева.
Расширительный бак устанавливается наверху основного стояка, желательно в отапливаемом помещении. Не устанавливайте клапан на сигнальную трубу.
Горизонтальные участки трубопроводов системы отопления должны выполняться с уклоном не менее 10 мм на 1 метр в сторону радиаторов отопления и от них до котла. Это сделано для того, чтобы обеспечить свободный выход воздуха при заполнении системы водой и исключить возникновение воздушных пробок.
Трубопроводы, радиаторы отопления и их стыки должны быть герметичными, утечки воды не допускаются.
Гарантийные обязательства завода ЛЕМАКС на газовый напольный котел серии ПРЕМИУМ
В случае выхода из строя котла Лемакс Премиум в течение гарантийного срока, при соблюдении требований, потребитель имеет право на бесплатный ремонт, а в случае заводского брака теплообменника — замена котла.Гарантийный ремонт котла проводят специализированные сервисные центры или газовые хозяйства. По результатам ремонта выдается талон на гарантийный ремонт.
Для отопления жилых и нежилых помещений средней и большой площади чаще всего применяют напольные газовые котлы. Они среди огромного ассортимента отопительного оборудования, в который также входят твердотопливные, дизельные и электрические котлы, обладают невысокой стоимостью владения. Состоит из относительно невысокой цены самих котлов напольного газового отопления, невысокой стоимости обслуживания и экономии топлива, т.е.е. газ.
Покупателю часто трудно самостоятельно сориентироваться, какой именно котел ему следует купить. Независимый обзор рынка оборудования, отзывы других потребителей и профессиональные советы наверняка приведут его к выводу, что нужно покупать продукцию отечественного производителя — напольные газовые котлы Lemax.
Наша компания готова предложить как выгодные цены, так и широкий ассортимент продукции, изготовленной по современным технологиям с использованием комплектующих ведущих производителей.В частности, на отопительные котлы Lemax устанавливается газогорелочное устройство на базе автоматики безопасности SIT. Это обеспечивает стабильную работу котла и экономию газа.
Компания «Лемакс» производит несколько типов напольных газовых котлов:
- — предназначен только для отопления помещений.
- — они также позволяют нагревать воду для бытовых нужд.
- — с возможностью подключения бака косвенного нагрева и блоков дистанционного управления.
Вся без исключения продукция отличается высоким качеством и безотказной работой в течение длительного времени.Правильную работу оборудования и оперативное устранение возможных неисправностей в его работе гарантирует разветвленная сеть сервисных центров. Практически во всех регионах России проводят не только гарантийное, но и послегарантийное обслуживание котлов, а также решают все вопросы, связанные с приобретенным оборудованием.
Где купить напольные котлы Lemax
Предлагаем вам купить напольные газовые котлы Lemax прямо в нашем интернет-магазине или обратиться к вашему дилеру в вашем регионе.
Котел «Лемакс» изготовлен из нержавеющей стали плоскостности 2 мм Магнитогорского металлургического комбината. Теплообменник покрыт теплоизоляционной эмалью и обработан ингибирующим составом, предотвращающим коррозию. Котел не требует подключения к электросети. Они предназначены для отопления и горячего водоснабжения квартир, жилых домов, коттеджей, административных зданий, оборудованных системой водяного отопления с естественной или принудительной циркуляцией. котел соответствует всем требованиям безопасности и охраны окружающей среды, установленным для данного вида продукции.ГОСТ 20548; ТУ 4931-011-24181354-2011.
Котлы работают на природном газе по ГОСТ 5542-96 и поставляются в сборе с газовым горелочным устройством.
Рабочее давление воды в системе отопления не более 2 кгс / см 2, в закрытой системе отопления необходимо установить систему безопасности с предохранительным клапаном на давление не более 1,5-1,7 кгс / см 2. см 2
- Расширенный диапазон мощностей от 10 до 40 кВт.
- Новый дизайн.
- Наличие системы защиты от перегрева, прерывания тяги, сажеобразования, а также продувки котла.
- Удобство обслуживания котла за счет использования съемных элементов облицовки и профильного оборудования.
- Легкость очистки котла благодаря съемной верхней панели.
- Доработана система безопасности (установлен датчик перегрева теплообменника).
- Максимальная эффективность достигается за счет:
- увеличить площадь теплообмена; Конструкция турбулятора
- изменена для максимального удержания дымовых газов.
- Увеличенный расход первичного и вторичного воздуха.
- Функция горячей воды.
- Гарантия 3 года.
Таблица сравнения котлов
Lemax серии Premium
| Название параметров | ||||||||
|---|---|---|---|---|---|---|---|---|
| — одноконтурный | 12,5 | |||||||
| — двухконтурный | 12.5В | 16 В | 20 В | 25 В | 30 В | 35V | 40 В | |
| Тип газовой горелки. | ГСУ 12 | ГСУ 15 | ГСУ 19 | ГСУ 24 | ГСУ 30 | ГСУ 35 | ГСУ 40 | ГСУ 45 |
| Тепловая мощность номинальная, кВт | 10 | 12,5 | 16 | 20 | 25 | 30 | 35 | 40 |
| КПД% не менее | 90 | 90 | 90 | 90 | 90 | 90 | 90 | 90 |
| Температура дымовых газов, ° С, не менее | 110 | 110 | 110 | 110 | 110 | 110 | 110 | 110 |
| Диапазон разрежения, обеспечивающий стабильную работу котла, Па | 4-25 | 4-25 | 4-25 | 4-25 | 4-25 | 4-25 | 4-25 | 4-25 |
| Давление газа номинальное, Па | 1300 | 1300 | 1300 | 1300 | 1300 | 1300 | 1300 | 1300 |
| Производительность ГВС ∆ 30 ° C, л / мин.(при температуре воды на входе не менее 15 ° C) | — | 4 | 5 | 6 | 7 | 8 | 9 | 10 |
| Максимальный расход газа, м3 | 1,2 | 1,5 | 1,9 | 2,4 | 3 | 3,5 | 4 | 4,5 |
| Максимальная температура воды на выходе из котла, ° С | 90 | 90 | 90 | 90 | 90 | 90 | 90 | 90 |
| Диаметр дымохода, мм | 100 | 130 | 130 | 130 | 130 | 130 | 140 | 140 |
| Диаметр газовой трубы, дюйм | 1/2 ’’ | 1/2 ’’ | 1/2 ’’ | 1/2 ’’ | 1/2 ’’ | 1/2 ’’ | 3/4 ’’ | 3/4 ’’ |
| Диаметр подключаемых патрубков, дюйм | 1 1/2 ’’ | 2 ’’ | 2 ’’ | 2 ’’ | 2 ’’ | 2 ’’ | 2 ’’ | 2 ’’ |
| Габаритные размеры, мм: | ||||||||
| — высота | 748 | 744 | 744 | 961 | 961 | 961 | 1016 | 1016 |
| — Ширина | 330 | 416 | 416 | 470 | 470 | 470 | 532 | 532 |
| — глубина | 499 | 491 | 491 | 556 | 556 | 556 | 608 | 608 |
| Масса, кг | 39 | 53/58 | 53/58 | 75/80 | 80/85 | 80/85 | 100/106 | 100/106 |
Общие правила
- Перед использованием котла прочтите данное руководство.
- Монтажные работы, инструкция по эксплуатации, пуско-наладочные работы, профилактическое обслуживание и ремонт котла выполняются специализированной организацией и местным газовым управлением в соответствии с «Правилами безопасности газораспределения и газопотребления», утвержденными Госгортехнадзором РФ, и строительными нормами. и правила СНиП 11-35-76; СНиП 2.04.05-91 Госстроя РФ, согласно проекту на установку котла с обязательным заполнением контрольного талона.
- Установленный котел может быть введен в эксплуатацию только после его приемки специалистами газовой отрасли, прохождения инструктажа собственника и обязательного заполнения талона на установку (стр. 21 инструкции по эксплуатации).
- Осмотр и чистка дымохода, ремонт и контроль системы водяного отопления осуществляет собственник котла. При замене старого котла с низким КПД на современный следует обратить особое внимание на конструкцию дымохода.При КПД котла ниже 80-85% температура дымовых газов составляет около 200 ° C, что обеспечивает хорошую тягу даже при плохо изолированной дымовой трубе. При КПД 90% температура дымовых газов снижается до 110-120 ° С, а в случае устаревшего дымохода пропадает тяга, что приводит к срабатыванию автоматики и отключению котла. Статистика отказов показывает, что 94% проблем с котлами возникает из-за неправильно сделанного дымохода.
- В помещении, в котором установлен котел, необходимо предусмотреть естественную вентиляцию.Не закрывайте решетки вентиляционных каналов.
- Запрещается использовать котлы на опасных производственных объектах.
Монтаж, подготовка к работе
- Объем помещения, в котором установлен котел, должен быть не менее 8 м3. Расстояние между футеровкой котла и стенами должно быть не менее:
- В помещении, в котором установлен котел, необходимо предусмотреть естественную вентиляцию.
- При установке котла в тепловую сеть необходимо уложить на пол лист негорючего теплоизоляционного материала, сверху железный лист, и установить на него котел.
- Соединения котла с отопительной системой и газовой линией должны быть резьбовыми, что позволяет отключать котел в случае необходимости. Если вместо старого котла установлен котел, необходимо в обязательном порядке промыть трубы и радиаторы системы отопления от отложений ржавчины, накипи и отложений. При несоблюдении этих требований продукты отложений (ржавчина, осадок) переходят в котел, что значительно затрудняет циркуляцию теплоносителя и снижает теплоотдачу котла.В этом случае претензии производителя к температурным параметрам теплоносителя при работе котла не принимаются.
- При повышенном теплопотреблении помещения (толщина наружных стен дома, целостность окон и дверей, разводка труб системы отопления на чердаках, чердаках, не утепленных, превышающих свою площадь или значительно превышающих тепловую несущая способность — количество радиаторов, труб) от установленных норм, температура теплоносителя может не достигать 80 ° С, что не означает брак котла.
- Объем теплоносителя в системе отопления не должен превышать:
Premium 10 — 150 литров
Premium 25 — 375 литров
Premium 12,5 — 180 литров
Premium 30 — 450 литров
Premium 16 — 240 литров
Premium 40 — 600 литров
Premium 20 — 300 литров
Гарантия
Гарантийный срок эксплуатации котла при проведении ежегодного профилактического обслуживания и соблюдении потребителем условий транспортировки, хранения, монтажа и эксплуатации составляет 36 месяцев со дня продажи.
причин, по которым контрольная лампа котла не горит
Как и многим другим типам систем отопления, котлам требуется горящая сигнальная лампа для зажигания горелок, которые, в свою очередь, приводят систему в действие для выработки тепла. Контрольная лампа похожа на олимпийский огонь, который горит на протяжении всего турнира во время празднования Игр, за исключением того, что он горит 24 часа в сутки в течение всего года, чтобы котел работал. Возможно, он не несет в себе символики греческого бога Зевса или олицетворяет стремление к победе, как олимпийский огонь, но он помогает сохранять тепло в доме в холодную погоду.Таким образом, когда пламя гаснет и перестает гореть и не загорается снова, это создает серьезную проблему для семьи.Поскольку котлы представляют собой сложные системы, которые работают с использованием кипяченой или паровой воды под высоким давлением для равномерного обогрева жилища, мы не рекомендуем вам пытаться самостоятельно определять проблему с контрольным светом, так как это может быть очень опасной задачей. Всегда консультируйтесь с вашей местной компанией по обслуживанию котлов в округе Бакс, штат Пенсильвания, например, в Ivey Air, по поводу вашей котельной системы и позвольте им выполнить эту работу.
Однако, чтобы понять, почему контрольная лампа вашего котла не горит, вот несколько причин, которые могут быть причиной проблемы.
Термопара грязная, погнута или повреждена
Если вы изучали контрольную лампу в своем котле, вы могли бы заметить длинный металлический провод, идущий от газового клапана к месту, где будет пламя контрольной лампы. Этот кусок металла называется термопарой, и он действует как тепловой датчик, который реагирует на пламя пилотной лампы, создавая электрический ток, который держит газовый клапан открытым.В качестве встроенной меры безопасности, когда контрольная лампа не горит, электрический ток прекращается, в результате чего газовый клапан закрывается, чтобы предотвратить утечку газа в дом.
Когда термопара неисправна, газовый клапан больше не может оставаться открытым, что перекрывает подачу топлива к контрольной лампе, вызывая ее гашение. Если наконечник термопары сильно загрязнен, погнут от пламени или поврежден, это может быть диагностикой того, почему котел не работает. В этом случае термопару необходимо заменить или отремонтировать.
Контрольная трубка грязная
К сборке пилотного света подсоединена трубка, по которой течет газ, чтобы зажечь пламя. Одна из возможностей того, что пламя не может гореть, заключается в том, что трубка забита грязью. Чтобы исправить это, необходимо прочистить контрольную лампу.
В теплообменнике произошло тепловыделение
Со временем теплообменник в бойлере может забиться из-за минеральных отложений, которые образуются в потоке богатой минералами воды, также известной как «жесткая вода».«Как только теплообменник блокируется, котельная система отключается, чтобы предотвратить повышение опасного давления воды — это также еще одна встроенная мера безопасности.
Неисправность какой-либо части котла может быть неприятным событием, потому что это приводит к тому, что атмосфера в вашем доме быстро становится некомфортной. Как эксперты HVAC, мы можем понять, почему ваш контрольный фонарь не горит, будь то замена, ремонт или аварийное обслуживание. Не подвергайте риску себя или здоровье своей семьи, пытаясь самостоятельно диагностировать контрольную лампу.Позвоните нам по телефону 215-695-4170.
8 причин, по которым ваш котел может выйти из строя
Внезапный отказ котла часто становится шоком для домовладельцев, особенно когда это происходит в середине зимы. К сожалению, домовладельцы часто не замечают признаков надвигающегося отказа котла до того, как это произойдет на самом деле. Распознав следующие красные флажки, вы сможете предпринять активные действия по обслуживанию или замене котла до того, как он выйдет из строя.
Old Age
Качественный котел может прослужить долго, но котлы не рассчитаны на вечность.При надлежащем уходе и техническом обслуживании традиционный газовый котел рассчитан на надежную работу от 10 до 15 лет. Некоторые котлы могут прослужить 20 лет и более благодаря сочетанию отличного обслуживания и высококачественных компонентов.
Старение компонентов может вызвать самые разные проблемы с котлом, поэтому важно заменять котел после того, как он превысил рекомендованный срок службы. Если вы не меняли свой котел в течение последних 10 лет, возможно, пришло время серьезно подумать о более новой, более энергоэффективной замене.
Неисправность термостата
Неисправности термостата — относительно небольшая проблема, но с серьезными последствиями для вашего котла. Неисправный термостат может помешать вашему котлу правильно включиться или выключиться. Неисправности термостата также могут привести к неправильным настройкам, из-за которых в вашем доме будет слишком тепло или слишком холодно для его обитателей. Если у вас возникли проблемы с котлом, термостат обычно является одним из первых компонентов, которые вам нужно проверить у профессионала.
Неисправность запальника или запальной лампы
Газовые и мазутные котлы полагаются на запальные лампы и электронные запальники для розжига основной горелки.Без источника пламени или искры, которые обеспечивают эти компоненты, вы бы вообще не смогли использовать свой котел. Поэтому неудивительно, что ваш котел оказывается на обочине из-за того, что контрольная лампа не горит или воспламенитель не работает должным образом. Хотя эти проблемы можно исправить относительно легко, вы можете подумать о замене бойлера, если эти проблемы также являются обычным явлением.
Отказ циркуляционного насоса
Циркуляционный насос играет важную роль в подаче горячей воды в радиаторы и обогреватели плинтуса, расположенные по всему дому.Как только он перестанет работать, ваш бойлер не сможет подавать горячую воду, которая ему необходима для правильной работы. Хотя циркуляционные насосы обычно имеют такой же ожидаемый срок службы, как и остальная часть котла, нередко они преждевременно выходят из строя из-за неисправности или небрежного обращения. Распространенные признаки отказа циркуляционного насоса включают постоянные утечки вокруг соединений и фланцев, а также странные шумы во время работы. Хотя циркуляционные насосы можно заменять отдельно, это хорошая возможность проверить, нуждается ли в замене остальная часть котельной системы.
Накипи извести
Известковые отложения и минеральные отложения могут накапливаться внутри теплообменника и других частей вашего котла. Это скопление может сильно ограничить поток воды, если его не устранить своевременно. Сильное накопление известкового налета также может привести к «кеттингу» — состоянию, при котором вода внутри бойлера закипает и превращается в пар, создавая те же шумы, которые вы слышите из чайника, но с серьезными последствиями для вашего бойлера.
Хронические утечки
Утечки воды довольно часто встречаются в неисправных котлах.Всякий раз, когда происходит утечка воды, это обычно признак того, что с вашим котлом потенциально серьезная проблема. Например, трещины под напряжением и ослабленные соединения, вызванные усталостью и старостью, могут привести к утечкам воды. Неисправный предохранительный клапан также может вызвать утечку воды. Рекомендуется попросить специалиста по котлам осмотреть ваше устройство при первых признаках неисправности. Таким образом, вы сможете отремонтировать или заменить котел до того, как возникнут серьезные проблемы.
Плохое или несуществующее обслуживание
Игнорирование необходимости регулярного планового обслуживания может легко обречь ваш котел на преждевременную смерть.Фактически, плохое обслуживание или его полное отсутствие — одна из наиболее частых причин выхода из строя котла. Заброшенный котел не только увеличивает потребление энергии и снижает производительность, но также может представлять серьезную угрозу безопасности и благополучию вашего дома. Ежегодный осмотр, проводимый опытным профессионалом, может продлить срок службы вашего котла и обеспечить безопасность вашего дома. Если ваш котел постоянно выходил из строя из-за небрежного обращения, то вам необходимо заменить его на более новый и надежный агрегат.
Плохая оценка
Многие домовладельцы и удивительное количество подрядчиков часто считают, что им лучше иметь слишком большую мощность, чем рисковать, имея ее недостаточно. Вот почему подавляющее большинство котлов — до 85 процентов, по мнению некоторых экспертов — оказываются неправильного размера, причем многие из этих котлов слишком велики для домов, в которых они установлены. Негабаритные котлы не только увеличивают затраты на электроэнергию за счет впустую расходуемое топливо, но они также имеют более короткий срок службы из-за различных механических проблем.Например, в котле большого размера могут постоянно возникать проблемы с короткими циклами, что приводит к избыточной конденсации и, в конечном итоге, к коррозии дымохода и других компонентов котла. Возникли проблемы с котлом? Компания Magnolia Plumbing, Heating & Cooling предлагает комплексное обслуживание котлов для домов по всему Вашингтону, округ Колумбия.
Газовые котлы «Лемакс»: отзывы и рекомендации
Котельное оборудование на газ сегодня получило широкое распространение. Почти половина всех покупных устройств для отопления этого типа работает на газе.Это связано с тем, что этот вид топлива самый эффективный и дешевый. Именно поэтому на рынке можно найти разные модели газовых котлов. Среди них есть те, которые представлены Lemax.
Отзывы об особенностях котлов серии Премиум (7,5-60)
Если вас интересуют газовые котлы Лемакс, отзывы о которых вы можете прочитать в статье, важно обратить внимание на технические технические характеристики. Например, модели упомянутой выше серии изготовлены из высококачественной стали толщиной 2 мм, которая отличается высокой плоскостностью.Теплообменник имеет цилиндрическую форму, что, по мнению заказчиков, позволяет оборудованию работать в закрытых системах с давлением 2 атмосферы.
В связи с тем, что в процессе изготовления изделия покрываются антикоррозийной эмалью, температура воздействия на них может достигать 750 градусов. Покупателей также привлекает обработка ингибиторами. Также следует отметить, что теплообменник защищен от агрессивных факторов, таких как минеральные масла и солевые растворы.
Отзывы о характеристиках котлов серии Премиум (7,5-60)
Выбирая котлы газовые «Лемакс», отзывы вам стоит прочитать заранее, возможно, они позволят вам сделать правильный выбор. Владельцы частных домов и загородных построек отмечают, что Lemax представляет для продажи котлы расширенной линейки мощностей. Этот параметр колеблется от 7,5 до 60 киловатт. За сохранность техники можно не беспокоиться, она оснащена системой защиты от перегрева, образования сажи и прерывания тяги.Владельцы таких устройств не могут столкнуться с проблемой задувания пламени.
Потребители выбирают агрегаты Lemax из-за простоты обслуживания. Во время работы можно удобно чистить котел, так как в конструкции используется верхняя съемная панель. Газовые котлы Лемакс, отзывы о которых только самые положительные, оснащены инновационной системой, отвечающей за безопасность, полностью исключающей перегрев теплообменника.
Отзывы о положительных характеристиках
Пользователи, ранее приобретавшие газовые котлы, отмечают, что продукция компании «Лемакс» отличается максимальным КПД, который обеспечивается изменением конструкции турбулятора.Это позволяет задерживать отходящие газы с высокой температурой. Помимо прочего, повысился КПД за счет использования более внушительной площади теплообмена. Производитель представил систему увеличения вторичного и первичного воздушного потока. Ко всем прочим положительным характеристикам нельзя не добавить трехлетнюю гарантию на отопительное котельное оборудование, что свидетельствует о высоком качестве агрегатов.
Рекомендации по выбору мощности
Если вас интересуют газовые котлы Лемакс, отзывы о которых вы можете прочитать в статье, необходимо понимать критерии выбора такого оборудования.В первую очередь следует обратить внимание на мощность. Этот параметр будет зависеть от площади обогрева, что актуально для потребителей, желающих приобрести прибор для частного дома. Если мы говорим о градостроительстве, высота потолков в котором менее 3 метров, то одного киловатта хватит на 10 квадратных метров площади. Результат нужно разделить на 10, а затем округлить в большую сторону. Базовую мощность следует увеличить в среднем на 25%, только так вы сможете создать в доме эффективную систему отопления.Определившись с мощностью, можно приобрести котел «Лемакс». Отзывы и рекомендации о нем позволят понять, какой модели лучше отдать предпочтение.
Дополнительные советы по выбору
Если вы живете в доме, теплопотери которого большие, то требуемую мощность следует увеличить еще на 25%. Как вариант, можно заняться теплоизоляцией. Многие потребители задаются вопросом, сколько горячей воды можно получить при работе котлов разной мощности.Если этот параметр не превышает 15 киловатт, то оборудование может обеспечить двухкомнатную квартиру отоплением и горячей водой.
Когда в доме живут 2 человека, им будет достаточно 12 литров в минуту. Это должна быть производительность устройства. Газовый котел «Лемакс-Премиум 12,5» подходит для семьи из 4-х человек, где средний расход воды составляет 15 литров в минуту. Но лучше всего выбрать устройство, мощность которого составляет 25 киловатт. Предпочитая бытовую модель, можно рассчитывать максимум на 40 киловатт, это уже 20 литров в минуту, а отапливаемая площадь — до 200 квадратных метров.
Отзывы о котле «Лемакс 12,5»
Если вас заинтересовал газовый котел «Лемакс 12,5», отзывы о котором будет полезно прочитать перед совершением покупки, необходимо знать о его характеристиках. Это оборудование энергонезависимое, его мощность составляет 12 киловатт. Теплообменник выполнен из высокопрочной стали, пользующейся большой популярностью у потребителей, а камера имеет открытую конструкцию. Оплатить устройство придется 17 300 руб. Это напольное оборудование имеет номинальную тепловую мощность 12.5 киловатт.
Опытные домовладельцы подчеркивают, что КПД у такой техники довольно внушительный, он составляет 90%. Если вы прочитали отзыв о газовом котле напольном, то сможете понять, какой расход газа вы ожидаете. В данном случае это 0,75 кубометра.
Котельная должна быть рассчитана на установку такого устройства, поэтому потребителю будут важны размеры 744 х 416 х 491 миллиметр. Перенести агрегат в дом можно самостоятельно, заручившись помощью домочадцев, так как его вес составляет всего 52 килограмма.
Отзывы о котле марки «Лидер»
В последнее время все большую популярность набирают газовые котлы «Лемакс-Лидер», отзывы о которых только положительные. Данная серия комплектуется теплообменником, который изготовлен из качественного серого чугуна. По словам пользователей, эта часть конструкции специально разработана, чтобы исключить возникновение коррозии. Рассмотрев линейку «Лидер», можно понять, что она представлена моделями разной мощности, этот параметр варьируется от 16 до 50 киловатт.Таким образом, оборудование можно установить в помещении площадью 500 квадратных метров и меньше.
p>Отопительные котлы Лемакс серии Премиум со стальным теплообменником предназначены для отопления и горячего водоснабжения квартир, жилых домов, коттеджей, административных зданий, оборудованных системой водяного отопления с естественной или принудительной циркуляцией.
Газовый котел Lemax Premium соответствует всем требованиям безопасности и экологии, установленным для данного вида продукции.ГОСТ 20548; т У 4931-011-24181354-2011
Котлы Lemax Premium работают на природном газе ГОСТ 5542-96 и поставляются в сборе с газогорелочным устройством
. Рабочее давление воды в системе отопления не более 2 кгс / см 2, в закрытой системе отопления необходимо установить систему безопасности с предохранительным клапаном на давление не более 1,5-1,7 кгс / см 2
Станция стальная напольная Тагонрог мощностью 30 кВт , применяемая для отопления жилых домов и производственные помещения до 300 м2 .
Котел газовый Lemax Premium — 30 со стальным теплообменником производства Тагонрогского завода газового и отопительного оборудования.
Обратившись в нашу компанию, вы купите Газовый котел Lemax Premium — 30 у официального дилера производителя по цене ниже заводской. Кроме того, у нас вы можете приобрести все необходимое оборудование для системы отопления вашего дома.
Прочность:
Теплообменник из высококачественной стали из стали Магнитогорского завода;
— теплообменник толщиной 2 миллиметра из высококачественной стали теплообменник с эмалированным покрытием с антикоррозийным покрытием;
— максимальное рабочее давление 4 бар;
— пересмотрена теплоизоляция теплообменника;
— обработанный ингибирующим составом против коррозии;
— срок службы 15 лет.
Надежность:
Защита от перегрева;
— защита от прерывания тяги;
— пламегаситель;
— защита от образования сажи.
Комфорт и экономичность:
Удобство использования;
— эргономичный дизайн;
— нет необходимости подключаться к электрической сети;
— оснащение газовой арматурой концерна SIT (Италия), экономия газа до 30%;
— гарантия 3 года.
Газовый котел «Лемакс» Возможен перевод на пропан-бутан или сжиженный газ (баллон), достаточно заменить форсунку. .
Общие инструкции газового котла серии Lemax Premium
- Прочтите данное руководство перед использованием котла.
- Монтажные работы, инструктаж по эксплуатации, наладочные работы, профилактическое обслуживание и ремонт котла выполняются специализированной организацией и местной администрацией газовой отрасли в соответствии с «Правилами безопасности систем газораспределения и газопотребления», утвержденными Государственный технический надзор Российской Федерации, СНиП 11-35-76; СНиП 2.04.05-91 Госстрой РФ, согласно проекту на установку котла и обязательное заполнение контрольной карты.
- Собранный котел может быть введен в эксплуатацию только после приемки его специалистами газовой отрасли, после прохождения инструктажа владельца и заполнения контрольного талона монтажа (стр. 21 руководства по эксплуатации).
- Проверку и чистку дымохода, ремонт и контроль системы водяного отопления осуществляет собственник котла.При замене старого котла с низким КПД на современный следует обратить особое внимание на конструкцию дымохода. При КПД котла ниже 80-85% температура дымовых газов составляет около 200 ° C, что обеспечивает хорошую тягу даже при плохо изолированной дымовой трубе. При КПД 90% температура дымовых газов опускается до 110-120 ° С, а в случае устаревшего дымохода пропадает тяга, что приводит к срабатыванию автоматики и отключению котла.Статистика отказов показывает, что 94% проблем с котлами связаны с неправильно выполненным дымоходом.
- Помещение, в котором установлен котел, должно иметь естественную вентиляцию. Не закрывайте решетки вентиляционных каналов.
- Использование котлов на опасных производственных объектах запрещено.
Установка, подготовка к эксплуатации газового котла Лемакс серии Премиум
- Объем помещения, в котором установлен котел, должен быть не менее 8 м3.Расстояние между футеровкой котла и стенами должно быть не менее:
- Помещение, в котором установлен котел, должно иметь естественную вентиляцию.
- При установке котла в тепловую сеть необходимо уложить на пол лист негорючего теплоизоляционного материала, сверху — лист железа, на него установить котел.
- Подключения котла к системе отопления и к газовой магистрали должны быть резьбовыми, чтобы котел можно было отключить в случае необходимости.Если котел установлен вместо старого котла, необходимо обязательно промыть трубопроводы и радиаторы отопительной системы от ржавчины, накипи и шламов. При несоблюдении этих требований продукты отложений (ржавчина, осадок) переходят в котел, что значительно затрудняет циркуляцию теплоносителя и снижает теплоотдачу котла. В этом случае претензии к показателям температуры теплоносителя при работе котла производителем не принимаются.
- При повышенном теплопотреблении помещения (толщина наружных стен дома, целостность окон и дверей, разводка труб системы отопления на чердаках, не утепленных чердаках, превышение ее площади или значительное превышение вместимости теплоносителя — количество радиаторов, патрубков) от установленных норм, температура теплоносителя не может достигать 80 ° С, что не означает выход из строя котла.
Два контура, встроенная автономная автоматика 710 MINISIT пьезозажигание.Котел не требует подключения к электричеству, полностью автономен, возможность работы в закрытой, открытой системе отопления дома. Не прихотливая к охлаждающей жидкости, допускается использование антифриза при установке закрытой системы, при давлении в полтора бара.
Стальные отопительные котлы серии Премиум 30В предназначены для отопления и горячего водоснабжения квартир, жилых домов, коттеджей, административных зданий, оборудованных системой водяного отопления с естественной или принудительной циркуляцией.Котел соответствует всем требованиям безопасности и охраны окружающей среды, установленным для данного вида продукции.
Чтобы избежать термических ожогов горячей водой, установите «Термостатический автоматический смеситель с терморегулированием для приготовления теплой воды» или при использовании горячей воды сначала откройте холодную воду, а затем добавьте горячую воду для создания комфортной температуры.
Особенности напольного двухконтурного устройства Lemax Premium 30V
Отапливаемая площадь дома, дома, дачи 300 метров при стандартной высоте потолков, трех мер.
Котел Premium 30B представляет собой сварную стальную конструкцию, образующую водяную рубашку по всему периметру. В нижней части котла, в проеме камеры сгорания, устанавливается газогорелочное устройство с органами управления. В верхней части котла расположен газоотвод для отвода продуктов сгорания из топки.
На задней поверхности котла имеются резьбовые соединения для подключения котла к системе отопления. Регулирование и поддержание заданной температуры обеспечивается термостатом, модулирующим пламя основной горелки, оснащенным ручкой с градуировкой, которая установлена на передней панели горелки.
Благодаря покрытию антикоррозийной эмалью «CERTA» (температура выдержки 750 ° C) и обработке ингибирующим составом теплообменник защищен от агрессивных факторов: солевых растворов, минеральных масел.
Котел Premium не требует подключения к электросети.
Оснащен оригинальными комплектующими газогорелочного устройства и газовой арматурой итальянского концерна «SIT», а также инжекторной микросжигательной горелкой «POLIDORO».
- Наличие системы защиты от перегрева, прерывания тяги, сажеобразования, а также от продувки котла.
- Котел Премиум 30В удобен в обслуживании за счет использования съемных элементов облицовки и профильной фурнитуры.
- Удобство чистки котла за счет использования съемной верхней панели.
- Расширенная система защиты (установлен датчик перегрева теплообменника).
- Максимальная эффективность со стальным теплообменником.
- Увеличенная площадь теплообмена.
- Модификации конструкции турбулятора для максимального удержания выхлопных газов.
- Увеличенный расход первичного и вторичного воздуха.
- Котел Premium имеет возможность перейти на сжиженный газ.
- Большой диаметр отводящих труб диаметром 50 мм.
- Стандартный размер трубы ГВС 15 мм.
- Котел работает в системах с естественной циркуляцией.
- Допускается установка циркуляционного насоса.
- Максимальное рабочее давление в контуре горячего водоснабжения не более 6 кгс / см2.
- Гарантия на котел от производителя 3 года.
Технические характеристики двухконтурного котла Lemax серии Premium 30V
Максимальный расход газа для котла LEMAX PREMIUM 30 В с газогорелочным устройством GGU 35 = 3,5 м³ / час.
- — сзади 150 мм;
- — 100 мм справа и слева;
- — 1000 мм спереди.
ПОРЯДОК РАБОТЫ
Помещение, в котором установлен котел Premium 30V, должно иметь естественную вентиляцию. Не закрывайте решетки вентиляционных каналов.
Для включения котла необходимо проверить наполнение системы отопления водой, проверить наличие тяги и выбрать желаемый порядок действий, определяемый мощностью котла и применяемой автоматикой безопасности.
Для котлов мощностью от 25 до 30 кВт с газогорелочным устройством на базе итальянской автоматики 710 MINISIT и инжекторной горелкой Polidoro.
ВНИМАНИЕ!
В любом случае при включении газового клапана ВСЕГДА переводите ручку регулятора температуры в положение «Выкл.» И только после этого запускайте розжиг горелки.
Открыть газовый кран на входе газа в напольный котел Premium 30V.
Нажать кнопку подачи газа и, не отпуская ее, нажать кнопку пьезо воспламенителя.Не отпускать кнопку подачи газа в течение 10-60 секунд.
Отпустите кнопку и проверьте наличие пламени на пилотной горелке. Если пламени нет, увеличьте время удержания газовой кнопки.
Для включения основной горелки установите ручку настройки температуры в положение 1. Положение 7 соответствует максимальной температуре охлаждающей жидкости 80 ° С.
Чтобы выключить основную конфорку, поверните ручку регулятора температуры в положение «Выкл.». Это зажжет пилотный фонарь.
Для полного отключения подачи газа нажмите кнопку «Полное отключение».
Температура охлаждающей жидкости регулируется вращением ручки настройки температуры, при достижении заданной температуры термостат автоматически снижает подачу газа, при понижении температуры термостат возобновляет подачу газа.
Строительство стального напольного двухконтурного котла LEMAX PREMIUM 30V
УСТАНОВКА, ПОДГОТОВКА К РАБОТЕ
Объем помещения, в котором установлен котел, должен быть не менее 8 м3.Расстояние между футеровкой котла и стенами должно быть не менее:
Помещение, в котором установлен котел, должно иметь естественную вентиляцию.
При установке котла в тепловую сеть необходимо уложить на пол лист негорючего теплоизоляционного материала, сверху — лист железа, установить на него котел.Подключение котла Премиум к газопроводу необходимо производить через диэлектрическую изоляцию.
Присоединения котла к системе отопления и к газовой магистрали должны быть резьбовыми, чтобы при необходимости котел можно было отключить. Если вместо старого котла установлен котел Премиум, необходимо обязательно промыть трубопроводы и радиаторы системы отопления от отложений ржавчины, накипи и шлама. При несоблюдении этих требований продукты отложений (ржавчина, шлам) переходят в котел, что значительно затрудняет циркуляцию теплоносителя и снижает теплоотдачу котла Премиум.В этом случае претензии к показателям температуры теплоносителя при работе котла производителем не принимаются.
При повышенном теплопотреблении помещения (толщина наружных стен дома, целостность окон и дверей, разводка труб системы отопления на чердаках, чердаках, не утепленных, превышена его площадь или вместимость). теплоносителя значительно превышено — количество радиаторов, патрубков) от установленных норм температура теплоносителя может не достигать 80 ° С, что не означает выход из строя котла.
Ориентировочное количество теплоносителя в системе отопления для напольного котла Лем
- Котел Премиум 25В — 375 литров;
- Котел Премиум 30В — 450 литров;
Точное количество теплоносителя определяется в проекте на систему отопления.
Для правильного заполнения и подпитки системы, а также для закрытой системы отопления обязательно устанавливать предохранительный предохранительный клапан 1,5 кгс / см2 (бар) на расстоянии не более 150 мм от штуцера клапана для заполнения система отопления.
Расширительный бак устанавливается наверху основного стояка, желательно в отапливаемом помещении. Не устанавливайте клапан на сигнальную трубу.
Горизонтальные участки трубопроводов системы отопления должны выполняться с уклоном не менее 10 мм на 1 метр в сторону радиаторов отопления и от них до котла. Это сделано для того, чтобы обеспечить свободный выход воздуха при заполнении системы водой и исключить образование воздушных карманов.
Трубопроводы, радиаторы отопления и их стыки должны быть герметичными, утечки воды не допускаются.
Гарантийные обязательства завода LEMAX на газовый двухконтурный напольный котел серии ПРЕМИУМ
В случае выхода из строя котла Lemax Premium в течение гарантийного срока, при соблюдении требований, потребитель имеет право на бесплатный ремонт, а в случае заводского брака теплообменника — на замену котла. Гарантийный ремонт котла проводят специализированные сервисные центры или газовые хозяйства. По результатам ремонта выдается талон на гарантийный ремонт.
Не допускается эксплуатация котла при температуре теплоносителя ниже 50 ° С, так как это вызывает обильную конденсацию и, как следствие, повышенный коррозионный износ котла.
Котел «Лемакс» изготовлен из высококачественной стали 2 мм повышенной плоскостности Магнитогорского металлургического комбината. Теплообменник покрыт теплоизоляционной эмалью и обработан ингибирующим составом, предотвращающим коррозию. Котел не требует подключения к электросети. Предназначен для отопления и горячего водоснабжения квартир, жилых домов, коттеджей, административных зданий, оборудованных системой водяного отопления с естественной или принудительной циркуляцией.котел соответствует всем требованиям безопасности и экологии, установленным для данного вида продукции. ГОСТ 20548; ТУ 4931-011-24181354-2011.
Котлы работают на природном газе ГОСТ 5542-96 и поставляются в сборе с газогорелочным устройством.
Рабочее давление воды в системе отопления не более 2 кгс / см 2, в закрытой системе отопления необходимо установить систему безопасности с предохранительным клапаном на давление не более 1,5-1,7 кгс / см 2.
- Расширенный диапазон мощности от 10 до 40 кВт.
- Новый дизайн.
- Наличие системы защиты от перегрева, прерывания тяги, сажеобразования, а также от продувки котла.
- Удобство обслуживания котла за счет использования съемных элементов облицовки и профильной фурнитуры.
- Удобство чистки котла за счет использования съемной верхней панели.
- Улучшенная система защиты (установлен датчик перегрева теплообменника).
- Максимальная эффективность достигается за счет:
- увеличение площади теплообмена;
- изменения в конструкции турбулизатора для максимальной задержки выхлопных газов.
- Увеличенный расход первичного и вторичного воздуха.
- Функция горячей воды.
- Гарантия 3 года.
Сравнительная таблица технических характеристик котлов
Lemax серии Premium
| Название параметра | ||||||||
|---|---|---|---|---|---|---|---|---|
| — одноконтурный | 12,5 | |||||||
| — двухконтурный | 12.5В | 16 В | 20 В | 25 В | 30 В | 35V | 40 В | |
| Тип газогорелочного устройства. | ГСУ 12 | ГСУ 15 | ГСУ 19 | ГСУ 24 | ГСУ 30 | ГСУ 35 | ГГУ 40 | ГСУ 45 |
| Тепловая мощность номинальная, кВт | 10 | 12,5 | 16 | 20 | 25 | 30 | 35 | 40 |
| КПД% не менее | 90 | 90 | 90 | 90 | 90 | 90 | 90 | 90 |
| Температура выхлопных газов, ° С, не менее | 110 | 110 | 110 | 110 | 110 | 110 | 110 | 110 |
| Диапазон разрежения, при котором обеспечивается стабильная работа котла, Па | 4-25 | 4-25 | 4-25 | 4-25 | 4-25 | 4-25 | 4-25 | 4-25 |
| Давление газа номинальное, Па | 1300 | 1300 | 1300 | 1300 | 1300 | 1300 | 1300 | 1300 |
| Производительность контура ГВС ∆ 30 ° С, л / мин.(при температуре воды на входе не менее 15 ° C) | — | 4 | 5 | 6 | 7 | 8 | 9 | 10 |
| Максимальный расход газа, м3 | 1,2 | 1,5 | 1,9 | 2,4 | 3 | 3,5 | 4 | 4,5 |
| Максимальная температура воды на выходе из котла, ° С | 90 | 90 | 90 | 90 | 90 | 90 | 90 | 90 |
| Диаметр дымохода, мм | 100 | 130 | 130 | 130 | 130 | 130 | 140 | 140 |
| Диаметр газовой трубы, дюйм | 1/2 ’’ | 1/2 ’’ | 1/2 ’’ | 1/2 ’’ | 1/2 ’’ | 1/2 ’’ | 3/4 ’’ | 3/4 ’’ |
| Диаметр присоединяемых патрубков, дюйм | 1 1/2 ’’ | 2 ’’ | 2 ’’ | 2 ’’ | 2 ’’ | 2 ’’ | 2 ’’ | 2 ’’ |
| Габаритные размеры, мм: | ||||||||
| — Высота | 748 | 744 | 744 | 961 | 961 | 961 | 1016 | 1016 |
| — Ширина | 330 | 416 | 416 | 470 | 470 | 470 | 532 | 532 |
| — Глубина | 499 | 491 | 491 | 556 | 556 | 556 | 608 | 608 |
| Масса, не более, кг | 39 | 53/58 | 53/58 | 75/80 | 80/85 | 80/85 | 100/106 | 100/106 |
Общие примечания
- Прочтите данное руководство перед использованием котла.
- Монтажные работы, инструктаж по эксплуатации, наладочные работы, профилактическое обслуживание и ремонт котла выполняются специализированной организацией и местной администрацией газовой отрасли в соответствии с «Правилами безопасности систем газораспределения и газопотребления», утвержденными Государственный технический надзор Российской Федерации, СНиП 11-35-76; СНиП 2.04.05-91 Госстроя РФ, согласно проекту на установку котла и обязательное заполнение контрольной карты.
- Собранный котел может быть введен в эксплуатацию только после приемки его специалистами газовой отрасли, после прохождения инструктажа владельца и заполнения контрольного талона монтажа (стр. 21 руководства по эксплуатации).
- Проверку и чистку дымохода, ремонт и контроль системы водяного отопления осуществляет собственник котла. При замене старого котла с низким КПД на современный следует обратить особое внимание на конструкцию дымохода.При КПД котла ниже 80-85% температура дымовых газов составляет около 200 ° C, что обеспечивает хорошую тягу даже при плохо изолированной дымовой трубе. При КПД 90% температура дымовых газов опускается до 110-120 ° С, а в случае устаревшего дымохода пропадает тяга, что приводит к срабатыванию автоматики и отключению котла. Статистика отказов показывает, что 94% проблем с котлами связаны с неправильно выполненным дымоходом.
- Помещение, в котором установлен котел, должно иметь естественную вентиляцию.Не закрывайте решетки вентиляционных каналов.
- Использование котлов на опасных производственных объектах запрещено.
Монтаж, подготовка к работе
- Объем помещения, в котором установлен котел, должен быть не менее 8 м3. Расстояние между футеровкой котла и стенами должно быть не менее:
- Помещение, в котором установлен котел, должно иметь естественную вентиляцию.
- При установке котла в тепловую сеть необходимо уложить на пол лист негорючего теплоизоляционного материала, сверху — лист железа, на него установить котел.
- Подключения котла к системе отопления и к газовой магистрали должны быть резьбовыми, чтобы котел можно было отключить в случае необходимости. Если котел установлен вместо старого котла, необходимо обязательно промыть трубопроводы и радиаторы отопительной системы от ржавчины, накипи и шламов. При несоблюдении этих требований продукты отложений (ржавчина, осадок) переходят в котел, что значительно затрудняет циркуляцию теплоносителя и снижает теплоотдачу котла.В этом случае претензии к показателям температуры теплоносителя при работе котла производителем не принимаются.
- При повышенном теплопотреблении помещения (толщина наружных стен дома, целостность окон и дверей, разводка труб системы отопления на чердаках, не утепленных чердаках, превышение ее площади или значительное превышение вместимости теплоносителя — количество радиаторов, патрубков) от установленных норм, температура теплоносителя не может достигать 80 ° С, что не означает выход из строя котла.
- Объем теплоносителя в системе отопления не должен превышать:
Premium 10 — 150 литров
Premium 25 — 375 литров
Premium 12,5 — 180 литров
Premium 30 — 450 литров
Premium 16 — 240 литров
Premium 40 — 600 литров
Premium 20 — 300 литров
Гарантийные обязательства
Гарантийный срок эксплуатации котла при проведении обязательного ежегодного профилактического обслуживания и соблюдении потребителем условий транспортировки, хранения, монтажа и эксплуатации составляет 36 месяцев со дня продажи.
Отопительный котел lemax. Газовый котел Lemax Premium. Обзор. Инструкция.Технические характеристики
Газовый котел Lemax Premium заслуживает внимания покупателя. Отечественный производитель буквально наступает на пятки известным европейским брендам. Счастливые обладатели высокопроизводительного котла отметили в отзывах о товаре, что при правильном монтаже, эксплуатации и обслуживании котла Лемакс Премиум значительно снижает затраты на отопление.
Компания «Лемакс» заботится о потребителях и представляет достойный выбор исключительно качественных отопительных приборов.Учитывая рост популярности энергоэффективного индивидуального оборудования для отопления, инженерный отдел компании ежегодно предлагает новое оборудование, каждый раз улучшая его технические характеристики.
Продукция высокого качества, прежде всего за счет современного производства. На ее место пришли инновационные машины и механизмы от ведущих мировых компаний (итальянских и немецких). Отлаженная линия контроля качества выпускаемой продукции устраняет дефекты еще на этапе выхода продукции к потребителю.
Котел Lemax Premium
Обогреватель Lemax Premium стал визитной карточкой компании. Именно о нем мы и хотим сделать обзор. Нас интересует инструкция котла Лемакс Премиум, принцип работы, представленные производителем модели, а также технические показатели и отзывы покупателей.
Толщина нержавеющей стали повышенной прочности, используемой при изготовлении котлов Лемакс Премиум, составляет не менее 2 миллиметров. Необычно широкий ассортимент, позволяет максимально точно подобрать отопительный прибор в соответствии с энергоответственным проектом отопления.
Домовладелец может быть уверен, что найдет в серии необходимый аппарат мощностью от 7,5 кВт для организации индивидуальной котельной, небольшого садового домика площадью 70 квадратных метров. Дизайнер может посчитать котел Lemax Premium с характеристиками, подходящими для отопления больших административных и промышленных зданий мощностью до 100 кВт. площадью до 1000 м2.
Котел Lemax Premium Device
Котел газовый стальной (КГС), поэтому часто можно удивить названием котлов Lemax Premium на ценниках в магазинах.Широким спросом у индивидуального потребителя оказался сом премиум от 7,5 до 20 кВт. Напомним, примерное значение мощности, необходимой для отопления жилища, принято в средней полосе России из расчета 10 кВт на 100 м². Подробное устройство котлов Lemax Premium можно увидеть на рисунке ниже:
Характеристики котла Lemax Premium
Производитель разделил линейку котлов на две группы. Первая «бытовая» серия котлов Lemax Premium находится в диапазоне мощности 7.5-60 киловатт. Производитель определил срок службы изделия в 14 лет.
На видео подробно показан котел Lemax Premium 12.5 Технические характеристики:
С гордостью проектируемотдел представляет покрытие CERTA, специально разработанную антикоррозионную эмаль. Состав выдерживает температуру воздействия до 750 ° С. После обработки теплообменник, благодаря ингибирующему составу, значительно повышает защитные свойства от агрессивных воздействий, таких как: солевые растворы или минеральные масла.Таким образом, котел Lemax Premium характеризует самое высокое и заслуженно привлекает наше внимание.
Котлы газовые стальные Lemax Premium Series 7.5 — 60
Как было сказано выше, корпус котла Lemax изготовлен из двухмиллиметровой стали. Соответствует всем европейским и отечественным стандартам.
Инженеры предложили использовать теплообменник цилиндрической формы, что позволило эксплуатировать котел «Лемакс премиум» в замкнутых контурах с рабочим давлением до 1 атм.для моделей от 7,5 до 10 кВт.
Для опций от 12,5 — до 60 кВт разработчики гарантируют стабильную работу до 3 атм.
Котел Lemax Premium Преимущества до 60 кВт
- Широкий диапазон мощностей от 7,5 до 60 кВт определенно способствует точному подбору оборудования по заданным параметрам.
- Котел Лемакс Премиум полностью энергонезависим, нет необходимости в электрических подключениях. Газовый клапан
- SIT от ведущего итальянского бренда говорит нам о серьезном подходе к выбору поставщиков комплектующих, который выбирает котел Lemax Premium.Оснащение таких элементов устройством газовой горелки вместе с горелкой для микроинжекции POLIDORO оправдывает премиальное название серии. Компонент SIN, используемый в таких известных устройствах, как, и другие.
- Многоуровневая система защиты оснащена датчиком перегрева и датчиком реверса.
- Котел Лемакс Премиум забит большим скоплением сажи и случайным продуванием горелки.
- Верхняя декоративная панель легко снимается, что делает чистку и обслуживание оборудования простой и несложной задачей.
- Как уже упоминалось выше, датчик перегрева теплообменника дополняет уровень защиты устройства.
- Наибольшей эффективности производитель добился, применив:
- расширенная поверхность теплообмена; Турбулизатор
- новой конфигурации, позволяющий задерживать максимальное количество выхлопных газов.
- Расширен в сторону увеличения первичного и вторичного потока воздушных масс.
- Организация горячего водоснабжения в котлах мощностью от 12.5 — до 40 кВт.
- Восстановление форсунок на сжиженный газ.
- Гарантия производителя 36 месяцев.
Котлы газовые стальные Lemax Premium Series 70-100
Вторая «промышленная» серия котлов Lemax Premium находится в диапазоне мощностей от 70 до 100 киловатт. Производитель определил срок номинальной эксплуатации оборудования 14 лет.
Тепловые характеристики данной серии предполагают использование устройства при обогреве больших зданий.Дизайнеры завершают проекты жилых домов и офисных зданий площадью до 1150 квадратных метров.
Lemax инструкция находится в разделе.
Преимущества котлов Лемакс Премиум до 100 кВт
- Lemax premium от 70 до -100 кВт инженеры компании поставили два газовых клапана 820 NOVA SIT, которые осуществляют работу независимо друг от друга;
- Тепловые параметры удобно настраиваются на передней панели;
- Котел Lemax полностью энергонезависимый; нет необходимости в электрическом подключении.
- Автоматический контроль возможного образования сажи, перегрева и прерывания тяги осуществляется соответствующими датчиками;
- Клапан, отвечающий за контроль избыточного давления, встроен в контур отопления и рассчитан на 3 бара;
- Самый высокий КПД котла Lemax Premium достигается за счет:
- увеличения поверхности теплообмена; Турбулизатор
- новой конфигурации, позволяющий максимально задерживать выхлопные газы;
- Повышенный уровень начального и вторичного воздушного потока;
- Регулирование температуры теплового прибора относительно термометров внутри жилища осуществляется подключением комнатного термостата;
- Стандартное оснащение котлов Lemax Premium, настроенных на работу на природном газе, при необходимости после перенастройки форсунок специалистами сервисного центра допускается работа на сжиженном газе;
- Гарантия производителя на котел Лемакс-3 года со дня продажи.
Котлы газовые стальные Lemax Premium Series N
Третья версия модельного ряда котла Lemax Premium , в наименовании маркируется индексом «N». Индикаторы начинаются с 7,5 и ограничены мощностью 30 киловатт. Строение устройства конструктивно идентично первым двум. Отличительным моментом в устройстве следует отметить, прежде всего, подключение специального фирменного турбо-сопла для отвода продуктов сгорания. Во-вторых, возможность подключения комнатного термостата.
Для удобства изменения температуры ручка управления расположена на передней панели с правой стороны. Информативное обозначение значений температуры в обязательном порядке позволяет установить регулятор в нужное положение, обеспечить комфортный тепловой режим.
Для котлов Lemax Premium с индексом «N», Предусмотрено специальное подключение для комнатного термостата, сигнал с которого поступает на автомат управления газовым котлом. На основании показаний температуры в помещении отопительный прибор меняет интенсивность нагрева.
Комнатный термостат lemax
Термостат, показанный на рисунке, используется для автоматического регулирования температуры. Термостат находит широкое применение в общественных местах, таких как отели, школы, правительственные учреждения и т. Д.
Для правильной работы газового котла Лемакс Премиум термостат необходимо установить в той зоне помещения, где хранятся средние температуры. Устанавливать прибор желательно на уровне полутора метров от пола.Источники тепла, а также окна или двери не должны влиять на показания термостата, поэтому необходимо найти положение прибора так, чтобы вышеуказанные обстоятельства на него не повлияли.
Сопло турбины Lemax
Турбо-форсунки подключаются к котлам, на которых установлен газовый клапан SIT NOVA 820. Проще говоря, если черная ручка терморегулятора находится на вашем устройстве, то к ней можно подключить насадку Lemax Turbo.
Основное назначение данного устройства — принудительный вывод продуктов сгорания.Турбонаддув на котле Lemax Premium освобождает владельца от забот по оборудованию и установке дымохода с естественной тягой.
Лучший обзор Котел Lemax Premium характеризует как надежное оборудование. Сочетание отечественного производства с передовыми компонентами делает инновационные устройства доступными для населения,
Сегодня котел Лемакс Премиум можно найти в продаже по всей России. К тому же покупать котлы Лемакс по выгодной цене, лучше на официальном сайте в интернет-магазине.Если все же нужно потрогать технику своими руками, то к вашим услугам широкая сеть розничных магазинов — партнеров компании.
Гарантийный ремонт котлов Лемакс Премиум осуществляется в сервисных центрах. Полный список сервисных партнеров компании доступен на официальном сайте. Производитель заявляет, что быстро реагирует на проблемы, с которыми сталкиваются потребители. В кратчайшие сроки исправить проблемы. Кроме того, вы также можете подписаться на послепродажное обслуживание.Производитель котла Лемакс Премиум старается учесть все пожелания своих покупателей!
Устройство котла с газовым горелочным устройством УГ
2. Устройство газовой горелки.
3. Кнопка выключения.
4. Кнопка «Пуск».
5. Термостат.
6. Газовая арматура.
7. Выход отопительной воды.
8. Вход отопительной воды.
9. Датчик температуры.
10. Вход горячей воды.
11. Отвод горячей воды.
12. Трубка термодатчика.
Установите ручку термостата 5 в положение «0» (закрыто).
2. Зажгите спичку длиной 20-25 см и поднесите ее через смотровое отверстие к пилотной горелке, нажмите кнопку 4 магнитного клапана до упора, зажгите пилотную горелку. Если газ не загорается на пилотной горелке, повторите зажигание. После розжига пилотной горелки кнопку магнитного клапана 4 необходимо удерживать в нижнем положении в течение 60 секунд, затем плавно отпустить, при этом пилотная горелка должна гореть, если пламя погаснет — повторить розжиг.
3. Установите ручку термостата 5 в положение 4, при котором загорается основная горелка. Далее нужно дождаться прогрева котла и системы, после чего установить ручку термостата в нужное положение.
4. Для выключения котла нажать кнопку 3 (аварийное отключение), основная и пилотная горелки должны погаснуть. Закройте газовый кран на газопроводе.
Устройство котла с газогорелочным аппаратом ГГУ «Лемакс» на базе «710 Mini Sit» и инжекторной горелкой
.2.Устройство газовой горелки.
3. Кнопка подачи газа на пилотную горелку.
4. Кнопка выключения.
5. Пёзовоспламенитель.
6. Ручка настройки температуры.
7. Трубка термодатчика.
8. Смотровое окно.
9. Газовая арматура.
10. Ввод отопительной воды.
11. Выход отопительной воды.
12. Датчик температуры.
13. Подача горячей воды.
14. Отвод горячей воды.
Внимание! В любом случае при включении газового клапана ВСЕГДА переводите ручку 6 в положение «выключено» и только после этого запускайте розжиг горелки.
1. Откройте газовый кран на подающей трубе.
2. Нажать кнопку подачи газа 3 и, не отпуская ее, нажать кнопку пьезо-воспламенителя 5. Не отпускать кнопку подачи газа в течение 10-60 секунд.
3. Отпустить кнопку и проверить наличие пламени на пилотной горелке. Если пламени нет, повторить шаг 7.2., Увеличивая время удержания кнопки подачи газа.
4. Для включения основной горелки поверните ручку установки температуры 6 в положение 2. Максимальная температура теплоносителя 80 ° С соответствует цифре 7 (при условиях, указанных в п. 8.4).
5. Чтобы выключить основную горелку, поверните ручку настройки температуры в положение «выключено». Это сожжет факел пилотной горелки.
6. Для полного отключения подачи газа нажмите кнопку 4.
7. Регулировка температуры хладагента выполняется вращением ручки настройки температуры, при достижении заданной температуры термостат автоматически перекрывает поток газа, а при понижении температуры термостат возобновляет поток газа.
Устройство котла с газовым котлом ГГУ «Лемакс» на базе «630 евросит» и инжекторной горелкой
.
2.Устройство газовой горелки.
3. Ручка регулировки температуры в положении «выключено» и «розжиг» (подача на пилотную горелку).
4. Пёзовоспламенитель.
5. Трубка термодатчика.
6. Смотровое окно.
7. Газовая арматура.
8. Вход отопительной воды.
9. Выход отопительной воды.
10. Датчик температуры.
11. Подача горячей воды.
12. Отвод горячей воды.
1. Откройте газовый кран на подающей трубе.
2. Исходное положение круглой ручки управления 3 (рис. 4.) в положении «выключено». Поверните ручку управления 3 против часовой стрелки в положение зажигания.
3. Нажмите ручку управления до упора и, не отпуская ее в течение 10-60 секунд, нажимайте кнопку пьезо-воспламенителя 4, пока на пилотной горелке не появится пламя.
После розжига пилотной горелки необходимо нажать ручку управления на 60 секунд, затем осторожно отпустить, если пламя погаснет — повторить раздел 7.2-7.3., Увеличение времени нажатия ручки управления 3, не ранее 1 минуты (или после самопроизвольного щелчка внутри автоматики).
4. Для включения основной газовой горелки поверните ручку управления 3 против часовой стрелки в положение 1-7. Максимальная температура охлаждающей жидкости 80 ° C соответствует цифре 7 на ручке управления.
5. Чтобы выключить основную газовую горелку, поверните ручку управления 3 по часовой стрелке в положение. При этом на пилотной горелке будет гореть факел.
6.Чтобы полностью перекрыть подачу газа к пилотной и основной горелке, поверните ручку управления по часовой стрелке в положение «выключено».
ИНСТРУКЦИИ ПО УСТАНОВКЕ, ТЕХОБСЛУЖИВАНИЮ 1. Объем помещения, в котором установлен котел, должен быть не менее 8 м3. Расстояние между футеровкой котла и стенами должно быть не менее:
— 150 мм сзади;
— 100 мм справа и слева;
— 1000 мм спереди.
2. В помещении, в котором установлен котел, необходимо обеспечить естественную вентиляцию.
3. При установке котла в тепловую сеть необходимо уложить на пол лист негорючего теплоизоляционного материала, сверху железный лист и установить на него котел.
4. Присоединения котла к отопительной системе и газовой магистрали должны быть резьбовыми, что позволяет при необходимости отключать котел. Если котел установлен вместо старого котла, необходимо обязательно промыть трубы и радиаторы системы отопления от отложений ржавчины, накипи и отложений.При несоблюдении этих требований продукты отложений (ржавчина, осадок) переходят в котел, что значительно затрудняет циркуляцию теплоносителя и снижает теплоотдачу котла. В этом случае претензии по поводу температурных показателей теплоносителя при работе котла производителем не принимаются.
При повышенных затратах на отопление помещения (толщина наружных стен дома, целостность окон и дверей, разводка систем отопления на чердаке, чердаках, не утепленных, превышающих его площадь или значительное превышение емкости теплоносителя — количество радиаторов) , трубы) от установленных норм, температура теплоносителя достигает 80 ° С, что не означает брак котла.
Средние расчетные значения количества теплоносителя в системе отопления:
- Дом с четырьмя внешними стенами.
- Толщина стен дома из глиняного кирпича 51 см (два кирпича) или деревянного дома, облицованного кирпичом.
- Высота потолка 2,6 м.
- Радиаторы чугунные МС-140.
- Отапливаемое помещение: 80 м2 — не менее 45 секций, 100 м2 — не менее 55 секций, 120 м2 — не менее 65 секций, 160 м2 — не менее 87 секций, 200 м2 — не менее 110 секций, 300 м2 — не менее 170 разделы.
- Емкость теплоносителя в системе отопления не должна превышать: КСГ-7,5 — 110 литров, КСГ-10 — 150 литров, КСГ-12,5 — 180 литров, КСГ-16 — 240 литров, КСГ-20 — 300 литров, КСГ- 25 — 375 литров, КСГ-30 — 450 литров. №
5. При установке котла обязательно установить предохранительный клапан 1,5–1,7 кгс / см2 на расстоянии не более 150 мм от места подключения клапана заполнения системы отопления.
6. Расширительный бак устанавливается в верхней части основного стояка, желательно в отапливаемом помещении.Запрещается устанавливать вентиль на сигнальном трубопроводе (рис. 4).
7. Горизонтальные трубопроводы системы отопления должны выполняться с уклоном не менее 10 мм на 1 м в сторону радиаторов отопления и от них к котлу. Это сделано для того, чтобы обеспечить свободный поток воздуха при заполнении системы водой и исключить возникновение воздушных пробок.
8. Трубопроводы, радиаторы отопления и их стыки должны быть герметичными, утечки воды не допускаются.
9.Не сливайте воду из котла и системы отопления в ненагревательный период, так как это приводит к ускоренной коррозии и преждевременному выходу котла из строя. Добавляйте воду в расширительный бачок по мере ее испарения.
10. После окончания отопительного сезона для получения горячей воды от котла КСГВ необходимо закрыть шаровой кран 4 (рис. 5) и открыть кран 8 (рис. 5). После наступления отопительного сезона необходимо действовать в обратном порядке — закрыть вентиль 8 и открыть вентиль 4 (рис.5).
11. Для предотвращения засорения (загрязнения) котла и отопительной системы рекомендуется перед котлом перед котлом установить шлакоотделитель (шлакоуловитель, грязеуловитель) и периодически его очищать.
12. Контроль за работой котла возлагается на владельца, который обязан содержать его в чистоте и хорошем состоянии, своевременно проверять и прочищать дымоход.
13. Ежегодный плановый осмотр, техническое обслуживание и ремонт котла должны проводиться только квалифицированными работниками местной газовой администрации или организации, обслуживающей бытовые газовые приборы.
14. Запрещается включать котел при заполнении системы отопления этиленсодержащей жидкостью. Жесткость воды для заполнения систем отопления и горячего водоснабжения не должна превышать 5 ммоль-экв / л. Несоблюдение этих требований влечет прекращение действия гарантии.
Жесткость воды выражается в ммоль-экв / л (1 ммоль-экв / л соответствует 20,04 мг / л катионов Ca2 + или 12,16 мг / л катионов Mg2 +). Различают мягкую воду (общая жесткость до 2 ммоль-экв / л), средней жесткости (2-10 ммоль-экв / л) и жесткую (более 10 ммоль-экв / л).
ЦЕПЬ УСТАНОВКИ СИСТЕМЫ ОТОПЛЕНИЯ
1. Котел.
2. Расширительный бак.
3. Радиатор отопления.
4. Нажмите, чтобы слить и заполнить систему отопления.
5. Сигнальная трубка.
6. Предохранительный клапан.
1. Котел.
2. Расширительный бак.
3. Радиаторы отопления.
4. Шаровой кран для отключения отопления на летний период.
5. Кран для слива и заполнения системы.
6. Кран горячей воды и холодной воды.
7. Выход горячей воды.
8. Кран шаровой зима-лето.
9. Сигнальная трубка.
10. Предохранительный клапан сброса.
1. Котел.
2. Циркуляционный насос.
3. Расширительный бак.
4. Радиаторы отопления.
5. Автоматический воздухоотводчик.
6. Клапан предохранительный нагнетательный 1,5 атм.
7. Шлакоотделитель.
8. Кран для заполнения и слива системы отопления.
МОНТАЖНАЯ СХЕМА ДЫМОХОДА КОТЛА
__________________________________________________________________________
Устройство газового котла Lemax Premium
Котлы отопительные газовые Лемакс Премиум предназначены для отопления и горячего водоснабжения квартир, домов, коттеджей, зданий административно-бытового назначения, оборудованных системой водяного отопления с естественной или принудительной циркуляцией.Устройство соответствует всем требованиям безопасности и охраны окружающей среды, установленным для данного типа продукции.
Котлы «Лемакс Премиум» работают на природном газе по ГОСТ 5542-96 и поставляются в сборе с газовым котлом.
Рабочее давление воды в системе отопления не более 2 кгс / см2, в закрытой системе отопления необходимо установить систему безопасности с предохранительным клапаном на давление не более 1,5 кгс / см2.
Максимальное рабочее давление в контуре горячего водоснабжения не более 6 кгс / см2.
Требования безопасности
Никогда не используйте агрегат без подсоединения к дымоходу.
Перед запуском котла убедитесь, что дымоход не засорен.
Обеспечить достаточную тягу в дымоходе.
Обслуживание котла Lemax Premium должно выполняться только специально обученным, квалифицированным персоналом сервисных центров или сотрудниками местной газовой администрации. Категорически запрещается произвольно устанавливать котел и запускать его в работу, включать котел при отсутствии тяги в дымоходе, использовать котел лицам, не проинструктированным местной газовой службой.
Не устанавливайте блок в местах с агрессивным паром или пылью!
Запрещается:
— зажигать котел, не подключенный к системе отопления, заполненной водой;
— эксплуатировать прибор при неисправной газовой автоматике;
— использовать горячую воду из системы отопления, в том числе для хозяйственных нужд;
— использовать огонь для обнаружения утечек газа;
— зажигать газовую горелку при отсутствии вакуума в топке;
— изменить конструкцию котла или его частей;
— производить самостоятельные манипуляции с датчиком тяги;
— подключать дополнительные устройства или оборудование, не указанные в инструкции по эксплуатации, без письменного разрешения производителя.
Не допускается повышение температуры теплоносителя выше 95 ° С.
Устройство и комплектующие газового котла Lemax Premium
Котел Lemax Premium представляет собой сварную конструкцию, образующую водяную рубашку по всей длине периметр и содержит контур горячей воды из медной трубки.
В нижней части агрегата, в проеме камеры сгорания, установлено устройство сжигания газа с органами управления. В верхней части расположен газоотводящий патрубок для отвода продуктов сгорания из топки.
На задней поверхности расположены резьбовые соединения для подключения прибора к системе отопления и горячего водоснабжения.
Регулирование и поддержание заданной температуры обеспечивается термостатом, регулирующим пламя основной горелки, снабженным градуированной ручкой, которая установлена на передней панели горелки (см. Рис. 1).
1. Устройство газовой горелки, 2. Ручка управления, 3. Пьезо-воспламенитель, 4. Регулятор температуры, 5. Смотровое окно, 6. Подключение газа, 7. Вход отопительной воды, 8.Мощность отопительной воды, 9. Указатель температуры, 10. Горячее водоснабжение; 11. Горячее водоснабжение; 12. Съемная верхняя крышка.
Для включения агрегата необходимо проверить его наполнение и заполнение системы отопления водой, проверить наличие тяги и выбрать необходимую процедуру, определяемую мощностью и применяемой автоматической системой безопасности.
Провести работы по розжигу котлов Lemax Premium мощностью от 35 до 40 кВт с газогорючим устройством на базе итальянской автоматики 820 Nova и инжекторной горелкой Polidoro (см. Рис.2). Убедитесь, что ручка управления находится в положении «выключено».
Рис.2. Схема подключения комнатного термостата
Установка ручки управления в желаемое положение осуществляется путем легкого нажатия и поворота в желаемое положение (рис. 3).
В исходном (выключенном) положении ручка управления находится в положении «точка» (рис. 3). Пилотная и основная горелки выключены (подача газа к ним перекрыта).
Для розжига пилотной горелки ручка управления переводится в положение «искра» (рис.3).
В этом положении ручка управления удерживается до упора; одновременно нажимается кнопка пьезо-воспламенителя (при необходимости несколько раз) до тех пор, пока не загорится пилотная горелка (см. смотровое окошко).
После включения пилотной горелки ручку удерживают не менее 30 секунд, после чего ручка отпускается и переводится в положение «горелка» (рис. 3). При повороте ручки управления в положение «горелка» подача газа к основной горелке разблокируется.
Выключение устройства производится поворотом ручки в положение «точка» (рис. 3). В то же время пилотная и основная горелки (если они горят) гаснут.
Если ручка управления установлена в положение «искра» после перевода в положение «точка», горелка не загорится, пока не будет разблокирована так называемая внутренняя автоматическая блокировка. Блокировка снимается автоматически после того, как термопара остынет (примерно через 60 секунд после поворота ручки в положение «точка»).
Регулировка температуры теплоносителя осуществляется ручкой регулировки температуры на корпусе котла.
Рис.3. Положения ручки
Правила эксплуатации и ухода за котлом Лемакс Премиум
Не сливайте воду из котла и системы отопления в ненагревательный период, так как это приводит к ускоренной коррозии и преждевременному выходу агрегата из строя. Добавляйте воду в расширительный бачок по мере ее испарения.
Для предотвращения засорения (загрязнения) агрегата и системы отопления на обратном трубопроводе рекомендуется перед ним установить шлакоотделитель (шлакоуловитель, грязеуловитель) и проводить его периодическую очистку.
Контроль за работой аппарата возлагается на владельца, который обязан содержать его в чистоте и хорошем состоянии, своевременно осматривать и чистить дымоход.
Ежегодный плановый осмотр, техническое обслуживание и ремонт котла Lemax Premium должны выполняться только квалифицированными сотрудниками местного отдела управления газом или организации, обслуживающей бытовые газовые приборы.
Не используйте прибор при заполнении системы отопления жидкостью, содержащей этилен.Жесткость воды для заполнения системы отопления и горячего водоснабжения не должна превышать 5 ммоль / л.
Для котлов с функцией горячего водоснабжения для эффективного нагрева воды необходимо повернуть ручку термостата на максимум и остановить работу циркуляционного насоса, если он есть.
Для контроля состояния каналов дымоудаления в приборе предусмотрена легко снимаемая верхняя облицовка обшивки.
__________________________________________________________________________
__________________________________________________________________________
_______________________________________________________________________________
ЭКСПЛУАТАЦИЯ И РЕМОНТ КОТЛОВПротерм Пантера Протерм Скат
Описание
Lemax Premium 7.5N — одноконтурный газовый котел, предназначенный для отопления жилых помещений. Серия Premium Nova отличается выдающейся функциональностью и непревзойденным удобством использования, эффективно работая в системах отопления с рабочим давлением 2 атм. Система плавного пуска и многофункциональный регулятор подачи газа обеспечивают действительно комфортную работу с высоким КПД и оптимальным расходом топлива.
Напольный тип конструкции позволяет легко и быстро установить котел практически в любом удобном месте. Как и другие, данная модель изготавливается на отечественном производстве по лучшим европейским технологиям, которые гарантируют стабильную и эффективную работу отопительного агрегата в любых условиях.
Преимущества напольного газового котла Lemax Premium 7.5N
Прочная конструкция. Основа котла — прочный корпус, изготовленный на Магнитогорском металлургическом комбинате из высококачественной стали толщиной 2 мм.Установленный теплообменник имеет специальное антикоррозийное покрытие CETRA, а также обработан ингибирующим составом. Благодаря этому Lemax Premium 7.5N выдерживает высокие температуры до 750 ° C и надежно защищен от агрессивных факторов — некачественной воды, солевых растворов или минеральных масел. Кроме того, эта модель работает в паре со специальной турбо-форсункой для принудительного удаления выхлопных газов.
Наличие блока автоматики. Лемакс Премиум 7.Котел 5Н оборудован регулятором 820 NOVA SIT с термоэлектрической системой защиты от возгорания. Этот агрегат позволяет регулировать расход газа и регулировать давление, обеспечивая бережный расход топлива без потери производительности. Также к котлу можно подключить комнатный термостат, чтобы регулировать температуру внутри агрегата относительно температуры в помещении.
Высокая эффективность. Lemax Premium 7.5N характеризуется как один из самых эффективных агрегатов аналогичного класса.Увеличенная площадь теплообмена и оригинальная конструкция турбулизатора дает максимальную задержку выхлопных газов и, как следствие, высокий КПД до 90%.
Безопасность. Котел имеет все необходимые системы защиты и безопасности, гарантирующие его работоспособность: есть датчики защиты от прерывания тяги, сажеобразования, продувки котла. Lemax Premium 7.5N также имеет усовершенствованную систему защиты теплообменника от перегрева.
Простое обслуживание. Съемная верхняя панель обеспечивает быстрый доступ к внутренним блокам для очистки и обслуживания. Подобрать тепловой режим несложно благодаря наличию терморегулятора на лицевой панели.
На нашем сайте вы можете купить газовый котел Lemax Premium 7.5N на самых выгодных условиях с доставкой в любой регион. За консультацией обращайтесь в отдел продаж.
Описание
Lemax Premium 7.5 — одноконтурный газовый котел, предназначенный для отопления жилых помещений.Агрегат отличается прочной конструкцией и отличной функциональностью, что позволяет использовать его в закрытых системах отопления с рабочим давлением 2 атм.
Напольный тип конструкции позволяет легко и быстро установить котел практически в любом удобном месте. Как и другие, данная модель изготавливается на отечественном производстве по лучшим европейским технологиям, которые гарантируют стабильную и эффективную работу отопительного агрегата в любых условиях.
Преимущества Lemax Premium 7.5 этажный газовый котел
Прочная конструкция. Основа котла — прочный корпус, изготовленный на Магнитогорском металлургическом комбинате из высококачественной стали толщиной 2 мм. Установленный теплообменник имеет специальное антикоррозийное покрытие CETRA, а также обработан ингибирующим составом. Благодаря этому Lemax Premium 7.5 выдерживает высокие температуры до 750 ° C и надежно защищен от агрессивных факторов — некачественной воды, солевых растворов или минеральных масел.
Высокая эффективность. Lemax Premium 7.5 характеризуется как один из самых эффективных агрегатов аналогичного класса. Увеличенная площадь теплообмена и оригинальная конструкция турбулизатора дает максимальную задержку выхлопных газов и, как следствие, высокий КПД до 90%. В котле установлен газовый клапан SIT (Италия), обеспечивающий экономию газа до 30%.
Безопасность. Котел оснащен всеми необходимыми системами защиты и безопасности, гарантирующими его работоспособность: есть датчики защиты от прерывания тяги, сажеобразования и выдувания котла.Lemax Premium 7.5 также имеет усовершенствованную систему защиты теплообменника от перегрева.
Простое обслуживание. Съемная верхняя панель обеспечивает быстрый доступ к внутренним блокам для очистки и обслуживания.
На нашем сайте вы можете купить газовый котел Lemax Premium 7.5 на самых выгодных условиях с доставкой в любой регион. За консультацией обращайтесь в отдел продаж.
Один отопительный контур с автономной автоматикой EUROSIT 630. Котел не требует подключения к электросети, он полностью автономен, возможность работы в закрытой, открытой системе отопления здания.Не прихотливая к теплоносителю, допускается использование незамерзающей жидкости при монтаже замкнутой системы, под давлением до полутора бар.
Характеристики наружного блока Lemax Premium 7.5
Отапливаемая площадь дома, дома, коттеджа 75 метров со стандартными потолками
Котел Premium 7.5 представляет собой сварную стальную конструкцию, образующую водяную рубашку по всему периметру. В нижней части котла, в проеме камеры сгорания, устанавливается газогорелочное устройство с органами управления.В верхней части котла расположен газоотводящий патрубок для отвода продуктов сгорания из топки.
На задней поверхности котла расположены патрубки с резьбой, предназначенные для подключения котла к системе отопления. Регулирование и поддержание заданной температуры обеспечивает терморегулятор, модулирующий пламя основной горелки, снабженный рукояткой с делениями, которая установлена на передней панели горелки.
Благодаря покрытию антикоррозионной эмалью «CERTA» (температура выдержки 750 ° C) и обработке ингибирующим составом теплообменник защищен от агрессивных факторов: солевых растворов, минеральных масел.
Котел Premium не требует подключения к электросети.
Оснащение оригинальными комплектующими газогорелочного устройства и газовой арматуры итальянского концерна «SIT», а также инжекторной микропламенной горелкой «POLIDORO».
- Наличие системы защиты от перегрева, обрыва тяги, сажеобразования, а также от продувки котла.
- Котел Premium 7.5 удобен в обслуживании за счет использования съемных элементов облицовки и профильного оборудования.
- Легкость очистки котла благодаря съемной верхней панели.
- Расширенная система защиты (установлен датчик перегрева теплообменника).
- Максимальная эффективность со стальным теплообменником.
- увеличенная площадь теплообмена; Конструкция турбулятора
- изменена для максимального удержания дымовых газов.
- Увеличенный расход первичного и вторичного воздуха. Котел
- Premium имеет возможность перехода на сжиженный газ.
- Гарантия на котел от производителя 3 года.
Технические характеристики котла со стальным полом Lemax Premium 7.5
Максимальный расход газа для котла LEMAKS PREMIUM 7.5 с газогорелочным устройством ГГУ 9 = 0,9 м³ / час.
- — сзади 150 мм;
- — 100 мм вправо и влево;
- — 1000 мм спереди.
ПОРЯДОК РАБОТЫ
Помещение, в котором установлен котел Premium 7.5, должно иметь естественную вентиляцию. Не закрывайте решетки вентиляционных каналов.
Для включения котла необходимо проверить наполнение системы отопления водой, проверить тягу и выбрать желаемый порядок действий, определяемый мощностью котла и применяемой автоматикой безопасности.
Для котлов мощностью от 7,5 до 20 кВт с газогорелочным устройством на базе итальянской автоматики «630 EUROSIT» и инжекторной горелкой Polidoro.
Открыть газовую арматуру на входе газопровода в напольный котел Premium 7.5;
Исходное положение круглой ручки управления в выключенном положении. Поверните ручку управления против часовой стрелки в положение зажигания;
Полностью нажать ручку управления и, не отпуская ее в течение 10-60 секунд, нажимать кнопку пьезо-воспламенителя до появления пламени на пилотной горелке.
После розжига запальной горелки ручку управления нужно удерживать нажатой в течение 60 секунд, затем осторожно отпустить, если пламя погаснет, повторить, увеличивая время нажатия ручки управления, не ранее 1 минуты (или после самопроизвольного нажмите внутри автоматики).
Чтобы включить основную газовую горелку, поверните ручку управления против часовой стрелки в положение 1. Максимальная температура охлаждающей жидкости 80 ° C соответствует цифре семь на ручке управления.
Чтобы выключить основную газовую горелку, поверните ручку управления по часовой стрелке.В этом случае факел будет гореть на пилотной горелке.
Чтобы полностью отключить подачу газа к пилотной и основной горелкам, поверните ручку управления по часовой стрелке в положение выключения.
Конструкция стального напольного котла ЛЕМАКС ПРЕМИУМ 7.5
УСТАНОВКА, ПОДГОТОВКА К РАБОТЕ
Объем помещения, в котором установлен котел, должен быть не менее 8 м3. Расстояние между футеровкой котла и стенами должно быть не менее:
В помещении, в котором установлен котел, необходимо предусмотреть естественную вентиляцию.
При установке котла в тепловую сеть необходимо уложить на пол лист негорючего теплоизоляционного материала, сверху железный лист, и установить на него котел. Подключение котла Премиум к газопроводу необходимо производить через диэлектрическую изоляцию.
Соединения котла с отопительной системой и газовой магистралью должны быть резьбовыми, что позволяет отключать котел в случае необходимости.Если вместо старого котла установлен котел Премиум, необходимо в обязательном порядке промыть трубы и радиаторы системы отопления от отложений ржавчины, накипи и отложений. При несоблюдении этих требований в котел переходят продукты отложения (ржавчина, осадок), что сильно затрудняет циркуляцию теплоносителя и снижает теплоотдачу котла Премиум. В этом случае претензии производителя к температурным параметрам теплоносителя при работе котла не принимаются.
При повышенных тепловых затратах помещения (толщина наружных стен дома, целостность окон и дверей, разводка труб системы отопления на чердаках, чердаках, не утепленных, превышающих свою площадь или значительно превышающих теплоноситель емкость — количество радиаторов, труб) от установленных норм, температура теплоносителя может не достигать 80 ° С, что не означает брак котла.
Расчетное количество теплоносителя в системе отопления для напольного котла Lemax:
- Премиум 7.5 бойлер — 120 литров;
- Премиум бойлер на 10 — 150 литров;
- Котел Премиум 12,5 — 180 литров;
- бойлер Premium 16 — 240 литров;
- бойлер Premium 20 — 300 литров;
- бойлер Premium 25 — 375 литров;
- Котел Премиум 30 — 450 литров;
- Котел Премиум 40 — 600 л.
Точное количество теплоносителя определяется в конструкции системы отопления.
Для правильного заполнения и пополнения системы, а также для закрытой системы отопления обязательно установите предохранительный клапан на 1.5 кгс / см2 на расстоянии не более 150 мм от места подключения клапана для заполнения системы отопления.
Расширительный бак устанавливается наверху основного стояка, желательно в отапливаемом помещении. Не устанавливайте клапан на сигнальную трубу.
Горизонтальные участки трубопроводов системы отопления должны выполняться с уклоном не менее 10 мм на 1 м в сторону радиаторов отопления и от них до котла. Это сделано для того, чтобы обеспечить свободный выход воздуха при заполнении системы водой и исключить возникновение воздушных пробок.
Трубопроводы, радиаторы отопления и их стыки должны быть герметичными, утечки воды не допускаются.
Для отопления жилых и нежилых помещений средней и большой площади чаще всего применяют напольные газовые котлы. Они среди огромного ассортимента отопительного оборудования, в который также входят твердотопливные, дизельные и электрические котлы, обладают невысокой стоимостью владения. Состоит из относительно невысокой цены самих котлов напольного газового отопления, невысокой стоимости обслуживания и экономии топлива, то есть газа.
Покупателю часто трудно самостоятельно сориентироваться, какой именно котел ему следует купить. Независимый обзор рынка оборудования, отзывы других потребителей и профессиональные советы наверняка приведут его к выводу, что нужно покупать продукцию отечественного производителя — напольные газовые котлы Lemax.
Наша компания готова предложить как выгодные цены, так и широкий ассортимент продукции, изготовленной по современным технологиям с использованием комплектующих ведущих производителей.В частности, на отопительные котлы Lemax устанавливается газогорелочное устройство на базе автоматики безопасности SIT. Это обеспечивает стабильную работу котла и экономию газа.
Компания «Лемакс» производит несколько типов напольных газовых котлов:
- — предназначен только для отопления помещений.
- — они также позволяют нагревать воду для бытовых нужд.
- — с возможностью подключения бака косвенного нагрева и блоков дистанционного управления.
Вся без исключения продукция отличается высоким качеством и безотказной работой в течение длительного времени.Правильную работу оборудования и оперативное устранение возможных неисправностей в его работе гарантирует разветвленная сеть сервисных центров. Практически во всех регионах России проводят не только гарантийное, но и послегарантийное обслуживание котлов, а также решают все вопросы, связанные с приобретенным оборудованием.
Где купить напольные котлы Lemax
Предлагаем вам купить напольные газовые котлы «Лемакс» прямо в нашем интернет-магазине или обратиться к дилеру в вашем регионе.
Lemax Premium-7.5 — уличный газовый котел мощностью 7,5 кВт, этого достаточно для обогрева дома площадью до 75 квадратных метров
Lemax Premium-7.5 — котел из популярной линейки Lemax Premium. Он отличается одноконтурной конструкцией и предназначен для отопления жилых и нежилых помещений. Модель отличается неприхотливостью к качеству теплоносителя и экономичным расходом газа. Особенности и преимущества этого котла:
- Итальянское газогорелочное оборудование;
- Компактный дизайн;
- Антикоррозийная обработка теплообменника;
- Сварная конструкция;
- Энергонезависимое исполнение.
Кроме того, он отличается простотой обслуживания, так как оснащен съемной верхней панелью.
Основа напольного газового котла Lemax Premium 7.5 — стальной теплообменник, обеспечивающий нагрев теплоносителя. Вода и незамерзающие жидкости могут выступать в роли охлаждающей жидкости. Тепловая мощность этого агрегата составляет 7,5 кВт, поэтому он способен обогреть до 75 квадратных метров. м отапливаемых помещений. Конструкция котла одноконтурная, поэтому задача приготовления горячей воды решается подключением бойлера косвенного нагрева либо применением автономных накопительных и проточных нагревателей.
Теплообменник в котле Lemax Premium 7.5 получил увеличенную площадь, что сказалось на КПД — его показатель достигает 90% в зависимости от текущей мощности. В свою очередь, это обеспечивает разумное потребление газа с последующим снижением счетов за коммунальные услуги. Также в конструкции предусмотрены турбулизаторы для задержки продуктов сгорания, увеличивающие теплоотвод, и система подачи вторичного воздуха. Максимальный расход газа на полную мощность составляет всего 0,9 кубометра. м / час. Теплоноситель в отопительном контуре прогревается до +90 градусов при допустимом давлении 0.1 МПа.
В этом котле используется автоматика 630 EUROSIT, которая не требует подключения к электросети. Он оборудован регулятором интенсивности горения газа в горелке. Сама горелка произведена итальянской компанией SIT. Микровспышочная горелка, отвечающая за розжиг основной, производства ПОЛИДОРО. В целях безопасности здесь предусмотрен датчик перегрева охлаждающей жидкости — при достижении температурного предела отключает подачу газа, предотвращая создание аварийной ситуации.Кроме того, котел надежно защищен от прерывания тяги, образования сажи и сдувания пламени горелки ветром.
Котел имеет сварную конструкцию, что обеспечивает ему дополнительный запас прочности. Толщина металла цилиндрического теплообменника 2 мм; Здесь используется высококачественная сталь, соответствующая российским, европейским и американским стандартам качества. Обеспечивает защиту от коррозии в виде антикоррозийной эмали и специального ингибирующего состава.В качестве топлива в котле используется природный газ. На территории без магистральных трубопроводов возможен перевод на сжиженный газ, что потребует простой реконфигурации.
Купить напольный одноконтурный газовый котел Lemax Premium-7.5 вы можете в интернет-магазине «Теплодвор» с официальной гарантией от производителя на 3 года. Предложим доступные цены, порадуем Вас выгодными акциями. Заберите котел за свой счет со склада или получите с доставкой по Москве и России.Также в каталоге магазина есть оборудование для монтажа систем отопления — в продаже полимерные трубы и соединительная арматура, радиаторы и конвекторы известных производителей, бесшумные циркуляционные насосы и расширительные баки.
.

Надо проверить, есть ли она, не забился ли дымоход. Иногда помогает зачистка контактов датчика.
Надо заменить систему, или прочистить контакты термопары.
Отключить котел, дождаться возобновления подачи.
Надо заменить систему, или прочистить контакты термопары.
Это удобно, потому что при очистке сажа и копоть могут сильно загрязнить помещение. На улице же прочистить дымоход не проблема.


Давайте подробно рассмотрим каждый шаг.
Турбонадув ремонту в большинстве случаев не поддается – скорее всего его придется менять, а такая работа сопряжена с риском распространения угарного газа по помещению.


html