- план кровли коттеджа, чертеж (инструкции)
- Плоская кровля технониколь.
- План кровли – составление и оформление. Как составить грамотный проект крыши без помощи специалистов
- Основные сведения, содержащиеся в плане кровли
- Выбор типа крыши
- Особенности подготовки чертежей в план кровли
- Разновидности крыш для частных домов
- Виды крыш
- Проектирование крыши
- Планирование двускатной кровли
- Основные составляющие чертежа двухскатной кровли
- Особенности составления чертежей некоторых типов двухскатных крыши
- Самостоятельная разработка проекта крыши дома
- Общие принципы проектирования крыши
- Проекты односкатной крыши
- Проекты плоской крыши
- Проекты двускатной крыши
- Проект ломаной крыши
- Проект полувальмовой крыши
- Проект четырехскатной крыши
- Проект купольной и конической крыши
- Выбор материала для облицовки
- Наиболее часто встречающиеся типы крыш
- Монтаж эксплуатируемой плоской кровли
- план кровли четырехскатной крыши чертеж
- План и чертежи двускатной кровли
- То, что нужно знать о плоской кровле
- Строительство кровли
- План плоской кровли: для чего он нужен
- Конструкция стропильной системы крыши
- Система водостоков для плоской кровли ↑
- Двухскатная крыша и виды стропильной системы для нее
- План плоской кровли
- Как сделать стропильную систему двухскатной крыши своими руками — пошаговя схема
- Создание проекта четырехскатной крыши
- Дом с двускатной крышой: проект +Фото — стропила до расчета цены
- Общая информация об оформлении проекта
- Дом с двускатной крышей: преимущества
- Стропила двускатной крыши: схема устройства
- Тонкости подготовки плана скатной кровли
- Устройство стропильной системы двухскатной крыши: сборка и установка
- Выбор типа крыши
- Конструкция системы стропил ↑
- Как выполняется чертеж крыши?
- Установка стропильной системы ↑
- Чертеж кровли из металлочерепицы (114 фото) — фото
- Чертеж двухскатной крыши дома
- План и чертежи двускатной кровли
- Нюансы чертежа
- Строительство кровли
- Конструкция стропильной системы крыши
- Двухскатная крыша и виды стропильной системы для нее
- Выбор типа крыши
- Как сделать стропильную систему двухскатной крыши своими руками — пошаговя схема
- Составление чертежа
- Дом с двускатной крышой: проект +Фото — стропила до расчета цены
- Четырехскатная крыша — основные принципы создания проекта современного жилища
- Дом с двускатной крышей: преимущества
- Стропила двускатной крыши: схема устройства
- Порядок выполнения чертежа крыши
- Устройство стропильной системы двухскатной крыши: сборка и установка
- Особенности подготовки чертежа скатной кровли
- Конструкция системы стропил ↑
- Воздействие нагрузок на систему стропил
- Установка стропильной системы ↑
- Flat Roof — Illustrationen und Vektorgrafiken
- Хотите плоскую крышу? Узнайте больше здесь.
- Строительство и проектирование плоских крыш
- Как устроены плоские крыши?
- Когда нужна плоская крыша?
- Размеры балок, необходимых для строительства плоской крыши
- Как построить плоскую крышу
- Типы конструкций плоских крыш – теплые и холодные плоские крыши
- Строительство холодной кровли
- Конструкция теплой крыши
- Плоские крыши, построенные для пристройки с наклоном
- Как мох может повлиять на плоскую крышу
- Советы и рекомендации доктора по плоской кровле своими руками
- Резиновая плоская кровля – Наборы из EPDM для самостоятельной сборки
- Плоская крыша | Особенности плоской крыши | Типы плоских крыш
- ПЛОСКАЯ КРЫША ПРОТИВ СКЛАДНОЙ: ЧТО ДЛЯ ВАС ЛУЧШЕ?
- 9 советов по работе с крышами Revit — REVIT PURE
план кровли коттеджа, чертеж (инструкции)
г. Москва, Электролитный пр-зд, 5 Б строение 3.
Телефон: +7 (901) 522-39-48
В современной России проекты домов с плоской крышей не пользуются большой популярностью. Такие постройки являются скорее исключениями. Среди наших соотечественников почему-то укоренилось убеждение, что здания с крышами без ската ненадежны и неудобны в эксплуатации. Кроме этого, считается, что подобные дома являются эксклюзивными и дорогими. Хотя это не совсем соответствует действительности. Без сомнения, у каждого проекта есть свои преимущества и недостатки, и в них необходимо разобраться.
Плюсы плоской кровли
Первое и наиболее важное преимущество построек с плоской крышей – возможность эксплуатировать кровлю как площадку для небольшого бассейна, шезлонга или зимнего сада.
Прежде чем размещать на крыше какие-либо объекты, удостоверьтесь, что несущие конструкции рассчитаны на такие нагрузки.
Обустроенная плоская крыша
Плоская крыша гарантирует вашему жилищу современный и стильный внешний вид.
Она придется по вкусу людям, следящим за последними европейскими тенденциями.
Кроме прочего, проекты домов с плоской кровлей обходятся дешевле при разработке и монтаже.
Минусы плоских крыш
У обычных скатных крыш присутствует подкровельное пространство, которое обеспечивает хорошую теплоизоляцию, а вот у плоских крыш оно отсутствует. Именно поэтому чердак необходимо делать очень теплым. То есть нужно будет осуществить тепло- и гидроизоляцию с использованием современных и дорогих материалов.
Монтаж плоской кровли должны осуществлять только специалисты с соблюдением всех жестких требований. Иначе можно получить протекающую крышу, которая не сможет выдержать даже небольшой снегопад.
Серьезный недостаток – скопление снега, который придется чистить вручную. Конечно же, бороться со снежными заносами можно и более современными методами, например, посредством теплого кабеля (снег будет постоянно таять, а вода сама стекать с крыши).
Разработка плана кровли
При постройке здания необходим план плоской кровли.
Чертеж универсален или нет? Многие задаются этим вопросом. Однозначный ответ: нет! То, что хорошо для одного дома, может абсолютно не подойти для другого.
План кровли просто обязателен для зданий с наличием внутреннего водостока, независимо от сложности и формы здания. В постройках с наружным водостоком план крыши разрабатывается только при сложной конфигурации, и когда на крыше имеются надстройки, вентиляция и т.д.
При планировании кровли план здания делят на ряд прямоугольников. Эти прямоугольники обязательно должны заходить друг на друга, и каждая их сторона полностью или частично выходить за наружные контуры плана. Затем строят изображения кровли над каждым прямоугольником, начиная с более широкого.
Если линии сливов лежат на разных уровнях, то план кровли необходимо строить с учетом формы фасада.
На план кровли необходимо нанести координационные оси, проходящие в наиболее характерных местах. Без этого сложно будет правильно сориентировать постройку.
Кроме прочего, на плане кровли стоит замаркировать пожарные лестницы, металлические ограждения, парапетные плиты и узлы.
Как видите, чтобы построить правильный план, нужно обладать большими познаниями в области строительства и инженерии. Так что, для разработки грамотного плана лучше обратиться к квалифицированным специалистам. Ведь безопасность дома превыше всего!
План кровли плоской крыши: особенности проектировки и обустройства
Минимальный уклон плоской крыши
Важно помнить следующую особенность плоских крыш: минимальной скат должен быть в любом случае. Обычно он составляет 5 — 15 градусов. При невыполнении этого условия на вашей крыше постоянно будут скапливаться осадки. Это как минимум неприятно, а как максимум может привести к дорогостоящему ремонту кровли.
Проекты коттеджей с плоской крышей не всегда предусматривают необходимый угол ската. В таком случае необходимо будет провести разуклонку: придать кровле нужный наклон для хорошего водоотведения с помощью полистирольных плит или насыпных материалов с бетонной стяжкой.
![]()
Проекты домов с плоской крышей бывают двух разновидностей:
- с облегченной кровлей;
- с эксплуатируемой кровлей.
Первый тип кровли обустраивается по следующему плану:
- На несущие стены или на уже зафиксированный мауэрлат (бревно, уложенное сверху по периметру наружной стены) укладывают основные балки. Для этой цели идеально подойдут деревянные брусья, имеющие сечение 100х100 или 150х200 мм, которые размещают через каждые 0,5 – 1 м и фиксируют анкерными шпильками.
Нужное сечение балок выбирается исходя из расчетного веса всей кровли.
- Поверх основных балок монтируется обрешетка сплошного типа, изготовленная из обрезной доски с толщиной около 2-5 см или OSB-плит с сопоставимой прочностью. Отверстия или щели в обрешетке присутствовать не должны!
- Сразу на обрешетке размещается гидроизоляционная мембрана. Укладывать гидроизоляцию следует несколькими слоями, а все стыки материала тщательно проклеивать строительным скотчем или специальным клеем.

- 4. Следом с помощью экструдированного пенополистирола, минеральной ваты и других подобных материалов производится теплоизоляция. Утеплитель необходимо разместить поверх гидроизоляции очень плотно, так как даже небольшая щель может стать причиной прохлады в доме.
Не забудьте про обустройство вентиляционных отдушин. Без них на утеплителе будет скапливаться конденсат, что приведет к его излишнему увлажнению.
Проект крыши одноэтажного дома может предусматривать в качестве утеплителя керамзит, но его слой должен быть не меньше 10 см.
- На последнем этапе обустройства кровли укладывается еще слой гидроизоляции.
На крыше, возведенной по вышеописанному плану, нельзя размещать дополнительные объекты. Она такую нагрузку просто не выдержит. Не забывайте об этом!
Если же вы серьезно настроены на благоустройство вашей крыши, будьте готовы приложить определенные усилия.
Ниже рассмотрим варианты возведения крыш с твердой кровлей.
План плоской кровли с эксплуатируемой поверхностью
Пример проекта плоской эксплуатируемой крыши
Первый и наиболее простой способ – бетонные плиты, используемые в качестве перекрытий. Такие несущие конструкции обязательно должны иметь соответствующий запас прочности. При использовании этого метода постройки, тяжелую технику привлечь вы не сможете.
Твердая кровля с использованием бетонных плит требует утепления, которое можно будет обустроить только изнутри здания.
Кровельные перекрытия могут быть созданы с помощью опорных балок из металла. В этом случае применяются тавровые (выполненные в виде буквы Т), двутавровые балки, швеллера (№ 14 – 16). Поверх балок укладывают дощатый настил с толщиной как минимум 22 мм. Следующим слоем насыпают керамзит (150 мм) и делают бетонную стяжку.
Чертеж кровли плоской кровли также может предусматривать укладку кровельной мембраны, которая обеспечит необходимую гидроизоляцию.
Самый современный способ обустройства твердой кровли – применение керамических кровельных блоков. Эти блоки обеспечивают отменную прочность кровле и хорошую тепло- и звукоизоляцию. Укладывают их непосредственно на балки опоры. Кроме прочего, такая кровля будет абсолютно устойчива к влаге.
Стяжка в этом случае может производиться без керамзитной засыпки.
Выбранный способ должен заранее предусматриваться планом кровли плоской крыши. Чертеж будет сильно зависеть от будущего покрытия.
Стоит заметить, что последний приведенный способ является самым дорогостоящим, но и наиболее надежным.
Если вы все же решились возвести дом с плоской крышей, тщательно разработайте проект крыши одноэтажного дома или любого другого. Помните, что такая кровля особенно чувствительна к внешним условиям и требует отличной гидроизоляции. Выполните все условия возведения такой крыши правильно, и результат непременно вас обрадует!
Не будет ли луж на крыше? При проектировании крыши закладывается специальный слой, который называется «разуклонка». Это плиты утеплителя с заранее сформированным на производстве уклоном, с помощью которых на крыше образуется скат с минимальным значением 1,7%. По этому уклону вся лишняя влага отводится в водоприемные устройства. | Нужно ли чистить снег? Сугробы на крыше будут выше парапета? Снег с плоской крыши убирать не нужно, он является дополнительной теплоизоляцией. Правильно спроектированная крыша выдерживает снеговые нагрузки. Выше парапета сугроб не поднимется, его сдует ветер. |
Сколько стоит построить дом с плоской крышей? Себестоимость существенно не отличается от скатных крыш. За счет применения деревянных оснований и разработанных для них кровельных систем себестоимость может быть значительно ниже. | Специфических затрат эксплуатация не вызывает. Изредка требуется обогрев водостоков, чтобы не допустить намораживания наледи на водоприёмных воронках, как и на других видах крыш. |
С чего начать, если я хочу дом с плоской крышей? Начинайте с подбора подходящего архитектурного дизайна будущего дома. Следующим шагом будет покупка готового проекта или заказ индивидуального. | Могу ли я посадить газон на крыше? Это решение набирает популярность в коттеджном строительстве. Чтобы высадить газон на крыше, необходимо правильно рассчитать несущую способность перекрытия. |
Как организовать водосток и каким он может быть? Организацией водостока занимаются профессионалы. Они расскажут, какие бывают виды и посоветуют, что выбрать. Виды водостоков:
| Какие должны быть уклоны для отвода воды? Согласно минимальный уклон – 1,5% и минимум 0,5% в ендовах. |
Как правильно задать уклон на плоской крыше? Уклоны задаются к водоприемным воронкам или желобам, которые кратчайшим путем транспортируют осадки в ливневую канализацию или на грунт. | На какое основание можно укладывать ПВХ мембрану? Практически на любое сплошное основание, на котором можно зафиксировать мембрану балластом, механическим крепежом или клеем, в зависимости от выбранной системы |
Какой высоты должен быть парапет? Высота парапета выбирается индивидуально. | Какой утеплитель и толщину использовать? Расчет толщины теплоизоляции подбирается индивидуально для каждого дома и зависит от множества факторов. Особенно от климатической зоны. Проводится специальный теплотехнический расчёт. |
Какую толщину гидроизоляционного слоя из ПВХ мембраны выбрать? Толщина гидроизоляционного слоя напрямую влияет на долговечность службы. Для КМС мы рекомендуем использовать ПВХ мембрану толщиной 1,5 мм и выше. | При механическом креплении пробивается пароизоляция. Можно ли избежать пробития? Как поведет себя основание? При механическом креплении это необходимость, от которой невозможно уйти. Но это и не критично, вред основанию наносится минимальный. Другие способы фиксации (балласт и приклеивание) не нарушают целостность пароизоляции. |
В какое время года можно монтировать крышу с ПВХ мембраной? Монтаж можно проводить в любое время года. | Газон или тротуарную плитку можно сразу укладывать на ПВХ мембрану? Сразу укладывать на гидроизоляцию нельзя. Требуются защитные и дренирующие слои. Чтобы быть уверенными, что все слои подобраны верно, используйте наши готовые системы для кровли. |
Как обнаружить протечки в эксплуатируемых кровлях? Целостность гидроизоляционного ковра проверяется визуально либо заранее монтируется индикаторная система. | Как определить, что все стыки на плоской кровле герметичны? Методами неразрушающего или разрушающего контроля. |
Какая нагрузка системы зеленой кровли с грунтом и растениями на 1 кв.м.? Сбор всех нагрузок производится индивидуально для каждого дома с учетом толщины слоя грунта и веса растений, которые планируется высадить. Это делается на этапе проектирования. | Какой срок службы кровли с ПВХ мембраной? От чего это зависит? Срок службы ПВХ мембраны до 50 лет. Зависит от толщины, качества монтажа и правильности эксплуатации. |
План кровли – составление и оформление. Как составить грамотный проект крыши без помощи специалистов
Содержание
- Основные сведения, содержащиеся в плане кровли
- Выбор типа крыши
- Особенности подготовки чертежей в план кровли
- Разновидности крыш для частных домов
- Конструкция плоской и скатной крыши
- Чердачные и бесчердачные крыши
- Виды крыш
- Односкатные крыши
- Конструкция двускатной крыши
- Конструкция четырехскатной крыши
- Многощипцовая крыша
- Конструкция мансардной крыши
- Нестандартные крыши
- Проектирование крыши
- Таблица: параметры материалов для крыши
- Формы крыши
- Как определить уклон крыши
- Таблица: зависимость относительного показателя от уклона кровли
- Планирование двускатной кровли
- Основные составляющие чертежа двухскатной кровли
- Особенности составления чертежей некоторых типов двухскатных крыши
- Классическая, с равной длиной скатов
- Кровля ломаного типа
- Самостоятельная разработка проекта крыши дома
- Видео: самостоятельное составление плана крыши
- Расчёт площади крыши
- Ошибки, которые допускаются при составлении проекта
- Общие принципы проектирования крыши
- Проекты односкатной крыши
- Проекты плоской крыши
- Проекты двускатной крыши
- Проект ломаной крыши
- Проект полувальмовой крыши
- Проект четырехскатной крыши
- Проект купольной и конической крыши
- Выбор материала для облицовки
- Наиболее часто встречающиеся типы крыш
- Конструкция односкатной крыши
- Конструкция двухскатной крыши
- Конструкция четырехскатной (вальмовой) крыши
- Монтаж эксплуатируемой плоской кровли
Основные сведения, содержащиеся в плане кровли
Возводимая на частном доме кровля может быть абсолютно разной — односкатной, двускатной, многоскатной, шатровой, вальмовой.
Существует также большое количество разнообразных стройматериалов, обеспечивающих надежное кровельное покрытие, — профлист, шифер, гибкая черепица, металлочерепица, оцинковка и множество других. Схема строительства кровли содержит соответствующий расчет требуемых объемов стройматериалов на ее обустройство, а также устанавливает четкую последовательность или этапность выполнения работ.
Пример рабочего проекта кровли коттеджа
План кровли — это рисунок или чертеж, в котором схематически изображается вся крыша в нескольких проекциях и слоях. Чертежи составляются в соответствии с порядком проведения работ, и каждый из этих чертежей относится к своему этапу строительства. Чаще всего на бумаге отражают: схему установки элементов конструкции (балки, стропилины, брусья обрешетки) или ее основания, схему укладки гидро- и теплоизоляционных слоев, схему размещения покрытия крыши. В плане также схематически отражаются места крепления всех дополнительных и доборных элементов, труб водостока, вентиляционных и дымохода.
На отдельные схематические рисунки вынесены подробные изображения стыков, монтажа слуховых окон и ендов. Отдельные схемы позволяют во время строительства кровли точно установить правильное размещение элементов кровельного пирога и других ее деталей.
Важно: правильно составленный план кровли, дающий полноценную информацию о размерах и количестве кровельного покрытия крыши, позволяет существенно уменьшить расходы на его приобретение.
Выбор типа крыши
Прежде чем составить план кровли, необходимо предварительно выбрать стройматериалы для ее гидро-, тепло- и пароизоляции, а также подобрать вид покрытия крыши. Следует также определить точные размеры будущей конструкции с внесением точных их значений в план ее строительства. Когда уже известна кровельная конструкция, составлен план — можно приобретать нужный объем стройматериалов и начинать строительство этого элемента дома.
Чтобы определить окончательный вид будущей кровли, нужно узнать существующие виды кровли.
Выделяют 6 главных типов крыш: одно-, дву- и многоскатные; вальмовые; щипцовые и полувальмовые.
Это тоже важно знать: Как правильно выполнить расчёт водосточной системы?
Простейшие типы кровель – без изломов или плоские. Однако чаще всего на домах возводятся многоскатные или вальмовые кровли. Для крыш таких типов важны правильные расчеты стройматериалов и расчет нагрузки на несущие части конструкции, чтобы защита дома сверху получилась надежной и качественной.
Поверхности многоскатных кровель часто имеют треугольную и трапециевидную форму. Скатные плоскости вальмовых крыш имеют абсолютно разную неповторяющуюся форму, что позволяет создать крышу и дом с неповторимым внешним видом.
Особенности подготовки чертежей в план кровли
Скатными называются крыши, которые включают несколько плоскостей, располагающихся под наклоном больше 10%.
Конструктивно скатные крыши делятся на 2 типа — бесчердачные и чердачные.
Кровля с двумя скатными поверхностями — самый распространенный тип таких кровель, он используется для зданий и домов любых видов.
Кровли с 4 скатными поверхностями чаще всего используются для дач, коттеджей и загородных домов.
Законченный чертеж кровельной конструкции обязательно содержит полную информацию о физических параметрах (ширине, длине, сечении) и фактическом расположении на крыше абсолютно всех элементов.
Также желательно во время проектирования кровли определить способы крепления ее деталей и узлов, и занести эту информацию в план кровли.
В графическом разделе плана указывают длины стен строения, расстояние между стропилиной и коньком, выбранный или рассчитанный угол уклона скатных поверхностей и физические размеры стропил.
При выборе кровельного стройматериала для покрытия скатных плоскостей крыши нужно учесть такие рекомендации:
- для профлиста — уклон скатной поверхности делают не меньше 8°;
- для металлочерепицы — уклон — 30°;
- для гибких покрытий, таких как рубероид — 5°;
- для волновых шиферин — 20 — 30°.
Разновидности крыш для частных домов
Рассмотрим чаще всего применяющиеся в загородной застройке конструкции.
Конструкция плоской и скатной крыши
Планировка частного дома предполагает выбор необходимого типа и конструкции кровли. На подготовительном этапе производится обоснование выбора того или иного варианта, а также необходимые расчеты и чертежи крыши. Если предполагается наличие жилой мансарды, то должна быть учтена планировка и обустройство чердака.
Устройство плоской кровли нашло свое применение в регионах с малыми количествами атмосферных осадков.
Схема устройства плоской кровли
Там, где идет много дождей, плоской крышей не обойтись в силу того, что скапливающаяся вода может привести к ее протечкам. В нашей стране наиболее распространены скатные крыши с углом наклона ската не менее 10 градусов. Угол наклона может быть увеличен исходя из особенностей климата. Плоской крышей в основном оборудуются недорогие дачные домики или хозяйственные постройки.
Чердачные и бесчердачные крыши
Кроме этого, крыши для загородных коттеджей и домов можно подразделить на чердачные и бесчердачные.
Отличаются они несущими элементами. Бесчердачные крыши предполагают, что несущие элементы представляют собой перекрытие второго этажа, а чердачные предусматривают, что кроме силовых элементов крыши существует еще и перекрытие между этажами.
Подбирая кровлю для дома, необходимо четко представлять, каким образом планируется использовать площадь мансарды.
Будет ли это чердак для хранения ненужного хлама или это будет жилое отапливаемое помещение. Все это повлияет на то, какая форма будет лучше всего.
Виды крыш
Рассмотрим основные виды кровель:
- Конструкции плоской крыши;
- Конструкции плоской односкатной крыши;
- Конструкции двухскатной крыши;
- Конструкции четырехскатной крыши;
- Шатровые;
- Мансардные;
- Купольные;
- Конические;
- Многощипцовые.
Нередко застройщики объединяют несколько разновидностей крыш, получая своеобразный гибрид, обладающий неповторимым видом и включающим в себя множество достоинств.
Однако сборка таких конструкций происходит очень непросто, равно как и их обслуживание.
Односкатные крыши
По монтажу такие крыши считаются самыми простыми, однако, в силу скучного внешнего вида их применяют для частных застроек не так часто. Кроме этого, можно отметить высокую нагрузку на систему ливневой канализации. В основном конструкции плоской односкатной крыши возводят над хозяйственными постройками.
Конструкция двускатной крыши
Этот традиционный вид крыш также обладает несложной конструкцией и применяется наиболее часто для возведения частных построек. Для двухскатной крыши можно подобрать практически все существующие типы кровельных материалов.
Конструкция четырехскатной крыши
Разновидность четырехскатной крыши часто называют вальмовой, и наибольшее распространение она обрела в южных регионах. Особенностью таких крыш является отсутствие фронтонов, а также расположение слуховых окон в местах соединения конька крыши с вальмами.
Подробная конструкция устройства четырехскатной крыши
Своими руками, в силу большой сложности четырехскатной конструкции, вальмовую крышу не построишь. Как правило, ее применяют для того, чтобы приукрасить здание, придать ему индивидуальность.
Многощипцовая крыша
Отличаются такие крыши разнообразием вариантов исполнения, которые зависят от количества и размеров фронтонов. Так как при сборке малейшая неточность может привести к непоправимым ошибкам, производство таких крыш лучше всего доверить специалистам.
Конструкция мансардной крыши
Если возводится дом, в котором предусматривается наличие жилого помещения под крышей, выбирают этот вид кровли. Такие мансарды отличаются ломаными формами, поэтому при сборке можно столкнуться с некоторыми сложностями.
Схема конструкции мансардной крыши
По конструкции в некоторых случаях является разновидностью двухскатной, четырехскатной или многощипцовой крыши
Нестандартные крыши
Иногда конструкция и чертеж дачного дома обязывает застройщиков выбирать такие виды крыш, как купольные, конические или комбинированные.
Нередко конические или купольные крыши обустраиваются над отдельными частями дома, выделяя их и, преображая вид здания.
При сложных и неправильных конструкциях домов применяются комбинированные виды крыш, которые включают в себя несколько разновидностей.
К примеру, можно сделать гибрид двухскатной, четырехскатной, мансардной, купольной и других крыш. Естественно, что такое исполнение предполагает очень точные расчеты.
Проектирование крыши
Проекты крыш на сегодняшний день создаются с помощью специальных компьютерных программ. Если в подобном деле опыта нет, рекомендуется воспользоваться услугами квалифицированных архитекторов, большинство из которых способны предложить готовые варианты крыш частных построек. Подходящий вариант следует выбирать исходя из личных предпочтений.
В случае самостоятельной разработки плана строительства крыши важно знать её устройство, а также то, какие материалы надо применять в конкретном случае. Важно разобраться, для чего необходима каждая деталь кровли.
Если нет знаний устройства крыши, качественный проект составить не удастся. К основным элементам крыши можно отнести следующие:
- Обрешётка. На данную часть крепится утеплительный материал и кровля. Обрешётка крепится к стропильным опорам.
Обрешётка служит основанием для фиксации утеплителя и кровельного материала - Внутренние опоры. Они устанавливаются для того, чтобы нагрузка от кровли могла быть распределена одинаково на всю конструкцию здания.
- Коньковый прогон. К этой детали будут крепиться стропила. Представляет собой длинную, часто составную, балку большого сечения.
Коньковый прогон задаёт верхнюю границу кровли и образует стык двух скатов - Стропила. Образуют каркас крыши и являются основанием для обрешётки. Могут быть наслонного или висячего типа. Если планируется сделать проект с висячими стропилами, то в качестве основы для них должны использоваться две крайние опоры. Элементы могут работать на изгиб и на сжатие. Висячие стропила применяют в основном для мансардных построек.
Стропильные ноги наслонного типа должны опираться на обе крайние точки опорных деталей и на несколько внутренних. Элементы могут работать исключительно на изгиб.
Наслонные стропила монтируются в случае, если в доме есть капитальная перегородка - Диагональные связки. С их помощью скрепляются стропила и мауэрлат. Также называются раскосами.
- Мауэрлат. Это специальные рейки, которые укладываются по нижнему периметру конструкции. На них будет опираться система стропил. Монтируется заподлицо со стенкой. Элементы следует тщательно гидроизолировать со стороны стены.
Мауэрлат укладывается по верхнему торцу стен и служит связующим звеном между каркасом здания и кровельной системой - Кровельный материал. Внешняя часть крыши, которая выполняет декоративную функцию и защищает строение от атмосферных воздействий.
Кровельный материал является финишным покрытием, ради которого собирается весь каркас крыши
Детали скрепляются друг с другом за счёт небольших шпилек, которые называют ершами.
Кроме этого, под стропильные ноги в некоторых случаях вырезаются опорные ниши, которые скрепляются проволокой из стали толщиной примерно 4–6 мм.
Чтобы возвести систему стропил, следует использовать качественную древесину. Иногда можно встретить металлические конструкции, однако древесина является более доступным материалом. Для стропильных опор применяют брус от 40х150 мм до 100х250 мм. Выбор размеров материалов будет зависеть от расстояния между опорами, расчётной нагрузки и особенностей конструкции кровли. Сечение стропил определяется исходя из их длины.
Таблица: параметры материалов для крыши
| Элемент системы стропил | Сечение |
| Мауэрлат | Брус 100х100 мм, 150х100 мм, 150х150 мм |
| Прогоны | Брус 100х100 мм, 150х100 мм, 100х200 мм |
| Диагональные элементы и ендовы | Брус 200х100 мм |
| Затяжки | Брус 150х50 мм |
| Стойки | Брус 100х100 мм или 150х150 мм |
| Ригели | Брус 150х100 мм, 200х100 мм |
| Кобылки, доски карниза, подкосы | Брус 150х50 мм |
| Доски подшивки | Доска от 22х100 мм до 25х150 мм |
Формы крыши
В индивидуальном строительстве существует несколько форм крыши:
- Плоская кровля.
Подобная конструкция становится выгодной, если под ней планируется чердачное помещение, а не полноценная мансарда. Она может быть тёплой: так как уклон минимален, есть возможность закладывать большое количество утеплительного материала. Крыша может применяться для зданий любой конфигурации, даже той, в которой скатная кровля покажется изломанной и крупногабаритной. Плоскую кровлю часто делают эксплуатируемой. На ней может быть организовано добавочное пространство для отдыха. Однако проект такой крыши должен предусматривать устройство системы снеготаяния, которая предотвратит скапливание снега и льда в большом количестве. Конструкция не является популярной в России, поэтому мало компаний способны грамотно составить проект такой крыши.
Плоские крыши часто делают эксплуатируемыми: на них устраивают сады, оранжереи, места отдыха и даже автостоянки - Крыша с одним скатом. Такую конструкцию изготовить проще всего. Она подойдёт для зданий с величиной пролёта в 6–7 м.
Направление наклона к северу позволит создать окна большой ширины с южной части фасада. К югу рекомендуется устраивать солнечные коллекторы по всему основанию крыши. Этот тип постройки допускает применение листовых кровельных материалов больших размеров. Крыша с одним скатом подойдёт как для крупного здания, так и для маленьких построек — гаражных помещений или веранд. В проекте можно предусмотреть наличие нескольких конструкций с единым скатом, которые совмещены в единую конструкцию и имеют наклоны в различных направлениях. Уклон должен быть маленьким, чтобы не было необходимости в возведении стен слишком большой высоты.
При устройстве односкатной крыши всегда существует компромисс: угол наклона нельзя делать слишком большим, чтобы не сооружать очень высокую лицевую стену, но он должен обеспечивать свободное отведение выпавших осадков - Крыша с двумя скатами. Эта конструкция является самой популярной и доступной. Крыша идеально покрывает любое строение, образуя надстройку треугольной формы.
Двускатную кровлю рекомендуется выбирать, если требуется устроить мансардное помещение. Окна, которые размещаются во фронтонах, смогут обеспечить должный уровень проветривания и освещённости. Для мансардного помещения довольно часто применяется модифицированная вариация двускатной крыши — ломаная конструкция, которая отличается более крутым уклоном нижней части (70–80° в сравнении с верхней 28–30°). Это даёт возможность существенно увеличить площадь мансарды. К крыше с двумя скатами относится и сводчатая постройка, которая выполняется по окружности. Подобный тип кровли способен украсить выступающие части здания.
Двускатная крыша позволяет обустроить чердачное помещение - Полувальмовая крыша. Этот вариант является надёжным и малозатратным в финансовом плане. Мансарда может проветриваться и освещаться при помощи окон во фронтонах. Полувальмовые крыши относят к разновидностям постройки с двумя скатами.
В полувальмовой конструкции крыши есть фронтоны, при помощи которых мансарда может освещаться и проветриваться - Вальмовая крыша.
Она имеет хорошую устойчивость к нагрузкам от ветра. Довольно часто подобный дизайн крыш применяется для того, чтобы покрыть строения существенной площади и улучшить их внешний вид. Это сложное изделие, в котором обязательно должны быть слуховые и мансардные окна. Они обеспечивают необходимый уровень освещения и проветривания.
В вальмовой крыше обязательно должны присутствовать слуховые и мансардные окна - Шатровая крыша. Это подвид крыши вальмового типа. Она подходит лишь для строений квадратной формы — башен и беседок.
Шатровая крыша подходит только для зданий квадратной формы - Ломаная вальмовая крыша. Объединяет в себе полезные свойства двух систем — ломаной и вальмовой. Её целесообразно возводить в случае, если планируется соорудить большой презентабельный дом. Конструкцию реализовать довольно сложно. К её основным достоинствам можно отнести возможность выгодно распоряжаться полезной площадью мансарды и отличный внешний вид.
Ломаная вальмовая крыша подходит для частных домов больших размеров
В процессе составления проекта надо учитывать и материал, из которого изготавливается крыша.
На данный момент в продаже можно найти много разновидностей кровельного покрытия:
- железо;
- цементно-песчаная черепица;
- шифер;
- камыш, солома или тростник;
- деревянный гонт;
- металлочерепица;
- рубероид;
- металлопрофиль.
Как определить уклон крыши
На уклон конструкции оказывает влияние тип кровельного материала. Для упрощения расчёта можно применить специальную схему, которая даёт возможность подобрать материал крыши исходя из её уклона.
Уклон крыши зависит от многих факторов, в том числе и материала для покрытия
Если уклон составит от 0 до 25%, то для перекрытия крыши могут быть применены материалы в рулонах. Если угол наклона находится в пределах 12–25%, то допускается монтаж одного слоя, например, материала с досыпкой. На крышах с уклоном меньше 28% возможна укладка волнистых листов асбестоцемента. Больше всего подходит шифер. Если угол наклона более 33%, то достаточно часто применяется черепица.
Когда будет определён угол наклона крыши и материал для перекрытия конструкции, требуется рассчитать высоту конька. Для этого применяется математический метод: понадобится взять ширину пролёта здания и разделить её на 2. Результат умножается на относительный показатель, который берётся из таблицы.
Таблица: зависимость относительного показателя от уклона кровли
| Уклон кровли | Относительный показатель |
| 5 | 0,08 |
| 10 | 0,17 |
| 15 | 0,26 |
| 20 | 0,36 |
| 25 | 0,47 |
| 30 | 0,59 |
| 35 | 0,79 |
| 40 | 0,86 |
| 45 | 1 |
Например, при ширине пролёта 8 м и уклоне 25° высота конька составит 8 / 2 x 0,47 = 1,88 м.
В процессе составления проекта крыши важно учитывать такие правила:
- Расчётная ветровая нагрузка составляет 35 кг/м2. Если наклон стропил больше 30°, то следует обустроить вспомогательную конструкцию для того, чтобы увеличить сопротивление.

- Расчётная снеговая нагрузка будет зависеть от наклона ската. Если он меньше 60°, то она составит минимум 180 кг/м3. Если уклон больше, то нагрузку чаще всего не учитывают.
- Для усиления конструкции допускается использование элементов из железа. Чтобы защитить их от влаги, появления ржавчины или конденсата, их следует обработать специальными средствами.
Планирование двускатной кровли
Правильно составленный чертёж двухскатной крыши является отправной точкой для будущего строительства, поскольку не только позволяет детально продумать и визуализировать строение кровли, но и скомплектовать необходимое количество строительных материалов. При принятии решения о типе будущего покрытия строения необходимо принимать во внимание следующие ключевые факторы:
- Возможности для финансирования строительства. Если экономичность кровли является немаловажной, то не рекомендуется выбирать конструктивно сложное строение, лучше остановиться на стандартом равноскатном варианте.
Стандартный равноскатный вариант крыши - Необходимая функциональность подкровельного пространства.
Двухскатная крыша является оптимальным решением для устройства в подкровельном помещении мансарды, как для летнего отдыха, так и для постоянного проживания.
Оптимальным вариантом для этого является устройство ломаной кровли, которая позволяет максимально задействовать площадь подкрышной части.
Чертеж и строительство ломаной кровли - Особенности местности расположения будущего дома.
Это важно, поскольку ветровые и снеговые нагрузки должны быть обязательно учтены при проектировании углов наклона скатов, чтобы обеспечить минимальное отрицательное воздействие атмосферных факторов и исключить возможные неприятные последствия. - Планируемый материал для внешнего покрытия.
Каждый тип кровельного материала имеет свои технологические особенности и специфические требования к устройству стропильной системы двухскатной крыши, которые должны быть учтены на этапе проектирования.
Материалы для кровли крыши
Собрав воедино общую информацию по указанным факторам и выбрав подходящую конструкцию кровли, можно приступать к расчётам размеров элементов и составлять чертежи.
Наиболее простой способ выполнить расчёт двухскатной крыши своими руками это воспользоваться онлайн калькулятором, который на основании вводимых данных сделает все необходимые вычисления.
Варьируя исходными параметрами можно оптимизировать как количество материала, так и саму конструкцию.
Другим возможным вариантом расчётов будет использование стандартных математических формул и справочных таблиц, на основании которых можно выполнить вычисления размеров и точек расположения элементов вручную.
Чертеж стропильной части кровли
Надо отметить, что говоря о чертежах будущей крыши, как правило, имеется в виду определение и детализация стропильной части, поскольку именно её конструкция отвечает за функциональность, надёжность и безопасность.
Однако самостоятельно выполненный чертёж не заменит полноценный проект, выполненный специалистами.
Основные составляющие чертежа двухскатной кровли
Можно выделить несколько моментов, которые должны быть отражены на чертежах с двускатной крышей:
- Принципиальная схема стропильной системы.
Она предполагает нанесение на чертёж расположения ключевых элементов и их количество, определяя при этом тип необходимого пиломатериала, в том числе следующие:
- Мауэрлат — брус, уложенный на несущие стены здания, являющийся опорным для крепления стропил и распределяющий нагрузку между стропильной системой и стенами;
- Лежень — брус, закрепленный на внутренних стенах постройки, который служит опорой для стоек;
- Стропильная нога или стропило — доска, которая служит элементом формирования кровли. Пара стропил, соединённых между собой, образуют стропильную ферму.
Равномерно установленные на крыше фермы в комплексе составляют основу для укладки кровельного покрытия;
Расчёт стропильной системы двухскатной крыши - Стойка — вертикально установленный брус, который служит опорой для стропил двухскатной крыши, а в кровле ломаного типа также и элементом каркаса для внутренней обшивки;
- Подкос или подстропильная нога — доска или брус, закрепленные под углом к опорному столбу и упирающиеся в стропило, его функцией является распределение нагрузки;
- Затяжка или ригель или схватка — горизонтально укреплённая доска, которая придаёт стропильной ферме жёсткость, выполняя функцию распора;
Схема стропильной системы двухскатной крыши - Прогон — дополнительный горизонтальный брус для укрепления стропильной конструкции, может быть:
- коньковым, расположенным по линии соединения стропильных ног или коньку;
- боковым, который фиксирует линию в середине ската.
- Кобылка — доска, используемая для удлинения стропила и формирования свеса кровли;
- Обрешётка — доски, закреплённые на внешнем торце стропил и им перпендикулярно, служит основой для крепления внешнего покрытия.
Макет обрешетки крыши
Расположение ключевых элементов определяет тип стропильной системы двухскатной крыши, который может быть:
- наклонным, предполагающим установку центральной опоры на которой происходит крепление стропильной пары;
- висячим, при котором деревянная стропильная ферма формируется посредством затяжек и подкосов и устанавливается на крышу в готовом виде;
- комбинированным, сочетающим в себе оба способа крепления стропил.
Два основных вида стропильной системы
При планировании строения кровли необходимо учитывать, что при устройстве тёплой крыши потребуется кровельный пирог, то есть материалы для утепления и изоляции, а также элементы их крепления.
После составления основного чертежа с расположением элементов необходимо проставить размеры по всем рёбрам конструкции. При этом необходимо учитывать спецификацию пиломатериалов, которые планируется использовать.
- Детализация узлов соединения элементов.
Для определения потребности в крепёжных и соединительных материалах, а также для обозначения способа крепления необходимо выполнить чертежи узлов соединения элементов стропильной системы.
На основании этих данных составляется спецификация по элементам крепления, включая их характеристики и количество.
Виды крепежных элементов для стропилУзлы крепления стропил из пиломатериалов - Конфигурация элементов конструкции.
На основании схемы стропильной системы рекомендуется составить подробную спецификацию с прорисовкой каждого элемента конструкции.
Данный чертёж-спецификация должен отражать:
- характеристики используемого пиломатериала;
- размеры каждой детали;
- конфигурацию элемента с отметками мест замковых запилов.
Данная информация будет служить основанием, как для закупки материалов, так и для их комплектации при монтаже.
Пример комплектации элементов конструкции при монтаже
- Комплектация кровельного покрытия.
По факту всех проведённых расчётов составляется план кровли и вычисляется необходимое количество кровельного покрытия требуемого типа, подборных элементов, а также составляющих кровельного пирога при необходимости.
Комплект чертежей и материалов, полученный в результате проведения вышеуказанных действий, будет служить рабочей документацией при строительстве.
Варианты конфигурации кровельного покрытия
Особенности составления чертежей некоторых типов двухскатных крыши
При планировании кровли и составлении чертежей, необходимо учитывать особенности устройства двухскатных крыш различных типов. Рассмотрим основные из них.
Классическая, с равной длиной скатов
Исходя из функционального назначения подкровельного пространства, равноскатная крыша может быть выполнена в двух вариантах, что отражается при составлении чертежа:
- Мансардная крыша. Изначально предполагает устройство стропильной системы висячего типа, чтобы обеспечить максимальную полезную площадь помещения.
Установка элементов, укрепляющих конструкцию, может быть устроена одним из перечисленных способов.
- Простые висячие стропила с ригелем. Горизонтальный распор устанавливается на уровне потолка или выше и служит элементом каркаса для внутренней обшивки;
Примеры мансардной крыши - Аттиковая конструкция.
По углам устанавливаются опорные стойки, точка расположения которых устанавливается индивидуально, а на уровне планируемого потолка устанавливается ригель. По своему верхнему краю стойки укрепляются прогоном.
Кровля ломаного типа
Мансардная крыша, выполненная с изломом ската, или ломаная крыша своими руками может быть также рассчитана, прочерчена и построена. Внешняя сложность конструкции при тщательном планировании технологических элементов и точек соединения, оказывается в строительстве не сложнее, чем обычная равноскатная кровля. Чертежи ломаной кровли, прежде всего, должны отражать устройство каркаса из опорных стоек, а также дополнительные распорные элементы, необходимые при покрытии тяжёлыми кровельными материалами.
Пример кровли ломаного типа
Надо отметить, что монтаж двухскатной крыши является наиболее актуальным решением, чтобы обустроить жилое помещение и выполнить самостоятельную постройку. Таким образом, подробно составленный чертёж двухскатной крыши является фактическим руководством по строительству, как на стадии подготовки материалов, так и в процессе самого монтажа.
Изначально продуманная общая конструкция кровли и способы соединения её элементов буду залогом качественно выполненных работ при минимальных трудозатратах.
Самостоятельная разработка проекта крыши дома
Работа по составлению проекта условно разделяется на 3 этапа:
- Подготовка эскиза. Работа заключается в определении изготавливаемой конструкции крыши, визуализации внешнего вида и выборе материала для покрытия. Важно согласовать основной стиль здания и крыши, после чего определить цвет конструкции. Этот этап является подготовительным. Все мысли и идеи надо перенести на бумагу.
- Разработка главных схем конструкции. Понадобится выполнить расчёты с учётом предполагаемых нагрузок на крышу, после чего подобрать материал для стропильных ног и их габариты. После этого потребуется сделать чертёж крыши, продумать основные детали. Далее составляется смета: рассчитывается необходимое количество материалов, подготавливается список инструментов и материалов, определяется стоимость оборудования и работ.

- Строительные работы. Проект следует реализовать на практике. В этот период надо лишь проводить вспомогательные расчёты. Они будут, так как достаточно сложно учесть всё. В процессе выполнения работы будут вноситься определённые коррективы.
Частный дом на плане нужно разделить на прямоугольники. Внутри них чертятся линии, которые обозначают сопряжения плоскостей скатов с внутренней и внешней стороны. Далее надо обозначить размещение ендов и коньков. Часть деталей будет расположена за границами внешних стен, так как крыша должна иметь свес. Проекции передней и боковых частей надо делать с учётом уклона скатов. Они задаются, когда составляется проект дома целиком, так как важно учесть назначение и тип строения, а также вид применяемого материала для кровли.
На чертеже крыши нужно обозначить точное расположение основных деталей, а также указать их размеры и форму
Графическая часть проекта подготавливается при помощи компьютерных программ. На плане должны быть оси координат.
С их помощью будет проще ориентироваться в пространстве. Для этого понадобится:
- Обвести линией план частного дома.
- Границы капитальных стенок и другие линии проекта здания перенести на чертёж крыши.
- Над каждым прямоугольником здания нарисовать изображение крыши, начиная с самого крупного.
- Обозначить линиями проекции коньков.
- Начертить ендовы.
В проекте следует обязательно указать размещение каналов для отвода дыма и проветривания. Если планируется устанавливать мансардные окна, их также надо обозначить на плане. Линиями следует определить уклоны скатов, а также направления водостоков. По всем осям и контурам проекта надо обозначить фактические габариты.
Отдельными пунктами в проект нужно включить чертежи узлов соединения различных элементов крыши:
- присоединение подкосов, стоек, затяжек и других элементов;
- фиксация стропильных ног к мауэрлату;
- крепление конькового прогона, места фиксации стропильных ног друг к другу и к другим деталям.

В графическом разделе плана должен быть эскиз крыши, который сможет дать общее представление о кровле. Это требуется прежде всего для того, чтобы оценить эстетику и внешний вид.
Эскиз крыши нужен для того, чтобы можно было оценить её внешний вид
Если планируется врубать какие-либо элементы, их нужно отобразить на отдельном чертеже. Обязательно требуется обозначить форму врубки и её фактические габариты.
В процессе самостоятельного составления проекта важно обязательно учитывать такие правила:
- Пересечение плоскостей скатов должно образовывать конёк или ендову. Угол прямоугольника должен быть разделён на 2 равные части с помощью проекции скатов.
- Через две линии, которые сходятся или пересекаются в одном месте, практически всегда проходит и третья линия.
- Линии конька и карнизных свесов должны быть параллельны. Проекция линии конька должна пройти посредине строения.
- Проект плоской конструкции состоит из нескольких линий.
Крыша с несколькими скатами имеет множество проекций ендов и коньков. Подобные кровли имеют сложную форму, требуют подготовки усиленной системы стропил и большого наклона.
Видео: самостоятельное составление плана крыши
Расчёт площади крыши
На этапе подготовки проекта надо знать данные о площади конструкции. Это требуется для того, чтобы была возможность корректно рассчитать количество кровельного материала, утеплителя, крепежей и гидроизоляции.
- Крышу с одним скатом рассчитать проще всего, так как она изготавливается в форме прямоугольника. Понадобится умножить длину и ширину здания. По 0,5 м с каждой из сторон надо прибавить для свеса крыши.
- В крыше с двумя скатами площадь можно посчитать таким же методом. Коррективы вносятся лишь с учётом длины стропильных ног, свеса кровли на фронтонах и карнизе.
Подобную крышу визуально можно разделить на 2 прямоугольника.Для вычисления площади двускатной кровли необходимо знать длину и ширину дома, а также высоту конька
- Выполнить расчёт площади крыши сложной формы также не составит труда. Сложная конструкция разделяется на простые фигуры, затем по математическим формулам подсчитывается площадь каждой из них, после чего полученные значения складываются.
Ошибки, которые допускаются при составлении проекта
Когда план разработан, возникает желание приступить к его реализации. Однако рекомендуется прежде всего посоветоваться с экспертами. Если во время составления проекта будут допущены просчёты, то переделка может потребовать много времени и финансов.
Довольно часто проектировщики допускают ошибки, которые можно поделить на 2 вида:
- конструктивные просчёты;
- архитектурные просчёты.
Последние в большинстве случаев связываются с недочётами в вопросах проветривания элементов крыши.
Если конструкция утепляется, важно уделить внимание не только защите утеплительного материала от попадания влаги, но и таким деталям, как система вентиляции карнизного свеса или конька.
На нормальное функционирование таких механизмов влияют вспомогательные детали, к которым можно отнести аттики, парапеты и т. д. Если их неправильно установить, то они могут оказывать негативное воздействие на забор воздуха. Поэтому рекомендуется увеличить высоту продушин или отказаться от монтажа некоторых элементов.
Ещё одна распространённая ошибка — неверно сконструированная система водостока.
Система водостока может быть открытой или замкнутой, но в любом случае необходимо правильно рассчитать сечение её проходных элементов
Довольно часто применяются декоративные желоба, которые имеют недостаточные размеры. В таком случае вода может переливаться через край. Это может повлечь за собой повреждение фасада строения. Другая ошибка — маленький уклон крыши. Это достаточно часто приводит к критическому увеличению нагрузки на механизм стропил во время морозов.
При выборе материала для перекрытия конструкции обязательно надо учитывать такие рекомендации:
- для металлической черепицы допустимый угол наклона составляет от 30°;
- для профнастила минимальный уклон составляет 8°;
- для шифера оптимальный диапазон углов наклона — 25–30°;
- для гибкого покрытия допустимый уклон — 5° и более.
Составлению проекта крыши надо уделить особое внимание, так как если будут допущены хотя бы незначительные просчёты, то крыша будет непрочной. Соответственно, в скором времени после изготовления может понадобиться проведение незапланированных ремонтных работ.
Общие принципы проектирования крыши
Чтобы правильно создать проект крыши, необходимо изучить конструкцию и материалы несущих стен постройки, климатические условия региона, в котором построен дом, обсудить с заказчиком предпочтения в дизайне, при надобности – способ теплоизоляции, бюджет, материалы, сроки исполнения и составить оптимальную смету.
Если Вы решили составить проект крыши самостоятельно, стоит начать с подготовки эскизов.
Продумайте конструкцию будущей крыши, материалы, цветовую тематику и другое. Все мысли нанесите на бумагу, посчитайте все «за и против» и определитесь с оптимальным решением.
Следующий этап самый сложный. Нужно приступить к созданию схем. Их следует выполнять с учетом всех важных деталей: определения угла наклона, возможных нагрузок на крышу, подбора стропил, высчитывание размеров и количества материалов и их закупка. Последний этап – это непосредственно строительные работы, по созданным чертежам.
Проекты односкатной крыши
План односкатной крыши обычно разрабатывают для зданий, размеры стен которых не превышают 6-7 метров. Такая крыша так же идеально подойдет для покрытия гаражей, веранд и мансард. Для ее обустройства возможно использование одного большого листа кровельного и облицовочного материала.
Проекты плоской крыши
Плоские крыши имеют угол наклона от 2 до 5 градусов, поэтому считаются малоэффективными, особенно в зимнее время года, когда на них подолгу задерживается снег.
Внешний вид такой крыши непрезентабельный и поэтому в последнее время их применят только для покрытия хозяйственных построек.
Одна конструкция легка в исполнении, обеспечивает минимальные затраты времени, небольшое количество материала, доступна по бюджету и поэтому есть люди, которые останавливают на ней свой выбор.
Проектом плоской крыши может быть предусмотрено создание дополнительного места отдыха. На таких крышах есть возможность поместить веранды, зеленые насаждения и даже бассейны.
Проекты двускатной крыши
Наиболее популярным и востребованным вариантом кровли для частого дома является двухскатная крыша. Она позволяет обустроить дополнительное помещение. В проекте такой крыши, возможно добавить расположение окон, для обеспечения дополнительной освещенности и проветривания.
Проект ломаной крыши
Такая крыша объединяет в себе две конструкции – вальмовую и ломаную. Обычно используется для больших, презентабельных домов, ее конструкцию реализовать довольно сложно, поэтому проект включает в себя все мелкие и сложные детали.
Такую крышу относят к мансардным, так как благодаря ощутимым углам наклона создает еще одно дополнительное помещение.
Проект полувальмовой крыши
Этот вид считается чем-то средним между двухскатной и вальмовой крышами. По внешнему виду она напоминает соединенные между собой две трапеции и два треугольника.
На фронтонах возможна установка слуховых окон. Крыша такого дизайна, смотрится оригинально, ее предпочитают и заказывают довольно часто.
Проект четырехскатной крыши
Четырехскатная или вальмовая крыша одна из самых устойчивых и надежных, способная выдержать мощные порывы ветра и потоки дождя. Проект таких крыш всегда сложный и нелегкий для реализации, обычно в них предусматривают слуховые и мансардные окна и применяют для больших домой.
Проект купольной и конической крыши
Купольные крыши используют для больших трасс, полуоткрытых театров, цирков и домов необычного дизайна. Коническими крышами в домах покрывают маленькие помещения, или башенки для создания оригинального дизайна.
Обычно их комбинируют с другими видами крыши.
Выбор материала для облицовки
После того, как вид и тип крыши для проекта определен, необходимо продумать про облицовку, которая оптимально подойдет для Вашего жилища, и сделать его практичным и красивым.
Существует множество видов, цветовых гамм материалов и их фракций для отделки крыш. Это может быть шифер или черепица, железо, рубероид или металлопрофиль. В некоторых случая крышу делают деревянной.
Наиболее часто встречающиеся типы крыш
Рассмотрим типы крыш, которые чаще всего встречаются в частных домах, и разберемся в особенностях их конструкций.
Конструкция односкатной крыши
Такие крыши считаются очень простыми в монтаже, и чаще всего односкатной крышей оборудуют дома, находящиеся в южных регионах с малым количеством атмосферных осадков. Опишем преимущества и недостатки таких конструкций:
- Экономия материалов;
- Простота монтажа;
- Малый вес, и соответственно небольшая нагрузка односкатной крыши на фундамент;
- Отличная сопротивляемость порывам ветра;
- Плохая сопротивляемость скапливанию атмосферных осадков;
- Непривлекательность.

Для подготовки чертежа необходимо знать такие параметры, как габариты здания, наклон кровли, тип кровельного материала. Высота стропильной системы зависит не только от угла наклона крыши. Если скат крыши будет выходить за пределы стен вследствие конструктивных особенностей дома, этот факт необходимо учитывать тоже.
Количество стропил зависит от габаритов здания, а шаг между ними должен выбираться исходя их сечения пиломатериала, используемого для строительства.
Чертежи устройства односкатной крыши
Дополнительные усиливающие элементы, такие как подкосы и ригели, позволяют предотвратить провисание системы под тяжестью кровли.
Подбирая готовые чертежи для односкатной крыши, необходимо позаботиться, чтобы в них содержалась вся информация о конструктивных элементах. Кроме этого, в чертежах должны быть указаны способы крепления элементов крыши друг к другу, что будет очень полезным при монтаже.
Конструкция двухскатной крыши
С помощью двухскатной крыши защищается большинство проектов и планировок домов.
Почему же они так популярны, попробуем разобраться:
- Относительно невысокая цена;
- Привлекательность по сравнению с односкатной крышей;
- Отличная сопротивляемость атмосферным осадкам;
- Легкость монтажа.
Конструкция стропильной системы состоит из стропил, балок, мауэрлата и конькового бруса. Для конструкции двускатной кровли, к которой предъявляются более серьезные требования по надежности, чертежи дополняются прогонами, подкосами и подпорками.
Схема устройства двускатной крыши
Существуют разновидности двускатной кровли, одной из которых является дома с мансардной крышей. Мансардные крыши нередко имеют ломаные скаты для того, чтобы увеличить полезное пространство под крышей, необходимое для комфортной жизни.
При проектировании двускатной крыши для дома, находящегося в северном регионе, с характерными обильными осадками зимой, следует предусмотреть крутые скаты и усиленную конструкцию стропильной системы.
Посмотрев по сторонам, можно легко отыскать пример неправильно спроектированной двухскатной кровли, и показателем тому будет большое количество снега на крыше.
Конструкция четырехскатной (вальмовой) крыши
Благодаря вальмовой крыше загородный дом становится более привлекательным и неповторимым. Кроме этого, благодаря четырехскатной конструкции, крыша становится полностью оптекаемой, и ей не страшны порывы ветра любой силы. Вальмовой такую крышу называют из-за наличия в ней торцевых скатов треугольной формы — вальмов.
Рассмотрим достоинства четырехскатной крыши:
- Отсутствие сопротивления ветру, способствующее широкому применению вальмовой крыши в ветреных регионах;
- Оригинальный внешний вид;
- Благодаря вальмовой крыше фасад дома хорошо защищен от атмосферных осадков;
- Под четырехскатной крышей без проблем можно соорудить и обустроить жилой чердак .
Обсудим и недостатки четырехскатной крыши:
- Сложность монтажа, если сравнивать ее с двухскатной крышей;
- Стоимость вальмовой крыши выше двухскатной;
- Некоторые сложности могут возникнуть при планировке мансарды под вальмовой крышей.
Из-за того, что конструкция предполагает наличие четырех скатов, полезное пространство будет скрадываться больше по сравнению с двухскатной крышей.
Для сооружения вальмовой крыши необходим тщательный расчет, подготовка проекта и необходимых чертежей. В проекте должны быть отражены особенности региона, стоимость всех необходимых материалов и сложность монтажа.
Проект вальмовой крыши должен рассчитывать и площадь будущей крыши, благодаря которому будет понятно, сколько понадобится кровельного материала. Проектирование и создание чертежей четырехскатной крыши дело непростое, и вряд ли будет под силу неподготовленным строителям. Лучше всего доверить проектирование таких сложных по конструкции крыш специалистам, что позволит не волноваться о качестве.
Монтаж эксплуатируемой плоской кровли
Как сделать плоскую крышу? Прежде всего необходимо определиться основными параметрами — типом крыши, устройством и т.д. Рассмотрим вариант монтажа эксплуатируемой плоской кровли с бетонным перекрытием и наружным водоотведением при помощи желобов:
- Поверхность перекрытия покрывается слоем уклонообразующей бетонной стяжки (разуклонки)
.
Для экономии бетона сначала насыпается с уклоном слой гравия, после чего поверх укладывается стяжка. Поскольку этот этап относится к «мокрым» работам, то поверхность перекрытия рекомендуется покрыть слоем праймера или подобного материала
. - Укладка паро- гидроизоляции
. В качестве материала можно использовать различные наплавляемые пленки, или рулонные мембраны. Укладка внахлест, стыки проклеивать скотчем
. - Слой утеплителя
. Используется либо каменная минвата, либо экструдированный пенополистирол. Укладка утеплителя производится в несколько слоев, минимум — 2 слоя
. Такое требование вызвано необходимостью исключения проникновения холода сквозь щели в стыках утеплителя. - Поверх утепляющего слоя укладывается слой гидроизоляции
. - Засыпка балластного слоя — гравий, песок и т.д
. Роль этого слоя двойная: защита пленочного покрытия и отвод воды, поступающей от таяния снегов или от осадков в летнее время.
- Поверх балластного слоя при необходимости может быть уложен слой тротуарной плитки для удобства ходьбы по поверхности
. В этом случае понадобится дополнительный песчаный подготовительный слой, непосредственная подложка под плитку.
Указанная последовательность — один из вариантов, существует множество подобных методик, равнозначных по результату, но различающихся в деталях.
Устройство плоской кровли, традиционно считающейся принадлежностью вспомогательных построек, может быть осуществлено таким образом, чтобы поверхность кровли превратилась в дополнительную площадку, которую можно использовать для различных нужд.
В зависимости от климатических условий местности, поверхность плоской крыши превращают в зеленую лужайку, в техническую зону для размещения оборудования, в зону отдыха.
Все варианты эксплуатируемой кровли требуют тщательного обустройства и дорогостоящих материалов
. Качественный результат напрямую зависит от квалификации людей, производящих работы и от финансовых возможностей владельца дома.
Но не забывайте, что вы можете своими руками построить плоскую крышу.
Вложения в оборудованную используемую плоскую крышу оправдаются лишь в регионах с короткими мягкими зимами и низким среднемесячным уровнем осадков
. Все остальные вопросы решаемы и серьезных проблем не вызывают.
Гидроизоляция
Утепление
Источники
- http://www.krovlyakrysh.ru/dokumentatsiya-i-proektirovanie-krovli/plan-krovli/
- https://PlanVsem.ru/krysha/planirovka-kryshi-doma.htm
- https://Roofs.club/kryshi/proekt-kryishi-doma.html
- https://Proekt-sam.ru/krovli/chertezh-dvukhskatnoy-kryshi.html
- https://kakpostroit.su/proekt-kryishi-doma/
- https://mojdominfo.ru/proekt-kryshi/
- http://krovlya-mp.ru/plan-krovli-dvuhskatnoj-kryshi-chertezh.html
- https://pw-farmers.ru/flat-roof-plan-the-roof-plan/
Андрей
Задавайте вопросы в комментариях
Задать вопрос
Помогла ли вам статья?
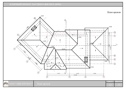
план кровли четырехскатной крыши чертеж
План и чертежи двускатной кровли
Сложно представить постройку без надежной крыши над ней.
Любая кровля является основой, главным гарантом неприкосновенности вещей в доме, сохранности имущества. Она является главным защитником от дождя и снега, ветра. После ее возведения можно переходить на следующий этап, подразумевающий внутренние работы. Сделав эту часть ненадежной, не приходится говорить о полноценном жилище. Двухскатная крыша, возведенная своими руками, является вариантом, наиболее простым и функциональным среди других видов кровли.
Части крыши
Существует несколько вариантов крыш, одна из которых – двускатная. Для возведения не потребуется много таланта, так как данный тип кровли является самым простым. Состоит элемент жилища из частей, указанных на рисунке: » alt=»»> Состоит конструкция из следующих частей: Конек. Верхняя часть, которая соединит 2 ската. Стойка. Установка, служащая для перераспределения веса от верха к низу кровли. Делать ее необходимо из качественных материалов. Лежень. Брус, расположенный горизонтально.
Соединяет стойку и несущую стену.
Вид кровли изнутри
Начало конька
Начало конька Подкосы. Эти доски закрепляются под небольшим углом. Служат для перераспределения веса от стропил к несущим элементам внизу.
» alt=»»> Стропильная нога. Эти элементы образуют видимый контур в форме треугольника. Служат для удерживания кровельного покрытия. Чем оно будет тяжелей, тем чаще необходимо прокладывать стропила. Кобылки. Доски, которые удлиняют стропила. Необходимы для создания свеса с двускатной крыши, по строительным нормам который должен быть не меньше 0,5 м.
Простая двускатная кровля
Кобылки в схематическом виде
Различие между стропилами План кровли двухскатной крыши и чертеж вполне реально выполнить своими силами. Сконструировать все элементы можно несколькими способами. Различие составляет стропильная система, используемая для возведения. Бывают следующие виды стропил:
- Наслонные. Здесь необходима установка дополнительных опорных балок, располагаемых посередине несущих стен.
Стропила часть нагрузки будут отдавать внутренним устройствам, чтобы облегчить вес. Используется тип стропил, если крыша, возведенная своими руками, тяжелая, при больших площадях жилища, существенных расстояниях до стен (более 10 метров).Виды стропильных систем
- Висячие. Опорой для них служит только боковое перекрытие. При возведении таких систем, необходимо делать затяжки, чтобы убрать распирание балок другими материалами. Делать их допустимо как сверху, так и снизу. Стоит учитывать, что при монтаже верхних затяжек, делается отступ не более полуметра.
- При сильных ветрах в зоне строительства, угол делается около 10-12о, чтобы кровля не была сорвана.
- При значительных зимних осадках, уклон производится в пределах 30-40о. снег будет легко съезжать с покрытия. Сложностей при расчетах не возникает никаких, но если кровля делается со сложной формой, это затруднит подсчет требуемых величин.
Системы используются во многих жилищах, качество у обеих достаточное для комфортного пользования. При возведении мансардной крыши, используются совместно. В таком случае комбинируется висячий и наклонный тип стропил. Стоит создать чертежи стропил, которые покажут расположение каждого элемента крыши, возведенной своими руками, чтобы не было непонятных моментов. Он поможет рассчитать количество необходимых материалов.
Любой элемент дома необходимо создавать, понимая, как все это будет выглядеть в результате. Для наглядности создается чертеж, а чтобы все легло идеально, заранее рассчитывается. В плане учитывается длина кровли по коньку, длина скатов, отдельно показывается длина отвесов. Определяется угол наклона кровли. Определение угла производится с учетом следующих моментов:
То, что нужно знать о плоской кровле
Ниже мы перечислим основные требования, которые выдвигаются к данному типу конструкции, а именно:
— Так как осадки ни в коем случае не должны скапливаться на поверхности крыши, уклон все-таки должен быть. Для обеспечения долговечности сооружения и надежности самой кровли, он должен быть не меньше, чем 2 %.
Самым оптимальным вариантом является 10-15 градусов.
— Если для вашей местности характерны затяжные и сильные дожди или большое количество осадков в холодное время года, то в таком случае одним только уклоном не обойтись. Важно продумать создание полноценной системы водоотвода. Она может быть как внешней, так и внутренней. Один стояк способен обслужить участок порядка 150-200 квадратных метров. В загородном домостроении нередко внешние водостоки создаются с применением специальных переливных окон, которые обустраивают на уровне ливнеприемника кровли. Если же линии сливов не пересекаются, настоятельно рекомендуется в плане крыши отобразить периметр фасада.
Важно отметить, что проекты частных коттеджей, зачастую, не содержат информации об угле наклона, в таком случае, для исправления ошибки проектировщика, не нужно переделывать всю работу заново, а просто необходимо сформировать наклон с использованием различных сыпучих материалов, а также стяжки, либо плит из полистирола. Плоская крыша загородного дома, застеленная газоном
Строительство кровли
После произведения расчетов и приобретения необходимых частей, выполняется установка мауэрлата.
После этого создается обрешетка. Элемент является основой для крыши, возведенной своими руками, делается из сосны или другой хвойной древесины. Материал прочный и легкий, способный раскидать вес всех элементов по всей плоскости. Размещается вдоль кровельных скатов, между стропильными ногами, верхом стенок.
Мауэрлат
Чтобы элемент прослужил дольше, необходима изоляционная прослойка между стенкой и ним. Подойдет для этого рубероид. Закрепляться мауэрлат может с помощью любых элементов крепежа, которые будут удобны. Для возведения кровли необходимо следовать плану:
- Закрепление стропил. Если используются висячие, собирать их необходимо заранее, используя крепежные элементы для придания жесткости данной части. Сначала делаются крайние элементы, после внутренние. При наслонной системе создается вначале лежень, где установятся опоры. Если длина элементов недостаточная, можно добавить ее с помощью установки кобылок.
Установка обрешетки. Использовать для возведения можно любые материалы, но важно избавиться от коры с досок, чтобы увеличить срок службы элементов.
Если планируется использовать мягкую кровлю, обрешетка делается сплошной. Здесь требуется жесткая основа, чтобы не было деформации при эксплуатации.
Сплошная обрешетка
Решетчатая. Делается при использовании жестких видов покрытия: шифера, металлочерепицы.
Решетчатая система
Укладка кровли. Материалов покрытия множество, каждый из них предполагает использование разных методов покрытия. Не стоит пренебрегать рекомендациями производителя материала. Важно делать небольшой нахлест между элементами. Структура не должна быть нарушена, чтобы не возникло протечек. Не стоит забывать, что надежная крыша, возведенная своими руками – гарантия сохранности имущества в доме. Не стоит пренебрежительно относиться к ее возведению, чтобы потом не пришлось производить сложный ремонт.
План плоской кровли: для чего он нужен
Одной из самых важных задач при устройстве кровли является отвод дождевой воды или снега со ската самой крыши. В случае скатной крыши все просто – осадки, поступив в желоба, уходят по водосточным трубам на улицу.
Однако, тот же вариант для плоской кровли может обезобразить здание.
Грамотно подготовленный план плоской кровли не только делает ее значительно более функциональной, но может также способствовать повышению эстетичности всего здания. Взять хотя бы способ установки водосточных труб, устроенные в самом здании, они не перегружают фасад и оставляют свободным поле для его отделки. Опасения, что подобная система может быть чревата неприятностями совершенно безосновательны.
Конструкция стропильной системы крыши
Итак, каждое строение имеет кровлю, которая на чем-то держится. Именно эта опора, без которой монтаж крыши просто-напросто не был бы возможен, и называется стропильной системой. Состоит она из множества конструктивных элементов, к ним относятся раскосы, стойки, коньковый прогон, обрешётки с контробрешеткой и др. По сути, ее значимость сопоставима со скелетом в теле человека.
В качестве же строительного материала в основном выступает дерево. Однако не стоит думать, что подойдет абсолютно любая древесина, абы были выдержаны размеры.
Для этой цели берут только качественные материалы, желательно хвойных пород. Кроме того, они должны быть хорошо просушены в естественных условиях. Также перед применением все элементы необходимо обработать специальным антисептиком, предотвращающим появление грибка, плесени, гниения и повреждение термитами. Побеспокойтесь еще и о пожарной безопасности, для этого также продаются различные виды специальных растворов.
Статья по теме: Отделка дымохода на крыше профнастилом
Особенностью всех новых построек непременно будет усадка, поэтому многие строители советуют устанавливать плавающие стропила. Их схема приниципиально не отличается от выбранной вами, доработка проводится только для крепления ноги и конькового бруса. Производят установку без жесткой фиксации, и в процессе усадки стропила могут немного изменить расположение своих элементов, при этом не видоизменяясь и не теряя в прочности. В противном случае части конструкции могут прогнуться или даже сломаться.
Система водостоков для плоской кровли ↑
Абсолютно плоских кровель не бывает, так как, если нужно эффективно отвести воду, необходим уклон плоской кровли – пусть даже настолько маленький, что незаметен глазу.
На кровлях этого типа его измеряют в процентах. Если уклон кровли не обеспечен конфигурацией ее основания, его необходимо устроить дополнительно.
За минимальный уклон плоской кровли принимают 2%, оптимальным вариантом уклона считается до 5%. Независимо от использованного материала такие конструкции позволяют быстро и беспрепятственно освобождаться от воды, и даже небольшой дефект кровельного покрытия при хорошем уклоне к серьезным последствиям не приведет.
Однако, исключать возможность затопления в случае обильных осадков полностью нельзя. Чтобы предотвратить подобные неприятности, рекомендуется установить водоотвод. Нередко для плоской кровли устраивают внутренний вариант водоотвода. Для этого поверхность кровли делят на участки таким образом, чтобы на один стояк приходилось бы 150–200 м 2 . В местах уклона, то есть на стороне по ее направлению устанавливается воронка для плоской кровли или фитинг. Если площадь кровли окажется меньше, то количество воронок на плоской кровле фактически сведется к одной.
Водосточные воронки снабжают специальными корзинками, которые улавливают различный мусор. Необходимо периодически очищать водосливные воронки от листьев, грязи, льда, ремонтировать их либо вовремя заменять.
Чтобы вода около воронок не замерзала и ничего не мешало ей свободно сливаться в трубу, около нее, на площади 1 м 2 , обеспечивают обогрев кровли при помощи кабельных систем. Держатель токоотвода для плоской кровли приклеивают к ней при помощи кровельной мастики или монтажного клея.
Альтернативой для внутреннего водостока с обогреваемой воронкой служит внешний, который устанавливают либо по одной из сторон кровли, либо точечно — в 2–3 местах. В частном домостроении наружные водостоки выполняют обычно при с помощи специальных, так называемых, переливных окон. Их вместе с кровельным ливнеприемником монтируют на парапете.
Чтобы вода могла стекать в водостоки со всей поверхности плоской кровли и не застаиваться, на ней можно устроить цементно-песчаную стяжку, которая имеет уклон по направлению выпускных отверстий, выполненных в парапете.
Для надежной работы системы водоотведения в зимний период, рекомендуется и в этом случае использовать для обогрева кабельные системы, которые защитят в зимнее время конструкцию наружных водостоков от обледенения .
Двухскатная крыша и виды стропильной системы для нее
Как понятно из названия, устройство двухскатной конструкции предполагает два крыла, т. е. наклонные плоскости, соединяющиеся между собой в самой верхней части. Что же насчет низа, так он упирается в стены постройки. Передний и задний фронтоны могут быть кирпичными, выложенными из шлакоблока или иного строительного материала. Кроме того, их нередко декорируют, тем более что на сегодняшний день существует масса способов придать этому элементу неповторимый вид.
Данная конструкция стропильной системы крыши имеет множество плюсов, например, возможность обустроить чердачное помещение, конечно, для проживания оно не годится, но хранить там вещи вполне реально. Также появившееся пространство часто используют как мансарду.
Кроме того, это достаточно экономный вариант, а вероятность протекания минимальна.
Теперь стоит немного остановиться на том, какие варианты стропильных систем двухскатной крыши существуют. Итак, есть висячие и наслонные виды конструкций. В первом случае опорой является конек кровли, а во втором стены дома, а также дополнительная промежуточная опора, например, средняя несущая стена. Отличаются эти стропила и принципом службы.
Балки висячей системы работают одновременно и на сжатие, и на изгиб, что же наcчет наслонных, так в этом случае упор идет только на изгиб.
Оптимальный вариант — комбинированное устройство двухскатной крыши (чередование наслонных и висячих стропильных элементов). Используя такой способ можно не только сэкономить строительный материал, но и сделать конструкцию несколько прочнее, а это нелишнее. Ведь на эту часть дома приходятся большие нагрузки, например, иногда человек вынужден забраться на нее, чтобы отреставрировать, кроме того, не стоит недооценивать силу ветров, снега, ливня и т.
д. Так что независимо от вида выбранной стропильной системы двухскатной крыши конструкция обязательно должна быть достаточно надежной и крепкой.
План плоской кровли
При строительстве частного дома важно продумать все нюансы, которые могут возникнуть в процессе работы, а также изначально определить, каким будет внешний вид готового строения. Это возможно сделать, воспользовавшись услугами опытного проектировщика. Но на этапе создания чертежа определяется не только тип фундамента и площадь будущего дома, но и тип кровли, который будет использоваться. Помните, что ни один дом не прослужит долго, а проживание в нем никогда не будет комфортным, если тщательно не спланировать и обустроить крышу. До начала работ по созданию кровли, необходимо спроектировать ее, а также рассчитать площадь конструкции. Специалисты в строительной отрасли утверждают, что если грамотно подойти к этому вопросу, обустройство крыши не только будет быстрым, но и сделает монтажные работы в разы проще и дешевле.
Чрезвычайно важно определить правильно основные элементы сечения, чтобы при реализации проекта не потребовалось вносить никаких корректив и правок, переделывая все заново.
Схема монтажа плоской кровли
После разработки схемы, необходимо определиться с наиболее приемлемым материалом, который будет применен для создания крыши строения. Не забывайте о том, что данный спектр работ строго регламентирован нормативными требованиями действующих стандартов. В этой статье мы рассмотрим все, что нужно знать при обустройстве крыши, а также как именно должен создаваться план плоской кровли.
Как сделать стропильную систему двухскатной крыши своими руками — пошаговя схема
Шаг 1: Устройство основания под стропила
Непосредственно к монтажу стропильной системы крыши можно приступать только после того, как будут установлены фронтон, конек, мауэрлат, а также балки перекрытия (для мансарды берутся брусья большего сечения). Кроме того, следует застелить на перекрытие доски, которые будут служить полом мансарды либо чердака, в зависимости от назначения помещения.
Шаг 2: Подготовка материала
Конечно же, подготовить рабочее место нужно в первую очередь, однако то, насколько прочной будет конструкция стропильной системы вашей двухскатной крыши во многом зависит от качества материала. Так что покупаем только высококачественный лес — наиболее подходящие для данной цели балки с размером сечения от 50х100 мм. Меньший размер не всегда способен служить долгое время, а во время сильных ветров или схода снега вы будете слышать жалостливый скрип дерева. Не забудьте обработать их всеми необходимыми средствами, о них уже говорилось несколько выше. Далее осуществляем раскрой элементов для стропильной системы. Намного удобнее делать это на земле, а потом поднимать готовые детали. На коньке следует сделать пропилы, в которых он будет стыковаться с ногами стропил.
Шаг 3: Монтаж
Установив конек, следует отметить и места крепления балок к мауэрлату и сделать там пазы. В первую очередь устанавливаются крайние балки. Затем между ними натягивается прочная нить (подойдет леска), чтобы легче было выставлять промежуточные ноги.
Крепятся же балки к коньку длинными гвоздями, а вот чтобы осуществить их фиксацию к мауэрлату, понадобятся анкерные болты. Чтобы увеличить надежность двухскатной конструкции следует установить дополнительные распорки, они также прибиваются гвоздями.
Создание проекта четырехскатной крыши
Перед тем как приступить к работе по обустройству крыши, её необходимо спроектировать, осуществить расчеты по конструкции, а также создать её чертеж.
Проект четырехскатной крыши предусматривает, что наклон скатов такой кровли может быть в промежутке от 5 до 60 градусов. Зависит он от атмосферных нагрузок, назначения чердака и типа используемых кровельных материалов.
В районах с частыми и сильными осадками уклон скатов должен быть значительным (от 45 до 60 градусов). В регионах с сильными ветрами и редкими дождями наклон скатов обычно делается намного меньше.
Если угол наклона составляет примерно 5-18 градусов, рекомендуют использование рулонного покрытия; 14-60 — асбестоцементных листов, кровельного металла; 30-60 – черепицы.
Высота кровельного конька рассчитывается с помощью тригонометрического выражения для прямоугольных треугольников.
Расчета стропил – начало составления всего проекта дома. Сечение их определяют в зависимости от ожидаемой нагрузки (веса стропильных конструкций, пирога кровли, внешних воздействий), и степени наклона крыши. С помощью расчетов определяется и шаг между стропилами, проверяется их несущая способность.
План стропил четырехскатной крышипредусматривает какие стропила целесообразно использовать — наслонные или висячие. Также выясняется, нужны ли дополнительные элементы: раскосы, затяжкии т.д.
Если случается так, что стандартные параметры пиломатериалов не подошли для будущей кровли, можно их модифицировать. Например, вы можете увеличить длину стропил или жесдвоить балки. Также можно применять клееные или наборныестропильные ноги (они заметно мощнееи длиннее обычных).
Дом с двускатной крышой: проект +Фото — стропила до расчета цены
Часто при возведении крыши людям приходится делать довольно сложный выбор – какой вариант предпочесть.

Дело в том, что современные технологии предоставляют возможность такого выбора, позволяя в достаточно короткие сроки монтировать кровлю любого вида. В России более популярными всегда были двускатные стропильные крыши.
Раздумывая над тем, какая конструкция больше подходит, домовладелец отталкивается от многих факторов: ее функциональности, надежности и долговечности, способности предотвращать попадание осадков внутрь здания.
Возможно, этому поспособствовали особенности климатических условий нашего отечества.
Зимой на таких кровлях собирается гораздо меньше снега, ведь он скатывается с поверхности, уменьшая нагрузки на конструкцию.
Число скатов никоим образом не влияет на параметры дома, поэтому конкретный выбор зависит от предпочтений владельцев.
Двускатная крыша стропильной системы достаточно легко монтируется, она прочна и надежна в эксплуатации. Ее строение позволяет использовать множество самых разных материалов в качестве кровельных: от привычного, всем известного шифера, до модной металлочерепицы.
Общая информация об оформлении проекта
Графическая часть расчетов обязательно должна визуализировать весь спектр проводимых работ. Заказчику передается план кровли плоской крыши чертеж с подробным описанием конструкции, сертификация, а также другая необходимая документация, если она необходима для реализации проекта. На сегодняшний день, схема кровли должна обязательно создаваться, если строение оборудовано внешним водостоком. Если вы решите отдать предпочтение внутреннему типу, а само строение не является капитальным, то от создания технического рисунка можно отказаться. Благодаря виду дома сверху, легко определить геометрические характеристики перекрытия, особенности монтажа установки несущих конструкций, а также иных составляющих объекта. Кровельное покрытие (завершенный вид)
В качестве дополнения к чертежам, идет схема обустройства фронтона, в которой четко перечисляются конструктивные параметры. Если проектом обусловлена необходимость подрезки листов, важно предоставить сведенья и об этом.
Особенно ответственно следует подойти к созданию чертежей скатной кровли, которые дают возможность визуализировать дает размеры листов, а также расход материала, который будет использоваться. » alt=»»>
Дом с двускатной крышей: преимущества
Такая кровля выглядит как две наклоненные друг к другу поверхности, ориентированные по длинным сторонам дома, соединяющиеся наверху в конек. Она замечательно сочетается с классическим домом, имеющим привычную прямоугольную форму.
Среди преимуществ можно отметить:
- достаточную прочность и высоту уклона, позволяющую использовать практически любой кровельный материал;
- легкую и простую конструкцию;
- хорошо вентилируемыйчердак;
- уклон скатов, мешающий скоплению осадков.
Статья по теме: Односкатная крыша пристройки к дому своими руками
Уклон кровли является важным параметром для такого типа крыши. Для засушливой местности его оптимальный показатель составляет до 45 градусов.
Там, где количество осадков высокое, он увеличивается до 60. При проектировании кровли следует учитывать и господствующие в данной местности ветра: ведь с увеличением угла наклона увеличивается парусность этой части строения.Выбор подходящего типа кровельного покрытия зависит также и от ее уклона.
Черепицу и шифер, например, допустимо использовать лишь в том случае, если он составляет не менее 22 градусов. Конечная стоимость кровли будет зависеть также и от уклона скатов. Чем он больше, тем больше придется потратить на покрывные материалы, и тем выше окажется общая цена.
Стропила двускатной крыши: схема устройства
Из чего состоит любая стропильная система? Это сами стропила, мауэрлат для крыши, подкосы и обрешетка. Стропильные ноги своими верхними концами должны соединяться внахлест посредством специальных накладок. Нижние концы присоединяются к опорным брусьям, выполненным из бревен, а также к мауэрлату.
По проекту двускатная крыша может быть выполнена двумя способами: с висячими стропилами, или с наклонными.
Тот или иной метод выбирается исходя из размеров самого сооружения каркасного дома или беседки.
Чрезвычайно важно, чтобы расчет двускатной крыши (устройства стропильной системы) был произведен правильно. Лучше всего с этим справиться профессиональный работник, которого стоит нанять.
Крепление опорного бруса (он же мауэрлат)
Его можно провести различными методами:
- Самый надежный из них (он же самый распространенный) заключается в следующем. Когда монтируются стены, на которые потом планируется крепить опорный брус, по периметру строения создается бетонный пояс (непрерывный). Его можно заменить бетонной балкой.
В этот армопояс вделываются толстые, не менее 12 мм в диаметре, шпильки. Шпильки должны пронизывать ось мауэрлата при его креплении. От его края до края армопояса необходимо оставить примерно пять сантиметров. Расстояние между шпильками должно составлять от полутора до двух метров, таким образом, чтобы каждая часть опорного бруса была надежно закреплена по краю.

Не следует забывать хотя бы о минимальном требуемом уклоне кровли. В противном случае можно столкнуться с ее протеканием, или повреждением сильным ветром.
- Во время кладки, шпильки вмуровываются непосредственно в стену. Замуровывать их придется намного глубже, поэтому сами шпильки должны быть гораздо длиннее. Не такой надежный способ крепления, как предыдущий, но для двускатной крыши площадью менее 250 квадратов (с мансардой и без) он вполне подойдет.
- Самый доступный способ. В кладку заранее закладывается мягкая, но толстая проволока, с помощью которой потом закрепляется мауэрлат. Как это делается? Незадолго до окончания кладки, когда останется несколько рядов, между рядами помещается середина проволоки таким образом, чтобы ее концы равномерно выступали по обеим сторонам.
Схемы крепления мауэрлата
Длина их должна быть достаточной для крепления опорного мауэрлата. Чтобы проволока не была слишком заметной, ее наружный конец пропускают сквозь растворный шов между кирпичами.
Данный метод довольно распространен и весьма надежен, особенно если речь идет о строении скромных размеров (например 10 на 10)
Если стены и балки обладают несомненной прочностью, то стропила допустимо крепить непосредственно к балкам, не применяя опорный мауэрлат. План стропил крыши двускатной может предусматривать использование верхнего венца дома (рубленого) вместо мауэрлата. В отдельных случаях обязательно требуется отдельный опорный брус для кровли.
Между прогонами и стойками, для усиления устойчивости стропил, делаются подкосы. Необходимые параметры для подкосов и стропильных ног вычисляются по расчету кровли. Привычная ширина простых стропильных досок примерно пять сантиметров, высота же их до 20.
Для образования свеса, который станет надежной защитой внешней стены от осадков, затяжки или стропила выводят минимум на полметра за плоскость этой самой стены. Под мауэрлат требуется уложить хороший слой гидроизоляции, иначе срок службы сооружения будет сильно сокращен.
Можно использовать старый добрый рубероид или другой похожий материал.
Между стропилами укладывают несколько слоев утеплителя, обязательно со смещением швов. В качестве утеплителя используют материалы с низкой теплопроводностью, например, обычную минеральную вату. Кроме теплоизоляции, необходимо обустроить и пароизоляцию. Для этого с внутренней стороны утеплителя фиксируется хорошо натянутая полиэтиленовая пленка.
Используется специальная паронепроницаемая гидроизоляционная пленка. Это такая диффузная мембрана, имеющая особую перфорированную структуру. Она способна выпускать наружу попадающий из внутреннего помещения в утеплитель пар, но препятствует попаданию в него влаги снаружи.
Обрешетка: порядок сборки
После этого можно начинать непосредственный монтаж двускатной крыши по чертежу. Заключительным (перед кровельными работами) этапом завершения конструкции двускатной крыши будет сборка обрешетки. На ее изготовление идет обычно деревянный брус 6*6, 5*5 или 4*4 см.
Устанавливают ее перпендикулярно к стропилам, как предусмотрено конструкцией. Обрешетка служит для передачи и перераспределения веса кровли на стропила, которые, в свою очередь, направляют ее к несущим стенам строения. Величина шага обрешетки может быть разной, и зависит она от типа выбранного кровельного материла.Некоторым из них вообще требуется обустройство сплошного покрытия-настила. Такими являются, например, плоский шифер или мягкая кровля. А под мягкую черепицу из битума требуется еще дополнительный подкладочный ковер, монтируемый поверх настила. Он не только выравнивает его поверхность, но и защищает от ненужной влаги при укладке материалов кровли.
Для этого можно использовать специально обработанный стеклохолст, имеющий битумную пропитку.
Двускатная крыша своими руками – замечательный выбор для ответственных домовладельцев, не боящихся запачкать руки и готовых к работе. Простую конструкцию, представляющую равнобедренный треугольник в разрезе, совсем не сложно возвести самостоятельно.
Высоту спуска и угол наклона крыши можно варьировать, но непременно в границах правильно сделанных расчетов.
Тонкости подготовки плана скатной кровли
Для начала стоит отметить, что скатная кровля – это крыша, которая представляет собой сборную конструкцию листов с наклоном не больше чем 10 %. Учитывая конструктивные особенности, специалисты в области строительства выделяют два типа кровли – с чердаком или без него. Самый распространенный и востребованный вариант – это крыша, состоящая из 2 скатов. Такая конструкция может быть применима к любому строению. В разрезе она напоминает треугольник, а готовая схема должна содержать подробные сведения о таких показателях, как: длина, расположения каждого из элементов, а также сечении. Крайне важно еще в процессе проектирования определится с принципом крепления узлов, а также зафиксировать эту в нормативно-технической документации по объекту. Плоская крыша с утеплителем
Графическая составляющая проекта отображает длину стен здания, расположение стропил и балок, а также наиболее оптимальный угол ската
Подбирая кровельный материал, обращайте внимание на такие характеристики:
- для профнастила важно создать наклон не менее 8 градусов ;
- в случае использования шифера этот показатель возрастает до 20-30 градусов;
- применяя рубероид или же схожие рулонные материалы — 5 градусов;
- отдавая предпочтение металлочерепицы, угол наклона не может быть меньше чем 30 градусов.

Будьте уверены, что дома с таким типом крыш, смотрятся действительно дорого и стильно. Кроме того, вы получите возможность обустроить дополнительные мансардные этажи, тем самым увеличив количество полезной площади. Все помещения здания, будут не только просторными, но и максимально комфортными для проживания.
Но, несмотря на перечисленные преимущества, установка скатной кровли – это дело не из легких. При создании плана крыши, лучше всего воспользуйтесь услугами профессионалов, так как малейшая ошибка, может быть чревата огромными временными и денежными затратами на ее устранение.
Визуализация процесса укладки » alt=»»>
Устройство стропильной системы двухскатной крыши: сборка и установка
Крыша – этот тот элемент конструкции дома, который придает ему неповторимый вид. Вариантов сооружения такого конструкционного элемента – великое множество. Но есть среди них одна, двухскатная, вид которой замечательным образом меняется в зависимости от угла наклона ската.
Статья по теме: Как выровнять крышу дома
Чтобы строение было максимально прочным, надежным и долговечным устройство стропильной системы двухскатной крыши должно быть продумано еще на этапе разработки проекта дома. Грамотно выполненная конструкция должна быть способна справиться с постоянными нагрузками, скажем, весом кровли, а также с временными, которые преподносит природа – снеговыми, ветровыми, дождевыми. Самым оптимальным считается план двухскатной крыши, в котором стропильные ноги своими концами упираются в опорный брус, так называемый мауэрлат , и особым образом фиксируются. В этом случае нагрузку удается равномерно распределить по периметру дома.
Выбор типа крыши
Прежде чем составить план кровли, необходимо предварительно выбрать стройматериалы для ее гидро-, тепло- и пароизоляции, а также подобрать вид покрытия крыши. Следует также определить точные размеры будущей конструкции с внесением точных их значений в план ее строительства. Когда уже известна кровельная конструкция, составлен план — можно приобретать нужный объем стройматериалов и начинать строительство этого элемента дома.
Чтобы определить окончательный вид будущей кровли, нужно узнать существующие виды кровли. Выделяют 6 главных типов крыш: одно-, дву- и многоскатные; вальмовые; щипцовые и полувальмовые.
Это тоже важно знать: Калькулятор кровли: смета на строительство
Простейшие типы кровель – без изломов или плоские. Однако чаще всего на домах возводятся многоскатные или вальмовые кровли. Для крыш таких типов важны правильные расчеты стройматериалов и расчет нагрузки на несущие части конструкции, чтобы защита дома сверху получилась надежной и качественной.
Поверхности многоскатных кровель часто имеют треугольную и трапециевидную форму. Скатные плоскости вальмовых крыш имеют абсолютно разную неповторяющуюся форму, что позволяет создать крышу и дом с неповторимым внешним видом.
Конструкция системы стропил ↑
Как уже было отмечено, залогом прочности любой крыши является ее стропильная система. По конструкции они подразделяются на наслонные и висячие .
Висячая ↑
Висячие стропила представляют собой брусья, имеющие только две точки опоры, а именно стены дома.
На каждую ногу в этом случае действуют в основном нагрузки двух типов – изгиб и сжатие.
Висячие передают по горизонтали приходящуюся на них нагрузку (вес кровли, снеговую, ветровую) на свои точки опоры, то есть на стены, как разводящее усилие. Для снижения его влияния стропила соединяют деревянной или металлической затяжкой. В стропильное устройство ломаной двухскатной крыши подобные затяжки – балки перекрытия. При величине пролета от 8 м, под каждую ферму дополнительно устанавливают бабки с подкосами.
Наслонная ↑
Наслонные стропила представляют собой брусья, имеющие промежуточную подпорку, которая опирается на дополнительные опоры или внутреннюю стену дома. Основное воздействие этой системы на опоры – изгиб. В несущей конструкции крыши можно использовать только наслонные, если промежуточные опоры находятся друг от друга на расстоянии до 6.5 м.
Наслонная конструкция легче, чем система висячая или комбинированная.
Схема также может содержать элементы будущей мансарды .
Вертикальные стойки, укрепленные подкосами и ригелями, которые устанавливают в этом случае, могут служить в будущем частью мансарды. Опорой для них служат балки перекрытия. Читайте : Монтаж стропильной системы двухскатной крыши .
Как выполняется чертеж крыши?
Первым делом происходит деление всей площади дома на несколько прямоугольников, которые обводятся линиями для обозначения, наружных и внутренних скосов. Некоторые из них будут несколько выходить за границу стен, так как любая крыша должна иметь определенный свес. Визуализация видов фасада и сбоку происходит с учетом угла наклона. Во время создания графической части чертежа крыши, настоятельно рекомендуется применять специальное программное обеспечение, которое можно без труда найти на строительных порталах. » alt=»»> Все работы происходят в следующей последовательности:
- Первым делом, сооружение обводится линиями.
- Сделанные отметки переносятся на план кровли плоской крыши с контурами несущих стен.

- Каждый из прямоугольников выделяется, под ним создаются рисунки будущей кровли.
- Расположение коньков также отмечается линиями.
- Визуализируются ендовы, а также коньки.
- На чертеж обязательно необходимо перенести вентиляционные каналы, а также окна, размещенные на мансардном этаже.
- Проставляются углы наклона скатов, а также направленность водостоков.
- Отмечаются все размеры по осям схемы.
План плоской кровли составляется быстро, но только если за его выполнение возьмутся опытные специалисты. Если вы не имеете навыков в этом деле и никогда ранее не сталкивались с проектами крыш, то лучше всего не пытайтесь создать все необходимые чертежи самостоятельно, ведь крыша – это один из важнейших элементов любого строения. От качества ее монтажа, зачастую, напрямую зависит долговечность дома, а также комфорт проживания в нем.
Установка стропильной системы ↑
Способы монтажа мауэрлата ↑
В домах, которые сложены из бревен или бруса, опорой нижней части стропил служит верхний венец, а в кирпичных или каменных – специальный опорный брус, мауэрлат.
Его укладывают на гидроизоляционную прокладку с внутренней стороны стены по чердаку.
Мауэрлат фиксируют к стене:
- посредством армирующего пояса (на бетон шпильками), на шпильки, вмурованные в кладку стен, с помощью катанки.
Шпилька представляет собой металлический прут с резьбой. Ее длину выбирают из расчета, что одной половиной шпилька будет вмурована в стену, а выступающей части должно на 3–4 см хватить, чтобы поверх мауэрлата закрутить гайку.
Коньковый прогон ↑
Конструкция двухскатной крыши своей верхней частью опирается на так называемый коньковый прогон. Он представляет собой бревно или брус, к которому крепят верхние концы стропильных ног. Именно этот прогон будет в дальнейшем служить коньком крыши.
- При длине дома до 6 м допускается готовить коньковый прогон из единого бруса или бревна. Он может при этом опираться в два фронтона без дополнительных опор. При длине дома более 6 для монтажа составного конькового прогона используют строительные фермы.

Дополнительные элементы ↑
- Боковые прогоны служат дополнительной опорой для самой системы. Опорой для них служат либо строительные фермы, либо фронтоны дома. Если конструкция тяжелая, прогоны делают в виде «строительного подъема» или коромысла. Подкосы помогают разгрузить стропила в центре. Их устанавливают под все «ноги» под углом в 45° и больше. Таким образом можно устраивать двухскатную крышу до 14 м. Раскосы (диагональные балки) укрепляют стропила и помогают фронтонам противостоять сильным ветровым нагрузкам. Опора их верхней части – угол фронтона, нижней – центральная балка перекрытия.
Порядок монтажа ↑
Стропила можно устанавливать двумя способами:
- собрать ферму на земле и поднять ее наверх; собрать фермы прямо на месте установки.
Выбор способа установки, конечно, за исполнителем, однако, в любом случае при создании однотипных ферм удобнее использовать шаблон, согласно которому стропила будут подрезаться и соединяться.
Сделать подобный шаблон совсем нетрудно.
- Для этого берут две доски, чуть длиннее стропил, подымают наверх и устанавливают наподобие будущего строения. Выравнивают их по вертикали так, чтобы верхушка конька при этом была установлена в соответствии с чертежом, доски соединяют одним гвоздем. Опуская или подымая концы досок, добиваются требуемого угла наклона и соединяют доски при помощи поперечной планки и таким образом зафиксируют их в нужном положении. Чистовой вариант подгоняют под этот шаблон и соединяют.
Чертеж кровли из металлочерепицы (114 фото) — фото
Металлочерепица монтаж чертеж
Элементы кровли здания
Тех карта на монтаж кровли
Крыша из металлочерепицы утепленная 200 мм слышимость
Монтаж капельника и карнизной планки
Узел примыкания скатной кровли
Шаг обрешетки под металлочерепицу доска 150х25
Схема устройства утепленной кровли
Узел скатной кровли с холодным чердаком
Узел ендовы черепичной кровли чертеж
Коньковый аэратор ТЕХНОНИКОЛЬ схема монтажа
Схема гибкой кровли ТЕХНОНИКОЛЬ
План раскладки металлочерепицы
Металлочерепица пирог кровли холодный чердак
Конструкция кровли из гибкой черепицы чертежи
Комплект чертежей для крыши
Порядок укладки металлочерепицы на двухскатную крышу
Кровельные мостики Ruukki
Типы кровли
Узел свеса скатной кровли карниз
Элементы четырехскатной кровли металлочерепица схема
Схема стропильной системы под цементную
Схема устройства кровли холодного чердака
Узел свеса скатной кровли
Схема устройства кровли холодного чердака
Водосток карнизный свес капельник
Коньковый узел плоской кровли из профлиста
Схема кровля крыши металлочерепицей с утеплением
Вентиляция в кровле из металлочерепицы схема
Конструкция кровли с цементно песчаной черепицей
Исполнительная схема на демонтаж кровли
Схема односкатной кровли из металлочерепицы
Схема обрешетки крыши под металлочерепицу
Укладка гидроизоляционной пленки на кровле схема
Металлочерепица пирог холодной кровли
Кровля металлопрофиль разрез
Конструкция кровли из цементно-песчаной черепицы
Монтаж металлочерепицы схема крепления
Коньковый узел стропильной кровли
Конструкция кровли Монтерей
Технологическая карта устройство стропильной системы
План скатной кровли чертеж
Узел деформационного шва в сэндвич панелях
Кровля профнастил чертеж
Узлы стропильных кровель с утеплением
Схема раскладки металлочерепицы на кровле
Технология монтажа черепицы Браас
Узел холодной кровли из металлочерепицы
Коньковый узел скатной кровли
Обрешетка кровли
Узел утепления мансарды чертеж
Схема укладки кровельного пирога
Узел примыкания стропил
Устройство двускатной крыши схема
Теплый чердак с деревянной стропильной системой
Узел карнизного свеса мягкой кровли ТЕХНОНИКОЛЬ
План кровли Примечания
Узел кровли с холодным чердаком
Устройство крыши из металлочерепицы с утеплением схема
Коньковый узел кровли из гибкой черепицы
Узел свеса скатной кровли
Вентиляция кровли из мягкой черепицы схема
Пирог кровли из металлочерепицы с утеплителем
Кровельный пирог с капельником
Обрешётка под металлочерепицу Каскад шаг обрешетки
Узел скатной крыши с мансардой
Теплый чердак с деревянной стропильной системой
Кровельная система «МЕТАЛЛПРОФИЛЬ» ширина планки
Схема монтажа металлочерепицы Монтеррей
Обрешетка и контробрешетка под металлочерепицу
Ходовые доски кровли кровли
Теплый чердак состав кровли
Металлочерепица коньковый узел
Конструкция холодной кровли схема
1 Скатная крыша
Чертеж кровли из профилированного листа
Металлочерепица Монтеррей технологическая карта
Схема устройства мягкой кровли с утеплителем
Узел утепления мансарды чертеж
Монтаж обрешетки для металлочерепицы Монтеррей
Фальцевая кровля карнизный узел чертеж
Узел скатной кровли с холодным чердаком
Чертеж коньковый узел металлочерепицы
Схемы ассиметричной крыши
Гидроизоляция крыши Изоспан под металлочерепицу
Узел конька кровли металлочерепицы
Коньковая планка для металлочерепицы монтаж
Схема крепления металлочерепицы Монтеррей
Пирог кровли ТЕХНОНИКОЛЬ мягкая черепица
Кровля под мягкую черепицу с холодным чердаком
Коньковый узел скатной кровли
Монтажная схема металлочерепицы
Узел карнизного свеса кровли из профнастила
Коньковый узел кровли из гибкой черепицы
Узел ендовы металлочерепицы
Угол конька вальмовой крыши
Схема укладки металлочерепицы м28
Технологическая карта на монтаж профнастила кровли
Утепленная кровля из металлочерепицы схема
Узел ендовы черепичной кровли чертеж
Обрешетка на крышу схема Размеры
План укладки кровли
Схема устройства обрешетки под металлочерепицу
Перекрытие крыши на металлочерепица
Устройство крыши из металлочерепицы с утеплением схема
Чертеж узел металлочерепица
ТЕХНОНИКОЛЬ мягкая кровля холодный чердак
Вентиляция кровли из мягкой черепицы схема
Пирог кровли с железными стропилами
Карнизная планка металлочерепица на кровле
Стык конька на вальмовой крыше
Ендова на плане плоской кровли
Холодный чердак обустройство кровли гибкая черепица
Схема обрешетки под металлочерепицу Монтеррей
Чертеж двухскатной крыши дома
План и чертежи двускатной кровли
Сложно представить постройку без надежной крыши над ней.
Любая кровля является основой, главным гарантом неприкосновенности вещей в доме, сохранности имущества. Она является главным защитником от дождя и снега, ветра. После ее возведения можно переходить на следующий этап, подразумевающий внутренние работы. Сделав эту часть ненадежной, не приходится говорить о полноценном жилище. Двухскатная крыша, возведенная своими руками, является вариантом, наиболее простым и функциональным среди других видов кровли.
Части крыши
Существует несколько вариантов крыш, одна из которых – двускатная. Для возведения не потребуется много таланта, так как данный тип кровли является самым простым. Состоит элемент жилища из частей, указанных на рисунке: » alt=»»> Состоит конструкция из следующих частей: Конек. Верхняя часть, которая соединит 2 ската. Стойка. Установка, служащая для перераспределения веса от верха к низу кровли. Делать ее необходимо из качественных материалов. Лежень. Брус, расположенный горизонтально.
Соединяет стойку и несущую стену.
Вид кровли изнутри
Начало конька
Начало конька Подкосы. Эти доски закрепляются под небольшим углом. Служат для перераспределения веса от стропил к несущим элементам внизу.
» alt=»»> Стропильная нога. Эти элементы образуют видимый контур в форме треугольника. Служат для удерживания кровельного покрытия. Чем оно будет тяжелей, тем чаще необходимо прокладывать стропила. Кобылки. Доски, которые удлиняют стропила. Необходимы для создания свеса с двускатной крыши, по строительным нормам который должен быть не меньше 0,5 м.
Простая двускатная кровля
Кобылки в схематическом виде
Различие между стропилами План кровли двухскатной крыши и чертеж вполне реально выполнить своими силами. Сконструировать все элементы можно несколькими способами. Различие составляет стропильная система, используемая для возведения. Бывают следующие виды стропил:
- Наслонные. Здесь необходима установка дополнительных опорных балок, располагаемых посередине несущих стен.
Стропила часть нагрузки будут отдавать внутренним устройствам, чтобы облегчить вес. Используется тип стропил, если крыша, возведенная своими руками, тяжелая, при больших площадях жилища, существенных расстояниях до стен (более 10 метров).Виды стропильных систем
- Висячие. Опорой для них служит только боковое перекрытие. При возведении таких систем, необходимо делать затяжки, чтобы убрать распирание балок другими материалами. Делать их допустимо как сверху, так и снизу. Стоит учитывать, что при монтаже верхних затяжек, делается отступ не более полуметра.
- При сильных ветрах в зоне строительства, угол делается около 10-12о, чтобы кровля не была сорвана.
- При значительных зимних осадках, уклон производится в пределах 30-40о. снег будет легко съезжать с покрытия. Сложностей при расчетах не возникает никаких, но если кровля делается со сложной формой, это затруднит подсчет требуемых величин.
Системы используются во многих жилищах, качество у обеих достаточное для комфортного пользования. При возведении мансардной крыши, используются совместно. В таком случае комбинируется висячий и наклонный тип стропил. Стоит создать чертежи стропил, которые покажут расположение каждого элемента крыши, возведенной своими руками, чтобы не было непонятных моментов. Он поможет рассчитать количество необходимых материалов.
Любой элемент дома необходимо создавать, понимая, как все это будет выглядеть в результате. Для наглядности создается чертеж, а чтобы все легло идеально, заранее рассчитывается. В плане учитывается длина кровли по коньку, длина скатов, отдельно показывается длина отвесов. Определяется угол наклона кровли. Определение угла производится с учетом следующих моментов:
Нюансы чертежа
Правильно созданный чертеж будущей кровли в обязательном порядке должен включать в себя достаточно полные сведения о параметрах элементов, располагаемых на этой плоскости. Под параметрами понимаются величины, указывающие на сечение, длину и ширину.
Помимо основных элементов план плоской кровли обязан включать в себя разбор крепежных приспособлений и деталей, когда чертеж может обойтись и без этого.
Если рассматривать план скатной кровли, то здесь можно увидеть значения, указывающие расстояние от карнизного свеса до конька, длину стен здания и описывают характеристики стропильных ног.
После выбора кровельного покрытия необходимо создать правильную систему, которая позволить эксплуатировать приобретенные продукт по всем правилам и нормам.
- Для профилированных металлических листов минимальный уклон должен составлять порядка 8 градусов
- Для металлочерепицы – 30 градусов
- При использовании мягкий рулонных материалов, например, рубероида, уклон задается более 5 градусов
- Для волнистых асбестоцементных листов параметр приемлемого наклона находится в диапазоне 20-30 градусов
Помните, что плоская крыша не является в действительности таковой. Ее поверхность должна подвергаться разуклонке, дабы атмосферные осадки могли самостоятельно покидать поверхность.
Все параметры наклона должны указываться на плане.
Строительство кровли
После произведения расчетов и приобретения необходимых частей, выполняется установка мауэрлата. После этого создается обрешетка. Элемент является основой для крыши, возведенной своими руками, делается из сосны или другой хвойной древесины. Материал прочный и легкий, способный раскидать вес всех элементов по всей плоскости. Размещается вдоль кровельных скатов, между стропильными ногами, верхом стенок.
Мауэрлат
Чтобы элемент прослужил дольше, необходима изоляционная прослойка между стенкой и ним. Подойдет для этого рубероид. Закрепляться мауэрлат может с помощью любых элементов крепежа, которые будут удобны. Для возведения кровли необходимо следовать плану:
- Закрепление стропил. Если используются висячие, собирать их необходимо заранее, используя крепежные элементы для придания жесткости данной части. Сначала делаются крайние элементы, после внутренние. При наслонной системе создается вначале лежень, где установятся опоры.
Если длина элементов недостаточная, можно добавить ее с помощью установки кобылок.
Установка обрешетки. Использовать для возведения можно любые материалы, но важно избавиться от коры с досок, чтобы увеличить срок службы элементов. Если планируется использовать мягкую кровлю, обрешетка делается сплошной. Здесь требуется жесткая основа, чтобы не было деформации при эксплуатации.
Сплошная обрешетка
Решетчатая. Делается при использовании жестких видов покрытия: шифера, металлочерепицы.
Решетчатая система
Укладка кровли. Материалов покрытия множество, каждый из них предполагает использование разных методов покрытия. Не стоит пренебрегать рекомендациями производителя материала. Важно делать небольшой нахлест между элементами. Структура не должна быть нарушена, чтобы не возникло протечек. Не стоит забывать, что надежная крыша, возведенная своими руками – гарантия сохранности имущества в доме. Не стоит пренебрежительно относиться к ее возведению, чтобы потом не пришлось производить сложный ремонт.
Конструкция стропильной системы крыши
Итак, каждое строение имеет кровлю, которая на чем-то держится. Именно эта опора, без которой монтаж крыши просто-напросто не был бы возможен, и называется стропильной системой. Состоит она из множества конструктивных элементов, к ним относятся раскосы, стойки, коньковый прогон, обрешётки с контробрешеткой и др. По сути, ее значимость сопоставима со скелетом в теле человека.
В качестве же строительного материала в основном выступает дерево. Однако не стоит думать, что подойдет абсолютно любая древесина, абы были выдержаны размеры. Для этой цели берут только качественные материалы, желательно хвойных пород. Кроме того, они должны быть хорошо просушены в естественных условиях. Также перед применением все элементы необходимо обработать специальным антисептиком, предотвращающим появление грибка, плесени, гниения и повреждение термитами. Побеспокойтесь еще и о пожарной безопасности, для этого также продаются различные виды специальных растворов.
Статья по теме: Как строить крышу и настилать кровлю
Особенностью всех новых построек непременно будет усадка, поэтому многие строители советуют устанавливать плавающие стропила. Их схема приниципиально не отличается от выбранной вами, доработка проводится только для крепления ноги и конькового бруса. Производят установку без жесткой фиксации, и в процессе усадки стропила могут немного изменить расположение своих элементов, при этом не видоизменяясь и не теряя в прочности. В противном случае части конструкции могут прогнуться или даже сломаться.
Двухскатная крыша и виды стропильной системы для нее
Как понятно из названия, устройство двухскатной конструкции предполагает два крыла, т. е. наклонные плоскости, соединяющиеся между собой в самой верхней части. Что же насчет низа, так он упирается в стены постройки. Передний и задний фронтоны могут быть кирпичными, выложенными из шлакоблока или иного строительного материала. Кроме того, их нередко декорируют, тем более что на сегодняшний день существует масса способов придать этому элементу неповторимый вид.
Данная конструкция стропильной системы крыши имеет множество плюсов, например, возможность обустроить чердачное помещение, конечно, для проживания оно не годится, но хранить там вещи вполне реально. Также появившееся пространство часто используют как мансарду. Кроме того, это достаточно экономный вариант, а вероятность протекания минимальна.
Теперь стоит немного остановиться на том, какие варианты стропильных систем двухскатной крыши существуют. Итак, есть висячие и наслонные виды конструкций. В первом случае опорой является конек кровли, а во втором стены дома, а также дополнительная промежуточная опора, например, средняя несущая стена. Отличаются эти стропила и принципом службы.
Балки висячей системы работают одновременно и на сжатие, и на изгиб, что же наcчет наслонных, так в этом случае упор идет только на изгиб.
Оптимальный вариант — комбинированное устройство двухскатной крыши (чередование наслонных и висячих стропильных элементов).
Используя такой способ можно не только сэкономить строительный материал, но и сделать конструкцию несколько прочнее, а это нелишнее. Ведь на эту часть дома приходятся большие нагрузки, например, иногда человек вынужден забраться на нее, чтобы отреставрировать, кроме того, не стоит недооценивать силу ветров, снега, ливня и т. д. Так что независимо от вида выбранной стропильной системы двухскатной крыши конструкция обязательно должна быть достаточно надежной и крепкой.
Выбор типа крыши
При определении конструкции учитывают вид здания и требуемый срок эксплуатации, обращают внимание на климат региона и наклон скатов. В детских учреждениях, школах, больницах принимают к сведению огнестойкость кровельного материала. Для частного сектора имеет значение стоимость возведения крыши, возможность ремонта и прочность.
Тип крыши выбирают среди разновидностей строения:
- плоская;
- односкатная
- двухскатная;
- четырехскатная;
- многощипцовая;
- крыша мансарды;
- другие нестандартные варианты.

Некоторые конструкции являются популярными, например, плоские, скатные, мансардные крыши. Другие разновидности применяют реже, например, многощипцовые, купольные и шпилеобразные.
Плоская
Плоская кровля
Простую в возведении конструкцию чаще используют в многоэтажных домах, где большая площадь покрытия и малый уклон. Ранее применяли кровельные материалы старого образца, которые не гарантировали длительность эксплуатации. С развитием современных рулонных покрытий (еврорубероид, каучуковые и ПВХ пленки), а также мастичных напыляемых составов популярность такого типа крыши возрастает.
Плоские кровли предусматривают:
- эксплуатируемые;
- неэксплуатируемые.
Первый вид делают с прочным каркасом и покрытием, которое выдерживает соответствующие нагрузки. На плане эксплуатируемой кровли показывают места прохода людей, мостики. Используемые покрытия содержат на поверхности различные сооружения, например, бассейны, кафе.
Односкатная
Крышу частного дома редко делают со скосом на одну сторону, чаще такой тип применяют для сараев, гаражей и других подсобных помещений, ставят на пристройках и верандах.
Основные конструктивы делают из древесины, иногда используют железные элементы. Крыши с небольшим наклоном отделывают рулонными материалами, а скаты большой крутизны покрывают листовой сталью, металлочерепицей.
Односкатные строения бывают:
- с чердаком;
- без чердачного помещения.
Экономия материалов для односкатной крыши по сравнению с двускатной такой же квадратуры составляет около 30 – 35%. Крыши с одним скатом имеют простую конструкцию, которую можно сделать своими руками. Если в районе наблюдается постоянное направление ветра, такое строение является самым безопасным вариантом.
Двускатная
Вверху соединяются две плоскости скатов под определенным углом, при этом по бокам остаются вертикальные поверхности треугольной формы (фронтоны).
Достоинства двухскатной конструкции:
- практичность и органичный вид;
- большое дополнительное помещение под кровлей для работы или отдыха;
- в пространстве чердака размещают приборы отопления и вентиляции;
- подходит любой вид материала.

С крыши начиная от уклона 20° самостоятельно сходит снег, поэтому исключается чистка, если дополнительно поставить снегозадержатели, расположение которых указывают на плане скатной кровли. Недостаток в том, что устройство мансарды требует усложнения строения, а летом нагревается верхняя часть. Двухскатные крыши могут выполняться с неодинаковой длиной скатов под разными углами.
Четырехскатная
Это вальмовая крыша или полувальмовая. Такая конструкция отличается повышенной прочностью за счет своего строения. План сверху представляет собой вид конверта, в четырехскатной крыше нет фронтонов. В строении несущей системы используют наслонные и висячие стропила, соединяют их стандартными способами.
Четырехскатная кровля имеет 2 трапециевидных и 2 треугольных ската, которые соприкасаются ребрами. Есть варианты, когда наклонные плоскости собираются наверху в одной точке — шатровая крыша. Выбор типа четырехскатного покрытия зависит от назначения постройки и его размеров в плане.
Квадратные строения накрывают шатровой крышей, а прямоугольные строят с вальмовой разновидностью.
Многощипцовая
Такое сооружение относится к самым сложным из-за большого числа смыкающихся плоскостей в разных направлениях. Архитектурные элементы делают верх строения оригинальным и привлекательным, но проектирование требует точных расчетов соединяющихся плоскостей. Протяженные выступающие линии называют щипцами, помимо этого в конструкции присутствует много разуклонок и ендовых.
Необходимость в щипцовом строении возникает, если делают пристройку, а ее покрытие должно быть в одном стиле с крышей здания. Другой потребностью в сложном строении является устройство заглубленных окон или организация боковых остеклений в мансарде.
Многощипцовая кровля относится к прочным конструкциям из-за большого числа поперечных ребер жесткости, которые усиливают строение.
Мансардная крыша
Дополнительное помещение располагают под одно и двухскатными, вальмовыми и шатровыми крышами.
Ее расположение (ломанное или симметричное) определяет строение верхнего настила. Проект учитывает освещение мансарды, боковые и верхние окна и представляется более сложным, чем план плоской кровли. Часто верхнее покрытие совмещают с остеклением, поэтому конструкция требует тщательной разработки перед началом работ.
Схему выбирают в совокупности с архитектурными формами, учитывая назначение помещения. Крутые скаты покрывают материалом, который может самоочищаться от снега или ставят дополнительные защитные планки для кровли. Используют профнастил, натуральную и искусственную черепицу, листовую сталь.
Нестандартные крыши
Строительство нестандартной кровли ведет к перерасходу материала
Сложные кровли встречаются редко из-за специфического проектирования и большого объема применяемых материалов.
К нестандартным видам относят конструкции:
- куполообразные крыши;
- полукупольные;
- складчатый;
- шпилеобразные.
Шарообразная крыша опирается по окружности на строение круглой формы.
Полукупольная соединяется с двумя скатами, при этом с двух боков или одного она отличается овальной планировкой.
Складчатые крыши делают пирамидальными, купольнными, шатровыми, сводчатыми, при этом ярусы имеют похожее строение и находятся друг над другом, уменьшаясь в размерах кверху. Шпилеобразные кровли вытянуты по вертикали при небольших размерах в основании, смотрятся красиво, но способствуют перерасходу материалов.
Как сделать стропильную систему двухскатной крыши своими руками — пошаговя схема
Шаг 1: Устройство основания под стропила
Непосредственно к монтажу стропильной системы крыши можно приступать только после того, как будут установлены фронтон, конек, мауэрлат, а также балки перекрытия (для мансарды берутся брусья большего сечения). Кроме того, следует застелить на перекрытие доски, которые будут служить полом мансарды либо чердака, в зависимости от назначения помещения.
Шаг 2: Подготовка материала
Конечно же, подготовить рабочее место нужно в первую очередь, однако то, насколько прочной будет конструкция стропильной системы вашей двухскатной крыши во многом зависит от качества материала.
Так что покупаем только высококачественный лес — наиболее подходящие для данной цели балки с размером сечения от 50х100 мм. Меньший размер не всегда способен служить долгое время, а во время сильных ветров или схода снега вы будете слышать жалостливый скрип дерева. Не забудьте обработать их всеми необходимыми средствами, о них уже говорилось несколько выше. Далее осуществляем раскрой элементов для стропильной системы. Намного удобнее делать это на земле, а потом поднимать готовые детали. На коньке следует сделать пропилы, в которых он будет стыковаться с ногами стропил.
Шаг 3: Монтаж
Установив конек, следует отметить и места крепления балок к мауэрлату и сделать там пазы. В первую очередь устанавливаются крайние балки. Затем между ними натягивается прочная нить (подойдет леска), чтобы легче было выставлять промежуточные ноги. Крепятся же балки к коньку длинными гвоздями, а вот чтобы осуществить их фиксацию к мауэрлату, понадобятся анкерные болты. Чтобы увеличить надежность двухскатной конструкции следует установить дополнительные распорки, они также прибиваются гвоздями.
Составление чертежа
Проектирование крыш берет начало с расчета стропильной системы. В первую очередь определяются с формой стропил, их шириной, а также расстоянием между отдельными элементами, для чего учитывается:
- Требуемый наклон;
- Какой кровельный материал будет использоваться;
- Климатические условия в конкретном регионе.
После этого следует определиться с количеством элементов в стропильной системе. Стропильная конструкция может быть наклонной или висячей. Висячие конструкции стропильной системы опираются на внешние стены, а наклонные закрепляются с помощью колонн.
Немаловажным этапом проектирования крыши является выбор обрешетки. Обрешетка может быть как сплошной, так и промежуточной. Сплошные типы обрешетки используются для укладки мягкой кровли, а промежуточные для листовой или волнистой кровли. Рассчитывая обрешетку, необходимо иметь в виду наклон скатов стропильной системы и используемый кровельный материал.
Схема устройства стропильной системы кровли
Также при проектировании крыши необходимо предусмотреть крепеж и усиливающие элементы, если такие могут понадобиться.
Некоторые застройщики предусматривают установку флюгеров на своих крышах. В настоящее время этот элемент стал лишь декоративным дополнением дома, и для определения направления и силы ветра в наш цифровой век его редко используют.
Дом с двускатной крышой: проект +Фото — стропила до расчета цены
Часто при возведении крыши людям приходится делать довольно сложный выбор – какой вариант предпочесть.
Дело в том, что современные технологии предоставляют возможность такого выбора, позволяя в достаточно короткие сроки монтировать кровлю любого вида. В России более популярными всегда были двускатные стропильные крыши.
Раздумывая над тем, какая конструкция больше подходит, домовладелец отталкивается от многих факторов: ее функциональности, надежности и долговечности, способности предотвращать попадание осадков внутрь здания.
Возможно, этому поспособствовали особенности климатических условий нашего отечества.
Зимой на таких кровлях собирается гораздо меньше снега, ведь он скатывается с поверхности, уменьшая нагрузки на конструкцию.
Число скатов никоим образом не влияет на параметры дома, поэтому конкретный выбор зависит от предпочтений владельцев.
Двускатная крыша стропильной системы достаточно легко монтируется, она прочна и надежна в эксплуатации. Ее строение позволяет использовать множество самых разных материалов в качестве кровельных: от привычного, всем известного шифера, до модной металлочерепицы.
Четырехскатная крыша — основные принципы создания проекта современного жилища
Презентабельный внешний вид, надежность, долговечность – все это четырехскатная крыша, чертеж, расчет и монтаж которой, конечно, довольно сложно сделать самостоятельно, но ведь всегда можно обратиться за помощью к квалифицированным специалистам.
Заметное преимущество четырехскатных крыш состоит в том, что в таких постройках очень удобно оборудовать мансардные этажи. Помещения получаются очень комфортными и просторными, идеально подходят для проживания в отличие от домов, например, с двухскатными крышами.
В настоящее время стало появляться все больше зданий, выполненных по такому плану. Плюс многоскатной крыши – возможность применения на абсолютно разных постройках, от бани до крупного частного коттеджа.
Дома с четырехскатными крышами выглядят по-настоящему добротно и дорого, и поэтому, не стоит жалеть время и средства на её обустройство.
Дом с двускатной крышей: преимущества
Такая кровля выглядит как две наклоненные друг к другу поверхности, ориентированные по длинным сторонам дома, соединяющиеся наверху в конек. Она замечательно сочетается с классическим домом, имеющим привычную прямоугольную форму.
Среди преимуществ можно отметить:
- достаточную прочность и высоту уклона, позволяющую использовать практически любой кровельный материал;
- легкую и простую конструкцию;
- хорошо вентилируемыйчердак;
- уклон скатов, мешающий скоплению осадков.
Статья по теме: Стропильная система двухскатной крыши своими руками
Уклон кровли является важным параметром для такого типа крыши.
Для засушливой местности его оптимальный показатель составляет до 45 градусов. Там, где количество осадков высокое, он увеличивается до 60. При проектировании кровли следует учитывать и господствующие в данной местности ветра: ведь с увеличением угла наклона увеличивается парусность этой части строения.
Выбор подходящего типа кровельного покрытия зависит также и от ее уклона.
Черепицу и шифер, например, допустимо использовать лишь в том случае, если он составляет не менее 22 градусов. Конечная стоимость кровли будет зависеть также и от уклона скатов. Чем он больше, тем больше придется потратить на покрывные материалы, и тем выше окажется общая цена.
Стропила двускатной крыши: схема устройства
Из чего состоит любая стропильная система? Это сами стропила, мауэрлат для крыши, подкосы и обрешетка. Стропильные ноги своими верхними концами должны соединяться внахлест посредством специальных накладок. Нижние концы присоединяются к опорным брусьям, выполненным из бревен, а также к мауэрлату.
По проекту двускатная крыша может быть выполнена двумя способами: с висячими стропилами, или с наклонными. Тот или иной метод выбирается исходя из размеров самого сооружения каркасного дома или беседки.
Чрезвычайно важно, чтобы расчет двускатной крыши (устройства стропильной системы) был произведен правильно. Лучше всего с этим справиться профессиональный работник, которого стоит нанять.
Крепление опорного бруса (он же мауэрлат)
Его можно провести различными методами:
- Самый надежный из них (он же самый распространенный) заключается в следующем. Когда монтируются стены, на которые потом планируется крепить опорный брус, по периметру строения создается бетонный пояс (непрерывный). Его можно заменить бетонной балкой.
В этот армопояс вделываются толстые, не менее 12 мм в диаметре, шпильки. Шпильки должны пронизывать ось мауэрлата при его креплении. От его края до края армопояса необходимо оставить примерно пять сантиметров.
Расстояние между шпильками должно составлять от полутора до двух метров, таким образом, чтобы каждая часть опорного бруса была надежно закреплена по краю.
Не следует забывать хотя бы о минимальном требуемом уклоне кровли. В противном случае можно столкнуться с ее протеканием, или повреждением сильным ветром.
- Во время кладки, шпильки вмуровываются непосредственно в стену. Замуровывать их придется намного глубже, поэтому сами шпильки должны быть гораздо длиннее. Не такой надежный способ крепления, как предыдущий, но для двускатной крыши площадью менее 250 квадратов (с мансардой и без) он вполне подойдет.
- Самый доступный способ. В кладку заранее закладывается мягкая, но толстая проволока, с помощью которой потом закрепляется мауэрлат. Как это делается? Незадолго до окончания кладки, когда останется несколько рядов, между рядами помещается середина проволоки таким образом, чтобы ее концы равномерно выступали по обеим сторонам.
Схемы крепления мауэрлата
Длина их должна быть достаточной для крепления опорного мауэрлата.
Чтобы проволока не была слишком заметной, ее наружный конец пропускают сквозь растворный шов между кирпичами. Данный метод довольно распространен и весьма надежен, особенно если речь идет о строении скромных размеров (например 10 на 10)
Если стены и балки обладают несомненной прочностью, то стропила допустимо крепить непосредственно к балкам, не применяя опорный мауэрлат. План стропил крыши двускатной может предусматривать использование верхнего венца дома (рубленого) вместо мауэрлата. В отдельных случаях обязательно требуется отдельный опорный брус для кровли.
Между прогонами и стойками, для усиления устойчивости стропил, делаются подкосы. Необходимые параметры для подкосов и стропильных ног вычисляются по расчету кровли. Привычная ширина простых стропильных досок примерно пять сантиметров, высота же их до 20.
Для образования свеса, который станет надежной защитой внешней стены от осадков, затяжки или стропила выводят минимум на полметра за плоскость этой самой стены.
Под мауэрлат требуется уложить хороший слой гидроизоляции, иначе срок службы сооружения будет сильно сокращен. Можно использовать старый добрый рубероид или другой похожий материал.
Между стропилами укладывают несколько слоев утеплителя, обязательно со смещением швов. В качестве утеплителя используют материалы с низкой теплопроводностью, например, обычную минеральную вату. Кроме теплоизоляции, необходимо обустроить и пароизоляцию. Для этого с внутренней стороны утеплителя фиксируется хорошо натянутая полиэтиленовая пленка.
Используется специальная паронепроницаемая гидроизоляционная пленка. Это такая диффузная мембрана, имеющая особую перфорированную структуру. Она способна выпускать наружу попадающий из внутреннего помещения в утеплитель пар, но препятствует попаданию в него влаги снаружи.
Обрешетка: порядок сборки
После этого можно начинать непосредственный монтаж двускатной крыши по чертежу. Заключительным (перед кровельными работами) этапом завершения конструкции двускатной крыши будет сборка обрешетки.
На ее изготовление идет обычно деревянный брус 6*6, 5*5 или 4*4 см. Устанавливают ее перпендикулярно к стропилам, как предусмотрено конструкцией. Обрешетка служит для передачи и перераспределения веса кровли на стропила, которые, в свою очередь, направляют ее к несущим стенам строения. Величина шага обрешетки может быть разной, и зависит она от типа выбранного кровельного материла.
Некоторым из них вообще требуется обустройство сплошного покрытия-настила. Такими являются, например, плоский шифер или мягкая кровля. А под мягкую черепицу из битума требуется еще дополнительный подкладочный ковер, монтируемый поверх настила. Он не только выравнивает его поверхность, но и защищает от ненужной влаги при укладке материалов кровли.
Для этого можно использовать специально обработанный стеклохолст, имеющий битумную пропитку.
Двускатная крыша своими руками – замечательный выбор для ответственных домовладельцев, не боящихся запачкать руки и готовых к работе.
Простую конструкцию, представляющую равнобедренный треугольник в разрезе, совсем не сложно возвести самостоятельно. Высоту спуска и угол наклона крыши можно варьировать, но непременно в границах правильно сделанных расчетов.
Порядок выполнения чертежа крыши
План здания делят на прямоугольники, внутри которых наносят линии, обозначающие наружные и внутренние сопряжения скатов, коньки и ендовы.
Некоторые из них будут выходить за пределы стен, поскольку крыша обязательно должна иметь свес.
Виды спереди и сбоку выполняют, учитывая уклоны скатов.
Их задают еще на этапе проектирования дома, принимая во внимание тип строения, его назначение и выбранный кровельный материал.
Для подготовки графической части проекта кровли рекомендуется воспользоваться одной из многочисленных программ, которые предлагаются на строительных сайтах.
Так проще всего будет правильно сориентировать постройку:
- Сначала план дом обводят линией.
- Все линии копируют на чертеж плана кровли вместе с контурами основных стен.

- Над каждым прямоугольников строят изображение кровли, начиная с самого широкого.
- Проекции коньков обозначают линией.
- Обозначают ендовы и коньки.
- На плане отмечают вентиляционные и дымовые каналы, в также наносят мансардные окна.
- Ставят отметки уклонов скатов и направления водостоков.
- Указывают все размеры по контурам и осям чертежа.
Отдельно выносят узлы соединения различных деталей конструкции:
- коньковый узел, так называют крепление стропильных ног между собой или на балке
- соединение подкосов стоек, затяжек и других подобных элементов системы
- крепление стропил к мауэрлату или верхнему бревну стены
В графической части проекта также должен присутствовать эскиз крыши, он даст общие визуальные представления о конструкции, позволит оценить ее внешний вид и эстетические качества.
Когда предполагается врубка элементов, дополнительно делают чертеж с указанием ее размеров и формы.
Если вы решили подготовить самостоятельно план кровли, правила оформления чертежа помогут сделать это корректно:
- Пересечение двух скатов образует конек или ендову, причем их проекция должна разделять угол прямоугольника на две равные части.
- Если две линии пересечения сходятся в одной точке, то, как правило, через нее проходит и третья.
- При параллельных линиях свесов им также будет параллельна линия конька, при этом ее проекция должна проходить посередине.
Чертеж плоской крыши представлен всего несколькими линиями, в то же время для скатной характерно большое число проекций ендов и коньков.
Такие кровли часто делают сложной формы, со значительным уклоном и усиленной стропильной системой.
Еще о многощипцовой крыше над квадратным домом.
О том, как правильно сделать крышу дома, можно прочитать по ссылке. Как сделать односкатную, двускатную, четырехскатную и мансардную крыши.
Об устройстве ломаной мансардной крыши здесь.
Также об устройстве стропильной системы мансардной крыши.
Как нетрудно заметить, чтобы правильно подготовить план и его графическую часть, нужно обладать определенными знаниями в области строительства и инженерии, учесть все нюансы и сделать верные расчеты.
В первую очередь следует позаботиться о надежности и безопасности вашего жилища, поэтому лучше всего обратиться за помощью к квалифицированным специалистам.
Устройство стропильной системы двухскатной крыши: сборка и установка
Крыша – этот тот элемент конструкции дома, который придает ему неповторимый вид. Вариантов сооружения такого конструкционного элемента – великое множество. Но есть среди них одна, двухскатная, вид которой замечательным образом меняется в зависимости от угла наклона ската.
Статья по теме: Теплица матрешка со съемной крышей
Чтобы строение было максимально прочным, надежным и долговечным устройство стропильной системы двухскатной крыши должно быть продумано еще на этапе разработки проекта дома.
Грамотно выполненная конструкция должна быть способна справиться с постоянными нагрузками, скажем, весом кровли, а также с временными, которые преподносит природа – снеговыми, ветровыми, дождевыми. Самым оптимальным считается план двухскатной крыши, в котором стропильные ноги своими концами упираются в опорный брус, так называемый мауэрлат , и особым образом фиксируются. В этом случае нагрузку удается равномерно распределить по периметру дома.
Особенности подготовки чертежа скатной кровли
Скатными называют крыши, состоящие из нескольких плоскостей, расположенных под уклоном более 10%.
Исходя из конструктивных особенностей их разделяют на два типа — чердачные и бесчердачные.
Крыша с двумя скатами — самый распространенный вариант, он может применяться для любых видов зданий.
Четырехскатные кровли встречаются преимущественно в загородном и дачном строительстве.
Разрез односкатной крыши выглядит как прямоугольный треугольник, в котором гипотенузой является стропильная нога.
Готовый чертеж конструкции должен содержать полную информацию о длине, сечении и месторасположении всех элементов.
Желательно еще на этапе проектирования определить принцип крепления узлов и отразить это в документации.
В графической части плана отмечают длину стены дома, расстояние от стропил до конька, выбранный угол наклона ската и размеры стропильных балок.
Выбирая кровельный материал для скатной крыши, нужно обратить внимание на следующие рекомендации:
- для профнастила угол наклона ската может составлять более 8°;
- для шифера — от 20 до 30°;
- для рубероида и аналогичных рулонных материалов — 5°;
- для металлочерепицы — 30°
Конструкция системы стропил ↑
Как уже было отмечено, залогом прочности любой крыши является ее стропильная система. По конструкции они подразделяются на наслонные и висячие .
Висячая ↑
Висячие стропила представляют собой брусья, имеющие только две точки опоры, а именно стены дома.
На каждую ногу в этом случае действуют в основном нагрузки двух типов – изгиб и сжатие.
Висячие передают по горизонтали приходящуюся на них нагрузку (вес кровли, снеговую, ветровую) на свои точки опоры, то есть на стены, как разводящее усилие. Для снижения его влияния стропила соединяют деревянной или металлической затяжкой. В стропильное устройство ломаной двухскатной крыши подобные затяжки – балки перекрытия. При величине пролета от 8 м, под каждую ферму дополнительно устанавливают бабки с подкосами.
Наслонная ↑
Наслонные стропила представляют собой брусья, имеющие промежуточную подпорку, которая опирается на дополнительные опоры или внутреннюю стену дома. Основное воздействие этой системы на опоры – изгиб. В несущей конструкции крыши можно использовать только наслонные, если промежуточные опоры находятся друг от друга на расстоянии до 6.5 м.
Наслонная конструкция легче, чем система висячая или комбинированная.
Схема также может содержать элементы будущей мансарды .
Вертикальные стойки, укрепленные подкосами и ригелями, которые устанавливают в этом случае, могут служить в будущем частью мансарды. Опорой для них служат балки перекрытия. Читайте : Монтаж стропильной системы двухскатной крыши .
Воздействие нагрузок на систему стропил
Стропила подвергаются постоянным (масса кровли, обрешетки, стропил и т.д.) и временным (ветер, осадки) нагрузкам.Основной расчетный параметр снежной нагрузки, принятый в России для средней полосы – 180 кг/м?. Снеговой мешок может увеличить этот показатель до 400-450 кг/м?.
Если уклон крыши больше 60 градусов, снеговая нагрузка не берется в расчет.
Стандартная расчетная величина ветровой нагрузки для средней полосы России — 35кг/м?.
Если уклон крыши менее 30 градусов, в чертеже поправка на ветер не учитывается.
Параметры нагрузок корректируются для местных условий климата за счет особых коэффициентов.Совокупная масса крыши рассчитывается, исходя из количества используемых материалов и общей площади сооружения.
В расчеты вводят показатели полезной нагрузки на систему, если к фермам подвешивают потолки, устанавливают водонагревательные баки, вентиляционные камеры и т.д.
Обязателен расчет прочности стропил и степени возможной деформации при различных условиях.
В качестве стропил чаще всего используются: прямоугольный брус с сечением, соответствующим рассчитанным нагрузкам, доски с параметрами 5?15, 5?20 см.
Чаще всего выбор останавливают на пиломатериалах хвойных пород (еловых, сосновых) с влажностьюв пределах 18-22%, обработанных антисептическими средствами и антипиренами.
Для повышения жесткости и устойчивости геометрии стропильной системымногоскатной крыши иногда вводят стальные элементы.
Установка стропильной системы ↑
Способы монтажа мауэрлата ↑
В домах, которые сложены из бревен или бруса, опорой нижней части стропил служит верхний венец, а в кирпичных или каменных – специальный опорный брус, мауэрлат. Его укладывают на гидроизоляционную прокладку с внутренней стороны стены по чердаку.
Мауэрлат фиксируют к стене:
- посредством армирующего пояса (на бетон шпильками), на шпильки, вмурованные в кладку стен, с помощью катанки.
Шпилька представляет собой металлический прут с резьбой. Ее длину выбирают из расчета, что одной половиной шпилька будет вмурована в стену, а выступающей части должно на 3–4 см хватить, чтобы поверх мауэрлата закрутить гайку.
Коньковый прогон ↑
Конструкция двухскатной крыши своей верхней частью опирается на так называемый коньковый прогон. Он представляет собой бревно или брус, к которому крепят верхние концы стропильных ног. Именно этот прогон будет в дальнейшем служить коньком крыши.
- При длине дома до 6 м допускается готовить коньковый прогон из единого бруса или бревна. Он может при этом опираться в два фронтона без дополнительных опор. При длине дома более 6 для монтажа составного конькового прогона используют строительные фермы.
Дополнительные элементы ↑
- Боковые прогоны служат дополнительной опорой для самой системы.
Опорой для них служат либо строительные фермы, либо фронтоны дома. Если конструкция тяжелая, прогоны делают в виде «строительного подъема» или коромысла. Подкосы помогают разгрузить стропила в центре. Их устанавливают под все «ноги» под углом в 45° и больше. Таким образом можно устраивать двухскатную крышу до 14 м. Раскосы (диагональные балки) укрепляют стропила и помогают фронтонам противостоять сильным ветровым нагрузкам. Опора их верхней части – угол фронтона, нижней – центральная балка перекрытия.Порядок монтажа ↑
Стропила можно устанавливать двумя способами:
- собрать ферму на земле и поднять ее наверх; собрать фермы прямо на месте установки.
Выбор способа установки, конечно, за исполнителем, однако, в любом случае при создании однотипных ферм удобнее использовать шаблон, согласно которому стропила будут подрезаться и соединяться.
Сделать подобный шаблон совсем нетрудно.
- Для этого берут две доски, чуть длиннее стропил, подымают наверх и устанавливают наподобие будущего строения.
Выравнивают их по вертикали так, чтобы верхушка конька при этом была установлена в соответствии с чертежом, доски соединяют одним гвоздем. Опуская или подымая концы досок, добиваются требуемого угла наклона и соединяют доски при помощи поперечной планки и таким образом зафиксируют их в нужном положении. Чистовой вариант подгоняют под этот шаблон и соединяют.Flat Roof — Illustrationen und Vektorgrafiken
8.316Grafiken
- Bilder
- Fotos
- Grafiken
- Vektoren
- Videos
Niedrigster Preis
SignatureBeste Qualität
Durchstöbern Sie 8.316
flat roof lizenzfreie Stock — и векторграфик. Odersuchen Sie nach dachdecker oder dachterrasse, um noch mehr faszinirende Stock-Bilder und Vektorarbeiten zu entdecken.
immobilien-logo-symbol flacher vektor einfache isolierte illustration beschilderung vorlage design fashiony — плоская крыша stock-grafiken, -clipart, -cartoons und -symbole Вектор einfache isolierte Иллюстрация Описание Дизайн Модный дизайн. weißer roter leuchtturm mit schatten und gipfel auf dem dach in flachem design — плоская крыша, графика, клипарт, мультфильмы и символыWeißer roter Leuchtturm mit Schatten und Gipfel auf dem Dach in…
Weißer roter Leuchtturm mit Schatten und Spitze auf dem Dach in flacher Ausführung isoliert auf weißem Hintergrund. Klassisches Leitlicht Gebäude maritime Navigation Führung Ozean Seefeuersuchscheinwerfer Tower
flachdach mit geländer, 5.mose 22,8 — плоская крыша stock-grafiken, -clipart, -cartoons und -symboleFlachdach mit Geländer, 5.Mose 22,8
herbstliche illustration eines zeltes und eines lagerfeuers. дас konzept де активный туризм. флеш-иллюстрация. — графика с плоской крышей, -клипарт, -мультфильмы и -символ Herbstliche Illustration eines Zeltes und eines Lagerfeuers.
Das…
Hausfront Wohnung Cartoon graviert Stempel Doodle Design Dorf…
bleiben sie zu house. icon mit langem schatten auf leerem hintergrund — плоский дизайн — плоская крыша — графика, -клипарт, -мультфильмы и -символBleiben Sie zu Hause. Icon mit langem Schatten auf leerem…
векторная иллюстрация в стиле ретро в плоском стиле. — графика с плоской крышей, клипарт, мультфильмы и символыVector Illustration Haus im Retro-Stil im Flat Style.
Традиционные нижние земельные детали с фасадом, фасадом и мансардой. flaches design des schmalen historischen hollandhauses. altes amsterdamer haus als logo oder эмблема. vorlage für vintage-architektur — плоская крыша, графика, клипарт, мультфильмы и символыTraditionelles niederländisches detailliertes Grachtenhaus mit…
set alter deutscher und französischer hauser illustration im flachen cartoon-stil — плоская крыша stock-grafiken, -clipart, -cartoons und -symbole set alter Deutscher und Französischer Häuser Illustration im.
.. — графика на плоской крыше, -клипарт, -мультфильмы и -символ
Солнечная панель-Symbol für flache Linie mit bearbeitbarem Strich
set von niedlichen kleinen baumhäusern. векторная иллюстрация в ярком мультяшном стиле. — графика с плоской крышей, -клипарт, -мультфильмы и -символSet von niedlichen kleinen Baumhäusern. Вектор-Иллюстрация im…
домашняя флаш-набор символов вектор-иллюстрация — плоская крыша сток-графика, -клипарт, -мультфильмы и -символДомашняя флаш-набор символов Вектор-Иллюстрация
набор из одинаковых коттеджей в плоском стиле — плоский графика на крыше, клипарт, мультфильмы и символыНабор из драгоценных камней Коттеджи во флахен стиле
Великолепные земельные участки с Ziegeldächern und Fensterläden an den Fenstern. Gebäude für das Leben im Dorf. Vektorillustration im flachen Stil auf weißem Hintergrund
хаусфассаде. синий вохнунг вонхаус. Häuser Außenvektor illustration frontansicht mit dach.
частный дом. Architektur — плоская крыша — графика, -клипарт, -мультфильмы и -символHausfassade . Синий Вонунг Вонхаус. Häuser Außenvektor…
Hausfassade . Блю Флэт Уонхауз. Häuser Außenvektor Illustration Vorderansicht mit Dach. Частный дом. Архитектура.
гейм. Flache Symbole auf schaltflächen in verschiedenen farben — плоская крыша, графика, клипарт, мультфильмы и символыХайм. Flache Symbole auf Schaltflächen in verschiedenen Farben
hausfassade. bunte wohnung wohnhaus. частный дом. архитектор. außeres. дом. immobilie inserieren — плоская крыша, графика, клипарт, мультфильмы и символыHausfassade . Bunte Wohnung Wohnhaus. Частный дом. Архитектура. Äuß
satz von verschiedenen stilen villa am meer strand im paradies. вектор-иллюстрация в стиле мультфильма — плоская крыша сток-графика, -клипарт, -мультфильмы и -символSatz von verschiedenen Stilen Villa am Meer Strand im Paradies….
Häuser flache linie symbole gesetzt.
домашняя страница-вкус, wohnhaus, landhaus, wohnung vektor-illustrationen. skizzieren sie einfache zeichen für immobilien. Идеальный пиксель 64×64. Bearbeitbare striche — графика плоской крыши, -клипарт, -мультфильмы и -символHäuser flache Linie Symbole gesetzt. Домашняя страница-вкус, Wohnhaus,…
Häuser flache Linie Symbole gesetzt. Домашняя страница-Button, Wohnhaus, Landhaus, Wohnungsvektor-Illustrationen. Skizzieren Sie einfache Schilder für Immobilien. Идеальный пиксель 64×64. Медвежья полоска.
хейм. icon mit langem schatten auf leerem Hintergrund — плоский дизайн — плоская крыша — графика, -клипарт, -мультфильмы и -символHeim. Icon mit langem Schatten auf leerem Hintergrund — Flat…
setzen sie architektur- und landschaftselemente, draufsicht. sammlung von häusern, pflanzen, garten, bäumen, schwimmbädern, holzmöbeln im freien, fliesen. флачер вектор. tische, bänke, stühle. Блик фон Обен. — графика плоской крыши, -клипарт, -мультфильмы и -символ Setzen Sie Architektur- und Landschaftselemente, Draufsicht.
…
Homeline-Symbole gesetzt. Haus, Wohnhaus, Homepage,…
Home Line Symbole gesetzt. Haus, Wohngebäude, Homepage, Immobilienhypothek minimale Vektorabbildungen. Einfaches flaches Umrissschild для Web-Immobilien-App. 30×30 пикселей идеально. Медвежья полоска.
schwarze stadtsilhouette mit fenstern auf Transparentem Hintergrund. горизонтальный горизонт им флахен стиль. vektor-stadtbild, stadtpanorama der nachtstadt — плоская крыша сток-графика, -клипарт, -мультфильмы и -символSchwarze Stadtsilhouette mit Fenstern auf Transparentem…
home oder house icon плоский дизайн. — плоская крыша сток-графика, -клипарт, -мультфильмы и -символ Home или House Icon Flat Design.
Баустоффхауфен. Baumaterial Stapel von Zementsteinen Ziegel…
солнечная энергия, электричество, сонненстром, вектор-плоская-икона — плоская крыша, графика, -клипарт, -мультфильмы и -символСолнечная энергия, электричество, сонненстром, вектор-Fl цу дом. icon mit langem schatten auf leerem hintergrund — плоский дизайн — плоская крыша — графика, -клипарт, -мультфильмы и -символ
Familie bleibt zu Hause. Icon mit langem Schatten auf leerem…
flashe vektor-illustration der dachterrasse bar lounge in der nacht mit gemütlichen Warmen Sofas und stühlen auf dem hintergrund des stadtbildes mit begehbaren gebäuden und wolkenkratzern. — плоская крыша сток-графика, -клипарт, -мультфильмы и -символ Flache Vektor-Illustration der Dachterrasse Bar Lounge in der.
..
Flache Vektorillustration der Bar-Lounge auf der Dachterrasse bei Nacht mit gemütlichen warmen Sofas und Stühlen im Hintergrund des Stadtbildes mit begehbaren Gebäuden und Wolkenkratzern
3D изометрический векторный вектор концепции иллюстрации der regenwassernutzung — плоская крыша сток-графика, -клипарт, -мультфильмы и -символ3D изометрический векторный вектор концепции иллюстрации дер… für die Wiederverwendung im Haushalt
hausbau, installskonzept vektor-icon-set, infografik-template, flat-design-web-buttons — плоская крыша, графика, -клипарт, -мультфильмы и -символHausbau, Installationskonzept Vector-Icon-Set, Infografik-Template
heim. icon mit langem schatten auf leerem Hintergrund — плоский дизайн — плоская крыша — графика, -клипарт, -мультфильмы и -символHeim. Icon mit langem Schatten auf leerem Hintergrund — Flat…
set von gemütlichen fachwerkhäuser isoliert auf einem weißenhintergrund sammlung von alten deutschen und französischen häusern illustration in einem flachen cartoon-stil — плоская крыша stock-grafiken, -clipart, -cartoons und — символ Set von gemütlichen Fachwerkhäuser isoliert auf einem weißen.
..
Street Elements Map Draufsicht. Stadtlandschaft flache Objekte,…
павильон-символ. черный силуэт. seitenansicht. векторные графические иллюстрации. das isolierte objekt auf weißemhintergrund. изолирен. — графика с плоской крышей, -клипарт, -мультфильмы и -символПавильон-Символ. Силуэт Шварце. Seitenansicht. Вектор…
домашняя установка солнечных панелей 2d flacher вектор — плоская крыша сток-графика, -клипарт, -мультфильмы и -символ grafiken, -clipart, -cartoons und -symboleSymbole für flache Linien in der Benachrichtigungs-Home-Farbe
3d isometrischer flacher vektor konzeptionelle illustration der regenwassernutzung — плоская крыша stock-grafiken, -clipart, -cartoons und -symbole 3D Isometrischer flacher Vektor Konzeptionelle Illustration der.
..
Pavillon-Symbol. Schwarze Kontur lineare Silhouette….
arbeiter auf dem dach während des hausbaus, renovierung. bauherren in helmen installieren, verlegen von schindelziegeln auf dem dach von gebäuden. arbeiten sie in der höhe. Flache vektorillustration isoliert auf weißemhintergrund — плоская крыша — графика, -клипарт, -мультфильмы и -символArbeiter auf dem Dach während des Hausbaus, Renovierung….
familie bleibt zu hause. icon auf blauem hintergrund — плоский дизайн с изображением плоской крыши — графика, -клипарт, -мультфильмы и -символСемейный рисунок в доме. Icon auf blauem Hintergrund — Flat…
Weißes Symbol von «Family stay at home» в белом цвете Designstil isoliert auf blue Hintergrund und mit langem Schatteneffekt.
Векторные иллюстрации (EPS10, кишки geschichtet und gruppiert). Einfach zu bearbeiten, zu bearbeiten, in der Größe zu ändern oder zu kolorieren. Векторные и JPEG-данные Unterschiedlicher Größe.
3D изометрическая плоская векторная иллюстрация konzeptionelle der urbanen… , kleine stadt, bunte fassaden — плоская крыша, графика, клипарт, мультфильмы и символы
Große Reihe von winzigen Häusern mit Bäumen und Büschen im…
gewächshaus-symbol. черный контурсилуэт. фордерансихт. флаш векторграфик-иллюстрация. das isolierte objekt auf weißemhintergrund. изолирен. — графика с плоской крышей, -клипарт, -мультфильмы и -символGewächshaus-Символ. Шварц Контурсилуэт. Vorderansicht….
оставайся дома-ребенок. icon mit langem schatten auf leerem hintergrund — плоский дизайн — плоская крыша — графика, -клипарт, -мультфильмы и -символ Stay Home-Schild.
Icon mit langem Schatten auf leerem…
holz- und steinbrunnen flache Vektorillustrationen Set
eine große große familie unter einem dach, more Generationen derselben familie zusammen, großväter mit enkelkindern, ein paar mit kindern. ikone für hypothek, pflege für geliebte menschen, pflegeheim. Флаш вектор-мультфильм-иллюстрация. — графика с плоской крышей, -клипарт, -мультфильмы и -символEine große Familie unter einem Dach, mehrere Generationen…
bleib zu home symbol. icon mit langem schatten auf leerem hintergrund — плоский дизайн — плоская крыша — графика, -клипарт, -мультфильмы и -символBleib zu Hause Symbol. Icon mit langem Schatten auf leerem…
vektorlandschaft eines herbstlichen dorfhauses. gemutliche landschaft, felder, wiesen, heu, sonne, wolken, gartenschubkarre, ernte, blätter fall. флаш-мультфильм-иллюстрация. — графика с плоской крышей, -клипарт, -мультфильмы и -символ Vektorlandschaft eines herbstlichen Dorfhauses.
Gemütliche…
Hinterhof mit Tisch und Zaun, Möbeln und Korb zum Essen im Freien.
mann mit angst berühren kopf. рука хельфенде, пфлеге. psychische störung und хаос im bewusstsein. ein frustrierter type mit einem nervösen Problem Fühlt Angst und verwirrung der gedanken. флеш векторный рисунок. — графика на плоской крыше, -клипарт, -мультфильмы и -символMann mit Angst berühren Kopf. Хельфенде Хэнд, Пфлеге. Psychische…
tv-antenne auf dem dach. icon mit langem schatten auf leerem Hintergrund — плоский дизайн — плоская крыша сток-графика, -клипарт, -мультфильмы и -символТелевизионная антенна на даче. Icon mit langem Schatten auf leerem…
wellblech in perspektivischer ansicht.
иллюстрация einfache flache. — плоская крыша сток-графика, -клипарт, -мультфильмы и -символWellblech в перспективе Ansicht. Einfache flache…
große reihe von bunten häusern, kleine stadt, außenfassade der kleinen stadt. flache vektorabbildung — плоская крыша, графика, клипарт, мультфильмы и символыGroße Reihe von bunten Häusern, kleine Stadt, Außenfassade der…
alte küstenstadt mit roten dächern flat style vector illustration — плоская крыша stock-grafiken, -clipart, -cartoons und -symbolealte küstenstadt mit roten dächern flat style vector illustration
Satellitenschüssel auf dem dach. icon mit langem schatten auf leerem Hintergrund — плоский дизайн — плоская крыша — графика, -клипарт, -мультфильмы и -символSatellitenschüssel auf dem Dach. Icon mit langem Schatten auf…
флаш-автомобилей, полиции и такси, сайт, подсказка и вызов. мультяшный авто транспорт, авто, внедорожник и микроавтобус. fahrzeughinter vektorsatz — плоская крыша, графика, клипарт, мультфильмы и символы Флаш-автомобили, полиция и такси, сайты, подсказки и услуги.
…
Flache isometrische Konzeptdarstellung. Технический инсталлятор…
векторных ярких иллюстраций баннерной иллюстрации. konzept der altersvorsorge. hände halten haus und herz — плоская крыша — графика, -клипарт, -мультфильмы и -символВекторные флашированные баннерные иллюстрации Vorlage. Концепт…
символ дома. icon mit langem schatten auf leerem hintergrund — плоский дизайн — плоская крыша — графика, -клипарт, -мультфильмы и -символBleib zu Hause Symbol. Icon mit langem Schatten auf leerem…
isolierte elemente für die gestaltung von stadtplänen. objekte in der kartenansicht von oben. set von verschiedenen arten von häusern, gebäuden. топ-ансихт для дизайна. векторные иллюстрации в стиле флахен. — графика плоской крыши, -клипарт, -мультфильмы и -символЭлементы изоляции для гештальтунга фон Штадтпланен. Объект…
фон 100Хотите плоскую крышу? Узнайте больше здесь.

Плоские крыши впервые приобрели популярность с появлением модернистской архитектуры около 100 лет назад. С тех пор они стали обычной практикой почти для всех наших крупных зданий сегодня, от инновационных больниц до впечатляющих коммерческих проектов. Традиционно домовладельцы имели тенденцию знакомиться со скатными крышами просто из-за формы их скатов, которые практически отводили воду, обеспечивая меньшую вероятность будущих утечек и обязательств. С изменениями в технологиях в последние годы все больше жителей выбирают дома с плоской крышей и постепенно делают их популярным выбором как в заполненных домах, так и в новых районах.
Конструкции плоских крыш эстетически отличаются от традиционных скатных крыш, но выбор должен быть безопасным и практичным решением, и его лучше всего делать, обладая небольшими техническими знаниями. Вот краткий обзор типов стилей плоских крыш, которые лучше всего подходят для безопасного покрытия вашего дома и всего, что в нем находится.
Важно отметить, что независимо от того, выберете ли вы наклонную или плоскую крышу, лучшая кровельная система разработана с учетом передового опыта и построена компетентным строителем дома. Для вашего спокойствия хорошо построенная плоская крыша может прослужить дольше трех обычных крыш из битумной черепицы (обычно устанавливаемых в большинстве домов) при правильной установке с использованием правильных материалов. Эта долговечность связана с некоторыми дополнительными затратами, поскольку материалы хорошо построенной плоской крыши имеют лучшее качество, но если рассматривать это как инвестиции, вы можете рассчитывать на экономию затрат на техническое обслуживание и замену в будущем. Плоские крыши — это совершенно практичный выбор, но все же полезно узнать больше о типе плоской крыши, которую вы можете выбрать при строительстве своего дома.
Как правило, говоря о плоских крышах, мы можем разделить их на два основных типа:
- Плоские крыши
- Пологие крыши
Настоящая плоская крыша так же проста, как и заявлено, ровной и плоской, но с использованием наклонных систем наверху, чтобы мягко контролировать и направлять воду в водосток или настенный водосток, который соединяется с водосточной трубой.
Напротив, крыши с малым уклоном имеют гораздо меньший уклон, чем традиционные крыши, и по-прежнему будут отводить воду с края в желоб и водосточную трубу. Уклон пологих крыш может варьироваться, но обычно он находится в пределах от 2-12 до 3-12 уклонов. Это означает, что на каждые 2 дюйма высоты длина крыши будет равна 12 дюймам. Чем выше первое число (т.е. 2), тем круче угол крыши. Однако каждый из этих типов крыш требует различных методов строительства, чтобы обеспечить их правильную работу.
Плоские крыши
Для настоящих или «настоящих» плоских крыш лучшим методом, признанным большинством специалистов по кровле, является Система теплого настила . Эта система имеет всю свою изоляцию и водонепроницаемые мембраны поверх внешней палубы и подвергает палубу воздействию тепла внутри здания (отсюда и название «теплая палуба»). Конструктивные особенности этой кровли могут различаться, но в каждой типичной ситуации есть 3 основных слоя:
- Пароизоляция в качестве первого слоя поверх кровельного настила.
Это необходимо для контроля переноса влаги изнутри вашего дома, чтобы влага могла высыхать внутри дома и не попадала в изоляцию крыши, где она может нанести ущерб. - Изоляционный слой над пароизоляцией, естественным образом изолирующий и сохраняющий тепло.
- Водонепроницаемое защитное кровельное покрытие поверх изоляции, выполняющее роль внешнего слоя кровли и отводящего поверхностные воды.
Выбор материалов для всех трех слоев может варьироваться в зависимости от желаемых характеристик, но некоторые из типичных вариантов для каждого из них перечислены ниже: до Мембраны из СБС . SBS расшифровывается как Styrene Butadiene Styrene, но проще всего думать о них как о том же резиновом материале, из которого сделаны ваши автомобильные шины. Он гибок и сохраняет себя как при высоких, так и при низких температурах и подходит для установки в канадском климате. Мембраны SBS могут быть установлены в горячем асфальте, холодных клеевых листах или листах, сваренных методом термосварки.
Еще одним хорошим пароизоляционным материалом является Горячий асфальтобетонный кровельный материал . Это слои органического войлока, встроенные в горячий асфальт, которые обычно используются в сборных кровельных конструкциях, используемых в промышленных, битумных и гравийных системах. Войлок обычно поставляется в больших рулонах, которые сплющиваются и привариваются к крыше с помощью горелки.
Многие строители также используют другие пароизоляционные материалы, такие как полиэтиленовые листы и полуприклеенную или свободно уложенную крафт-бумагу. Хотя эти пароизоляционные материалы, как правило, дешевле, им не хватает прочности и долговечности по сравнению с другими системами, и они легче повреждаются во время строительства. Это оставляет больше шансов выйти из строя после того, как остальная часть сборки крыши будет продолжена и закроет любые отверстия или разрывы, которые могли быть сделаны. Для качественной установки плоской кровли следует избегать таких продуктов.
Типы изоляции
- Полиизоцианурат (как правило, с наивысшими изоляционными свойствами и огнестойкостью)
- Экструдированный полистирол (хорошие показатели изоляции и водостойкости)
- Пенополистирол (известный как пенополистирол, самый дешевый)
Кровельные покрытия
Мембраны SBS также практичны и широко используются для кровельных покрытий, поскольку они включают в себя технологию на основе синтетического каучука, которая обеспечивает исключительную гибкость даже при экстремально низких температурах. В большинстве жилых систем плоских крыш в качестве покрытия или защитного листа используется SBS. Нанесение обычно толще, чем при использовании в качестве пароизоляции, и включает защитный гранулированный слой каменной крошки, который помогает избежать коррозионного воздействия солнца и погоды.
Сборные кровельные системы (BUR) состоят из слоев или слоев кровельного материала, между каждым слоем которого проложен асфальт или битум.
Вальмовая кровля – одна из самых старых и долговечных систем. Его несколько слоев обеспечивают дополнительную защиту и хорошо работают в экстремальных погодных условиях. Несмотря на долговечность, крыши BUR обычно дороже, чем системы SBS, но их можно считать разумной инвестицией, если вы хотите, чтобы они прослужили значительно дольше.
Система теплого настила является единственной сборкой плоской кровли, полностью одобренной как Alberta Infrastructure, так и Ассоциацией кровельных подрядчиков Alberta, и считается стандартной практикой для всех типов коммерческих и институциональных зданий. Специалисты по оболочке, работающие в этих организациях, отдают предпочтение системе Warm Deck, поскольку она образует непрерывный слой изоляции поверх конструкции крыши, что приводит к уменьшению теплового движения и делает ее более эффективной. Кроме того, у них есть дополнительное преимущество, заключающееся в том, что они не требуют вентиляции, поскольку они находятся полностью над и «снаружи» конструкции крыши.
Оба термически эффективны, просты по конструкции и обеспечивают наилучшее покрытие для любой плоской крыши.
Существуют и другие альтернативы для плоских крыш, которые обычно используются, но обычно не соответствуют тем же стандартам производительности, что и система теплого настила, и не признаются инфраструктурой Альберты или ARCA. По сути, все, что вам нужно знать, это то, что если вы строите настоящую плоскую крышу, вам лучше всего подойдет система теплого настила. Мы объясним больше о некоторых из этих альтернативных сборок крыш при обсуждении крыш с малым уклоном, так как они больше подходят для них.
Крыши с малым уклоном
Как уже упоминалось, крыши с малым уклоном представляют собой просто уплощенные обычные наклонные крыши и обеспечивают аналогичную эстетику дизайна. По сравнению с плоскими крышами, самое важное, что нужно понимать, это то, что их пароизоляционные материалы обычно располагаются под конструкцией крыши, а изоляция размещается выше в структурной полости чердака.
Настил крыши и черепица лежат над ним и образуют верхнюю водонепроницаемую поверхность. Имея это в виду, наклонные крыши будут иметь большую полость, которая может удерживать влагу между пароизоляцией внизу и водонепроницаемой крышей наверху, если нет надлежащей вентиляции, и такие крыши созданы с вентилируемыми чердаками для рассеивания этой влаги. . Для крыш с малым уклоном существует такая же потребность в вентиляции подкровельного пространства, за исключением того, что на крышах с малым уклоном нет чердачного пространства. Чтобы решить эту проблему, необходимо создать полость, чтобы воздух мог проходить через изоляцию с одной стороны крыши на другую. Одной из кровельных систем, особенно подходящей для этой цели, является Крыша холодного настила .
Холодные палубные крыши можно считать противоположной версией теплых палубных крыш, как следует из их названия. Их верхний настил крыши «холодный», так как он снаружи с изоляцией и пароизоляцией внизу внутри структурной полости крыши.
На приведенном ниже рисунке показан общий пример системы Cold Deck по сравнению с теплой колодой рядом с ней.
Основное различие между двумя системами заключается в том, что холодная кровля объединяет и герметизирует весь структурный узел между потолком и кровельным настилом, в то время как пароизоляция изолирует его снизу, а кровельное покрытие изолирует его от Топ. Из-за этого требуется вентиляция, чтобы избежать любой влаги, которая может перемещаться и застревать между внутренней и внешней частью дома. Тем не менее, с теплым настилом все пароизоляционные материалы, изоляция и кровельное покрытие полностью находятся над конструкцией и снаружи. Не образуются полости и не требуется вентиляция.
В системах с низким уклоном/холодным настилом лучше всего обеспечить естественную вентиляцию воздуха, чтобы воздух мог перемещаться от нижних концов крыши к высоким, чтобы более горячий воздух просто поднимался и выходил из крыши. вентилируемая полость.
Конкретный размер и ориентация крыши должны учитываться при проектировании вентиляции под руководством соответствующего специалиста по проектированию или специалиста по кровле.
Несмотря на то, что система холодного настила больше подходит для пологих крыш, ее можно использовать и для плоских крыш, и она применяется во многих домах. Основным недостатком является то, что структурные балки не покрыты сверху изоляцией, как в случае с системой теплого настила, и возникает гораздо больше тепловых мостов, теряя тепло наружу. Еще одним недостатком (или соображением) снова является то, что они по-прежнему требуют вентиляции полости крыши, и необходимо позаботиться о том, чтобы обеспечить непрерывное вентилируемое пространство над изоляцией. Это означает, что необходимы дополнительные меры предосторожности, и она по-прежнему будет работать хуже, чем система Warm Deck. По этой причине рекомендуется для крыш с малым уклоном.
Крыша из напыляемой пены Полости
Другой тип крыш/потолков, набирающий популярность в последние годы, – это напыление пены в полостях крыши.
Это делается как для настоящих плоских крыш, крыш с малым уклоном, так и для обычных скатных крыш. Подрядчикам нравится эта система, поскольку она является быстрой и относительно простой в применении квалифицированной рабочей силой. Напыляемая пена действует как клей на элементы конструкции крыши, приобретая их прочность после высыхания на древесине. Несмотря на эти преимущества, недостатки аналогичны системе Cold Deck в том, что тепловые мосты все еще возникают, когда тепло отводится через элементы конструкции, когда оно передается от теплой внутренней части к холодной стороне внешнего настила. Во многих случаях пена может использоваться в качестве пароизоляции, но существует вероятность того, что влага изнутри или снаружи может в конечном итоге попасть между пеной и деревом и в конечном итоге вызвать гниение.0003
Хотя распыление пены не является лучшей заменой холодного или теплого настила для всей кровельной системы, в некоторых случаях оно оказалось очень полезным. Он лучше всего подходит для изоляции скрытых участков или мест, труднодоступных для других типов изоляции, поскольку он наносится в жидком виде и может легко проникать в небольшие отверстия.
Распыляемая пена также может обеспечить дополнительный слой изоляции для систем теплого настила, когда желательны более высокие показатели изоляции. Напыляемая пена является полезным дополнением к другим нашим кровельным системам, но не должна рассматриваться как их замена.
Таким образом, при плоской крыше необходимо учитывать несколько ключевых моментов.
- Используйте систему Warm Deck для настоящих плоских крыш. Он наиболее термически эффективен и имеет меньше проблем с обслуживанием, так как не требует вентиляции.
- Используйте систему Cold Deck для крыш с малым уклоном. Это поддерживает те же общие строительные узлы, что и традиционные крыши, и работает хорошо, если над изоляцией обеспечена надлежащая вентиляция.
- Экономно используйте распыляемую пену в качестве модификации (но не замены) систем теплого или холодного настила.
Была ли эта статья полезной?
Строительство и проектирование плоских крыш
Руководство по строительству плоской крыши.
Узнайте, как сделать и установить плоскую крышу на вашем здании или доме, а также получите советы по проектированию и планированию плоской крыши. Руководство по рекомендуемым типам покрытия и различным типам конструкции плоской крыши для любого кровельного проекта своими руками.
Как устроены плоские крыши?
Балки из катаной стали или RSJ используются для поддержки балок в плоских крышах
На базовом уровне конструкция плоской крыши представлена в виде кровельных бревен, или балок, как они более широко известны, или стали, укладываемой поперек двух стойки (стены в большинстве случаев).
Стальные балки или RSJ (прокатные стальные балки) часто встраиваются в одну или обе стены для придания дополнительной устойчивости конструкции крыши.
Затем балки укладываются поверх стальных конструкций или врезаются в них. Эти балки располагаются на определенном расстоянии друг от друга, обычно 400 мм, в зависимости от ширины или пролета, который они покрывают, и поверхности, на которую они будут наноситься.
В большинстве случаев покрытие будет выполнено из фанеры или ОСП, которую чаще называют плитой Стирлинга.
Когда в плоской кровле используется древесина, она, очевидно, нуждается в гидроизоляции, поэтому доски обычно укладывают поперек балок, а затем используют войлок или резину для покрытия досок, чтобы сделать их водонепроницаемыми. Там, где сходятся две доски, а стык находится не на балке, шпунтованные доски настила делают стык достаточно прочным, чтобы выдержать нагрузку на плоскую крышу.
Доска Стирлинга с шипом и пазом для крепления к балкам плоской крыши
Когда нужна плоская крыша?
Иногда градостроители не разрешают высоту, необходимую для скатной крыши. Это связано с тем, что он может заслонять вид или свет соседей. Иногда скатная крыша не подходит для пристройки, потому что это будет означать затемнение собственных окон владельцев дома. Однако обычно плоская крыша строится, когда пристройка примыкает к существующему зданию.
Использование скатной крыши в этих условиях означало бы добавление желобов или коробчатых водосточных желобов, что сделало бы дренаж крыши трудным и дорогостоящим.
Использование односкатной плоской крыши позволяет воде легко стекать из здания в новые водосточные желоба, которые можно подключить к существующим дренажным системам или даже к новым водосточным желобам.
Иногда требуется новая плоская крыша для замены старой крыши, например, крыши из асбеста или гофрированной жести, которые либо не разрешены строительными нормами, либо находятся в аварийном состоянии.
Всегда следует соблюдать осторожность при удалении старого асбеста и обратиться за советом в местный совет по правильному способу утилизации асбеста.
Старые асбестовые крыши часто заменяют плоскими крышами
Размеры балок, необходимых для строительства плоской крыши
Как вы понимаете, здесь задействован значительный вес досок, войлока и т. д.… поэтому любые используемые деревянные балки должны быть достаточно прочными, чтобы выдержать этот вес. Чтобы убедиться, что эти бревна достаточно прочны для пролета, который они должны покрывать, используется формула для расчета правильной ширины и высоты, которыми должны быть балки.
Кроме того, как часть Утвержденного документа А строительных норм и правил для конструкции требуются дополнительные расчеты для учета дополнительных нагрузок, таких как снег, которым может подвергаться крыша. В большинстве случаев это зависит от района страны, в которой находится имущество, а также от исходной точки (вертикальной высоты) имущества над уровнем моря.
В связи с этими факторами очень важно, чтобы до начала строительства вы получили разрешение на строительство.
Чтобы помочь вам в этом, в строительных нормах и правилах есть 8 таблиц ″максимальных пролетов″, которые относятся к нагрузке и пролету крыши, а также к любому небольшому уклону более 10 градусов, который может потребоваться для удаления дождевой воды.
Вы можете увидеть таблицу пролетов балок по следующей ссылке на веб-сайте DIY Doctor, где мы обсуждаем, как демонтировать несущую стену и убедиться, что балки имеют правильный размер для перекрытия проемов.
Эти таблицы и правила предназначены для защиты вашего дома.
Копию этих правил можно получить, сделав заказ на сайте www.tsoshop.co.uk или по телефону 0870 600 5522. Заказы по факсу принимаются по телефону 0870 600 5533. Стоимость брошюры составляет около 10 фунтов стерлингов.
Инженер-строитель должен проверить ваши расчеты, чтобы убедиться, что они учитывают все возможные варианты. Если, например, были использованы бревна неправильного размера, и в результате ваша крыша подвергалась ненужному движению, ее покрытие вскоре ослабнет и может расколоться и, возможно, протечь.
Приведенная ниже схема является общей, и указанные доски должны быть вставлены в правильные центры. Деревянные ″головки″ также должны быть вставлены между балками на расстоянии 600 мм от центра, чтобы избежать перекручивания балок. Эта крыша демонстрирует традиционное покрытие из войлока, но в наши дни есть и другие применения, включая стекловолокно и резину.
Как построить плоскую крышу
План компонентов плоской крыши, используемой для укладки войлочного покрытия
Никогда не путайте слово «плоская» со словом «уровень».
Плоская кровля всегда должна быть плоской, но ни в коем случае не ровной. во всяком случае не в одном направлении.
Вода должна стекать с плоских крыш, так как лужи воды очень тяжелые, и вскоре они проваливаются в деревянный настил крыши, который затем становится больше, позволяя большему количеству воды скапливаться до тех пор, пока крыша не перестанет выдерживать вес и не возникнет протечка. .
Диаграмма выше дает вам общее представление о компонентах, используемых при строительстве плоской крыши, а на диаграмме ниже более подробно показано, как все эти компоненты работают вместе.
На приведенной выше диаграмме зазор G может быть встроен в каменную кладку, чтобы избежать перекручивания бревен. В случае невозможности крепления балок к стене с помощью подвесов для балок…. Дополнительную информацию см. ниже.
Для деревянных листов мы рекомендуем плиту Стирлинга или фанеру толщиной 18 или 22 мм.
Рельсовая рейка специально изготовлена и доступна у большинства продавцов древесины и обеспечивает 2-дюймовую стойку по краям, с которых стекает вода.
Это предотвратит стекание воды с краев, не имеющих желобов, и повреждение поверхности стены, по которой в противном случае вода могла бы стекать. затем минеральный войлок прикрепляют к панелям лицевой панели тыльной стороной наружу.
Затем они переворачиваются через реечную рейку и прикрепляются к верхней части покрытия. Это придает крыше законченный вид и герметизирует зазор между крышей и лицевой панелью.
Типы конструкций плоских крыш – теплые и холодные плоские крыши
Плоская крыша может иметь форму теплой или холодной крыши в зависимости от требований владельца и архитектора, поскольку они связаны со строительными нормами в отношении потерь тепла и изоляция.
Проще говоря, теплая плоская крыша имеет какую-либо изоляцию, заполняющую все имеющиеся пустоты, а холодная плоская крыша позволяет воздуху циркулировать между балками. Этот воздух вентилируется с обоих концов крыши, чтобы обеспечить непрерывный поток воздуха.
С точки зрения правил вентиляции, BS 5250: 2011 (Контроль конденсации в зданиях) является документом для просмотра.
В нем указано, что между нижней стороной настила крыши и изоляцией под ним должен быть зазор не менее 50 мм .
Проект крыши, теплой или холодной, должен быть точным. Если теплая кровля не полностью утеплена, но не обеспечен постоянный приток воздуха, в любом невентилируемом пространстве будет образовываться конденсат. Конденсат образуется, когда теплый воздух (в изолированных пустотах) попадает на более прохладные поверхности (нижняя часть настила крыши) и может привести к гниению крыши изнутри.
Вам необходимо ознакомиться с утвержденным документом C, а также с утвержденным документом F строительных норм и правил (для Шотландии см. раздел 3 в Техническом справочнике), поскольку эти документы помогут вам рассчитать объем вентиляции, который потребуется для вашего конкретного проекта. .
Этот тип конденсации называется интерстициальной конденсацией. Эта ситуация с теплой и холодной крышей также возникает на скатных крышах, и, говоря упрощенно, очень важно, чтобы либо воздух не попадал в пустоты, либо обеспечивался постоянный поток воздуха.
Строительство холодной кровли
Изложив правила в упрощенном виде выше, наиболее распространенным типом плоской крыши в наши дни является тот, который сочетает в себе теплый изоляционный слой с воздушным потоком для защиты балок от гниения, более известный как холодная плоская крыша (см. схему ниже).
Это очень упрощенная схема, предназначенная для демонстрации пользователю принципов работы холодной плоской крыши.
Если вы проектируете или строите плоскую крышу дома, вам нужно провести небольшое дополнительное исследование, чтобы показать вам, как и где установить пароизоляцию на вашу крышу, а также нужно ли вам (в случае крыши с внешней изоляцией) ), чтобы добавить дополнительный слой деревянного настила крыши поверх изоляции.
Как упоминалось выше, вам также необходимо обеспечить достаточную вентиляцию или воздухообмен, чтобы предотвратить образование конденсата.
В типовом проекте плоской крыши, таком как этот, невозможно «охватить все основы», поэтому убедитесь, что вы тщательно изучили свой собственный проект.
При использовании холодных плоских крыш следует отметить, что они не являются рекомендуемым решением в зонах с высокой влажностью и по этой причине обычно не рекомендуются шотландскими строительными нормами.
Видно, что теплый воздух (без пароизоляции) может подниматься вверх через гипсокартон (или материал, использованный на потолке) в пустоту.
Любая изоляция, присутствующая в подкровельном пространстве, будет дополнительно нагревать этот воздух, который будет подниматься вверх до тех пор, пока не попадет на холодную нижнюю сторону настила плоской крыши.
Затем он конденсируется, и капли воды могут падать на изоляцию и даже просачиваться на потолок из гипсокартона. Не стоит недооценивать опасность образования конденсата .
Поперечный разрез холодной плоской кровли с потоком воздуха и возможностью образования конденсата
Конструкция теплой крыши
Фактически существует 2 различных формата конструкции теплой плоской кровли – один, где любое пространство полностью заполнено изоляцией, не оставляя воздуха зазоры вообще, чтобы избежать любой возможности накопления конденсата, а другой, где есть воздушный зазор под изоляцией.
В этом последнем случае теплый воздух, поднимающийся снизу, будет проходить вверх через любые пустоты, как и следовало ожидать, но, поскольку сам настил крыши изолирован, он будет теплым, а не холодным, и, следовательно, поднимающийся теплый воздух не будет конденсироваться. Воздух, однако, все равно нужно будет проветривать!
При полном утеплении теплой плоской крыши теплоизоляцией воздух не конденсируется. Однако этот тип теплой кровли предполагает полное отсутствие пустот, в противном случае будет происходить внутритканевая конденсация, которая может оставаться незамеченной в течение многих лет.
Теплая плоская крыша, полностью покрытая изоляцией для предотвращения образования конденсата требуется) через балки.
Пока поток воздуха небольшой (но постоянный), воздух не станет достаточно холодным для конденсации, и тепло останется в помещении внизу.
Теплая плоская кровля с изоляцией над воздушным зазором и непосредственно под настилом
Что касается самой изоляции, вы можете использовать стандартную изоляцию из минеральной ваты/минерального камня или изоляцию из прессованной плиты, напр.
Celotex, Kingspan и т. д.
Плоские крыши, построенные для пристройки с наклоном
Разрез по высоте односкатной плоской крыши
Как мох может повлиять на плоскую крышу
Проблема : Без достаточного падения на плоской крыше вода может скапливаться в лужах, лежащих на поверхности крыши.
Семена и споры могут попасть в эту плодородную среду, и в мгновение ока плоская крыша покрывается мхом и даже сорняками. Мох, в частности, удерживает воду каждый раз, когда идет дождь, и когда он мокрый, он удваивает вес вашей крыши.
Этот вес приводит к провисанию балок, что, в свою очередь, приводит к растрескиванию кровельного покрытия.
Плоская крыша, покрытая мхом, может привести к провисанию балок и протеканию крыши
Решение : Добавьте на крышу распорки, чтобы увеличить падение и защитить крышу от мха.
Плоские крыши из стекловолокна и резины с гораздо меньшей вероятностью привлекут такое же количество мха и сорняков, как войлок, особенно если приложить некоторые усилия, чтобы защитить их от грязи.
Современная крыша из резины EPDM или стекловолокна с обжиговыми элементами может предотвратить скопление воды и рост мха
Советы и рекомендации доктора по плоской кровле своими руками
В случае крыши с покрытием из войлока или стекловолокна мы настоятельно рекомендуем это профессионалом. Вы получите гарантию, обычно 10 лет, а это на вес золота.
Если вы валяете плоскую крышу и обнаружили течь, выполнив эту работу самостоятельно, 9В 9% случаев заплата не сработает, потому что вода уже просочилась под войлок, вызывая размягчение вашего листового покрытия и, в конечном итоге, гниение.
В этом случае и в зависимости от степени сырости потребуется ремонт поврежденного участка, а в тяжелых случаях может потребоваться замена всей крыши. Даже ремонт небольшой площади может обойтись дорого!
Резиновая плоская кровля – Наборы из EPDM для самостоятельной сборки
Если вы разумны в выборе материалов для самостоятельной сборки, есть комплекты для самостоятельной сборки кровли из EPDM.
Практически все комплекты, доступные независимо от производителя, включают в себя все необходимое: саму мембрану, накладки, клеи, крепления и все необходимое руководство по установке.
Следует помнить, что в большинстве случаев вы будете заменять существующую крышу, и в большинстве случаев это будет войлочная крыша. В зависимости от возраста и производителя вашей существующей кровли и рубероида, а также типа клея, который использовался для их крепления, используемый клей может повредить клей, используемый для крепления резины EPDM, и может вызвать это потерпеть неудачу.
В связи с этим вам придется либо снять всю крышу и обшить ее с нуля, используя только существующие кровельные балки, либо вы можете обшить верхнюю часть существующей крыши. Для этого используйте стерлинговую доску толщиной 18 мм. Также рекомендуется удалить существующий войлок или покрытие, чтобы свести к минимуму риск повреждения в будущем.
В любом случае лучше полностью снять крышу и начать с нуля.
Что касается комплектов для самостоятельной сборки, то в настоящее время на рынке имеется довольно много поставщиков резиновой кровли из EPDM.
При выборе комплекта убедитесь, что вы хорошо подготовились и убедитесь, что в комплект входят все необходимые элементы, включая полные инструкции по установке.
Большинство компаний требуют, чтобы вы предоставили им размеры вашей крыши, и они предоставят необходимое количество резиновой мембраны для покрытия этой площади.
Если возможно (это будет зависеть от размера области, которую необходимо покрыть), убедитесь, что покрытие представляет собой цельный кусок резины и что оно не поставляется в виде нарезанных секций, которые затем необходимо соединить вместе. Хотя это нормально (при условии, что стыки герметизированы правильно), лучше всего использовать цельную деталь, так как чем больше стыков, тем больше шансов, что со временем появится утечка.
Весь контент проекта написан и подготовлен Майком Эдвардсом, основателем DIY Doctor и отраслевым экспертом в области строительных технологий .
Плоская крыша | Особенности плоской крыши | Типы плоских крыш
Содержание
1. Введение
крыша и Тип крыши с уклоном приблизительно 10 градусов или ниже называется плоской крышей.
Некоторые особенности плоской крыши:
а. Это одна из самых древних крыш, которая в основном используется в засушливом климате.
б. Подкровельное пространство можно использовать как жилое.
в. Ее еще называют малоскатной крышей .
д. Это одна из широко используемых крыш во всем мире.
эл. Он обычно используется там, где меньше осадков и температура не опускается ниже точки замерзания.
ф. Он широко используется в таких странах, как Великобритания, Индия, Непал, Пакистан, Австралия и т. д.
г. Срок службы плоских крыш очень низкий: от 6 до 35 лет в зависимости от качества используемых материалов.
2.
Типы плоских крыш Плоские крыши можно разделить на три типа.
а. Сборная кровля (BUR)
Это был наиболее распространенный тип системы плоских крыш, использовавшийся до разработки кровли из модифицированного битума и мембраны.
Состоит в основном из трех слоев, т.е.
1. Нижний слой, состоящий из изоляционной плиты.
2. Несколько промежуточных слоев гудрона или асфальта, чередующихся со слоями рубероида.
3. Верхний слой гравия защищает битум или асфальт от ультрафиолетовых лучей и неблагоприятных климатических условий.
Плюсы BUR
1. BUR обладает высокой устойчивостью к воде, ультрафиолетовым лучам и неблагоприятным погодным условиям.
2. Требует низких затрат на обслуживание. Редко требует обслуживания.
3. Легко снимается при ремонтных работах.
4. Обладает высокой устойчивостью к нормальному пешеходному движению.
5.
Подходит для окон и террас, выходящих на крышу.
6. Это самый дешевый из этих трех вариантов.
Минусы БУРа
1. Очень тяжелый.
2. Вонючий и грязный при установке.
3. Медленное строительство и высокая стоимость монтажа.
4. Очень сложно найти источник утечки в случае утечки.
5. Не рекомендуется установка в жилых домах.
6. Засорение желобов и шпигатов могло произойти из-за гравия.
б. Модифицированная битумная кровля (MBR)
Она была разработана в начале 1960-х годов как облегченная альтернатива сборной кровле.
Менее вонючий и грязный при установке по сравнению с BUR.
Похожа на традиционную битумную черепицу.
Как правило, поставляется в виде рулонного листа шириной 3 фута и длиной 36 футов.
Существует два метода установки MBR. Это:
а. Torch-Down
Это традиционный метод укладки, который включает нагрев задней стороны кровельного покрытия после его развертывания.
Из-за жары; происходит расплавление материала (модифицированного битума), что приводит к сцеплению материала с конструкцией кровли.
б. Peel and Stick Fashion
Это современный метод, в котором используется самоклеящийся модифицированный битум.
Нет необходимости в подогреве, что делает установку безопасной.
Плюсы MBR
1. Низкая стоимость установки.
2. Обеспечивает лучшую гибкость и эластичность при различных температурах по сравнению с BUR.
3. Домовладелец может легко ремонтировать и устанавливать самоклеящиеся крыши.
4. Более прочный, чем БУР.
Минусы MBR
1. Неустойчив к разрывам/потертости.
2. Менее привлекательна, чем БУР и другие мембранные кровли с речным щебнем или гравием.
3. Использование горелки вниз может привести к пожару. Таким образом, это не рекомендуется для занятых зданий.
в.
Мембранная кровля (MR) Ее также называют однослойной кровлей. Существуют разные кровельные материалы, такие как резиновые и пластиковые составы. Среди них; Обычно используется EPDM (мономер этилен-пропилен-диен), тип резиновой мембраны.
Мембранная кровля состоит из изоляционной плиты, покрытой листами EPDM или другого материала.
EPDM может быть механически закреплен с помощью крепежа, балластирован камнем или приклеен.
Плюсы MR
1. Он очень легкий и очень устойчивый к разрывам и истиранию.
2. Легко устранить утечку воды.
3. EPDM отражает тепло, делая дом более прохладным.
4. Дешевле и проще в обслуживании и ремонте.
Минусы MR
1. Проходы через крышу, такие как дымоходы, системы HVAC и трубы, усложняют установку, а также увеличивают вероятность утечки.
2. Он также более уязвим для проколов, чем другие варианты.
4.
Преимущества плоской крыши Некоторые преимущества плоской крыши:
a. Крышу можно использовать как террасу для торжеств, игр с детьми и т. д.
b. На любом более позднем этапе крышу можно превратить в пол, добавив еще один этаж.
в. Верхние резервуары и другие службы могут быть легко обнаружены.
5. Недостатки плоской крыши
Некоторые недостатки плоской крыши:
a. Больше проблем с утечкой.
б. Они не могут покрыть большие площади без столбцов.
в. Высокая статическая нагрузка.
д. Более первоначальная стоимость строительства.
Dream Civil Team
Образовательная платформа Института Наба Будды
ПЛОСКАЯ КРЫША ПРОТИВ СКЛАДНОЙ: ЧТО ДЛЯ ВАС ЛУЧШЕ?
Независимо от того, строите ли вы дом с нуля или добавляете пристройку к существующему зданию, выбор кровли будет решающим решением, которое может повлиять на функционирование, внешний вид и стоимость вашего здания, поэтому это, безусловно, следует тщательно обдумать.
через.
Взвесим все за и против…
ПЛОСКАЯ КРЫША
Во-первых, важно понимать, что плоская крыша не является 100% ровной. Для того чтобы дождевая вода успешно стекала, они должны быть сооружены с небольшим уклоном в несколько градусов. Для небольшой коммерческой недвижимости или если вы планируете построить пристройку или даже надворную постройку, например, гараж, тогда плоская крыша может больше подойти для вашей собственности.
Pros
Компактная конструкция плоской крыши означает, что она является подходящим кровельным решением для гаражей и пристроек, которые часто не требуют от крыши тех же функций, что и другие части дома. Тем не менее, плоские крыши также могут быть приемлемым вариантом для жилых домов и коммерческих помещений — все зависит от того, что вы лично ищете.
Несмотря на то, что плоские крыши не имеют такого же уклона, как скатные крыши, они по-прежнему имеют небольшой уклон, что позволяет дождевой воде стекать.

Если вам нужно сэкономить копейки, то плоская крыша часто является более доступным вариантом. Как правило, он требует меньших затрат на строительство и рабочую силу, чем его предполагаемая альтернатива, и, как дополнительный бонус, обычно может быть завершен в гораздо более короткие сроки.
Если вы хотите получить максимальное количество света и достичь внутренней высоты с помощью плоской крыши, световой фонарь может создать красивое внутреннее пространство.
ПРОТИВ
Одним из недостатков плоских крыш является то, что обычно считается, что они имеют более короткий срок службы, чем скатные, и могут требовать большего обслуживания. Однако в последние годы разработка новых, более прочных материалов, таких как EPDM, горячая резина и трехслойные высокоэффективные эластомерные войлочные системы, при полном склеивании традиционным профессиональным способом с использованием горячего битума, означает, что срок службы плоских крыш может значительно сократиться.
быть продлен до 30 лет. Это, конечно, зависит от качества материалов и изготовления. Оригинальная мембрана для плоской кровли, покрывающая асфальт, представляет собой гораздо более тяжелый материал, и ее следует укладывать только на бетонное основание или на чрезвычайно прочную деревянную каркасную крышу специального назначения с дополнительной крутой опорой для предотвращения движения. Правильно уложенная асфальтовая крыша с защитой от солнца должна прослужить более 40 лет.Если вы планируете мансарду мечты, то с плоской крышей это просто невозможно.
Сколько стоит плоская крыша?
Стоимость плоской кровли будет зависеть от выбранного вами строительного материала. В среднем, чтобы построить плоскую крышу, вам понадобится…
Что касается стоимости и эффективности, конструкция плоской крыши, безусловно, более рентабельна, поскольку процесс ручного труда и стоимость используемых материалов часто намного меньше, чем при по сравнению со строительством скатной крыши.
Однако отнеситесь к этим ценам с долей скептицизма. Цены будут сильно различаться в зависимости от вашего местоположения, доступности, деталей работы и уровня знаний вашего продавца.
СКАТНАЯ КРЫША
Образуется как минимум из двух скатов, поднимающихся вверх в центре и образующих козырек. Благодаря своим гидроизоляционным качествам, долговечности и дополнительной изоляции, которую они могут обеспечить для помещений внизу, конструкция скатной крыши часто имеет больший срок службы по сравнению с ее аналогом с плоской крышей.
Pros
Традиционный, элегантный вид скатной крыши мгновенно узнаваем во всем мире, поэтому, если вы стремитесь к классическому виду, который подойдет для большинства районов, скатная крыша — это путь к успеху. брать.
Увеличить пространство в вашем доме за счет преобразования чердака возможно только в том случае, если у вас есть чердак для начала.
Дизайн скатных крыш награждает домовладельца большим количеством полезного пространства, которое можно гибко трансформировать в спальню, комнату для хобби, кабинет или все, что вы пожелаете.Дождевая вода может легко стекать с скатной крыши благодаря ее сильному наклону, предотвращающему скопление.
Долговечность скатной крыши обычно выше, чем у плоской крыши, поэтому многие домовладельцы выбирают ее из-за своих свойств. Используемые материалы, как правило, более устойчивы к атмосферным воздействиям и долговечны, хотя с появлением на рынке плоских кровель более прочных материалов этот разрыв начинает сокращаться.
МИНУСЫ
Скатные крыши стоят дороже, чем плоские, а также требуют больше времени для установки. Это связано с тем, что это более сложная конструкция, чем плоская крыша, требующая повышенных трудозатрат и дополнительных материалов. Однако в обмен на дополнительные расходы вы получите крышу с более длительным сроком службы, эффективным водоотводом и более традиционным внешним видом.

Сколько стоит скатная крыша?
Для скатных крыш доступен более широкий выбор материалов, поэтому необходимо учитывать дополнительные расходы. Если вы хотите создать долговечную конструкцию, вот материалы, которые мы рекомендуем, и сколько они вам обойдутся…
Если вы думаете о расширении и хотите узнать, какой стиль крыши вам больше подходит, позвоните нам или закажите бесплатный звонок.
Наша команда дизайнеров будет рада помочь и ответить на любые ваши вопросы.
ЗАКАЗАТЬ БЕСПЛАТНЫЙ ЗВОНОК
С РОЖДЕСТВОМ И С НОВЫМ ГОДОМ!
2020 год был непростым, и поэтому я хотел бы воспользоваться этой возможностью, чтобы сначала поделиться своими мыслями с теми, кому было особенно тяжело.
УМЕНЬШЕНИЕ ГЕРБОВЫХ ПОШЛИН: КАК ЭТО БУДЕТ ДЕЙСТВОВАТЬ?
Вчерашнее заявление канцлера Риши Сунака раскрыло ряд новых пакетов для стимулирования экономики. Гербовый сбор был временно пересмотрен, но кто от этого выиграет?
РЕШЕНИЕ ТЕКУЩИХ ЗАДАЧ…
A9 Architecture Ltd продолжает внимательно следить за воздействием пандемии Covid-19 и регулярно пересматривает нашу политику в соответствии с текущими рекомендациями правительства. Когда карантин в Великобритании подходит к концу, жизнь постепенно вернется в нормальное русло — «новая нормальность».
5 ЛУЧШИХ ТРЕНДОВ В ДИЗАЙНЕ ИНТЕРЬЕРА НА 2020 ГОД
Зима — идеальное время, чтобы заглянуть в будущее и задуматься о том, какие тенденции появляются в домашнем пространстве.
ЧАСЫ РАБОТЫ НА НОВОГОДНИЕ И РОЖДЕСТВЕНСКИЕ ПРАЗДНИКИ
Праздничный сезон наступил, и мы желаем всем прекрасного Рождества и очень счастливого Нового года. Мы будем закрыты в среду, 25 декабря, и в четверг, 26 декабря, и в среду, 1 января 2020 года.
ПОЛУЧИТЕ 50 ФУНТОВ ДЛЯ ТЕБЯ И ДРУГА
Когда вы порекомендуете другу A9 Architecture Ltd, вы и ваш друг получите 50 фунтов стерлингов, когда они потратят 700 фунтов стерлингов и более на наши услуги — соблазнились?
ПОБЕДИТЕ ЯНВАРСКИЙ ДОМАШНИЙ РЫНОК С АРХИТЕКТУРОЙ A9!
Знаете ли вы, что в январе на тренировках вдвое больше людей, чем в декабре? Наверное, это неудивительно, но многие домовладельцы откладывают крупные проекты до нового года. Это означает, что многие профессионалы испытывают январский ажиотаж, и слоты для их услуг быстро раскупаются.
ПОКРЫТИЯ ДЛЯ СКАТНЫХ КРЫШ: КАКОВЫ ВАРИАНТЫ?
В случае скатной крыши вы можете выбрать один из многих типов кровельного покрытия. Наиболее часто используемыми материалами являются керамическая черепица, сланец и тростник. В этой статье вы можете узнать больше о различных типах кровель для скатных крыш, а также их ценах.
Откройте для себя и другую полезную информацию о скатных крышах.
ПОЛНОЕ РУКОВОДСТВО ПО ДРОВЯНЫМ ПЕЧАМ
Дровяная печь может стать отличным центром внимания в вашей гостиной, создавая ощущение тепла и уюта. Ничто не сравнится со звуком или запахом открытого огня с его танцующим пламенем, но печи более эффективны, чем открытые камины, и даже могут сэкономить вам деньги на счетах за отопление.
BROKEN PLAN LIVING 2020 РУКОВОДСТВО
Вы, наверное, слышали о термине «открытая планировка». При использовании в жилой архитектуре это относится к дому, в котором две традиционные комнаты были объединены для образования большего пространства за счет устранения некоторых перегородок, которые помогают разделить комнаты.
BlogAlan Green крыша
9 советов по работе с крышами Revit — REVIT PURE
Николя Кателье
Пытаетесь создать идеальную крышу в Revit? Не знаете, как создать уклон? Хотите сделать слуховое окно? Мы вас прикрыли.
В этом руководстве приведены ответы на наиболее распространенные проблемы с крышами, с которыми сталкиваются новички в Revit. Вы также можете посмотреть видеоурок ниже, если хотите.
Получить весь пост в формате PDF. Это часть нашего курса BASICS по Revit.
1- СНЯТЬ НАКЛОН ДЛЯ СОЗДАНИЯ ПЛОСКОЙ КРЫШИ Хотите создать плоскую крышу? На панели параметров убедитесь, что параметр Defines Slope деактивирован, прежде чем рисовать границу.
Чтобы превратить наклонную крышу в плоскую, выберите фиолетовые линии всех границ крыши и снимите флажок Defines Slope на панели параметров.
2- АКТИВИРОВАТЬ НАКЛОН, ЧТОБЫ СОЗДАТЬ НАКЛОННУЮ КРЫШУХотите создать наклонную крышу? На панели параметров убедитесь, что для граничных линий активирован параметр Defines Slope .
Если для граничных линий активен уклон, рядом с ними появится символ треугольника.
Чтобы создать вальмовую крышу (4-сторонний скат), задайте уклон для всех границ. Чтобы создать двускатную крышу (двухсторонний скат), удалите скат на половине границ.
Нажмите на крышу и измените угол в свойствах уклона.
Вы можете использовать любые единицы измерения, такие как % и отношения (1:10). Они будут преобразованы в единицы измерения по умолчанию, в данном случае в углы.
Хотите крышу необычной формы? Вы должны отредактировать границу крыши и изменить уклон для каждой отдельной линии границы.
5- АКТИВИРОВАТЬ ВЫСТУПЛЕНИЕ НА ВЫБРАННЫХ СТЕНАХ КРЫШАИспользуйте функцию «Выбор стен», если вы хотите, чтобы крыша автоматически регулировалась при перемещении стен. Вы можете установить свес на крышах, созданных с помощью Pick Walls. Выберите каждую линию границы и установите значение в свойствах или на панели параметров.
6- ДОБАВЬТЕ ВЕРТИКАЛЬНЫЕ ИЛИ ОТВЕРСТИЯ В ЛИНИИ Хотите дыру в крыше? Попробуйте Отверстия .
Используйте Вертикальное отверстие или По граням , если вы хотите, чтобы отверстие было перпендикулярно скату крыши.
7- ИСПОЛЬЗУЙТЕ РЕДАКТИРОВАНИЕ ФОРМЫ ДЛЯ СОЗДАНИЯ СКЛОНА ПЛОСКОЙ КРЫШИ
Инструменты редактирования формы используются для создания уклона плоской крыши. Измените высоту точек, чтобы создать желаемый уклон. Добавляйте точки вручную или создавайте их автоматически с помощью разделительных линий.
В приведенном ниже примере мы добавляем группу точек и меняем их относительную высоту с помощью инструмента Modify Sub Elements . Добавьте отрицательное значение к средним точкам, и наклон будет создан. Вы можете предпочесть использовать инструмент Добавить линию разделения , который создает точки на пересечениях.
Используйте инструмент Reset Shape , чтобы вернуться к полностью плоской крыше, удалив все линии разделения и точки.
Хотите наклонную конструкцию или наклонную изоляцию на своей плоской крыше? По умолчанию вся крыша будет наклонной. Отметьте Переменный материал в конструкции крыши для создания наклонной изоляции. Толщина изоляции должна быть не меньше толщины вертикального уклона, иначе вы получите предупреждение.
9- СОЕДИНЕНИЕ КРЫШИ, ДОБАВЛЕНИЕ ПРОЕМА ДЛЯ СОЗДАНИЯ МАНСАРДА
Для создания слухового окна смоделируйте необходимые стены и дополнительную крышу. Затем выполните следующие 2 шага:
Используйте инструмент «Присоединить/Отсоединить крышу»: Этот инструмент находится на вкладке «Изменить». Используйте его, чтобы расширить мансардную крышу до основной крыши.
Создание слухового окна.


Надежные материалы для грамотного пирога плоской крыши
Зависит от пожеланий заказчика и дизайнерского решения.
Ограничением является температура воздуха ниже -15°C или сильные ливни.
Так во влажном состоянии субстрат с остальными слоями может весить до 130 кг.
Стропильные ноги наслонного типа должны опираться на обе крайние точки опорных деталей и на несколько внутренних. Элементы могут работать исключительно на изгиб.
Подобная конструкция становится выгодной, если под ней планируется чердачное помещение, а не полноценная мансарда. Она может быть тёплой: так как уклон минимален, есть возможность закладывать большое количество утеплительного материала. Крыша может применяться для зданий любой конфигурации, даже той, в которой скатная кровля покажется изломанной и крупногабаритной. Плоскую кровлю часто делают эксплуатируемой. На ней может быть организовано добавочное пространство для отдыха. Однако проект такой крыши должен предусматривать устройство системы снеготаяния, которая предотвратит скапливание снега и льда в большом количестве. Конструкция не является популярной в России, поэтому мало компаний способны грамотно составить проект такой крыши.
Направление наклона к северу позволит создать окна большой ширины с южной части фасада. К югу рекомендуется устраивать солнечные коллекторы по всему основанию крыши. Этот тип постройки допускает применение листовых кровельных материалов больших размеров. Крыша с одним скатом подойдёт как для крупного здания, так и для маленьких построек — гаражных помещений или веранд. В проекте можно предусмотреть наличие нескольких конструкций с единым скатом, которые совмещены в единую конструкцию и имеют наклоны в различных направлениях. Уклон должен быть маленьким, чтобы не было необходимости в возведении стен слишком большой высоты.
Двускатную кровлю рекомендуется выбирать, если требуется устроить мансардное помещение. Окна, которые размещаются во фронтонах, смогут обеспечить должный уровень проветривания и освещённости. Для мансардного помещения довольно часто применяется модифицированная вариация двускатной крыши — ломаная конструкция, которая отличается более крутым уклоном нижней части (70–80° в сравнении с верхней 28–30°). Это даёт возможность существенно увеличить площадь мансарды. К крыше с двумя скатами относится и сводчатая постройка, которая выполняется по окружности. Подобный тип кровли способен украсить выступающие части здания.
Она имеет хорошую устойчивость к нагрузкам от ветра. Довольно часто подобный дизайн крыш применяется для того, чтобы покрыть строения существенной площади и улучшить их внешний вид. Это сложное изделие, в котором обязательно должны быть слуховые и мансардные окна. Они обеспечивают необходимый уровень освещения и проветривания. 